Property
Account |
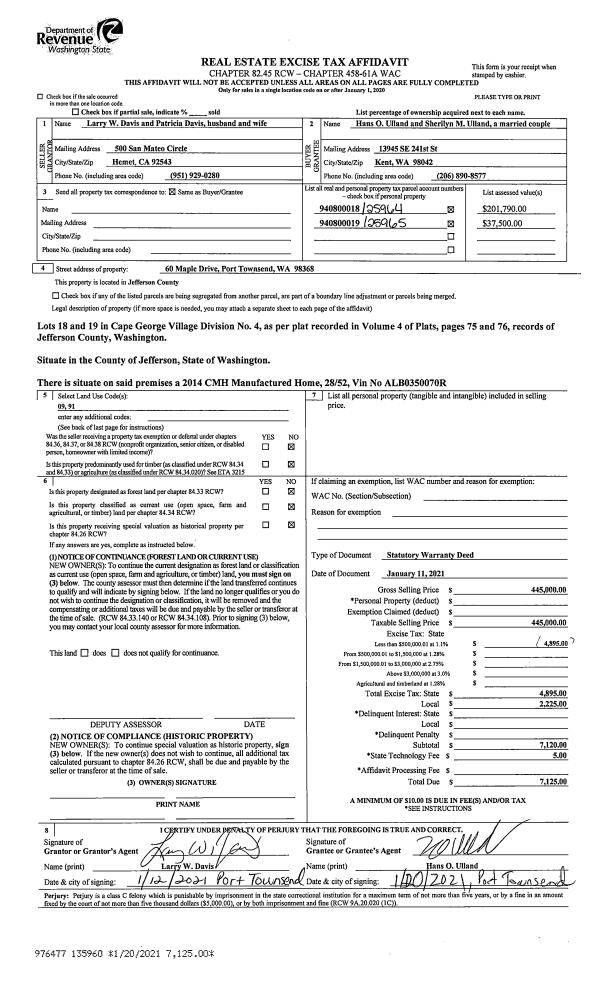
| Property ID: | 25964 | Abbreviated Legal Description: | CAPE GEORGE VILLAGE DIV 4 LOT 18 |
| Parcel # / Geo ID: | 940800018 | Agent Code: | |
| Type: | Real | | |
| Tax Area: | 0111 - 1-50F1E1H2L1 | Land Use Code | 11 |
| Open Space: | N | DFL | N |
| Historic Property: | N | Remodel Property: | N |
| Multi-Family Redevelopment: | N | | |
| Township: | 30N | Section: | 13 |
| Range: | 2W |
Location |
| Address: | 60 MAPLE DR PORT TOWNSEND, WA 98368 | Mapsco: | 017/018 |
| Neighborhood: | CAPE GEORGE VILLAGE DIV 1, 2, 3, 4 | Map ID: | |
| Neighborhood CD: | 5525 |
Owner |
| Name: | HANS & SHERILYN ULLAND | Owner ID: | 104015 |
| Mailing Address: | 60 MAPLE DR PORT TOWNSEND, WA 98368-9486 | % Ownership: | 100.0000000000% |
| | | Exemptions: | |
Pay Tax Due
Select the appropriate checkbox next to the year to be paid. Multiple years may be selected.
*Convenience Fee not included
Taxes and Assessment Details
Property Tax Information as of
03/10/2026
Click on "Statement Details" to expand or collapse a tax statement.
* Please enter a valid date ** Please enter a valid date *
Statement Details |
| 2026 | 15343 | STATE - STATE LEVY (SCHOOL) | $576.41 | $576.41 | $0.00 | $0.00 | $0.00 | $1152.82 |
| 2026 | 15343 | COUNTY - COUNTY LEVIES (CE, DD, VET, MH) | $230.46 | $230.43 | $0.00 | $0.00 | $0.00 | $460.89 |
| 2026 | 15343 | CONSERVE - CONSERVATION FUTURES | $6.91 | $6.91 | $0.00 | $0.00 | $0.00 | $13.82 |
| 2026 | 15343 | COROADS - COUNTY ROADS (ROADS, DIV TO CE) | $185.91 | $185.90 | $0.00 | $0.00 | $0.00 | $371.81 |
| 2026 | 15343 | PORTPT - PORT DISTRICT | $93.08 | $93.06 | $0.00 | $0.00 | $0.00 | $186.14 |
| 2026 | 15343 | PUD1 - PUD #1 | $14.99 | $14.99 | $0.00 | $0.00 | $0.00 | $29.98 |
| 2026 | 15343 | LIB1 - LIBRARY DIST #1 | $71.93 | $71.92 | $0.00 | $0.00 | $0.00 | $143.85 |
| 2026 | 15343 | HD2 - HOSP DIST #2 | $13.44 | $13.44 | $0.00 | $0.00 | $0.00 | $26.88 |
| 2026 | 15343 | SD50 - SCHOOL DIST #50 | $456.65 | $456.64 | $0.00 | $0.00 | $0.00 | $913.29 |
| 2026 | 15343 | FD1 - FIRE DISTRICT #1 | $305.17 | $305.16 | $0.00 | $0.00 | $0.00 | $610.33 |
| 2026 | 15343 | EMS1 - FIRE DIST #1 EMS | $117.33 | $117.33 | $0.00 | $0.00 | $0.00 | $234.66 |
| 2026 | 15343 | JCCD - JC Conservation District | $2.55 | $2.55 | $0.00 | $0.00 | $0.00 | $5.10 |
| 2026 | 15343 | NWA - Noxious Weed Assessment | $2.98 | $2.97 | $0.00 | $0.00 | $0.00 | $5.95 |
| 2026 | 15343 | OSS - On Site Septic | $23.10 | $23.10 | $0.00 | $0.00 | $0.00 | $46.20 |
| 2026 | 15343 | WAT - Clean Water District | $13.00 | $13.00 | $0.00 | $0.00 | $0.00 | $26.00 |
| 2026 | 15343 | TOTAL: | $2113.91 | $2113.81 | $0.00 | $0.00 | $0.00 | $4227.72 |
|
| 2026 | 15343 | $2113.91 | $2113.81 | $0.00 | $0.00 | $0.00 | $4227.72 |
Statement Details |
| 2025 | 15395 | STATE - STATE LEVY (SCHOOL) | $601.22 | $601.21 | $0.00 | $0.00 | $1202.43 | $0.00 |
| 2025 | 15395 | COUNTY - COUNTY LEVIES (CE, DD, VET, MH) | $236.44 | $236.42 | $0.00 | $0.00 | $472.86 | $0.00 |
| 2025 | 15395 | CONSERVE - CONSERVATION FUTURES | $7.09 | $7.09 | $0.00 | $0.00 | $14.18 | $0.00 |
| 2025 | 15395 | COROADS - COUNTY ROADS (ROADS, DIV TO CE) | $189.41 | $189.41 | $0.00 | $0.00 | $378.82 | $0.00 |
| 2025 | 15395 | PORTPT - PORT DISTRICT | $96.48 | $96.47 | $0.00 | $0.00 | $192.95 | $0.00 |
| 2025 | 15395 | PUD1 - PUD #1 | $15.47 | $15.47 | $0.00 | $0.00 | $30.94 | $0.00 |
| 2025 | 15395 | LIB1 - LIBRARY DIST #1 | $73.28 | $73.28 | $0.00 | $0.00 | $146.56 | $0.00 |
| 2025 | 15395 | HD2 - HOSP DIST #2 | $13.80 | $13.79 | $0.00 | $0.00 | $27.59 | $0.00 |
| 2025 | 15395 | SD50 - SCHOOL DIST #50 | $439.39 | $439.39 | $0.00 | $0.00 | $878.78 | $0.00 |
| 2025 | 15395 | FD1 - FIRE DISTRICT #1 | $311.99 | $311.98 | $0.00 | $0.00 | $623.97 | $0.00 |
| 2025 | 15395 | EMS1 - FIRE DIST #1 EMS | $120.00 | $120.00 | $0.00 | $0.00 | $240.00 | $0.00 |
| 2025 | 15395 | JCCD - JC Conservation District | $2.55 | $2.55 | $0.00 | $0.00 | $5.10 | $0.00 |
| 2025 | 15395 | NWA - Noxious Weed Assessment | $2.15 | $2.15 | $0.00 | $0.00 | $4.30 | $0.00 |
| 2025 | 15395 | OSS - On Site Septic | $21.50 | $21.50 | $0.00 | $0.00 | $43.00 | $0.00 |
| 2025 | 15395 | WAT - Clean Water District | $13.00 | $13.00 | $0.00 | $0.00 | $26.00 | $0.00 |
| 2025 | 15395 | TOTAL: | $2143.77 | $2143.71 | $0.00 | $0.00 | $4287.48 | $0.00 |
|
| 2025 | 15395 | $2143.77 | $2143.71 | $0.00 | $0.00 | $4287.48 | $0.00 |
Statement Details |
| 2024 | 15426 | STATE - STATE LEVY (SCHOOL) | $583.19 | $583.18 | $0.00 | $0.00 | $1166.37 | $0.00 |
| 2024 | 15426 | COUNTY - COUNTY LEVIES (CE, DD, VET, MH) | $249.56 | $249.54 | $0.00 | $0.00 | $499.10 | $0.00 |
| 2024 | 15426 | CONSERVE - CONSERVATION FUTURES | $7.49 | $7.48 | $0.00 | $0.00 | $14.97 | $0.00 |
| 2024 | 15426 | COROADS - COUNTY ROADS (ROADS, DIV TO CE) | $200.81 | $200.80 | $0.00 | $0.00 | $401.61 | $0.00 |
| 2024 | 15426 | PORTPT - PORT DISTRICT | $103.08 | $103.07 | $0.00 | $0.00 | $206.15 | $0.00 |
| 2024 | 15426 | PUD1 - PUD #1 | $16.39 | $16.39 | $0.00 | $0.00 | $32.78 | $0.00 |
| 2024 | 15426 | LIB1 - LIBRARY DIST #1 | $77.69 | $77.69 | $0.00 | $0.00 | $155.38 | $0.00 |
| 2024 | 15426 | HD2 - HOSP DIST #2 | $14.56 | $14.56 | $0.00 | $0.00 | $29.12 | $0.00 |
| 2024 | 15426 | SD50 - SCHOOL DIST #50 | $471.83 | $471.81 | $0.00 | $0.00 | $943.64 | $0.00 |
| 2024 | 15426 | FD1 - FIRE DISTRICT #1 | $329.97 | $329.96 | $0.00 | $0.00 | $659.93 | $0.00 |
| 2024 | 15426 | EMS1 - FIRE DIST #1 EMS | $126.04 | $126.03 | $0.00 | $0.00 | $252.07 | $0.00 |
| 2024 | 15426 | JCCD - JC Conservation District | $2.55 | $2.55 | $0.00 | $0.00 | $5.10 | $0.00 |
| 2024 | 15426 | NWA - Noxious Weed Assessment | $2.15 | $2.15 | $0.00 | $0.00 | $4.30 | $0.00 |
| 2024 | 15426 | OSS - On Site Septic | $21.00 | $21.00 | $0.00 | $0.00 | $42.00 | $0.00 |
| 2024 | 15426 | WAT - Clean Water District | $12.50 | $12.50 | $0.00 | $0.00 | $25.00 | $0.00 |
| 2024 | 15426 | TOTAL: | $2218.81 | $2218.71 | $0.00 | $0.00 | $4437.52 | $0.00 |
|
| 2024 | 15426 | $2218.81 | $2218.71 | $0.00 | $0.00 | $4437.52 | $0.00 |
Statement Details |
| 2023 | 15450 | STATE - STATE LEVY (SCHOOL) | $518.94 | $518.93 | $0.00 | $0.00 | $1037.87 | $0.00 |
| 2023 | 15450 | COUNTY - COUNTY LEVIES (CE, DD, VET, MH) | $226.46 | $226.43 | $0.00 | $0.00 | $452.89 | $0.00 |
| 2023 | 15450 | CONSERVE - CONSERVATION FUTURES | $6.79 | $6.79 | $0.00 | $0.00 | $13.58 | $0.00 |
| 2023 | 15450 | COROADS - COUNTY ROADS (ROADS, DIV TO CE) | $183.22 | $183.21 | $0.00 | $0.00 | $366.43 | $0.00 |
| 2023 | 15450 | PORTPT - PORT DISTRICT | $95.39 | $95.39 | $0.00 | $0.00 | $190.78 | $0.00 |
| 2023 | 15450 | PUD1 - PUD #1 | $15.01 | $15.01 | $0.00 | $0.00 | $30.02 | $0.00 |
| 2023 | 15450 | LIB1 - LIBRARY DIST #1 | $70.89 | $70.88 | $0.00 | $0.00 | $141.77 | $0.00 |
| 2023 | 15450 | HD2 - HOSP DIST #2 | $13.22 | $13.21 | $0.00 | $0.00 | $26.43 | $0.00 |
| 2023 | 15450 | SD50 - SCHOOL DIST #50 | $411.79 | $411.78 | $0.00 | $0.00 | $823.57 | $0.00 |
| 2023 | 15450 | FD1 - FIRE DISTRICT #1 | $186.55 | $186.55 | $0.00 | $0.00 | $373.10 | $0.00 |
| 2023 | 15450 | EMS1 - FIRE DIST #1 EMS | $79.36 | $79.35 | $0.00 | $0.00 | $158.71 | $0.00 |
| 2023 | 15450 | JCCD - JC Conservation District | $2.55 | $2.55 | $0.00 | $0.00 | $5.10 | $0.00 |
| 2023 | 15450 | NWA - Noxious Weed Assessment | $2.15 | $2.15 | $0.00 | $0.00 | $4.30 | $0.00 |
| 2023 | 15450 | OSS - On Site Septic | $20.50 | $20.50 | $0.00 | $0.00 | $41.00 | $0.00 |
| 2023 | 15450 | WAT - Clean Water District | $12.00 | $12.00 | $0.00 | $0.00 | $24.00 | $0.00 |
| 2023 | 15450 | TOTAL: | $1844.82 | $1844.73 | $0.00 | $0.00 | $3689.55 | $0.00 |
|
| 2023 | 15450 | $1844.82 | $1844.73 | $0.00 | $0.00 | $3689.55 | $0.00 |
Values
| (+) Improvement Homesite Value: | + | $0 | |
| (+) Improvement Non-Homesite Value: | + | $325,425 | |
| (+) Land Homesite Value: | + | $0 | |
| (+) Land Non-Homesite Value: | + | $176,000 | |
| (+) Curr Use (HS): | + | $0 | $0 |
| (+) Curr Use (NHS): | + | $0 | $0 |
| | | -------------------------- | |
| (=) Market Value: | = | $501,425 | |
| (–) Productivity Loss: | – | $0 | |
| | | -------------------------- | |
| (=) Subtotal: | = | $501,425 | |
| (+) Senior Appraised Value: | + | $0 | |
| (+) Non-Senior Appraised Value: | + | $501,425 | |
| | | -------------------------- | |
| (=) Total Appraised Value: | = | $501,425 | |
| (–) Senior Exemption Loss: | – | $0 | |
| (–) Exemption Loss: | – | $0 | |
| | | -------------------------- | |
| (=) Taxable Value: | = | $501,425 | |
Taxing Jurisdiction
| Owner: | HANS & SHERILYN ULLAND | | |
| % Ownership: | 100.0000000000% | | |
| Total Value: | $501,425 | | |
| Tax Area: | 0111 - 1-50F1E1H2L1 |
| CE | COUNTY CURRENT EXPENSE | 0.9034619479 | $501,425 | $501,425 | $453.02 | | |
| CNTYDD | DEVELOPMENTAL DISABILITIES | 0.0052121823 | $501,425 | $501,425 | $2.61 | | |
| CNTYVET | VETERANS RELIEF | 0.0052777810 | $501,425 | $501,425 | $2.65 | | |
| MENTAL | MENTAL HEALTH | 0.0052121823 | $501,425 | $501,425 | $2.61 | | |
| ROADS | COUNTY ROADS | 0.7415066410 | $501,425 | $501,425 | $371.81 | | |
| ROADSCU | COUNTY ROADS TO CUR EXP | 0.0000000000 | $501,425 | $501,425 | $0.00 | | |
| HOSP2CASH | HOSP DIST #2 GENERAL | 0.0536075306 | $501,425 | $501,425 | $26.88 | | |
| SCH50BOND | SCHOOL DIST #50 BOND 2016 | 0.5377451389 | $501,425 | $501,425 | $269.64 | | |
| SCH50CP | SCHOOL DIST #50 CAP PROJ | 0.4573475088 | $501,425 | $501,425 | $229.33 | | |
| SCH50MO | SCHOOL DIST #50 EP & O | 0.8262822886 | $501,425 | $501,425 | $414.32 | | |
| CONSERVE | CONSERVATION FUTURES | 0.0275621078 | $501,425 | $501,425 | $13.82 | | |
| EMS1 | FIRE DIST #1 EMS | 0.4679948282 | $501,425 | $501,425 | $234.66 | | |
| FD1 | FIRE DIST #1 GENERAL | 1.2171942929 | $501,425 | $501,425 | $610.33 | | |
| LIB1 | LIBRARY DIST #1 GENERAL | 0.2868827388 | $501,425 | $501,425 | $143.85 | | |
| PORTPT | PORT OF PT GENERAL | 0.1134941229 | $501,425 | $501,425 | $56.91 | | |
| PORTPTIDD | PORT OF PT IDD 2019 | 0.2577346692 | $501,425 | $501,425 | $129.23 | | |
| PUD1 | PUD #1 GENERAL | 0.0597888892 | $501,425 | $501,425 | $29.98 | | |
| STATE | STATE SCHOOL PART 1 | 1.4940692947 | $501,425 | $501,425 | $749.16 | | |
| STATE2 | STATE SCHOOL PART 2 | 0.8050170049 | $501,425 | $501,425 | $403.66 | | |
| | Total Tax Rate: | 8.2653911500 | | | | | |
| | | | | Taxes w/Current Exemptions: | $4,144.47 | | |
| | | | | Taxes w/o Exemptions: | $4,144.47 | | |
Improvement / Building
| Improvement #1: | Residential Bldg | State Code: | 11M | 1404.0 sqft | Value: | $325,425 |
| Bathrooms (#): | 2 (FULL) | Bedrooms (#): | 2 | | Exterior Wall: | PL/T1 | Floor Construction: | FRAME | | Foundation: | PO&BL | Heating/Cooling: | F/A | | Inside Verify: | YES | Roof Cover: | COMP |
|
| | Type | Description | Class CD | Sub Class CD | Year Built | Area |
| | MA | Main Area | 5 | MFH | 2015 | 1404.0 |
| | GDET | Detached Garage | 5 | * | 2015 | 243.0 |
| | HDECK | House Deck | 5 | * | 2015 | 256.0 |
| | SHED | Shed (Table Not Dep) | 5 | * | 2015 | 418.0 |
Sketch
Property Image
Land
| 1 | 5525-1155L | | 0.0000 | 0.00 | 0.00 | 0.00 | 1.00 | $176,000 | $0 |
Roll Value History
| 2026 | N/A | N/A | N/A | N/A | N/A |
| 2025 | $325,425 | $176,000 | $0 | $501,425 | $501,425 |
| 2024 | $325,425 | $176,000 | $0 | $501,425 | $501,425 |
| 2023 | $341,385 | $162,750 | $0 | $504,135 | $504,135 |
| 2022 | $325,868 | $115,000 | $0 | $440,868 | $440,868 |
Deed and Sales History
| 1 | 01/11/2021 | SWD | Statutory Warranty Deed | LARRY W & PATRICIA DAVIS | HANS & SHERILYN ULLAND | | | $445,000.00 | 135960 | |
|   | |
| 2 | 06/13/2014 | SWD | Statutory Warranty Deed | ANNE STOLTZ | LARRY W & PATRICIA DAVIS | | | $105,000.00 | 121394 | |
|   | |
| 3 | 01/17/2008 | QCD | Quit Claim Deed | KAY, HILLIS G TRUSTEE OF | STOLTZ, ANNE, STOLTZ, SUSAN | 0 | 0 | $0.00 | 110752 | 0 |
| 4 | 09/10/2003 | QCD | Quit Claim Deed | KAY, HILLIS G | HILLIS G KAY REVOCABLE TRUST | 0 | 0 | $0.00 | 98342 | 0 |
Payout Agreement
| No payout information available.. |