Property
Account |
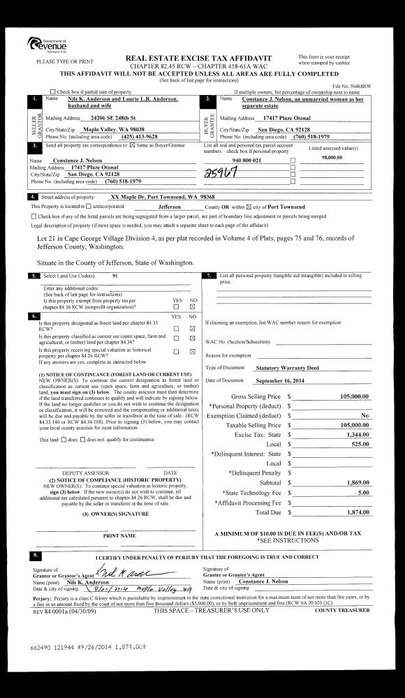
| Property ID: | 25967 | Abbreviated Legal Description: | CAPE GEORGE VILLAGE DIV 4 LOT 21 |
| Parcel # / Geo ID: | 940800021 | Agent Code: | |
| Type: | Real | | |
| Tax Area: | 0111 - 1-50F1E1H2L1 | Land Use Code | 11 |
| Open Space: | N | DFL | N |
| Historic Property: | N | Remodel Property: | N |
| Multi-Family Redevelopment: | N | | |
| Township: | 30N | Section: | 13 |
| Range: | 2W |
Location |
| Address: | 10 MAPLE DR PORT TOWNSEND, WA 98368 | Mapsco: | 017/021 |
| Neighborhood: | CAPE GEORGE VILLAGE DIV 1, 2, 3, 4 | Map ID: | |
| Neighborhood CD: | 5525 |
Owner |
| Name: | CONSTANCE J NELSON | Owner ID: | 92549 |
| Mailing Address: | 10 MAPLE DR PORT TOWNSEND, WA 98368-9486 | % Ownership: | 100.0000000000% |
| | | Exemptions: | |
Pay Tax Due
There is currently No Amount Due on this property.
Taxes and Assessment Details
Property Tax Information as of
03/13/2026
Click on "Statement Details" to expand or collapse a tax statement.
* Please enter a valid date ** Please enter a valid date *
Statement Details |
| | TOTAL: | $0.00 | $0.00 | $0.00 | $0.00 | $0.00 | $0.00 |
|
| | $0.00 | $0.00 | $0.00 | $0.00 | $0.00 | $0.00 |
Values
| (+) Improvement Homesite Value: | + | $193,661 | |
| (+) Improvement Non-Homesite Value: | + | $0 | |
| (+) Land Homesite Value: | + | $0 | |
| (+) Land Non-Homesite Value: | + | $233,200 | |
| (+) Curr Use (HS): | + | $0 | $0 |
| (+) Curr Use (NHS): | + | $0 | $0 |
| | | -------------------------- | |
| (=) Market Value: | = | $426,861 | |
| (–) Productivity Loss: | – | $0 | |
| | | -------------------------- | |
| (=) Subtotal: | = | $426,861 | |
| (+) Senior Appraised Value: | + | $0 | |
| (+) Non-Senior Appraised Value: | + | $426,861 | |
| | | -------------------------- | |
| (=) Total Appraised Value: | = | $426,861 | |
| (–) Senior Exemption Loss: | – | $0 | |
| (–) Exemption Loss: | – | $0 | |
| | | -------------------------- | |
| (=) Taxable Value: | = | $426,861 | |
Taxing Jurisdiction
| Owner: | CONSTANCE J NELSON | | |
| % Ownership: | 100.0000000000% | | |
| Total Value: | N/A | | |
| Tax Area: | 0111 - 1-50F1E1H2L1 |
| CE | COUNTY CURRENT EXPENSE | N/A | N/A | N/A | N/A | | |
| CNTYDD | DEVELOPMENTAL DISABILITIES | N/A | N/A | N/A | N/A | | |
| CNTYVET | VETERANS RELIEF | N/A | N/A | N/A | N/A | | |
| MENTAL | MENTAL HEALTH | N/A | N/A | N/A | N/A | | |
| ROADS | COUNTY ROADS | N/A | N/A | N/A | N/A | | |
| HOSP2CASH | HOSP DIST #2 GENERAL | N/A | N/A | N/A | N/A | | |
| SCH50BOND | SCHOOL DIST #50 BOND 2016 | N/A | N/A | N/A | N/A | | |
| SCH50CP | SCHOOL DIST #50 CAP PROJ | N/A | N/A | N/A | N/A | | |
| SCH50MO | SCHOOL DIST #50 EP & O | N/A | N/A | N/A | N/A | | |
| CONSERVE | CONSERVATION FUTURES | N/A | N/A | N/A | N/A | | |
| EMS1 | FIRE DIST #1 EMS | N/A | N/A | N/A | N/A | | |
| FD1 | FIRE DIST #1 GENERAL | N/A | N/A | N/A | N/A | | |
| LIB1 | LIBRARY DIST #1 GENERAL | N/A | N/A | N/A | N/A | | |
| PORTPT | PORT OF PT GENERAL | N/A | N/A | N/A | N/A | | |
| PORTPTIDD | PORT OF PT IDD 2019 | N/A | N/A | N/A | N/A | | |
| PUD1 | PUD #1 GENERAL | N/A | N/A | N/A | N/A | | |
| STATE | STATE SCHOOL PART 1 | N/A | N/A | N/A | N/A | | |
| STATE2 | STATE SCHOOL PART 2 | N/A | N/A | N/A | N/A | | |
| | Total Tax Rate: | N/A | | | | | |
| | | | | Taxes w/Current Exemptions: | N/A | | |
| | | | | Taxes w/o Exemptions: | N/A | | |
Improvement / Building
| Improvement #1: | Residential Bldg | State Code: | 11M | 1488.0 sqft | Value: | $193,661 |
| Bathrooms (#): | 2 (FULL) | Bedrooms (#): | 2 | | Exterior Wall: | PL/T1 | Floor Construction: | FRAME | | Foundation: | CONBL | Roof Cover: | COMP |
|
| | Type | Description | Class CD | Sub Class CD | Year Built | Area |
| | MA | Main Area | 4 | MDBL | 2017 | 1488.0 |
| | MWPOR | MH Wood Porch | 4 | * | 2017 | 12.0 |
| | PATIO | House Patio | 4 | * | 2017 | 793.0 |
| | CONCD | Concrete Drive | 4 | * | 2017 | 240.0 |
Sketch
Property Image
Land
| 1 | 5525-1155L | Village Area of Avg Wtr/Mtn View Lots | 0.0000 | 0.00 | 0.00 | 0.00 | 1.00 | $233,200 | $0 |
Roll Value History
| 2026 | N/A | N/A | N/A | N/A | N/A |
| 2025 | $193,661 | $233,200 | $0 | $426,861 | $426,861 |
| 2024 | $193,661 | $233,200 | $0 | $426,861 | $426,861 |
| 2023 | $185,241 | $217,350 | $0 | $402,591 | $402,591 |
| 2022 | $176,821 | $153,000 | $0 | $329,821 | $329,821 |
Deed and Sales History
| 1 | 09/16/2014 | SWD | Statutory Warranty Deed | NILS K ANDERSON | CONSTANCE J NELSON | | | $105,000.00 | 121944 | |
| 2 | 11/26/2007 | SWD | Statutory Warranty Deed | BECK, PAMELA | ANDERSON, NILS/LAURIE L R | 0 | 0 | $144,000.00 | 110759 | 0 |
| 3 | 10/28/2002 | SWD | Statutory Warranty Deed | ALLAN, PHILIP D | BECK, PAMELA | 0 | 0 | $0.00 | 96029 | 0 |
| 4 | 10/28/2002 | SWD | Statutory Warranty Deed | ALLAN, PHILIP D | BECK, PAMELA | 0 | 0 | $20,000.00 | 95889 | 0 |
| 5 | 05/13/1998 | SWD | Statutory Warranty Deed | CHERRETT, JOHN/TONI/JOHN/ | ALLAN, PHILIP D | 0 | 0 | $110,000.00 | 84420 | 0 |
|   | |
| 6 | 10/17/1996 | SWD | Statutory Warranty Deed | GALLAGHER, ROY G/SR/ROSEM | CHERRETT, JOHN M/ET AL | 0 | 0 | $12,000.00 | 80618 | 0 |
Payout Agreement
| No payout information available.. |