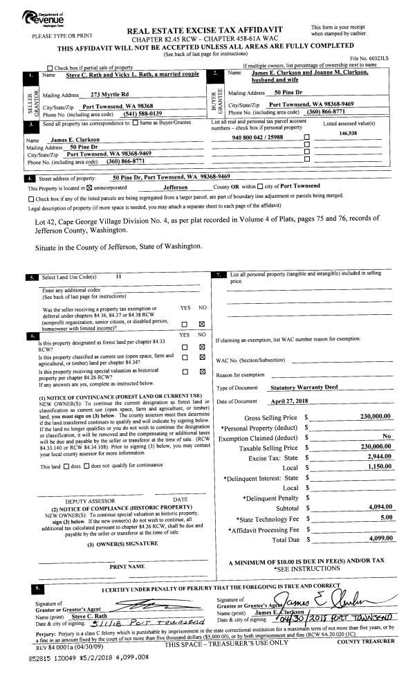
Property
Account |
| Property ID: | 25988 | Abbreviated Legal Description: | CAPE GEORGE VILLAGE DIV 4 LOT 42 |
| Parcel # / Geo ID: | 940800042 | Agent Code: | |
| Type: | Real | | |
| Tax Area: | 0111 - 1-50F1E1H2L1 | Land Use Code | 11 |
| Open Space: | N | DFL | N |
| Historic Property: | N | Remodel Property: | N |
| Multi-Family Redevelopment: | N | | |
| Township: | 30N | Section: | 13 |
| Range: | 2W |
Location |
| Address: | 50 PINE DR PORT TOWNSEND, WA 98368 | Mapsco: | 018/003 |
| Neighborhood: | CAPE GEORGE VILLAGE DIV 1, 2, 3, 4 | Map ID: | |
| Neighborhood CD: | 5525 |
Owner |
| Name: | JAMES E & JOANNE M CLARKSON | Owner ID: | 99080 |
| Mailing Address: | 50 PINE DR PORT TOWNSEND, WA 98368-9469 | % Ownership: | 100.0000000000% |
| | | Exemptions: | |
Pay Tax Due
There is currently No Amount Due on this property.
Taxes and Assessment Details
Property Tax Information as of
03/12/2026
Click on "Statement Details" to expand or collapse a tax statement.
* Please enter a valid date ** Please enter a valid date *
Statement Details |
| | TOTAL: | $0.00 | $0.00 | $0.00 | $0.00 | $0.00 | $0.00 |
|
| | $0.00 | $0.00 | $0.00 | $0.00 | $0.00 | $0.00 |
Values
| (+) Improvement Homesite Value: | + | $219,248 | |
| (+) Improvement Non-Homesite Value: | + | $0 | |
| (+) Land Homesite Value: | + | $176,000 | |
| (+) Land Non-Homesite Value: | + | $0 | |
| (+) Curr Use (HS): | + | $0 | $0 |
| (+) Curr Use (NHS): | + | $0 | $0 |
| | | -------------------------- | |
| (=) Market Value: | = | $395,248 | |
| (–) Productivity Loss: | – | $0 | |
| | | -------------------------- | |
| (=) Subtotal: | = | $395,248 | |
| (+) Senior Appraised Value: | + | $0 | |
| (+) Non-Senior Appraised Value: | + | $395,248 | |
| | | -------------------------- | |
| (=) Total Appraised Value: | = | $395,248 | |
| (–) Senior Exemption Loss: | – | $0 | |
| (–) Exemption Loss: | – | $0 | |
| | | -------------------------- | |
| (=) Taxable Value: | = | $395,248 | |
Taxing Jurisdiction
| Owner: | JAMES E & JOANNE M CLARKSON | | |
| % Ownership: | 100.0000000000% | | |
| Total Value: | $395,248 | | |
| Tax Area: | 0111 - 1-50F1E1H2L1 |
| CE | COUNTY CURRENT EXPENSE | 0.9034619479 | $395,248 | $395,248 | $357.09 | | |
| CNTYDD | DEVELOPMENTAL DISABILITIES | 0.0052121823 | $395,248 | $395,248 | $2.06 | | |
| CNTYVET | VETERANS RELIEF | 0.0052777810 | $395,248 | $395,248 | $2.09 | | |
| MENTAL | MENTAL HEALTH | 0.0052121823 | $395,248 | $395,248 | $2.06 | | |
| ROADS | COUNTY ROADS | 0.7415066410 | $395,248 | $395,248 | $293.08 | | |
| ROADSCU | COUNTY ROADS TO CUR EXP | 0.0000000000 | $395,248 | $395,248 | $0.00 | | |
| HOSP2CASH | HOSP DIST #2 GENERAL | 0.0536075306 | $395,248 | $395,248 | $21.19 | | |
| SCH50BOND | SCHOOL DIST #50 BOND 2016 | 0.5377451389 | $395,248 | $395,248 | $212.54 | | |
| SCH50CP | SCHOOL DIST #50 CAP PROJ | 0.4573475088 | $395,248 | $395,248 | $180.77 | | |
| SCH50MO | SCHOOL DIST #50 EP & O | 0.8262822886 | $395,248 | $395,248 | $326.59 | | |
| CONSERVE | CONSERVATION FUTURES | 0.0275621078 | $395,248 | $395,248 | $10.89 | | |
| EMS1 | FIRE DIST #1 EMS | 0.4679948282 | $395,248 | $395,248 | $184.97 | | |
| FD1 | FIRE DIST #1 GENERAL | 1.2171942929 | $395,248 | $395,248 | $481.09 | | |
| LIB1 | LIBRARY DIST #1 GENERAL | 0.2868827388 | $395,248 | $395,248 | $113.39 | | |
| PORTPT | PORT OF PT GENERAL | 0.1134941229 | $395,248 | $395,248 | $44.86 | | |
| PORTPTIDD | PORT OF PT IDD 2019 | 0.2577346692 | $395,248 | $395,248 | $101.87 | | |
| PUD1 | PUD #1 GENERAL | 0.0597888892 | $395,248 | $395,248 | $23.63 | | |
| STATE | STATE SCHOOL PART 1 | 1.4940692947 | $395,248 | $395,248 | $590.53 | | |
| STATE2 | STATE SCHOOL PART 2 | 0.8050170049 | $395,248 | $395,248 | $318.18 | | |
| | Total Tax Rate: | 8.2653911500 | | | | | |
| | | | | Taxes w/Current Exemptions: | $3,266.88 | | |
| | | | | Taxes w/o Exemptions: | $3,266.88 | | |
Improvement / Building
| Improvement #1: | Manufactured Home | State Code: | 11 | 1152.0 sqft | Value: | $219,248 |
| Bathrooms (#): | 2 (FULL) | Bedrooms (#): | 2 | | Exterior Wall: | PL/T1 | Floor Construction: | CONCR | | Foundation: | PO&BL | Heating/Cooling: | F/A | | Roof Cover: | COMP |   |   |
|
| | Type | Description | Class CD | Sub Class CD | Year Built | Area |
| | MA | Main Area | 5+ | MDBL | 1977 | 1152.0 |
| | MDECK | MH Deck | 5 | * | 1977 | 480.0 |
| | MENCL | MH Enclosure | 5 | * | 1977 | 240.0 |
| | SHED | Shed (Table Not Dep) | 5 | * | 1977 | 180.0 |
| | MSKIRT_WD | MH Skirting - Wood | 5 | * | 1977 | 144.0 |
| | SHED | Shed (Table Not Dep) | 5 | * | 1977 | 160.0 |
Sketch
Property Image
Land
| 1 | 5525-1155L | Village Area of Avg Wtr/Mtn View Lots | 0.0000 | 0.00 | 0.00 | 0.00 | 1.00 | $176,000 | $0 |
Roll Value History
| 2026 | N/A | N/A | N/A | N/A | N/A |
| 2025 | $219,248 | $176,000 | $0 | $395,248 | $395,248 |
| 2024 | $219,248 | $176,000 | $0 | $395,248 | $395,248 |
| 2023 | $204,787 | $162,750 | $0 | $367,537 | $367,537 |
| 2022 | $195,478 | $115,000 | $0 | $310,478 | $310,478 |
Deed and Sales History
| 1 | 04/27/2018 | SWD | Statutory Warranty Deed | STEVE C & VICKY L RATH | JAMES E & JOANNE M CLARKSON | | | $230,000.00 | 130049 | |
| 2 | 05/02/2017 | SWD | Statutory Warranty Deed | LAUREN L MCNICKLES | STEVE C & VICKY L RATH | | | $198,500.00 | 127676 | |
| 3 | 05/11/2012 | SWD | Statutory Warranty Deed | BELL, STEPHEN SR/NILAH R | STEPHENS, LAURIE L | 0 | 0 | $125,000.00 | 117632 | 0 |
| 4 | 06/27/2006 | SWD | Statutory Warranty Deed | BERETS, PEGGY | BELL SR, STEPHEN/NILAH | | | $136,000.00 | 107039 | 0 |
| 5 | 04/20/2005 | QCD | Quit Claim Deed | GRADY, ROBERT E | BERETS, PEGGY | | | $0.00 | 104122 | 0 |
| 6 | 12/12/1997 | SWD | Statutory Warranty Deed | PROFIT, JOSEPH H/JEANNE M | GRADY, PEGGY J/ROBERT E | 0 | 0 | $59,900.00 | 83502 | 0 |
Payout Agreement
| No payout information available.. |