Property
Account |
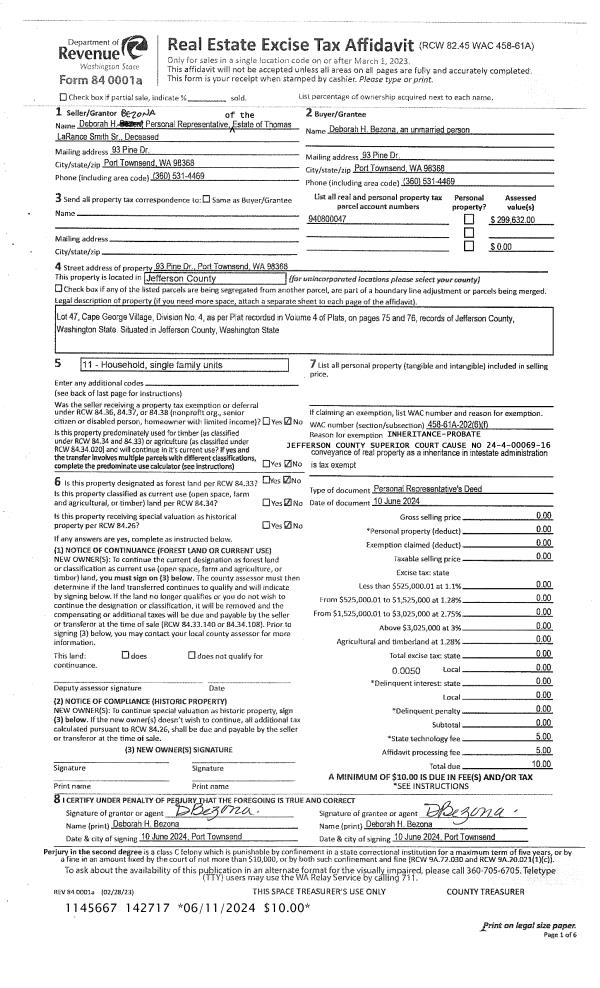
| Property ID: | 25993 | Abbreviated Legal Description: | CAPE GEORGE VILLAGE DIV 4 LOT 47 |
| Parcel # / Geo ID: | 940800047 | Agent Code: | |
| Type: | Real | | |
| Tax Area: | 0111 - 1-50F1E1H2L1 | Land Use Code | 11 |
| Open Space: | N | DFL | N |
| Historic Property: | N | Remodel Property: | N |
| Multi-Family Redevelopment: | N | | |
| Township: | 30N | Section: | 13 |
| Range: | 2W |
Location |
| Address: | 93 PINE DR PORT TOWNSEND, WA 98368 | Mapsco: | 018/008 |
| Neighborhood: | CAPE GEORGE VILLAGE DIV 1, 2, 3, 4 | Map ID: | |
| Neighborhood CD: | 5525 |
Owner |
| Name: | DEBORAH H BEZONA | Owner ID: | 110947 |
| Mailing Address: | 93 PINE DR PORT TOWNSEND, WA 98368-9469 | % Ownership: | 100.0000000000% |
| | | Exemptions: | |
Pay Tax Due
There is currently No Amount Due on this property.
Taxes and Assessment Details
Property Tax Information as of
03/11/2026
Click on "Statement Details" to expand or collapse a tax statement.
* Please enter a valid date ** Please enter a valid date *
Statement Details |
| | TOTAL: | $0.00 | $0.00 | $0.00 | $0.00 | $0.00 | $0.00 |
|
| | $0.00 | $0.00 | $0.00 | $0.00 | $0.00 | $0.00 |
Values
| (+) Improvement Homesite Value: | + | $178,815 | |
| (+) Improvement Non-Homesite Value: | + | $0 | |
| (+) Land Homesite Value: | + | $132,000 | |
| (+) Land Non-Homesite Value: | + | $0 | |
| (+) Curr Use (HS): | + | $0 | $0 |
| (+) Curr Use (NHS): | + | $0 | $0 |
| | | -------------------------- | |
| (=) Market Value: | = | $310,815 | |
| (–) Productivity Loss: | – | $0 | |
| | | -------------------------- | |
| (=) Subtotal: | = | $310,815 | |
| (+) Senior Appraised Value: | + | $0 | |
| (+) Non-Senior Appraised Value: | + | $310,815 | |
| | | -------------------------- | |
| (=) Total Appraised Value: | = | $310,815 | |
| (–) Senior Exemption Loss: | – | $0 | |
| (–) Exemption Loss: | – | $0 | |
| | | -------------------------- | |
| (=) Taxable Value: | = | $310,815 | |
Taxing Jurisdiction
| Owner: | DEBORAH H BEZONA | | |
| % Ownership: | 100.0000000000% | | |
| Total Value: | $310,815 | | |
| Tax Area: | 0111 - 1-50F1E1H2L1 |
| CE | COUNTY CURRENT EXPENSE | 0.9034619479 | $310,815 | $310,815 | $280.81 | | |
| CNTYDD | DEVELOPMENTAL DISABILITIES | 0.0052121823 | $310,815 | $310,815 | $1.62 | | |
| CNTYVET | VETERANS RELIEF | 0.0052777810 | $310,815 | $310,815 | $1.64 | | |
| MENTAL | MENTAL HEALTH | 0.0052121823 | $310,815 | $310,815 | $1.62 | | |
| ROADS | COUNTY ROADS | 0.7415066410 | $310,815 | $310,815 | $230.47 | | |
| ROADSCU | COUNTY ROADS TO CUR EXP | 0.0000000000 | $310,815 | $310,815 | $0.00 | | |
| HOSP2CASH | HOSP DIST #2 GENERAL | 0.0536075306 | $310,815 | $310,815 | $16.66 | | |
| SCH50BOND | SCHOOL DIST #50 BOND 2016 | 0.5377451389 | $310,815 | $310,815 | $167.14 | | |
| SCH50CP | SCHOOL DIST #50 CAP PROJ | 0.4573475088 | $310,815 | $310,815 | $142.15 | | |
| SCH50MO | SCHOOL DIST #50 EP & O | 0.8262822886 | $310,815 | $310,815 | $256.82 | | |
| CONSERVE | CONSERVATION FUTURES | 0.0275621078 | $310,815 | $310,815 | $8.57 | | |
| EMS1 | FIRE DIST #1 EMS | 0.4679948282 | $310,815 | $310,815 | $145.46 | | |
| FD1 | FIRE DIST #1 GENERAL | 1.2171942929 | $310,815 | $310,815 | $378.32 | | |
| LIB1 | LIBRARY DIST #1 GENERAL | 0.2868827388 | $310,815 | $310,815 | $89.17 | | |
| PORTPT | PORT OF PT GENERAL | 0.1134941229 | $310,815 | $310,815 | $35.28 | | |
| PORTPTIDD | PORT OF PT IDD 2019 | 0.2577346692 | $310,815 | $310,815 | $80.11 | | |
| PUD1 | PUD #1 GENERAL | 0.0597888892 | $310,815 | $310,815 | $18.58 | | |
| STATE | STATE SCHOOL PART 1 | 1.4940692947 | $310,815 | $310,815 | $464.38 | | |
| STATE2 | STATE SCHOOL PART 2 | 0.8050170049 | $310,815 | $310,815 | $250.21 | | |
| | Total Tax Rate: | 8.2653911500 | | | | | |
| | | | | Taxes w/Current Exemptions: | $2,569.01 | | |
| | | | | Taxes w/o Exemptions: | $2,569.01 | | |
Improvement / Building
| Improvement #1: | Manufactured Home | State Code: | 11 | 1404.0 sqft | Value: | $178,815 |
| Bathrooms (#): | 2 (FULL) | Bedrooms (#): | 3 | | Exterior Wall: | SI/ST | Floor Construction: | FRAME | | Foundation: | PO&BL | Heating/Cooling: | F/A | | Roof Cover: | COMP |   |   |
|
| | Type | Description | Class CD | Sub Class CD | Year Built | Area |
| | MA | Main Area | 5+ | MDBL | 1999 | 1404.0 |
| | MDECK | MH Deck | 5 | * | 1999 | 255.0 |
| | SHED | Shed (Table Not Dep) | 4 | * | 1999 | 152.0 |
| | MSKIRT_WD | MH Skirting - Wood | 5 | * | 1999 | 158.0 |
| | SHED | Shed (Table Not Dep) | 3 | * | 2017 | 192.0 |
Sketch
Property Image
Land
| 1 | 5525-1165L | Village Area of Fair Wtr/Mtn View Lots | 0.0000 | 0.00 | 0.00 | 0.00 | 1.00 | $132,000 | $0 |
Roll Value History
| 2026 | N/A | N/A | N/A | N/A | N/A |
| 2025 | $178,815 | $132,000 | $0 | $310,815 | $310,815 |
| 2024 | $178,815 | $132,000 | $0 | $310,815 | $310,815 |
| 2023 | $178,882 | $120,750 | $0 | $299,632 | $299,632 |
| 2022 | $170,751 | $95,000 | $0 | $265,751 | $265,751 |
Deed and Sales History
| 1 | 06/10/2024 | PRD | Personal Representatives Deed | THOMAS L SMITH SR | DEBORAH H BEZONA | | | | 142717 | |
| 2 | 08/02/2005 | SWD | Statutory Warranty Deed | KELVY, ROBERT M & PATRICI | SMITH, THOMAS L SR | 0 | 0 | $189,000.00 | 104460 | 0 |
| 3 | 01/27/1999 | SWD | Statutory Warranty Deed | THOMAS, GEORGE L/KATHERIN | KELVY, ROBERT M/PATRICIA A | 0 | 0 | $83,000.00 | 86216 | 0 |
| 4 | 08/28/1997 | SWD | Statutory Warranty Deed | BENEDICT, STEPHEN W/EST | THOMAS, GEORGE L/KATHERINE B | 0 | 0 | $13,000.00 | 82640 | 0 |
Payout Agreement
| No payout information available.. |