Property
Account |
| Property ID: | 26004 | Abbreviated Legal Description: | CAPE GEORGE VILLAGE DIV 4 LOT 59 |
| Parcel # / Geo ID: | 940800058 | Agent Code: | |
| Type: | Real | | |
| Tax Area: | 0111 - 1-50F1E1H2L1 | Land Use Code | 11 |
| Open Space: | N | DFL | N |
| Historic Property: | N | Remodel Property: | N |
| Multi-Family Redevelopment: | N | | |
| Township: | 30N | Section: | 13 |
| Range: | 2W |
Location |
| Address: | 110 ALDER DR PORT TOWNSEND, WA 98368 | Mapsco: | 018/020 |
| Neighborhood: | CAPE GEORGE VILLAGE DIV 1, 2, 3, 4 | Map ID: | |
| Neighborhood CD: | 5525 |
Owner |
| Name: | DANIEL J WALVATNE | Owner ID: | 112968 |
| Mailing Address: | 110 ALDER DR PORT TOWNSEND, WA 98368-9401 | % Ownership: | 100.0000000000% |
| | | Exemptions: | |
Pay Tax Due
Select the appropriate checkbox next to the year to be paid. Multiple years may be selected.
*Convenience Fee not included
Taxes and Assessment Details
Property Tax Information as of
03/11/2026
Click on "Statement Details" to expand or collapse a tax statement.
* Please enter a valid date ** Please enter a valid date *
Statement Details |
| 2026 | 15383 | STATE - STATE LEVY (SCHOOL) | $400.40 | $400.38 | $0.00 | $0.00 | $0.00 | $800.78 |
| 2026 | 15383 | COUNTY - COUNTY LEVIES (CE, DD, VET, MH) | $160.08 | $160.08 | $0.00 | $0.00 | $0.00 | $320.16 |
| 2026 | 15383 | CONSERVE - CONSERVATION FUTURES | $4.80 | $4.80 | $0.00 | $0.00 | $0.00 | $9.60 |
| 2026 | 15383 | COROADS - COUNTY ROADS (ROADS, DIV TO CE) | $129.14 | $129.13 | $0.00 | $0.00 | $0.00 | $258.27 |
| 2026 | 15383 | PORTPT - PORT DISTRICT | $64.66 | $64.64 | $0.00 | $0.00 | $0.00 | $129.30 |
| 2026 | 15383 | PUD1 - PUD #1 | $10.41 | $10.41 | $0.00 | $0.00 | $0.00 | $20.82 |
| 2026 | 15383 | LIB1 - LIBRARY DIST #1 | $49.96 | $49.96 | $0.00 | $0.00 | $0.00 | $99.92 |
| 2026 | 15383 | HD2 - HOSP DIST #2 | $9.34 | $9.33 | $0.00 | $0.00 | $0.00 | $18.67 |
| 2026 | 15383 | SD50 - SCHOOL DIST #50 | $317.20 | $317.20 | $0.00 | $0.00 | $0.00 | $634.40 |
| 2026 | 15383 | FD1 - FIRE DISTRICT #1 | $211.98 | $211.98 | $0.00 | $0.00 | $0.00 | $423.96 |
| 2026 | 15383 | EMS1 - FIRE DIST #1 EMS | $81.51 | $81.50 | $0.00 | $0.00 | $0.00 | $163.01 |
| 2026 | 15383 | JCCD - JC Conservation District | $2.55 | $2.55 | $0.00 | $0.00 | $0.00 | $5.10 |
| 2026 | 15383 | NWA - Noxious Weed Assessment | $2.98 | $2.97 | $0.00 | $0.00 | $0.00 | $5.95 |
| 2026 | 15383 | OSS - On Site Septic | $23.10 | $23.10 | $0.00 | $0.00 | $0.00 | $46.20 |
| 2026 | 15383 | WAT - Clean Water District | $13.00 | $13.00 | $0.00 | $0.00 | $0.00 | $26.00 |
| 2026 | 15383 | TOTAL: | $1481.11 | $1481.03 | $0.00 | $0.00 | $0.00 | $2962.14 |
|
| 2026 | 15383 | $1481.11 | $1481.03 | $0.00 | $0.00 | $0.00 | $2962.14 |
Statement Details |
| 2025 | 15435 | STATE - STATE LEVY (SCHOOL) | $417.63 | $417.62 | $0.00 | $0.00 | $835.25 | $0.00 |
| 2025 | 15435 | COUNTY - COUNTY LEVIES (CE, DD, VET, MH) | $164.23 | $164.23 | $0.00 | $0.00 | $328.46 | $0.00 |
| 2025 | 15435 | CONSERVE - CONSERVATION FUTURES | $4.93 | $4.92 | $0.00 | $0.00 | $9.85 | $0.00 |
| 2025 | 15435 | COROADS - COUNTY ROADS (ROADS, DIV TO CE) | $131.58 | $131.57 | $0.00 | $0.00 | $263.15 | $0.00 |
| 2025 | 15435 | PORTPT - PORT DISTRICT | $67.02 | $67.01 | $0.00 | $0.00 | $134.03 | $0.00 |
| 2025 | 15435 | PUD1 - PUD #1 | $10.75 | $10.74 | $0.00 | $0.00 | $21.49 | $0.00 |
| 2025 | 15435 | LIB1 - LIBRARY DIST #1 | $50.91 | $50.90 | $0.00 | $0.00 | $101.81 | $0.00 |
| 2025 | 15435 | HD2 - HOSP DIST #2 | $9.58 | $9.58 | $0.00 | $0.00 | $19.16 | $0.00 |
| 2025 | 15435 | SD50 - SCHOOL DIST #50 | $305.21 | $305.21 | $0.00 | $0.00 | $610.42 | $0.00 |
| 2025 | 15435 | FD1 - FIRE DISTRICT #1 | $216.72 | $216.71 | $0.00 | $0.00 | $433.43 | $0.00 |
| 2025 | 15435 | EMS1 - FIRE DIST #1 EMS | $83.36 | $83.35 | $0.00 | $0.00 | $166.71 | $0.00 |
| 2025 | 15435 | JCCD - JC Conservation District | $2.55 | $2.55 | $0.00 | $0.00 | $5.10 | $0.00 |
| 2025 | 15435 | NWA - Noxious Weed Assessment | $2.15 | $2.15 | $0.00 | $0.00 | $4.30 | $0.00 |
| 2025 | 15435 | OSS - On Site Septic | $21.50 | $21.50 | $0.00 | $0.00 | $43.00 | $0.00 |
| 2025 | 15435 | WAT - Clean Water District | $13.00 | $13.00 | $0.00 | $0.00 | $26.00 | $0.00 |
| 2025 | 15435 | TOTAL: | $1501.12 | $1501.04 | $0.00 | $0.00 | $3002.16 | $0.00 |
|
| 2025 | 15435 | $1501.12 | $1501.04 | $0.00 | $0.00 | $3002.16 | $0.00 |
Statement Details |
| 2024 | 15466 | STATE - STATE LEVY (SCHOOL) | $373.78 | $373.77 | $0.00 | $0.00 | $747.55 | $0.00 |
| 2024 | 15466 | COUNTY - COUNTY LEVIES (CE, DD, VET, MH) | $159.96 | $159.93 | $0.00 | $0.00 | $319.89 | $0.00 |
| 2024 | 15466 | CONSERVE - CONSERVATION FUTURES | $4.80 | $4.79 | $0.00 | $0.00 | $9.59 | $0.00 |
| 2024 | 15466 | COROADS - COUNTY ROADS (ROADS, DIV TO CE) | $128.71 | $128.69 | $0.00 | $0.00 | $257.40 | $0.00 |
| 2024 | 15466 | PORTPT - PORT DISTRICT | $66.07 | $66.06 | $0.00 | $0.00 | $132.13 | $0.00 |
| 2024 | 15466 | PUD1 - PUD #1 | $10.51 | $10.50 | $0.00 | $0.00 | $21.01 | $0.00 |
| 2024 | 15466 | LIB1 - LIBRARY DIST #1 | $49.80 | $49.79 | $0.00 | $0.00 | $99.59 | $0.00 |
| 2024 | 15466 | HD2 - HOSP DIST #2 | $9.33 | $9.33 | $0.00 | $0.00 | $18.66 | $0.00 |
| 2024 | 15466 | SD50 - SCHOOL DIST #50 | $302.40 | $302.39 | $0.00 | $0.00 | $604.79 | $0.00 |
| 2024 | 15466 | FD1 - FIRE DISTRICT #1 | $211.48 | $211.48 | $0.00 | $0.00 | $422.96 | $0.00 |
| 2024 | 15466 | EMS1 - FIRE DIST #1 EMS | $80.78 | $80.77 | $0.00 | $0.00 | $161.55 | $0.00 |
| 2024 | 15466 | JCCD - JC Conservation District | $2.55 | $2.55 | $0.00 | $0.00 | $5.10 | $0.00 |
| 2024 | 15466 | NWA - Noxious Weed Assessment | $2.15 | $2.15 | $0.00 | $0.00 | $4.30 | $0.00 |
| 2024 | 15466 | OSS - On Site Septic | $21.00 | $21.00 | $0.00 | $0.00 | $42.00 | $0.00 |
| 2024 | 15466 | WAT - Clean Water District | $12.50 | $12.50 | $0.00 | $0.00 | $25.00 | $0.00 |
| 2024 | 15466 | TOTAL: | $1435.82 | $1435.70 | $0.00 | $0.00 | $2871.52 | $0.00 |
|
| 2024 | 15466 | $1435.82 | $1435.70 | $0.00 | $0.00 | $2871.52 | $0.00 |
Statement Details |
| 2023 | 15490 | STATE - STATE LEVY (SCHOOL) | $339.19 | $339.18 | $0.00 | $0.00 | $678.37 | $0.00 |
| 2023 | 15490 | COUNTY - COUNTY LEVIES (CE, DD, VET, MH) | $148.01 | $148.01 | $0.00 | $0.00 | $296.02 | $0.00 |
| 2023 | 15490 | CONSERVE - CONSERVATION FUTURES | $4.44 | $4.44 | $0.00 | $0.00 | $8.88 | $0.00 |
| 2023 | 15490 | COROADS - COUNTY ROADS (ROADS, DIV TO CE) | $119.75 | $119.75 | $0.00 | $0.00 | $239.50 | $0.00 |
| 2023 | 15490 | PORTPT - PORT DISTRICT | $62.36 | $62.34 | $0.00 | $0.00 | $124.70 | $0.00 |
| 2023 | 15490 | PUD1 - PUD #1 | $9.81 | $9.81 | $0.00 | $0.00 | $19.62 | $0.00 |
| 2023 | 15490 | LIB1 - LIBRARY DIST #1 | $46.33 | $46.33 | $0.00 | $0.00 | $92.66 | $0.00 |
| 2023 | 15490 | HD2 - HOSP DIST #2 | $8.64 | $8.63 | $0.00 | $0.00 | $17.27 | $0.00 |
| 2023 | 15490 | SD50 - SCHOOL DIST #50 | $269.16 | $269.15 | $0.00 | $0.00 | $538.31 | $0.00 |
| 2023 | 15490 | FD1 - FIRE DISTRICT #1 | $121.93 | $121.93 | $0.00 | $0.00 | $243.86 | $0.00 |
| 2023 | 15490 | EMS1 - FIRE DIST #1 EMS | $51.87 | $51.87 | $0.00 | $0.00 | $103.74 | $0.00 |
| 2023 | 15490 | JCCD - JC Conservation District | $2.55 | $2.55 | $0.00 | $0.00 | $5.10 | $0.00 |
| 2023 | 15490 | NWA - Noxious Weed Assessment | $2.15 | $2.15 | $0.00 | $0.00 | $4.30 | $0.00 |
| 2023 | 15490 | OSS - On Site Septic | $20.50 | $20.50 | $0.00 | $0.00 | $41.00 | $0.00 |
| 2023 | 15490 | WAT - Clean Water District | $12.00 | $12.00 | $0.00 | $0.00 | $24.00 | $0.00 |
| 2023 | 15490 | TOTAL: | $1218.69 | $1218.64 | $0.00 | $0.00 | $2437.33 | $0.00 |
|
| 2023 | 15490 | $1218.69 | $1218.64 | $0.00 | $0.00 | $2437.33 | $0.00 |
Values
| (+) Improvement Homesite Value: | + | $216,307 | |
| (+) Improvement Non-Homesite Value: | + | $0 | |
| (+) Land Homesite Value: | + | $132,000 | |
| (+) Land Non-Homesite Value: | + | $0 | |
| (+) Curr Use (HS): | + | $0 | $0 |
| (+) Curr Use (NHS): | + | $0 | $0 |
| | | -------------------------- | |
| (=) Market Value: | = | $348,307 | |
| (–) Productivity Loss: | – | $0 | |
| | | -------------------------- | |
| (=) Subtotal: | = | $348,307 | |
| (+) Senior Appraised Value: | + | $0 | |
| (+) Non-Senior Appraised Value: | + | $348,307 | |
| | | -------------------------- | |
| (=) Total Appraised Value: | = | $348,307 | |
| (–) Senior Exemption Loss: | – | $0 | |
| (–) Exemption Loss: | – | $0 | |
| | | -------------------------- | |
| (=) Taxable Value: | = | $348,307 | |
Taxing Jurisdiction
| Owner: | DANIEL J WALVATNE | | |
| % Ownership: | 100.0000000000% | | |
| Total Value: | $348,307 | | |
| Tax Area: | 0111 - 1-50F1E1H2L1 |
| CE | COUNTY CURRENT EXPENSE | 0.9034619479 | $348,307 | $348,307 | $314.68 | | |
| CNTYDD | DEVELOPMENTAL DISABILITIES | 0.0052121823 | $348,307 | $348,307 | $1.82 | | |
| CNTYVET | VETERANS RELIEF | 0.0052777810 | $348,307 | $348,307 | $1.84 | | |
| MENTAL | MENTAL HEALTH | 0.0052121823 | $348,307 | $348,307 | $1.82 | | |
| ROADS | COUNTY ROADS | 0.7415066410 | $348,307 | $348,307 | $258.27 | | |
| ROADSCU | COUNTY ROADS TO CUR EXP | 0.0000000000 | $348,307 | $348,307 | $0.00 | | |
| HOSP2CASH | HOSP DIST #2 GENERAL | 0.0536075306 | $348,307 | $348,307 | $18.67 | | |
| SCH50BOND | SCHOOL DIST #50 BOND 2016 | 0.5377451389 | $348,307 | $348,307 | $187.30 | | |
| SCH50CP | SCHOOL DIST #50 CAP PROJ | 0.4573475088 | $348,307 | $348,307 | $159.30 | | |
| SCH50MO | SCHOOL DIST #50 EP & O | 0.8262822886 | $348,307 | $348,307 | $287.80 | | |
| CONSERVE | CONSERVATION FUTURES | 0.0275621078 | $348,307 | $348,307 | $9.60 | | |
| EMS1 | FIRE DIST #1 EMS | 0.4679948282 | $348,307 | $348,307 | $163.01 | | |
| FD1 | FIRE DIST #1 GENERAL | 1.2171942929 | $348,307 | $348,307 | $423.96 | | |
| LIB1 | LIBRARY DIST #1 GENERAL | 0.2868827388 | $348,307 | $348,307 | $99.92 | | |
| PORTPT | PORT OF PT GENERAL | 0.1134941229 | $348,307 | $348,307 | $39.53 | | |
| PORTPTIDD | PORT OF PT IDD 2019 | 0.2577346692 | $348,307 | $348,307 | $89.77 | | |
| PUD1 | PUD #1 GENERAL | 0.0597888892 | $348,307 | $348,307 | $20.82 | | |
| STATE | STATE SCHOOL PART 1 | 1.4940692947 | $348,307 | $348,307 | $520.39 | | |
| STATE2 | STATE SCHOOL PART 2 | 0.8050170049 | $348,307 | $348,307 | $280.39 | | |
| | Total Tax Rate: | 8.2653911500 | | | | | |
| | | | | Taxes w/Current Exemptions: | $2,878.89 | | |
| | | | | Taxes w/o Exemptions: | $2,878.89 | | |
Improvement / Building
| Improvement #1: | Manufactured Home | State Code: | 11 | 1248.0 sqft | Value: | $216,307 |
| Bathrooms (#): | 2 (FULL) | Bedrooms (#): | 2 | | Exterior Wall: | METAL | Floor Construction: | FRAME | | Foundation: | PO&BL | Heating/Cooling: | F/A | | Roof Cover: | BLTUP |   |   |
|
| | Type | Description | Class CD | Sub Class CD | Year Built | Area |
| | MA | Main Area | 5- | MFH | 1982 | 1248.0 |
| | MPATIO | MH Patio | 5 | * | 1982 | 150.0 |
| | MDECK | MH Deck | 5 | * | 1982 | 72.0 |
| | MENCL | MH Enclosure | 5 | * | 1982 | 280.0 |
| | MDET | MH Detached Garage | 5 | MDBL | 1982 | 440.0 |
| | CARPTF | Carport W/Floor | 5 | * | 1982 | 240.0 |
| | SHED | Shed (Table Not Dep) | 5 | * | 1982 | 120.0 |
| | MSKIRT_WD | MH Skirting - Wood | 5 | * | 1982 | 152.0 |
| | CONCD | Concrete Drive | 5 | * | 1982 | 540.0 |
Sketch
Property Image
Land
| 1 | 5525-1165L | | 0.0000 | 0.00 | 0.00 | 0.00 | 1.00 | $132,000 | $0 |
Roll Value History
| 2026 | N/A | N/A | N/A | N/A | N/A |
| 2025 | $216,307 | $132,000 | $0 | $348,307 | $348,307 |
| 2024 | $216,307 | $132,000 | $0 | $348,307 | $348,307 |
| 2023 | $202,359 | $120,750 | $0 | $323,109 | $323,109 |
| 2022 | $193,161 | $95,000 | $0 | $288,161 | $288,161 |
Deed and Sales History
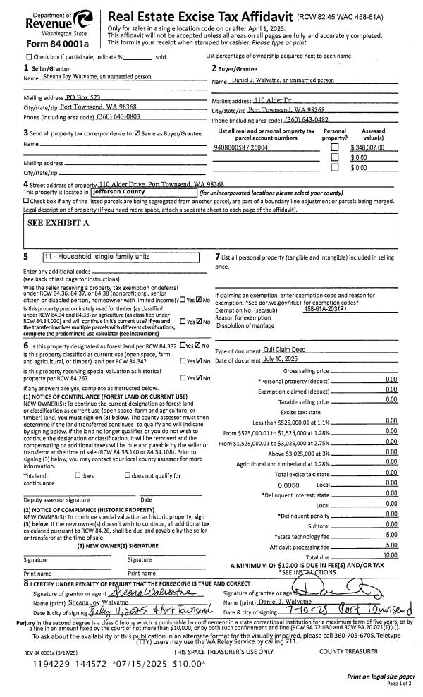
| 1 | 07/10/2025 | QCD | Quit Claim Deed | SHEANA J WALVATNE | DANIEL J WALVATNE | | | | 144572 | |
| 2 | 02/03/2021 | SWD | Statutory Warranty Deed | FREDERICK D ESSON | SHEANA J & DANIEL J WALVATNE | | | $258,000.00 | 136087 | |
| 3 | 06/23/2008 | QCD | Quit Claim Deed | PENCZAK, SALLY ANN | ESSON, FREDERICK | | | $0.00 | 111458 | 0 |
| 4 | 10/02/2001 | SWD | Statutory Warranty Deed | ERICKSON, KARL T | ESSON, FREDERICK D/SALLY A | 0 | 0 | $82,000.00 | 93260 | 0 |
Payout Agreement
| No payout information available.. |