Property
Account |
| Property ID: | 26008 | Abbreviated Legal Description: | CAPE GEORGE VILLAGE DIV 4 LOTS 66 |
| Parcel # / Geo ID: | 940800062 | Agent Code: | |
| Type: | Real | | |
| Tax Area: | 0111 - 1-50F1E1H2L1 | Land Use Code | 11 |
| Open Space: | N | DFL | N |
| Historic Property: | N | Remodel Property: | N |
| Multi-Family Redevelopment: | N | | |
| Township: | 30N | Section: | 13 |
| Range: | 2W |
Location |
| Address: | 41 ALDER DR PORT TOWNSEND, WA 98368 | Mapsco: | 018/025 |
| Neighborhood: | CAPE GEORGE VILLAGE DIV 1, 2, 3, 4 | Map ID: | |
| Neighborhood CD: | 5525 |
Owner |
| Name: | STORI LLC | Owner ID: | 95160 |
| Mailing Address: | PO BOX 815 PORT TOWNSEND, WA 98368-0815 | % Ownership: | 100.0000000000% |
| | | Exemptions: | |
Pay Tax Due
Select the appropriate checkbox next to the year to be paid. Multiple years may be selected.
*Convenience Fee not included
Taxes and Assessment Details
Property Tax Information as of
03/10/2026
Click on "Statement Details" to expand or collapse a tax statement.
* Please enter a valid date ** Please enter a valid date *
Statement Details |
| 2026 | 15387 | STATE - STATE LEVY (SCHOOL) | $442.98 | $442.96 | $0.00 | $0.00 | $0.00 | $885.94 |
| 2026 | 15387 | COUNTY - COUNTY LEVIES (CE, DD, VET, MH) | $177.11 | $177.08 | $0.00 | $0.00 | $0.00 | $354.19 |
| 2026 | 15387 | CONSERVE - CONSERVATION FUTURES | $5.31 | $5.31 | $0.00 | $0.00 | $0.00 | $10.62 |
| 2026 | 15387 | COROADS - COUNTY ROADS (ROADS, DIV TO CE) | $142.87 | $142.86 | $0.00 | $0.00 | $0.00 | $285.73 |
| 2026 | 15387 | PORTPT - PORT DISTRICT | $71.53 | $71.52 | $0.00 | $0.00 | $0.00 | $143.05 |
| 2026 | 15387 | PUD1 - PUD #1 | $11.52 | $11.52 | $0.00 | $0.00 | $0.00 | $23.04 |
| 2026 | 15387 | LIB1 - LIBRARY DIST #1 | $55.28 | $55.27 | $0.00 | $0.00 | $0.00 | $110.55 |
| 2026 | 15387 | HD2 - HOSP DIST #2 | $10.33 | $10.33 | $0.00 | $0.00 | $0.00 | $20.66 |
| 2026 | 15387 | SD50 - SCHOOL DIST #50 | $350.93 | $350.93 | $0.00 | $0.00 | $0.00 | $701.86 |
| 2026 | 15387 | FD1 - FIRE DISTRICT #1 | $234.52 | $234.52 | $0.00 | $0.00 | $0.00 | $469.04 |
| 2026 | 15387 | EMS1 - FIRE DIST #1 EMS | $90.17 | $90.17 | $0.00 | $0.00 | $0.00 | $180.34 |
| 2026 | 15387 | FP - DNR Forest Fire Protection Assmt | $8.50 | $8.50 | $0.00 | $0.00 | $0.00 | $17.00 |
| 2026 | 15387 | FPLCA - DNR Landowner Contingency Assmt | $3.00 | $3.00 | $0.00 | $0.00 | $0.00 | $6.00 |
| 2026 | 15387 | JCCD - JC Conservation District | $2.55 | $2.55 | $0.00 | $0.00 | $0.00 | $5.10 |
| 2026 | 15387 | NWA - Noxious Weed Assessment | $2.98 | $2.97 | $0.00 | $0.00 | $0.00 | $5.95 |
| 2026 | 15387 | OSS - On Site Septic | $23.10 | $23.10 | $0.00 | $0.00 | $0.00 | $46.20 |
| 2026 | 15387 | WAT - Clean Water District | $13.00 | $13.00 | $0.00 | $0.00 | $0.00 | $26.00 |
| 2026 | 15387 | FP ADMIN - FP ADMIN | $0.50 | $0.00 | $0.00 | $0.00 | $0.00 | $0.50 |
| 2026 | 15387 | TOTAL: | $1646.18 | $1645.59 | $0.00 | $0.00 | $0.00 | $3291.77 |
|
| 2026 | 15387 | $1646.18 | $1645.59 | $0.00 | $0.00 | $0.00 | $3291.77 |
Statement Details |
| 2025 | 15439 | STATE - STATE LEVY (SCHOOL) | $462.04 | $462.03 | $0.00 | $0.00 | $924.07 | $0.00 |
| 2025 | 15439 | COUNTY - COUNTY LEVIES (CE, DD, VET, MH) | $181.70 | $181.69 | $0.00 | $0.00 | $363.39 | $0.00 |
| 2025 | 15439 | CONSERVE - CONSERVATION FUTURES | $5.45 | $5.45 | $0.00 | $0.00 | $10.90 | $0.00 |
| 2025 | 15439 | COROADS - COUNTY ROADS (ROADS, DIV TO CE) | $145.57 | $145.56 | $0.00 | $0.00 | $291.13 | $0.00 |
| 2025 | 15439 | PORTPT - PORT DISTRICT | $74.15 | $74.13 | $0.00 | $0.00 | $148.28 | $0.00 |
| 2025 | 15439 | PUD1 - PUD #1 | $11.89 | $11.89 | $0.00 | $0.00 | $23.78 | $0.00 |
| 2025 | 15439 | LIB1 - LIBRARY DIST #1 | $56.32 | $56.31 | $0.00 | $0.00 | $112.63 | $0.00 |
| 2025 | 15439 | HD2 - HOSP DIST #2 | $10.60 | $10.60 | $0.00 | $0.00 | $21.20 | $0.00 |
| 2025 | 15439 | SD50 - SCHOOL DIST #50 | $337.67 | $337.66 | $0.00 | $0.00 | $675.33 | $0.00 |
| 2025 | 15439 | FD1 - FIRE DISTRICT #1 | $239.76 | $239.76 | $0.00 | $0.00 | $479.52 | $0.00 |
| 2025 | 15439 | EMS1 - FIRE DIST #1 EMS | $92.22 | $92.22 | $0.00 | $0.00 | $184.44 | $0.00 |
| 2025 | 15439 | FP - DNR Forest Fire Protection Assmt | $8.50 | $8.50 | $0.00 | $0.00 | $17.00 | $0.00 |
| 2025 | 15439 | FPLCA - DNR Landowner Contingency Assmt | $3.00 | $3.00 | $0.00 | $0.00 | $6.00 | $0.00 |
| 2025 | 15439 | JCCD - JC Conservation District | $2.55 | $2.55 | $0.00 | $0.00 | $5.10 | $0.00 |
| 2025 | 15439 | NWA - Noxious Weed Assessment | $2.15 | $2.15 | $0.00 | $0.00 | $4.30 | $0.00 |
| 2025 | 15439 | OSS - On Site Septic | $21.50 | $21.50 | $0.00 | $0.00 | $43.00 | $0.00 |
| 2025 | 15439 | WAT - Clean Water District | $13.00 | $13.00 | $0.00 | $0.00 | $26.00 | $0.00 |
| 2025 | 15439 | FP ADMIN - FP ADMIN | $0.50 | $0.00 | $0.00 | $0.00 | $0.50 | $0.00 |
| 2025 | 15439 | TOTAL: | $1668.57 | $1668.00 | $0.00 | $0.00 | $3336.57 | $0.00 |
|
| 2025 | 15439 | $1668.57 | $1668.00 | $0.00 | $0.00 | $3336.57 | $0.00 |
Statement Details |
| 2024 | 15470 | STATE - STATE LEVY (SCHOOL) | $373.83 | $373.83 | $0.00 | $0.00 | $747.66 | $0.00 |
| 2024 | 15470 | COUNTY - COUNTY LEVIES (CE, DD, VET, MH) | $159.99 | $159.95 | $0.00 | $0.00 | $319.94 | $0.00 |
| 2024 | 15470 | CONSERVE - CONSERVATION FUTURES | $4.80 | $4.79 | $0.00 | $0.00 | $9.59 | $0.00 |
| 2024 | 15470 | COROADS - COUNTY ROADS (ROADS, DIV TO CE) | $128.73 | $128.71 | $0.00 | $0.00 | $257.44 | $0.00 |
| 2024 | 15470 | PORTPT - PORT DISTRICT | $66.07 | $66.07 | $0.00 | $0.00 | $132.14 | $0.00 |
| 2024 | 15470 | PUD1 - PUD #1 | $10.51 | $10.50 | $0.00 | $0.00 | $21.01 | $0.00 |
| 2024 | 15470 | LIB1 - LIBRARY DIST #1 | $49.80 | $49.80 | $0.00 | $0.00 | $99.60 | $0.00 |
| 2024 | 15470 | HD2 - HOSP DIST #2 | $9.34 | $9.33 | $0.00 | $0.00 | $18.67 | $0.00 |
| 2024 | 15470 | SD50 - SCHOOL DIST #50 | $302.46 | $302.44 | $0.00 | $0.00 | $604.90 | $0.00 |
| 2024 | 15470 | FD1 - FIRE DISTRICT #1 | $211.52 | $211.51 | $0.00 | $0.00 | $423.03 | $0.00 |
| 2024 | 15470 | EMS1 - FIRE DIST #1 EMS | $80.79 | $80.79 | $0.00 | $0.00 | $161.58 | $0.00 |
| 2024 | 15470 | JCCD - JC Conservation District | $2.55 | $2.55 | $0.00 | $0.00 | $5.10 | $0.00 |
| 2024 | 15470 | NWA - Noxious Weed Assessment | $2.15 | $2.15 | $0.00 | $0.00 | $4.30 | $0.00 |
| 2024 | 15470 | OSS - On Site Septic | $21.00 | $21.00 | $0.00 | $0.00 | $42.00 | $0.00 |
| 2024 | 15470 | WAT - Clean Water District | $12.50 | $12.50 | $0.00 | $0.00 | $25.00 | $0.00 |
| 2024 | 15470 | TOTAL: | $1436.04 | $1435.92 | $0.00 | $0.00 | $2871.96 | $0.00 |
|
| 2024 | 15470 | $1436.04 | $1435.92 | $0.00 | $0.00 | $2871.96 | $0.00 |
Statement Details |
| 2023 | 15494 | STATE - STATE LEVY (SCHOOL) | $339.25 | $339.24 | $0.00 | $0.00 | $678.49 | $0.00 |
| 2023 | 15494 | COUNTY - COUNTY LEVIES (CE, DD, VET, MH) | $148.04 | $148.03 | $0.00 | $0.00 | $296.07 | $0.00 |
| 2023 | 15494 | CONSERVE - CONSERVATION FUTURES | $4.44 | $4.44 | $0.00 | $0.00 | $8.88 | $0.00 |
| 2023 | 15494 | COROADS - COUNTY ROADS (ROADS, DIV TO CE) | $119.78 | $119.77 | $0.00 | $0.00 | $239.55 | $0.00 |
| 2023 | 15494 | PORTPT - PORT DISTRICT | $62.36 | $62.36 | $0.00 | $0.00 | $124.72 | $0.00 |
| 2023 | 15494 | PUD1 - PUD #1 | $9.82 | $9.81 | $0.00 | $0.00 | $19.63 | $0.00 |
| 2023 | 15494 | LIB1 - LIBRARY DIST #1 | $46.34 | $46.34 | $0.00 | $0.00 | $92.68 | $0.00 |
| 2023 | 15494 | HD2 - HOSP DIST #2 | $8.64 | $8.63 | $0.00 | $0.00 | $17.27 | $0.00 |
| 2023 | 15494 | SD50 - SCHOOL DIST #50 | $269.21 | $269.19 | $0.00 | $0.00 | $538.40 | $0.00 |
| 2023 | 15494 | FD1 - FIRE DISTRICT #1 | $121.95 | $121.95 | $0.00 | $0.00 | $243.90 | $0.00 |
| 2023 | 15494 | EMS1 - FIRE DIST #1 EMS | $51.88 | $51.87 | $0.00 | $0.00 | $103.75 | $0.00 |
| 2023 | 15494 | JCCD - JC Conservation District | $2.55 | $2.55 | $0.00 | $0.00 | $5.10 | $0.00 |
| 2023 | 15494 | NWA - Noxious Weed Assessment | $2.15 | $2.15 | $0.00 | $0.00 | $4.30 | $0.00 |
| 2023 | 15494 | OSS - On Site Septic | $20.50 | $20.50 | $0.00 | $0.00 | $41.00 | $0.00 |
| 2023 | 15494 | WAT - Clean Water District | $12.00 | $12.00 | $0.00 | $0.00 | $24.00 | $0.00 |
| 2023 | 15494 | TOTAL: | $1218.91 | $1218.83 | $0.00 | $0.00 | $2437.74 | $0.00 |
|
| 2023 | 15494 | $1218.91 | $1218.83 | $0.00 | $0.00 | $2437.74 | $0.00 |
Values
| (+) Improvement Homesite Value: | + | $253,343 | |
| (+) Improvement Non-Homesite Value: | + | $0 | |
| (+) Land Homesite Value: | + | $132,000 | |
| (+) Land Non-Homesite Value: | + | $0 | |
| (+) Curr Use (HS): | + | $0 | $0 |
| (+) Curr Use (NHS): | + | $0 | $0 |
| | | -------------------------- | |
| (=) Market Value: | = | $385,343 | |
| (–) Productivity Loss: | – | $0 | |
| | | -------------------------- | |
| (=) Subtotal: | = | $385,343 | |
| (+) Senior Appraised Value: | + | $0 | |
| (+) Non-Senior Appraised Value: | + | $385,343 | |
| | | -------------------------- | |
| (=) Total Appraised Value: | = | $385,343 | |
| (–) Senior Exemption Loss: | – | $0 | |
| (–) Exemption Loss: | – | $0 | |
| | | -------------------------- | |
| (=) Taxable Value: | = | $385,343 | |
Taxing Jurisdiction
| Owner: | STORI LLC | | |
| % Ownership: | 100.0000000000% | | |
| Total Value: | $385,343 | | |
| Tax Area: | 0111 - 1-50F1E1H2L1 |
| CE | COUNTY CURRENT EXPENSE | 0.9034619479 | $385,343 | $385,343 | $348.14 | | |
| CNTYDD | DEVELOPMENTAL DISABILITIES | 0.0052121823 | $385,343 | $385,343 | $2.01 | | |
| CNTYVET | VETERANS RELIEF | 0.0052777810 | $385,343 | $385,343 | $2.03 | | |
| MENTAL | MENTAL HEALTH | 0.0052121823 | $385,343 | $385,343 | $2.01 | | |
| ROADS | COUNTY ROADS | 0.7415066410 | $385,343 | $385,343 | $285.73 | | |
| ROADSCU | COUNTY ROADS TO CUR EXP | 0.0000000000 | $385,343 | $385,343 | $0.00 | | |
| HOSP2CASH | HOSP DIST #2 GENERAL | 0.0536075306 | $385,343 | $385,343 | $20.66 | | |
| SCH50BOND | SCHOOL DIST #50 BOND 2016 | 0.5377451389 | $385,343 | $385,343 | $207.22 | | |
| SCH50CP | SCHOOL DIST #50 CAP PROJ | 0.4573475088 | $385,343 | $385,343 | $176.24 | | |
| SCH50MO | SCHOOL DIST #50 EP & O | 0.8262822886 | $385,343 | $385,343 | $318.40 | | |
| CONSERVE | CONSERVATION FUTURES | 0.0275621078 | $385,343 | $385,343 | $10.62 | | |
| EMS1 | FIRE DIST #1 EMS | 0.4679948282 | $385,343 | $385,343 | $180.34 | | |
| FD1 | FIRE DIST #1 GENERAL | 1.2171942929 | $385,343 | $385,343 | $469.04 | | |
| LIB1 | LIBRARY DIST #1 GENERAL | 0.2868827388 | $385,343 | $385,343 | $110.55 | | |
| PORTPT | PORT OF PT GENERAL | 0.1134941229 | $385,343 | $385,343 | $43.73 | | |
| PORTPTIDD | PORT OF PT IDD 2019 | 0.2577346692 | $385,343 | $385,343 | $99.32 | | |
| PUD1 | PUD #1 GENERAL | 0.0597888892 | $385,343 | $385,343 | $23.04 | | |
| STATE | STATE SCHOOL PART 1 | 1.4940692947 | $385,343 | $385,343 | $575.73 | | |
| STATE2 | STATE SCHOOL PART 2 | 0.8050170049 | $385,343 | $385,343 | $310.21 | | |
| | Total Tax Rate: | 8.2653911500 | | | | | |
| | | | | Taxes w/Current Exemptions: | $3,185.02 | | |
| | | | | Taxes w/o Exemptions: | $3,185.02 | | |
Improvement / Building
| Improvement #1: | Manufactured Home | State Code: | 11 | 1680.0 sqft | Value: | $253,343 |
| Bathrooms (#): | 2 (FULL) | Bedrooms (#): | 3 | | Exterior Wall: | SI/ST | Fireplace: | WD ST-GOOD | | Floor Construction: | FRAME | Foundation: | PO&BL | | Heating/Cooling: | F/A | Roof Cover: | COMP |
|
| | Type | Description | Class CD | Sub Class CD | Year Built | Area |
| | MA | Main Area | 5+ | MDBL | 1977 | 1680.0 |
| | MDECK | MH Deck | 5 | * | 1977 | 302.0 |
| | MDET | MH Detached Garage | 4 | MDBL | 1977 | 360.0 |
| | GARAG | Garage (Table Not Dep) | 4 | * | 1977 | 960.0 |
| | MSKIRT_MTL | MH Skirting - Metal/Vinyl | 5 | * | 1977 | 188.0 |
| | ASPHD | Asphalt Drive | 5 | * | 1977 | 3000.0 |
Sketch
Property Image
Land
| 1 | 5525-1165L | | 0.0000 | 0.00 | 0.00 | 0.00 | 1.00 | $132,000 | $0 |
Roll Value History
| 2026 | N/A | N/A | N/A | N/A | N/A |
| 2025 | $253,343 | $132,000 | $0 | $385,343 | $385,343 |
| 2024 | $253,343 | $132,000 | $0 | $385,343 | $385,343 |
| 2023 | $202,410 | $120,750 | $0 | $323,160 | $323,160 |
| 2022 | $193,209 | $95,000 | $0 | $288,209 | $288,209 |
Deed and Sales History
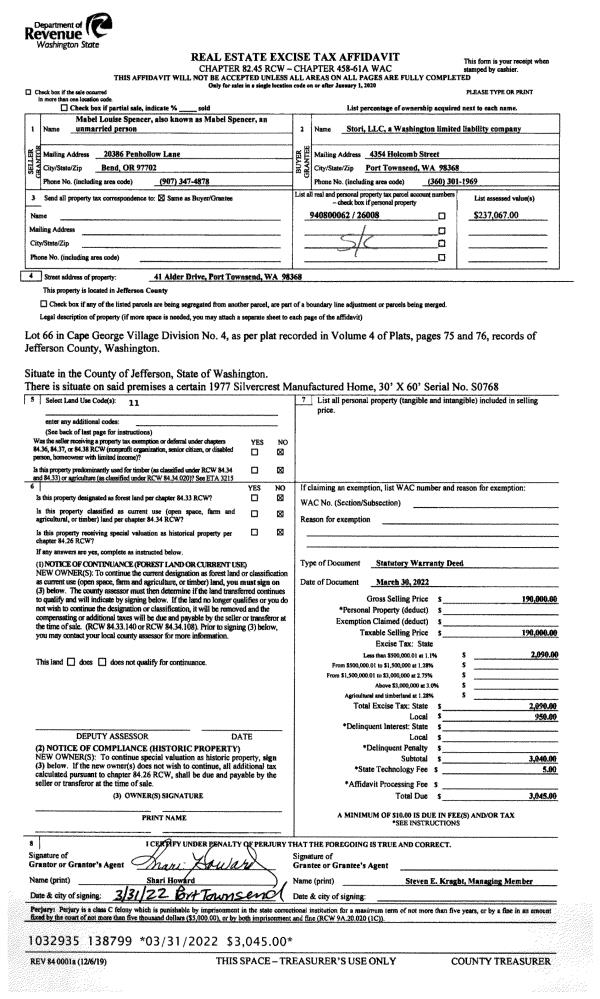
| 1 | 03/30/2022 | SWD | Statutory Warranty Deed | MABEL SPENCER | STORI LLC | | | $190,000.00 | 138799 | |
| 2 | 05/30/2001 | QCD | Quit Claim Deed | SPENCER FAMILY REVOCABLE | SPENCER, GLENN ALLAN/MABEL LOU | 0 | 0 | $0.00 | 92321 | 0 |
| 3 | 06/22/2000 | QCD | Quit Claim Deed | SPENCER, GLENN A/MABEL L | SPENCER FAMILY REVOCABLE TRUST | 0 | 0 | $0.00 | 89940 | 0 |
Payout Agreement
| No payout information available.. |