Property
Account |
| Property ID: | 26016 | Abbreviated Legal Description: | CAPE GEORGE VILLAGE DIV 4 LOT 74 (ENLGD BY S1/2 LOT 73) |
| Parcel # / Geo ID: | 940800070 | Agent Code: | |
| Type: | Real | | |
| Tax Area: | 0111 - 1-50F1E1H2L1 | Land Use Code | 11 |
| Open Space: | N | DFL | N |
| Historic Property: | N | Remodel Property: | N |
| Multi-Family Redevelopment: | N | | |
| Township: | 30N | Section: | 13 |
| Range: | 2W |
Location |
| Address: | 173 ALDER ST PORT TOWNSEND, WA 98368 | Mapsco: | 018/032 |
| Neighborhood: | CAPE GEORGE VILLAGE DIV 1, 2, 3, 4 | Map ID: | |
| Neighborhood CD: | 5525 |
Owner |
| Name: | AMBER J MALLORY | Owner ID: | 97682 |
| Mailing Address: | 150 PINE DR PORT TOWNSEND, WA 98368-9429 | % Ownership: | 100.0000000000% |
| | | Exemptions: | |
Pay Tax Due
Select the appropriate checkbox next to the year to be paid. Multiple years may be selected.
*Convenience Fee not included
Taxes and Assessment Details
Property Tax Information as of
03/11/2026
Click on "Statement Details" to expand or collapse a tax statement.
* Please enter a valid date ** Please enter a valid date *
Statement Details |
| 2026 | 15395 | STATE - STATE LEVY (SCHOOL) | $612.22 | $612.20 | $0.00 | $0.00 | $0.00 | $1224.42 |
| 2026 | 15395 | COUNTY - COUNTY LEVIES (CE, DD, VET, MH) | $244.77 | $244.75 | $0.00 | $0.00 | $0.00 | $489.52 |
| 2026 | 15395 | CONSERVE - CONSERVATION FUTURES | $7.34 | $7.34 | $0.00 | $0.00 | $0.00 | $14.68 |
| 2026 | 15395 | COROADS - COUNTY ROADS (ROADS, DIV TO CE) | $197.45 | $197.45 | $0.00 | $0.00 | $0.00 | $394.90 |
| 2026 | 15395 | PORTPT - PORT DISTRICT | $98.85 | $98.85 | $0.00 | $0.00 | $0.00 | $197.70 |
| 2026 | 15395 | PUD1 - PUD #1 | $15.92 | $15.92 | $0.00 | $0.00 | $0.00 | $31.84 |
| 2026 | 15395 | LIB1 - LIBRARY DIST #1 | $76.39 | $76.39 | $0.00 | $0.00 | $0.00 | $152.78 |
| 2026 | 15395 | HD2 - HOSP DIST #2 | $14.28 | $14.27 | $0.00 | $0.00 | $0.00 | $28.55 |
| 2026 | 15395 | SD50 - SCHOOL DIST #50 | $485.02 | $484.99 | $0.00 | $0.00 | $0.00 | $970.01 |
| 2026 | 15395 | FD1 - FIRE DISTRICT #1 | $324.12 | $324.12 | $0.00 | $0.00 | $0.00 | $648.24 |
| 2026 | 15395 | EMS1 - FIRE DIST #1 EMS | $124.62 | $124.62 | $0.00 | $0.00 | $0.00 | $249.24 |
| 2026 | 15395 | JCCD - JC Conservation District | $2.55 | $2.55 | $0.00 | $0.00 | $0.00 | $5.10 |
| 2026 | 15395 | NWA - Noxious Weed Assessment | $2.98 | $2.97 | $0.00 | $0.00 | $0.00 | $5.95 |
| 2026 | 15395 | OSS - On Site Septic | $23.10 | $23.10 | $0.00 | $0.00 | $0.00 | $46.20 |
| 2026 | 15395 | WAT - Clean Water District | $13.00 | $13.00 | $0.00 | $0.00 | $0.00 | $26.00 |
| 2026 | 15395 | TOTAL: | $2242.61 | $2242.52 | $0.00 | $0.00 | $0.00 | $4485.13 |
|
| 2026 | 15395 | $2242.61 | $2242.52 | $0.00 | $0.00 | $0.00 | $4485.13 |
Statement Details |
| 2025 | 15447 | STATE - STATE LEVY (SCHOOL) | $638.56 | $638.55 | $0.00 | $0.00 | $1277.11 | $0.00 |
| 2025 | 15447 | COUNTY - COUNTY LEVIES (CE, DD, VET, MH) | $251.11 | $251.11 | $0.00 | $0.00 | $502.22 | $0.00 |
| 2025 | 15447 | CONSERVE - CONSERVATION FUTURES | $7.53 | $7.53 | $0.00 | $0.00 | $15.06 | $0.00 |
| 2025 | 15447 | COROADS - COUNTY ROADS (ROADS, DIV TO CE) | $201.18 | $201.17 | $0.00 | $0.00 | $402.35 | $0.00 |
| 2025 | 15447 | PORTPT - PORT DISTRICT | $102.47 | $102.46 | $0.00 | $0.00 | $204.93 | $0.00 |
| 2025 | 15447 | PUD1 - PUD #1 | $16.43 | $16.43 | $0.00 | $0.00 | $32.86 | $0.00 |
| 2025 | 15447 | LIB1 - LIBRARY DIST #1 | $77.84 | $77.83 | $0.00 | $0.00 | $155.67 | $0.00 |
| 2025 | 15447 | HD2 - HOSP DIST #2 | $14.65 | $14.65 | $0.00 | $0.00 | $29.30 | $0.00 |
| 2025 | 15447 | SD50 - SCHOOL DIST #50 | $466.68 | $466.67 | $0.00 | $0.00 | $933.35 | $0.00 |
| 2025 | 15447 | FD1 - FIRE DISTRICT #1 | $331.37 | $331.36 | $0.00 | $0.00 | $662.73 | $0.00 |
| 2025 | 15447 | EMS1 - FIRE DIST #1 EMS | $127.45 | $127.45 | $0.00 | $0.00 | $254.90 | $0.00 |
| 2025 | 15447 | JCCD - JC Conservation District | $2.55 | $2.55 | $0.00 | $0.00 | $5.10 | $0.00 |
| 2025 | 15447 | NWA - Noxious Weed Assessment | $2.15 | $2.15 | $0.00 | $0.00 | $4.30 | $0.00 |
| 2025 | 15447 | OSS - On Site Septic | $21.50 | $21.50 | $0.00 | $0.00 | $43.00 | $0.00 |
| 2025 | 15447 | WAT - Clean Water District | $13.00 | $13.00 | $0.00 | $0.00 | $26.00 | $0.00 |
| 2025 | 15447 | TOTAL: | $2274.47 | $2274.41 | $0.00 | $0.00 | $4548.88 | $0.00 |
|
| 2025 | 15447 | $2274.47 | $2274.41 | $0.00 | $0.00 | $4548.88 | $0.00 |
Statement Details |
| 2024 | 15478 | STATE - STATE LEVY (SCHOOL) | $602.65 | $602.65 | $0.00 | $0.00 | $1205.30 | $0.00 |
| 2024 | 15478 | COUNTY - COUNTY LEVIES (CE, DD, VET, MH) | $257.90 | $257.86 | $0.00 | $0.00 | $515.76 | $0.00 |
| 2024 | 15478 | CONSERVE - CONSERVATION FUTURES | $7.74 | $7.73 | $0.00 | $0.00 | $15.47 | $0.00 |
| 2024 | 15478 | COROADS - COUNTY ROADS (ROADS, DIV TO CE) | $207.52 | $207.50 | $0.00 | $0.00 | $415.02 | $0.00 |
| 2024 | 15478 | PORTPT - PORT DISTRICT | $106.52 | $106.51 | $0.00 | $0.00 | $213.03 | $0.00 |
| 2024 | 15478 | PUD1 - PUD #1 | $16.94 | $16.94 | $0.00 | $0.00 | $33.88 | $0.00 |
| 2024 | 15478 | LIB1 - LIBRARY DIST #1 | $80.29 | $80.28 | $0.00 | $0.00 | $160.57 | $0.00 |
| 2024 | 15478 | HD2 - HOSP DIST #2 | $15.05 | $15.04 | $0.00 | $0.00 | $30.09 | $0.00 |
| 2024 | 15478 | SD50 - SCHOOL DIST #50 | $487.59 | $487.56 | $0.00 | $0.00 | $975.15 | $0.00 |
| 2024 | 15478 | FD1 - FIRE DISTRICT #1 | $340.98 | $340.98 | $0.00 | $0.00 | $681.96 | $0.00 |
| 2024 | 15478 | EMS1 - FIRE DIST #1 EMS | $130.24 | $130.24 | $0.00 | $0.00 | $260.48 | $0.00 |
| 2024 | 15478 | JCCD - JC Conservation District | $2.55 | $2.55 | $0.00 | $0.00 | $5.10 | $0.00 |
| 2024 | 15478 | NWA - Noxious Weed Assessment | $2.15 | $2.15 | $0.00 | $0.00 | $4.30 | $0.00 |
| 2024 | 15478 | OSS - On Site Septic | $21.00 | $21.00 | $0.00 | $0.00 | $42.00 | $0.00 |
| 2024 | 15478 | WAT - Clean Water District | $12.50 | $12.50 | $0.00 | $0.00 | $25.00 | $0.00 |
| 2024 | 15478 | TOTAL: | $2291.62 | $2291.49 | $0.00 | $0.00 | $4583.11 | $0.00 |
|
| 2024 | 15478 | $2291.62 | $2291.49 | $0.00 | $0.00 | $4583.11 | $0.00 |
Statement Details |
| 2023 | 15502 | STATE - STATE LEVY (SCHOOL) | $557.02 | $557.01 | $0.00 | $0.00 | $1114.03 | $0.00 |
| 2023 | 15502 | COUNTY - COUNTY LEVIES (CE, DD, VET, MH) | $243.07 | $243.06 | $0.00 | $0.00 | $486.13 | $0.00 |
| 2023 | 15502 | CONSERVE - CONSERVATION FUTURES | $7.29 | $7.29 | $0.00 | $0.00 | $14.58 | $0.00 |
| 2023 | 15502 | COROADS - COUNTY ROADS (ROADS, DIV TO CE) | $196.67 | $196.65 | $0.00 | $0.00 | $393.32 | $0.00 |
| 2023 | 15502 | PORTPT - PORT DISTRICT | $102.40 | $102.39 | $0.00 | $0.00 | $204.79 | $0.00 |
| 2023 | 15502 | PUD1 - PUD #1 | $16.11 | $16.11 | $0.00 | $0.00 | $32.22 | $0.00 |
| 2023 | 15502 | LIB1 - LIBRARY DIST #1 | $76.09 | $76.08 | $0.00 | $0.00 | $152.17 | $0.00 |
| 2023 | 15502 | HD2 - HOSP DIST #2 | $14.19 | $14.18 | $0.00 | $0.00 | $28.37 | $0.00 |
| 2023 | 15502 | SD50 - SCHOOL DIST #50 | $442.01 | $442.00 | $0.00 | $0.00 | $884.01 | $0.00 |
| 2023 | 15502 | FD1 - FIRE DISTRICT #1 | $200.24 | $200.24 | $0.00 | $0.00 | $400.48 | $0.00 |
| 2023 | 15502 | EMS1 - FIRE DIST #1 EMS | $85.18 | $85.17 | $0.00 | $0.00 | $170.35 | $0.00 |
| 2023 | 15502 | JCCD - JC Conservation District | $2.55 | $2.55 | $0.00 | $0.00 | $5.10 | $0.00 |
| 2023 | 15502 | NWA - Noxious Weed Assessment | $2.15 | $2.15 | $0.00 | $0.00 | $4.30 | $0.00 |
| 2023 | 15502 | OSS - On Site Septic | $20.50 | $20.50 | $0.00 | $0.00 | $41.00 | $0.00 |
| 2023 | 15502 | WAT - Clean Water District | $12.00 | $12.00 | $0.00 | $0.00 | $24.00 | $0.00 |
| 2023 | 15502 | TOTAL: | $1977.47 | $1977.38 | $0.00 | $0.00 | $3954.85 | $0.00 |
|
| 2023 | 15502 | $1977.47 | $1977.38 | $0.00 | $0.00 | $3954.85 | $0.00 |
Values
| (+) Improvement Homesite Value: | + | $375,818 | |
| (+) Improvement Non-Homesite Value: | + | $0 | |
| (+) Land Homesite Value: | + | $156,750 | |
| (+) Land Non-Homesite Value: | + | $0 | |
| (+) Curr Use (HS): | + | $0 | $0 |
| (+) Curr Use (NHS): | + | $0 | $0 |
| | | -------------------------- | |
| (=) Market Value: | = | $532,568 | |
| (–) Productivity Loss: | – | $0 | |
| | | -------------------------- | |
| (=) Subtotal: | = | $532,568 | |
| (+) Senior Appraised Value: | + | $0 | |
| (+) Non-Senior Appraised Value: | + | $532,568 | |
| | | -------------------------- | |
| (=) Total Appraised Value: | = | $532,568 | |
| (–) Senior Exemption Loss: | – | $0 | |
| (–) Exemption Loss: | – | $0 | |
| | | -------------------------- | |
| (=) Taxable Value: | = | $532,568 | |
Taxing Jurisdiction
| Owner: | AMBER J MALLORY | | |
| % Ownership: | 100.0000000000% | | |
| Total Value: | $532,568 | | |
| Tax Area: | 0111 - 1-50F1E1H2L1 |
| CE | COUNTY CURRENT EXPENSE | 0.9034619479 | $532,568 | $532,568 | $481.15 | | |
| CNTYDD | DEVELOPMENTAL DISABILITIES | 0.0052121823 | $532,568 | $532,568 | $2.78 | | |
| CNTYVET | VETERANS RELIEF | 0.0052777810 | $532,568 | $532,568 | $2.81 | | |
| MENTAL | MENTAL HEALTH | 0.0052121823 | $532,568 | $532,568 | $2.78 | | |
| ROADS | COUNTY ROADS | 0.7415066410 | $532,568 | $532,568 | $394.90 | | |
| ROADSCU | COUNTY ROADS TO CUR EXP | 0.0000000000 | $532,568 | $532,568 | $0.00 | | |
| HOSP2CASH | HOSP DIST #2 GENERAL | 0.0536075306 | $532,568 | $532,568 | $28.55 | | |
| SCH50BOND | SCHOOL DIST #50 BOND 2016 | 0.5377451389 | $532,568 | $532,568 | $286.39 | | |
| SCH50CP | SCHOOL DIST #50 CAP PROJ | 0.4573475088 | $532,568 | $532,568 | $243.57 | | |
| SCH50MO | SCHOOL DIST #50 EP & O | 0.8262822886 | $532,568 | $532,568 | $440.05 | | |
| CONSERVE | CONSERVATION FUTURES | 0.0275621078 | $532,568 | $532,568 | $14.68 | | |
| EMS1 | FIRE DIST #1 EMS | 0.4679948282 | $532,568 | $532,568 | $249.24 | | |
| FD1 | FIRE DIST #1 GENERAL | 1.2171942929 | $532,568 | $532,568 | $648.24 | | |
| LIB1 | LIBRARY DIST #1 GENERAL | 0.2868827388 | $532,568 | $532,568 | $152.78 | | |
| PORTPT | PORT OF PT GENERAL | 0.1134941229 | $532,568 | $532,568 | $60.44 | | |
| PORTPTIDD | PORT OF PT IDD 2019 | 0.2577346692 | $532,568 | $532,568 | $137.26 | | |
| PUD1 | PUD #1 GENERAL | 0.0597888892 | $532,568 | $532,568 | $31.84 | | |
| STATE | STATE SCHOOL PART 1 | 1.4940692947 | $532,568 | $532,568 | $795.69 | | |
| STATE2 | STATE SCHOOL PART 2 | 0.8050170049 | $532,568 | $532,568 | $428.73 | | |
| | Total Tax Rate: | 8.2653911500 | | | | | |
| | | | | Taxes w/Current Exemptions: | $4,401.88 | | |
| | | | | Taxes w/o Exemptions: | $4,401.88 | | |
Improvement / Building
| Improvement #1: | Residential Bldg | State Code: | 11 | 1088.0 sqft | Value: | $375,818 |
| Bathrooms (#): | 1 (FULL) | Bedrooms (#): | 2 | | Exterior Wall: | SI/ST | Fireplace: | PROPS-GOOD | | Floor Construction: | FRAME | Foundation: | CONPR | | Heating/Cooling: | F/A | Roof Cover: | METAL |
|
| | Type | Description | Class CD | Sub Class CD | Year Built | Area |
| | MA | Main Area | 4+ | 1S | 1999 | 1088.0 |
| | HWPOR | House Wood Porch | 4 | * | 1999 | 140.0 |
| | GATT | House Attached Garage | 4 | 1S | 1999 | 748.0 |
| | SHED | Shed (Table Not Dep) | 3 | * | 1999 | 64.0 |
| | GARAG | Garage (Table Not Dep) | 4 | * | 2005 | 864.0 |
Sketch
Property Image
Land
| 1 | 5525-1165L | | 0.0000 | 0.00 | 0.00 | 0.00 | 1.00 | $132,000 | $0 |
| 2 | 5525-1165L | | 0.0000 | 0.00 | 0.00 | 0.00 | 1.00 | $24,750 | $0 |
Roll Value History
| 2026 | N/A | N/A | N/A | N/A | N/A |
| 2025 | $375,818 | $156,750 | $0 | $532,568 | $532,568 |
| 2024 | $375,818 | $156,750 | $0 | $532,568 | $532,568 |
| 2023 | $376,588 | $144,375 | $0 | $520,963 | $520,963 |
| 2022 | $359,471 | $113,750 | $0 | $473,221 | $473,221 |
Deed and Sales History
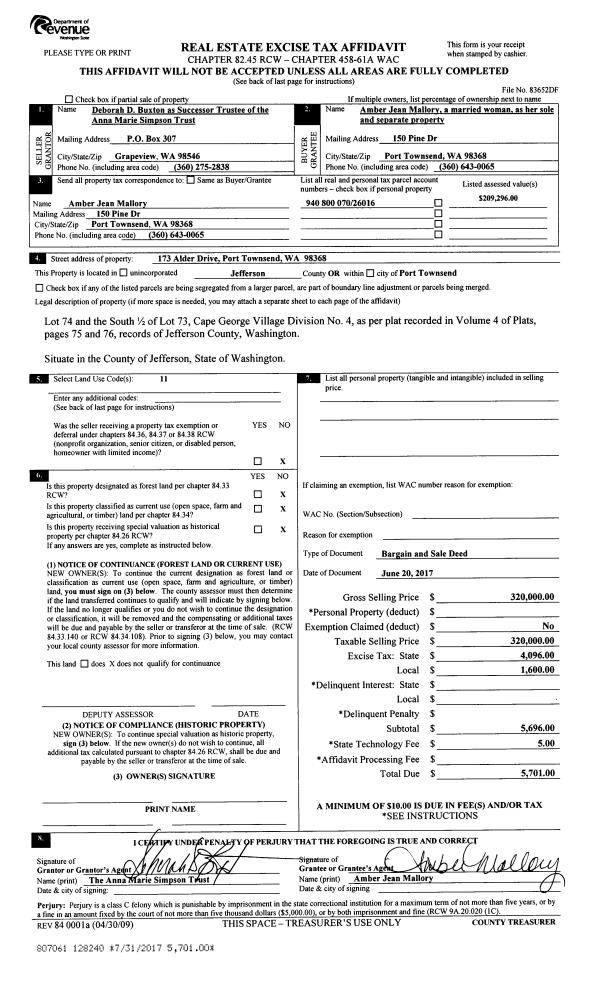
| 1 | 06/23/2017 | QCD | Quit Claim Deed | | | | | | 128241 | |
| 2 | 06/20/2017 | BSD | Bargain and Sale Deed | DEBORAH D BUXTON TRUSTEE | AMBER J MALLORY | | | $320,000.00 | 128240 | |
| 3 | 02/09/2017 | MISC | MISC | | | | | | 0 | |
| 4 | 10/09/1998 | SWD | Statutory Warranty Deed | COFFEE, RICHARD & HENKI/T | SIMPSON, ANNA MARIE/TRUST | 0 | 0 | $25,750.00 | 85484 | 0 |
| 5 | 03/10/1994 | QCD | Quit Claim Deed | COFFEE, RICHARD W/HENKE E | COFFEE FAMILY TRUST | 0 | 0 | $0.00 | 73614 | 0 |
| 6 | 03/10/1994 | QCD | Quit Claim Deed | COFFEE, RICHARD W/HENKE E | COFFEE FAMILY TRUST | 0 | 0 | $0.00 | 74053 | 0 |
Payout Agreement
| No payout information available.. |