Property
Account |
| Property ID: | 26492 | Abbreviated Legal Description: | CHIMACUM CREEK EST LOT 5 |
| Parcel # / Geo ID: | 943600005 | Agent Code: | |
| Type: | Real | | |
| Tax Area: | 0211 - 1-49F1E1H2L1 | Land Use Code | 11 |
| Open Space: | N | DFL | N |
| Historic Property: | N | Remodel Property: | N |
| Multi-Family Redevelopment: | N | | |
| Township: | 29N | Section: | 2 |
| Range: | 1W |
Location |
| Address: | 101 SHOTWELL RD PORT HADLOCK, WA 98339 | Mapsco: | 019/005 |
| Neighborhood: | CHIMACUM CREEK ESTATES DIV I & DIV II | Map ID: | |
| Neighborhood CD: | 4218 |
Owner |
| Name: | CHANDRA WRIGHT | Owner ID: | 98795 |
| Mailing Address: | 101 SHOTWELL RD PORT HADLOCK, WA 98339-9400 | % Ownership: | 100.0000000000% |
| | | Exemptions: | |
Pay Tax Due
Select the appropriate checkbox next to the year to be paid. Multiple years may be selected.
*Convenience Fee not included
Taxes and Assessment Details
Property Tax Information as of
03/11/2026
Click on "Statement Details" to expand or collapse a tax statement.
* Please enter a valid date ** Please enter a valid date *
Statement Details |
| 2026 | 15863 | STATE - STATE LEVY (SCHOOL) | $465.03 | $465.01 | $0.00 | $0.00 | $0.00 | $930.04 |
| 2026 | 15863 | COUNTY - COUNTY LEVIES (CE, DD, VET, MH) | $185.93 | $185.90 | $0.00 | $0.00 | $0.00 | $371.83 |
| 2026 | 15863 | CONSERVE - CONSERVATION FUTURES | $5.58 | $5.57 | $0.00 | $0.00 | $0.00 | $11.15 |
| 2026 | 15863 | COROADS - COUNTY ROADS (ROADS, DIV TO CE) | $149.98 | $149.98 | $0.00 | $0.00 | $0.00 | $299.96 |
| 2026 | 15863 | PORTPT - PORT DISTRICT | $75.09 | $75.08 | $0.00 | $0.00 | $0.00 | $150.17 |
| 2026 | 15863 | PUD1 - PUD #1 | $12.10 | $12.09 | $0.00 | $0.00 | $0.00 | $24.19 |
| 2026 | 15863 | LIB1 - LIBRARY DIST #1 | $58.03 | $58.02 | $0.00 | $0.00 | $0.00 | $116.05 |
| 2026 | 15863 | HD2 - HOSP DIST #2 | $10.85 | $10.84 | $0.00 | $0.00 | $0.00 | $21.69 |
| 2026 | 15863 | SD49 - SCHOOL DIST #49 | $255.99 | $255.97 | $0.00 | $0.00 | $0.00 | $511.96 |
| 2026 | 15863 | FD1 - FIRE DISTRICT #1 | $246.20 | $246.19 | $0.00 | $0.00 | $0.00 | $492.39 |
| 2026 | 15863 | EMS1 - FIRE DIST #1 EMS | $94.66 | $94.66 | $0.00 | $0.00 | $0.00 | $189.32 |
| 2026 | 15863 | JCCD - JC Conservation District | $2.55 | $2.55 | $0.00 | $0.00 | $0.00 | $5.10 |
| 2026 | 15863 | NWA - Noxious Weed Assessment | $2.98 | $2.97 | $0.00 | $0.00 | $0.00 | $5.95 |
| 2026 | 15863 | OSS - On Site Septic | $23.10 | $23.10 | $0.00 | $0.00 | $0.00 | $46.20 |
| 2026 | 15863 | WAT - Clean Water District | $13.00 | $13.00 | $0.00 | $0.00 | $0.00 | $26.00 |
| 2026 | 15863 | TOTAL: | $1601.07 | $1600.93 | $0.00 | $0.00 | $0.00 | $3202.00 |
|
| 2026 | 15863 | $1601.07 | $1600.93 | $0.00 | $0.00 | $0.00 | $3202.00 |
Statement Details |
| 2025 | 15917 | STATE - STATE LEVY (SCHOOL) | $463.72 | $463.70 | $0.00 | $0.00 | $927.42 | $0.00 |
| 2025 | 15917 | COUNTY - COUNTY LEVIES (CE, DD, VET, MH) | $182.36 | $182.34 | $0.00 | $0.00 | $364.70 | $0.00 |
| 2025 | 15917 | CONSERVE - CONSERVATION FUTURES | $5.47 | $5.47 | $0.00 | $0.00 | $10.94 | $0.00 |
| 2025 | 15917 | COROADS - COUNTY ROADS (ROADS, DIV TO CE) | $146.09 | $146.09 | $0.00 | $0.00 | $292.18 | $0.00 |
| 2025 | 15917 | PORTPT - PORT DISTRICT | $74.42 | $74.40 | $0.00 | $0.00 | $148.82 | $0.00 |
| 2025 | 15917 | PUD1 - PUD #1 | $11.93 | $11.93 | $0.00 | $0.00 | $23.86 | $0.00 |
| 2025 | 15917 | LIB1 - LIBRARY DIST #1 | $56.52 | $56.52 | $0.00 | $0.00 | $113.04 | $0.00 |
| 2025 | 15917 | HD2 - HOSP DIST #2 | $10.64 | $10.64 | $0.00 | $0.00 | $21.28 | $0.00 |
| 2025 | 15917 | SD49 - SCHOOL DIST #49 | $248.53 | $248.51 | $0.00 | $0.00 | $497.04 | $0.00 |
| 2025 | 15917 | FD1 - FIRE DISTRICT #1 | $240.64 | $240.63 | $0.00 | $0.00 | $481.27 | $0.00 |
| 2025 | 15917 | EMS1 - FIRE DIST #1 EMS | $92.56 | $92.55 | $0.00 | $0.00 | $185.11 | $0.00 |
| 2025 | 15917 | JCCD - JC Conservation District | $2.55 | $2.55 | $0.00 | $0.00 | $5.10 | $0.00 |
| 2025 | 15917 | NWA - Noxious Weed Assessment | $2.15 | $2.15 | $0.00 | $0.00 | $4.30 | $0.00 |
| 2025 | 15917 | OSS - On Site Septic | $21.50 | $21.50 | $0.00 | $0.00 | $43.00 | $0.00 |
| 2025 | 15917 | WAT - Clean Water District | $13.00 | $13.00 | $0.00 | $0.00 | $26.00 | $0.00 |
| 2025 | 15917 | TOTAL: | $1572.08 | $1571.98 | $0.00 | $0.00 | $3144.06 | $0.00 |
|
| 2025 | 15917 | $1572.08 | $1571.98 | $0.00 | $0.00 | $3144.06 | $0.00 |
Statement Details |
| 2024 | 15949 | STATE - STATE LEVY (SCHOOL) | $421.03 | $421.03 | $0.00 | $0.00 | $842.06 | $0.00 |
| 2024 | 15949 | COUNTY - COUNTY LEVIES (CE, DD, VET, MH) | $180.17 | $180.15 | $0.00 | $0.00 | $360.32 | $0.00 |
| 2024 | 15949 | CONSERVE - CONSERVATION FUTURES | $5.40 | $5.40 | $0.00 | $0.00 | $10.80 | $0.00 |
| 2024 | 15949 | COROADS - COUNTY ROADS (ROADS, DIV TO CE) | $144.98 | $144.97 | $0.00 | $0.00 | $289.95 | $0.00 |
| 2024 | 15949 | PORTPT - PORT DISTRICT | $74.42 | $74.41 | $0.00 | $0.00 | $148.83 | $0.00 |
| 2024 | 15949 | PUD1 - PUD #1 | $11.84 | $11.83 | $0.00 | $0.00 | $23.67 | $0.00 |
| 2024 | 15949 | LIB1 - LIBRARY DIST #1 | $56.09 | $56.09 | $0.00 | $0.00 | $112.18 | $0.00 |
| 2024 | 15949 | HD2 - HOSP DIST #2 | $10.51 | $10.51 | $0.00 | $0.00 | $21.02 | $0.00 |
| 2024 | 15949 | SD49 - SCHOOL DIST #49 | $188.02 | $188.00 | $0.00 | $0.00 | $376.02 | $0.00 |
| 2024 | 15949 | FD1 - FIRE DISTRICT #1 | $238.22 | $238.21 | $0.00 | $0.00 | $476.43 | $0.00 |
| 2024 | 15949 | EMS1 - FIRE DIST #1 EMS | $90.99 | $90.99 | $0.00 | $0.00 | $181.98 | $0.00 |
| 2024 | 15949 | JCCD - JC Conservation District | $2.55 | $2.55 | $0.00 | $0.00 | $5.10 | $0.00 |
| 2024 | 15949 | NWA - Noxious Weed Assessment | $2.15 | $2.15 | $0.00 | $0.00 | $4.30 | $0.00 |
| 2024 | 15949 | OSS - On Site Septic | $21.00 | $21.00 | $0.00 | $0.00 | $42.00 | $0.00 |
| 2024 | 15949 | WAT - Clean Water District | $12.50 | $12.50 | $0.00 | $0.00 | $25.00 | $0.00 |
| 2024 | 15949 | TOTAL: | $1459.87 | $1459.79 | $0.00 | $0.00 | $2919.66 | $0.00 |
|
| 2024 | 15949 | $1459.87 | $1459.79 | $0.00 | $0.00 | $2919.66 | $0.00 |
Statement Details |
| 2023 | 15973 | STATE - STATE LEVY (SCHOOL) | $389.33 | $389.32 | $0.00 | $0.00 | $778.65 | $0.00 |
| 2023 | 15973 | COUNTY - COUNTY LEVIES (CE, DD, VET, MH) | $169.91 | $169.87 | $0.00 | $0.00 | $339.78 | $0.00 |
| 2023 | 15973 | CONSERVE - CONSERVATION FUTURES | $5.10 | $5.09 | $0.00 | $0.00 | $10.19 | $0.00 |
| 2023 | 15973 | COROADS - COUNTY ROADS (ROADS, DIV TO CE) | $137.46 | $137.45 | $0.00 | $0.00 | $274.91 | $0.00 |
| 2023 | 15973 | PORTPT - PORT DISTRICT | $71.57 | $71.56 | $0.00 | $0.00 | $143.13 | $0.00 |
| 2023 | 15973 | PUD1 - PUD #1 | $11.26 | $11.26 | $0.00 | $0.00 | $22.52 | $0.00 |
| 2023 | 15973 | LIB1 - LIBRARY DIST #1 | $53.18 | $53.18 | $0.00 | $0.00 | $106.36 | $0.00 |
| 2023 | 15973 | HD2 - HOSP DIST #2 | $9.92 | $9.91 | $0.00 | $0.00 | $19.83 | $0.00 |
| 2023 | 15973 | SD49 - SCHOOL DIST #49 | $181.99 | $181.98 | $0.00 | $0.00 | $363.97 | $0.00 |
| 2023 | 15973 | FD1 - FIRE DISTRICT #1 | $139.96 | $139.95 | $0.00 | $0.00 | $279.91 | $0.00 |
| 2023 | 15973 | EMS1 - FIRE DIST #1 EMS | $59.54 | $59.53 | $0.00 | $0.00 | $119.07 | $0.00 |
| 2023 | 15973 | JCCD - JC Conservation District | $2.55 | $2.55 | $0.00 | $0.00 | $5.10 | $0.00 |
| 2023 | 15973 | NWA - Noxious Weed Assessment | $2.15 | $2.15 | $0.00 | $0.00 | $4.30 | $0.00 |
| 2023 | 15973 | OSS - On Site Septic | $20.50 | $20.50 | $0.00 | $0.00 | $41.00 | $0.00 |
| 2023 | 15973 | WAT - Clean Water District | $12.00 | $12.00 | $0.00 | $0.00 | $24.00 | $0.00 |
| 2023 | 15973 | TOTAL: | $1266.42 | $1266.30 | $0.00 | $0.00 | $2532.72 | $0.00 |
|
| 2023 | 15973 | $1266.42 | $1266.30 | $0.00 | $0.00 | $2532.72 | $0.00 |
Values
| (+) Improvement Homesite Value: | + | $0 | |
| (+) Improvement Non-Homesite Value: | + | $305,527 | |
| (+) Land Homesite Value: | + | $0 | |
| (+) Land Non-Homesite Value: | + | $99,000 | |
| (+) Curr Use (HS): | + | $0 | $0 |
| (+) Curr Use (NHS): | + | $0 | $0 |
| | | -------------------------- | |
| (=) Market Value: | = | $404,527 | |
| (–) Productivity Loss: | – | $0 | |
| | | -------------------------- | |
| (=) Subtotal: | = | $404,527 | |
| (+) Senior Appraised Value: | + | $0 | |
| (+) Non-Senior Appraised Value: | + | $404,527 | |
| | | -------------------------- | |
| (=) Total Appraised Value: | = | $404,527 | |
| (–) Senior Exemption Loss: | – | $0 | |
| (–) Exemption Loss: | – | $0 | |
| | | -------------------------- | |
| (=) Taxable Value: | = | $404,527 | |
Taxing Jurisdiction
| Owner: | CHANDRA WRIGHT | | |
| % Ownership: | 100.0000000000% | | |
| Total Value: | $404,527 | | |
| Tax Area: | 0211 - 1-49F1E1H2L1 |
| CE | COUNTY CURRENT EXPENSE | 0.9034619479 | $404,527 | $404,527 | $365.47 | | |
| CNTYDD | DEVELOPMENTAL DISABILITIES | 0.0052121823 | $404,527 | $404,527 | $2.11 | | |
| CNTYVET | VETERANS RELIEF | 0.0052777810 | $404,527 | $404,527 | $2.14 | | |
| MENTAL | MENTAL HEALTH | 0.0052121823 | $404,527 | $404,527 | $2.11 | | |
| ROADS | COUNTY ROADS | 0.7415066410 | $404,527 | $404,527 | $299.96 | | |
| ROADSCU | COUNTY ROADS TO CUR EXP | 0.0000000000 | $404,527 | $404,527 | $0.00 | | |
| HOSP2CASH | HOSP DIST #2 GENERAL | 0.0536075306 | $404,527 | $404,527 | $21.69 | | |
| SCH49CP | SCHOOL DIST #49 CAP PROJ | 0.6279093905 | $404,527 | $404,527 | $254.01 | | |
| SCH49MO | SCHOOL DIST #49 EP & O | 0.6376483602 | $404,527 | $404,527 | $257.95 | | |
| CONSERVE | CONSERVATION FUTURES | 0.0275621078 | $404,527 | $404,527 | $11.15 | | |
| EMS1 | FIRE DIST #1 EMS | 0.4679948282 | $404,527 | $404,527 | $189.32 | | |
| FD1 | FIRE DIST #1 GENERAL | 1.2171942929 | $404,527 | $404,527 | $492.39 | | |
| LIB1 | LIBRARY DIST #1 GENERAL | 0.2868827388 | $404,527 | $404,527 | $116.05 | | |
| PORTPT | PORT OF PT GENERAL | 0.1134941229 | $404,527 | $404,527 | $45.91 | | |
| PORTPTIDD | PORT OF PT IDD 2019 | 0.2577346692 | $404,527 | $404,527 | $104.26 | | |
| PUD1 | PUD #1 GENERAL | 0.0597888892 | $404,527 | $404,527 | $24.19 | | |
| STATE | STATE SCHOOL PART 1 | 1.4940692947 | $404,527 | $404,527 | $604.39 | | |
| STATE2 | STATE SCHOOL PART 2 | 0.8050170049 | $404,527 | $404,527 | $325.65 | | |
| | Total Tax Rate: | 7.7095739644 | | | | | |
| | | | | Taxes w/Current Exemptions: | $3,118.75 | | |
| | | | | Taxes w/o Exemptions: | $3,118.75 | | |
Improvement / Building
| Improvement #1: | Residential Bldg | State Code: | 11 | 1056.0 sqft | Value: | $305,527 |
| Bathrooms (#): | 2 (FULL) | Bedrooms (#): | 3 | | Exterior Wall: | PL/T1 | Fireplace: | SIN 1-AVG | | Floor Construction: | FRAME | Foundation: | CONBL | | Heating/Cooling: | ELBB | Interior Finish: | FIN | | Roof Cover: | METAL |   |   |
|
| | Type | Description | Class CD | Sub Class CD | Year Built | Area |
| | MA | Main Area | 4+ | 1S | 1979 | 1056.0 |
| | HCPOR | House Concrete Porch | 4 | * | 1979 | 96.0 |
| | GATT | House Attached Garage | 4 | 1S | 1979 | 480.0 |
Sketch
Property Image
Land
| 1 | 4218-1285S | | 0.0000 | 0.00 | 0.00 | 0.00 | 1.00 | $99,000 | $0 |
Roll Value History
| 2026 | N/A | N/A | N/A | N/A | N/A |
| 2025 | $305,527 | $99,000 | $0 | $404,527 | $404,527 |
| 2024 | $292,244 | $94,500 | $0 | $386,744 | $386,744 |
| 2023 | $278,960 | $85,000 | $0 | $363,960 | $363,960 |
| 2022 | $255,755 | $75,000 | $0 | $330,755 | $330,755 |
Deed and Sales History
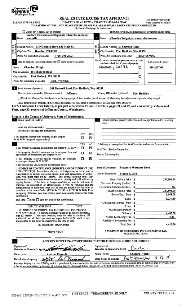
| 1 | 03/08/2018 | SWD | Statutory Warranty Deed | ANDREW & STEPHANIE EDWARDS | CHANDRA WRIGHT | | | $247,500.00 | 129728 | |
| 2 | 05/16/2016 | SWD | Statutory Warranty Deed | RYAN J MONROE | ANDREW & STEPHANIE EDWARDS | | | $203,500.00 | 125531 | |
| 3 | 06/14/2011 | SWD | Statutory Warranty Deed | DEUTSCHE BANK NATIONAL TR | MONROE, RYAN | | | $140,000.00 | 116211 | 0 |
| 4 | 03/11/2011 | WD | Warranty Deed | REGIONAL TRUSTEE SERVICES | DEUTSCHE BANK NATIONAL TRUST C | 0 | 0 | $0.00 | 115714 | 0 |
| 5 | 06/19/2005 | SWD | Statutory Warranty Deed | HARPER, DOMONIC Z | RYAN, JESSE & STECK, APRIL D | | | $185,000.00 | 104235 | 0 |
| 6 | 09/02/2003 | SWD | Statutory Warranty Deed | SITNIK, STANLEY | HARPER, DOMINIC Z | 0 | 0 | $120,000.00 | 98177 | 0 |
Payout Agreement
| No payout information available.. |