Property
Account |
| Property ID: | 26540 | Abbreviated Legal Description: | CHIMACUM CREEK ESTATES DIV 2 LOT 24 |
| Parcel # / Geo ID: | 943700025 | Agent Code: | |
| Type: | Real | | |
| Tax Area: | 0211 - 1-49F1E1H2L1 | Land Use Code | 11 |
| Open Space: | N | DFL | N |
| Historic Property: | N | Remodel Property: | N |
| Multi-Family Redevelopment: | N | | |
| Township: | 29N | Section: | 2 |
| Range: | 1W |
Location |
| Address: | 10 JEFFERSON PL PORT HADLOCK, WA 98339 | Mapsco: | 020/024 |
| Neighborhood: | CHIMACUM CREEK ESTATES DIV I & DIV II | Map ID: | |
| Neighborhood CD: | 4218 |
Owner |
| Name: | MARISA & CAMERON WITHEY BYRNE | Owner ID: | 111655 |
| Mailing Address: | 10 JEFFERSON PL PORT HADLOCK, WA 98339-9421 | % Ownership: | 100.0000000000% |
| | | Exemptions: | |
Pay Tax Due
Select the appropriate checkbox next to the year to be paid. Multiple years may be selected.
*Convenience Fee not included
Taxes and Assessment Details
Property Tax Information as of
03/11/2026
Click on "Statement Details" to expand or collapse a tax statement.
* Please enter a valid date ** Please enter a valid date *
Statement Details |
| 2026 | 15911 | STATE - STATE LEVY (SCHOOL) | $553.76 | $553.74 | $0.00 | $0.00 | $0.00 | $1107.50 |
| 2026 | 15911 | COUNTY - COUNTY LEVIES (CE, DD, VET, MH) | $221.40 | $221.37 | $0.00 | $0.00 | $0.00 | $442.77 |
| 2026 | 15911 | CONSERVE - CONSERVATION FUTURES | $6.64 | $6.64 | $0.00 | $0.00 | $0.00 | $13.28 |
| 2026 | 15911 | COROADS - COUNTY ROADS (ROADS, DIV TO CE) | $178.60 | $178.59 | $0.00 | $0.00 | $0.00 | $357.19 |
| 2026 | 15911 | PORTPT - PORT DISTRICT | $89.42 | $89.40 | $0.00 | $0.00 | $0.00 | $178.82 |
| 2026 | 15911 | PUD1 - PUD #1 | $14.40 | $14.40 | $0.00 | $0.00 | $0.00 | $28.80 |
| 2026 | 15911 | LIB1 - LIBRARY DIST #1 | $69.10 | $69.09 | $0.00 | $0.00 | $0.00 | $138.19 |
| 2026 | 15911 | HD2 - HOSP DIST #2 | $12.91 | $12.91 | $0.00 | $0.00 | $0.00 | $25.82 |
| 2026 | 15911 | SD49 - SCHOOL DIST #49 | $304.82 | $304.81 | $0.00 | $0.00 | $0.00 | $609.63 |
| 2026 | 15911 | FD1 - FIRE DISTRICT #1 | $293.17 | $293.17 | $0.00 | $0.00 | $0.00 | $586.34 |
| 2026 | 15911 | EMS1 - FIRE DIST #1 EMS | $112.72 | $112.72 | $0.00 | $0.00 | $0.00 | $225.44 |
| 2026 | 15911 | JCCD - JC Conservation District | $2.55 | $2.55 | $0.00 | $0.00 | $0.00 | $5.10 |
| 2026 | 15911 | NWA - Noxious Weed Assessment | $2.98 | $2.97 | $0.00 | $0.00 | $0.00 | $5.95 |
| 2026 | 15911 | OSS - On Site Septic | $23.10 | $23.10 | $0.00 | $0.00 | $0.00 | $46.20 |
| 2026 | 15911 | WAT - Clean Water District | $13.00 | $13.00 | $0.00 | $0.00 | $0.00 | $26.00 |
| 2026 | 15911 | TOTAL: | $1898.57 | $1898.46 | $0.00 | $0.00 | $0.00 | $3797.03 |
|
| 2026 | 15911 | $1898.57 | $1898.46 | $0.00 | $0.00 | $0.00 | $3797.03 |
Statement Details |
| 2025 | 15965 | STATE - STATE LEVY (SCHOOL) | $552.21 | $552.20 | $0.00 | $0.00 | $1104.41 | $0.00 |
| 2025 | 15965 | COUNTY - COUNTY LEVIES (CE, DD, VET, MH) | $217.16 | $217.15 | $0.00 | $0.00 | $434.31 | $0.00 |
| 2025 | 15965 | CONSERVE - CONSERVATION FUTURES | $6.51 | $6.51 | $0.00 | $0.00 | $13.02 | $0.00 |
| 2025 | 15965 | COROADS - COUNTY ROADS (ROADS, DIV TO CE) | $173.98 | $173.97 | $0.00 | $0.00 | $347.95 | $0.00 |
| 2025 | 15965 | PORTPT - PORT DISTRICT | $88.62 | $88.60 | $0.00 | $0.00 | $177.22 | $0.00 |
| 2025 | 15965 | PUD1 - PUD #1 | $14.21 | $14.21 | $0.00 | $0.00 | $28.42 | $0.00 |
| 2025 | 15965 | LIB1 - LIBRARY DIST #1 | $67.31 | $67.31 | $0.00 | $0.00 | $134.62 | $0.00 |
| 2025 | 15965 | HD2 - HOSP DIST #2 | $12.67 | $12.67 | $0.00 | $0.00 | $25.34 | $0.00 |
| 2025 | 15965 | SD49 - SCHOOL DIST #49 | $295.95 | $295.94 | $0.00 | $0.00 | $591.89 | $0.00 |
| 2025 | 15965 | FD1 - FIRE DISTRICT #1 | $286.56 | $286.55 | $0.00 | $0.00 | $573.11 | $0.00 |
| 2025 | 15965 | EMS1 - FIRE DIST #1 EMS | $110.22 | $110.21 | $0.00 | $0.00 | $220.43 | $0.00 |
| 2025 | 15965 | JCCD - JC Conservation District | $2.55 | $2.55 | $0.00 | $0.00 | $5.10 | $0.00 |
| 2025 | 15965 | NWA - Noxious Weed Assessment | $2.15 | $2.15 | $0.00 | $0.00 | $4.30 | $0.00 |
| 2025 | 15965 | OSS - On Site Septic | $21.50 | $21.50 | $0.00 | $0.00 | $43.00 | $0.00 |
| 2025 | 15965 | WAT - Clean Water District | $13.00 | $13.00 | $0.00 | $0.00 | $26.00 | $0.00 |
| 2025 | 15965 | TOTAL: | $1864.60 | $1864.52 | $0.00 | $0.00 | $3729.12 | $0.00 |
|
| 2025 | 15965 | $1864.60 | $1864.52 | $0.00 | $0.00 | $3729.12 | $0.00 |
Statement Details |
| 2024 | 15997 | STATE - STATE LEVY (SCHOOL) | $502.51 | $502.49 | $0.00 | $0.00 | $1005.00 | $0.00 |
| 2024 | 15997 | COUNTY - COUNTY LEVIES (CE, DD, VET, MH) | $215.04 | $215.01 | $0.00 | $0.00 | $430.05 | $0.00 |
| 2024 | 15997 | CONSERVE - CONSERVATION FUTURES | $6.45 | $6.45 | $0.00 | $0.00 | $12.90 | $0.00 |
| 2024 | 15997 | COROADS - COUNTY ROADS (ROADS, DIV TO CE) | $173.03 | $173.02 | $0.00 | $0.00 | $346.05 | $0.00 |
| 2024 | 15997 | PORTPT - PORT DISTRICT | $88.82 | $88.81 | $0.00 | $0.00 | $177.63 | $0.00 |
| 2024 | 15997 | PUD1 - PUD #1 | $14.13 | $14.12 | $0.00 | $0.00 | $28.25 | $0.00 |
| 2024 | 15997 | LIB1 - LIBRARY DIST #1 | $66.94 | $66.94 | $0.00 | $0.00 | $133.88 | $0.00 |
| 2024 | 15997 | HD2 - HOSP DIST #2 | $12.55 | $12.54 | $0.00 | $0.00 | $25.09 | $0.00 |
| 2024 | 15997 | SD49 - SCHOOL DIST #49 | $224.40 | $224.38 | $0.00 | $0.00 | $448.78 | $0.00 |
| 2024 | 15997 | FD1 - FIRE DISTRICT #1 | $284.32 | $284.31 | $0.00 | $0.00 | $568.63 | $0.00 |
| 2024 | 15997 | EMS1 - FIRE DIST #1 EMS | $108.60 | $108.59 | $0.00 | $0.00 | $217.19 | $0.00 |
| 2024 | 15997 | JCCD - JC Conservation District | $2.55 | $2.55 | $0.00 | $0.00 | $5.10 | $0.00 |
| 2024 | 15997 | NWA - Noxious Weed Assessment | $2.15 | $2.15 | $0.00 | $0.00 | $4.30 | $0.00 |
| 2024 | 15997 | OSS - On Site Septic | $21.00 | $21.00 | $0.00 | $0.00 | $42.00 | $0.00 |
| 2024 | 15997 | WAT - Clean Water District | $12.50 | $12.50 | $0.00 | $0.00 | $25.00 | $0.00 |
| 2024 | 15997 | TOTAL: | $1734.99 | $1734.86 | $0.00 | $0.00 | $3469.85 | $0.00 |
|
| 2024 | 15997 | $1734.99 | $1734.86 | $0.00 | $0.00 | $3469.85 | $0.00 |
Statement Details |
| 2023 | 16021 | STATE - STATE LEVY (SCHOOL) | $447.91 | $447.91 | $0.00 | $0.00 | $895.82 | $0.00 |
| 2023 | 16021 | COUNTY - COUNTY LEVIES (CE, DD, VET, MH) | $195.46 | $195.45 | $0.00 | $0.00 | $390.91 | $0.00 |
| 2023 | 16021 | CONSERVE - CONSERVATION FUTURES | $5.86 | $5.86 | $0.00 | $0.00 | $11.72 | $0.00 |
| 2023 | 16021 | COROADS - COUNTY ROADS (ROADS, DIV TO CE) | $158.14 | $158.13 | $0.00 | $0.00 | $316.27 | $0.00 |
| 2023 | 16021 | PORTPT - PORT DISTRICT | $82.34 | $82.33 | $0.00 | $0.00 | $164.67 | $0.00 |
| 2023 | 16021 | PUD1 - PUD #1 | $12.96 | $12.95 | $0.00 | $0.00 | $25.91 | $0.00 |
| 2023 | 16021 | LIB1 - LIBRARY DIST #1 | $61.18 | $61.18 | $0.00 | $0.00 | $122.36 | $0.00 |
| 2023 | 16021 | HD2 - HOSP DIST #2 | $11.41 | $11.41 | $0.00 | $0.00 | $22.82 | $0.00 |
| 2023 | 16021 | SD49 - SCHOOL DIST #49 | $209.38 | $209.37 | $0.00 | $0.00 | $418.75 | $0.00 |
| 2023 | 16021 | FD1 - FIRE DISTRICT #1 | $161.02 | $161.01 | $0.00 | $0.00 | $322.03 | $0.00 |
| 2023 | 16021 | EMS1 - FIRE DIST #1 EMS | $68.49 | $68.49 | $0.00 | $0.00 | $136.98 | $0.00 |
| 2023 | 16021 | JCCD - JC Conservation District | $2.55 | $2.55 | $0.00 | $0.00 | $5.10 | $0.00 |
| 2023 | 16021 | NWA - Noxious Weed Assessment | $2.15 | $2.15 | $0.00 | $0.00 | $4.30 | $0.00 |
| 2023 | 16021 | OSS - On Site Septic | $20.50 | $20.50 | $0.00 | $0.00 | $41.00 | $0.00 |
| 2023 | 16021 | WAT - Clean Water District | $12.00 | $12.00 | $0.00 | $0.00 | $24.00 | $0.00 |
| 2023 | 16021 | TOTAL: | $1451.35 | $1451.29 | $0.00 | $0.00 | $2902.64 | $0.00 |
|
| 2023 | 16021 | $1451.35 | $1451.29 | $0.00 | $0.00 | $2902.64 | $0.00 |
Values
| (+) Improvement Homesite Value: | + | $0 | |
| (+) Improvement Non-Homesite Value: | + | $371,711 | |
| (+) Land Homesite Value: | + | $0 | |
| (+) Land Non-Homesite Value: | + | $110,000 | |
| (+) Curr Use (HS): | + | $0 | $0 |
| (+) Curr Use (NHS): | + | $0 | $0 |
| | | -------------------------- | |
| (=) Market Value: | = | $481,711 | |
| (–) Productivity Loss: | – | $0 | |
| | | -------------------------- | |
| (=) Subtotal: | = | $481,711 | |
| (+) Senior Appraised Value: | + | $0 | |
| (+) Non-Senior Appraised Value: | + | $481,711 | |
| | | -------------------------- | |
| (=) Total Appraised Value: | = | $481,711 | |
| (–) Senior Exemption Loss: | – | $0 | |
| (–) Exemption Loss: | – | $0 | |
| | | -------------------------- | |
| (=) Taxable Value: | = | $481,711 | |
Taxing Jurisdiction
| Owner: | MARISA & CAMERON WITHEY BYRNE | | |
| % Ownership: | 100.0000000000% | | |
| Total Value: | $481,711 | | |
| Tax Area: | 0211 - 1-49F1E1H2L1 |
| CE | COUNTY CURRENT EXPENSE | 0.9034619479 | $481,711 | $481,711 | $435.21 | | |
| CNTYDD | DEVELOPMENTAL DISABILITIES | 0.0052121823 | $481,711 | $481,711 | $2.51 | | |
| CNTYVET | VETERANS RELIEF | 0.0052777810 | $481,711 | $481,711 | $2.54 | | |
| MENTAL | MENTAL HEALTH | 0.0052121823 | $481,711 | $481,711 | $2.51 | | |
| ROADS | COUNTY ROADS | 0.7415066410 | $481,711 | $481,711 | $357.19 | | |
| ROADSCU | COUNTY ROADS TO CUR EXP | 0.0000000000 | $481,711 | $481,711 | $0.00 | | |
| HOSP2CASH | HOSP DIST #2 GENERAL | 0.0536075306 | $481,711 | $481,711 | $25.82 | | |
| SCH49CP | SCHOOL DIST #49 CAP PROJ | 0.6279093905 | $481,711 | $481,711 | $302.47 | | |
| SCH49MO | SCHOOL DIST #49 EP & O | 0.6376483602 | $481,711 | $481,711 | $307.16 | | |
| CONSERVE | CONSERVATION FUTURES | 0.0275621078 | $481,711 | $481,711 | $13.28 | | |
| EMS1 | FIRE DIST #1 EMS | 0.4679948282 | $481,711 | $481,711 | $225.44 | | |
| FD1 | FIRE DIST #1 GENERAL | 1.2171942929 | $481,711 | $481,711 | $586.34 | | |
| LIB1 | LIBRARY DIST #1 GENERAL | 0.2868827388 | $481,711 | $481,711 | $138.19 | | |
| PORTPT | PORT OF PT GENERAL | 0.1134941229 | $481,711 | $481,711 | $54.67 | | |
| PORTPTIDD | PORT OF PT IDD 2019 | 0.2577346692 | $481,711 | $481,711 | $124.15 | | |
| PUD1 | PUD #1 GENERAL | 0.0597888892 | $481,711 | $481,711 | $28.80 | | |
| STATE | STATE SCHOOL PART 1 | 1.4940692947 | $481,711 | $481,711 | $719.71 | | |
| STATE2 | STATE SCHOOL PART 2 | 0.8050170049 | $481,711 | $481,711 | $387.79 | | |
| | Total Tax Rate: | 7.7095739644 | | | | | |
| | | | | Taxes w/Current Exemptions: | $3,713.78 | | |
| | | | | Taxes w/o Exemptions: | $3,713.78 | | |
Improvement / Building
| Improvement #1: | Residential Bldg | State Code: | 11 | 1864.0 sqft | Value: | $371,711 |
| Bathrooms (#): | 2 (FULL) | Bedrooms (#): | 3 | | Exterior Wall: | SI/ST | Fireplace: | SIN 1-AVG | | Fireplace: | WD ST-AVG | Floor Construction: | FRAME | | Foundation: | CONPR | Heating/Cooling: | ELBB | | Inside Verify: | YES-FIX | Interior Finish: | FIN | | Roof Cover: | COMP |   |   |
|
| | Type | Description | Class CD | Sub Class CD | Year Built | Area |
| | MA | Main Area | 4 | 1S | 1986 | 1864.0 |
| | PATIO | House Patio | 4 | * | 1986 | 250.0 |
| | GDET | Detached Garage | 3 | 1S | 1986 | 960.0 |
Sketch
Property Image
Land
| 1 | 4218-1284S | | 0.0000 | 0.00 | 0.00 | 0.00 | 1.00 | $110,000 | $0 |
Roll Value History
| 2026 | N/A | N/A | N/A | N/A | N/A |
| 2025 | $371,711 | $110,000 | $0 | $481,711 | $481,711 |
| 2024 | $355,550 | $105,000 | $0 | $460,550 | $460,550 |
| 2023 | $339,388 | $95,000 | $0 | $434,388 | $434,388 |
| 2022 | $295,523 | $85,000 | $0 | $380,523 | $380,523 |
Deed and Sales History
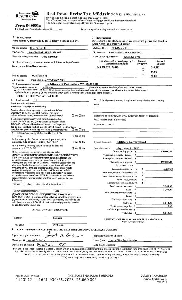
| 1 | 10/09/2024 | SWD | Statutory Warranty Deed | LAURA E ROETCISOENDER | MARISA & CAMERON WITHEY BYRNE | | | $517,000.00 | 143369 | |
| 2 | 09/21/2023 | SWD | Statutory Warranty Deed | JOSEPH A BEARY | LAURA E ROETCISOENDER | | | $479,000.00 | 141621 | |
Payout Agreement
| No payout information available.. |