Property
Account |
| Property ID: | 26571 | Abbreviated Legal Description: | CLARK'S 1ST TO CHIMACUM BLK 2 LOTS 1 & 2(LESS S 10') LESS TAX 76 |
| Parcel # / Geo ID: | 943800201 | Agent Code: | |
| Type: | Real | | |
| Tax Area: | 0211 - 1-49F1E1H2L1 | Land Use Code | 11 |
| Open Space: | N | DFL | N |
| Historic Property: | N | Remodel Property: | N |
| Multi-Family Redevelopment: | N | | |
| Township: | 29N | Section: | 14 |
| Range: | 1W |
Location |
| Address: | 71 CENTER RD CHIMACUM, WA 98325 | Mapsco: | 021/015 |
| Neighborhood: | CLARK'S ADDN; AND CHIMACUM | Map ID: | |
| Neighborhood CD: | 4248 |
Owner |
| Name: | AMANDA O OBORNE | Owner ID: | 99921 |
| Mailing Address: | 71 CENTER RD CHIMACUM, WA 98325-8780 | % Ownership: | 100.0000000000% |
| | | Exemptions: | |
Pay Tax Due
Select the appropriate checkbox next to the year to be paid. Multiple years may be selected.
*Convenience Fee not included
Taxes and Assessment Details
Property Tax Information as of
03/13/2026
Click on "Statement Details" to expand or collapse a tax statement.
* Please enter a valid date ** Please enter a valid date *
Statement Details |
| 2026 | 15942 | STATE - STATE LEVY (SCHOOL) | $431.85 | $431.85 | $0.00 | $0.00 | $0.00 | $863.70 |
| 2026 | 15942 | COUNTY - COUNTY LEVIES (CE, DD, VET, MH) | $172.66 | $172.65 | $0.00 | $0.00 | $0.00 | $345.31 |
| 2026 | 15942 | CONSERVE - CONSERVATION FUTURES | $5.18 | $5.17 | $0.00 | $0.00 | $0.00 | $10.35 |
| 2026 | 15942 | COROADS - COUNTY ROADS (ROADS, DIV TO CE) | $139.29 | $139.28 | $0.00 | $0.00 | $0.00 | $278.57 |
| 2026 | 15942 | PORTPT - PORT DISTRICT | $69.73 | $69.73 | $0.00 | $0.00 | $0.00 | $139.46 |
| 2026 | 15942 | PUD1 - PUD #1 | $11.23 | $11.23 | $0.00 | $0.00 | $0.00 | $22.46 |
| 2026 | 15942 | LIB1 - LIBRARY DIST #1 | $53.89 | $53.88 | $0.00 | $0.00 | $0.00 | $107.77 |
| 2026 | 15942 | HD2 - HOSP DIST #2 | $10.07 | $10.07 | $0.00 | $0.00 | $0.00 | $20.14 |
| 2026 | 15942 | SD49 - SCHOOL DIST #49 | $237.73 | $237.71 | $0.00 | $0.00 | $0.00 | $475.44 |
| 2026 | 15942 | FD1 - FIRE DISTRICT #1 | $228.64 | $228.63 | $0.00 | $0.00 | $0.00 | $457.27 |
| 2026 | 15942 | EMS1 - FIRE DIST #1 EMS | $87.91 | $87.90 | $0.00 | $0.00 | $0.00 | $175.81 |
| 2026 | 15942 | JCCD - JC Conservation District | $2.55 | $2.55 | $0.00 | $0.00 | $0.00 | $5.10 |
| 2026 | 15942 | NWA - Noxious Weed Assessment | $2.98 | $2.97 | $0.00 | $0.00 | $0.00 | $5.95 |
| 2026 | 15942 | OSS - On Site Septic | $23.10 | $23.10 | $0.00 | $0.00 | $0.00 | $46.20 |
| 2026 | 15942 | WAT - Clean Water District | $13.00 | $13.00 | $0.00 | $0.00 | $0.00 | $26.00 |
| 2026 | 15942 | TOTAL: | $1489.81 | $1489.72 | $0.00 | $0.00 | $0.00 | $2979.53 |
|
| 2026 | 15942 | $1489.81 | $1489.72 | $0.00 | $0.00 | $0.00 | $2979.53 |
Statement Details |
| 2025 | 15996 | STATE - STATE LEVY (SCHOOL) | $346.49 | $346.47 | $0.00 | $0.00 | $692.96 | $0.00 |
| 2025 | 15996 | COUNTY - COUNTY LEVIES (CE, DD, VET, MH) | $136.25 | $136.25 | $0.00 | $0.00 | $272.50 | $0.00 |
| 2025 | 15996 | CONSERVE - CONSERVATION FUTURES | $4.09 | $4.08 | $0.00 | $0.00 | $8.17 | $0.00 |
| 2025 | 15996 | COROADS - COUNTY ROADS (ROADS, DIV TO CE) | $109.16 | $109.16 | $0.00 | $0.00 | $218.32 | $0.00 |
| 2025 | 15996 | PORTPT - PORT DISTRICT | $55.61 | $55.59 | $0.00 | $0.00 | $111.20 | $0.00 |
| 2025 | 15996 | PUD1 - PUD #1 | $8.92 | $8.91 | $0.00 | $0.00 | $17.83 | $0.00 |
| 2025 | 15996 | LIB1 - LIBRARY DIST #1 | $42.24 | $42.23 | $0.00 | $0.00 | $84.47 | $0.00 |
| 2025 | 15996 | HD2 - HOSP DIST #2 | $7.95 | $7.95 | $0.00 | $0.00 | $15.90 | $0.00 |
| 2025 | 15996 | SD49 - SCHOOL DIST #49 | $185.70 | $185.69 | $0.00 | $0.00 | $371.39 | $0.00 |
| 2025 | 15996 | FD1 - FIRE DISTRICT #1 | $179.80 | $179.80 | $0.00 | $0.00 | $359.60 | $0.00 |
| 2025 | 15996 | EMS1 - FIRE DIST #1 EMS | $69.16 | $69.15 | $0.00 | $0.00 | $138.31 | $0.00 |
| 2025 | 15996 | JCCD - JC Conservation District | $2.55 | $2.55 | $0.00 | $0.00 | $5.10 | $0.00 |
| 2025 | 15996 | NWA - Noxious Weed Assessment | $2.15 | $2.15 | $0.00 | $0.00 | $4.30 | $0.00 |
| 2025 | 15996 | OSS - On Site Septic | $21.50 | $21.50 | $0.00 | $0.00 | $43.00 | $0.00 |
| 2025 | 15996 | WAT - Clean Water District | $13.00 | $13.00 | $0.00 | $0.00 | $26.00 | $0.00 |
| 2025 | 15996 | TOTAL: | $1184.57 | $1184.48 | $0.00 | $0.00 | $2369.05 | $0.00 |
|
| 2025 | 15996 | $1184.57 | $1184.48 | $0.00 | $0.00 | $2369.05 | $0.00 |
Statement Details |
| 2024 | 16028 | STATE - STATE LEVY (SCHOOL) | $312.59 | $312.57 | $0.00 | $0.00 | $625.16 | $0.00 |
| 2024 | 16028 | COUNTY - COUNTY LEVIES (CE, DD, VET, MH) | $133.77 | $133.74 | $0.00 | $0.00 | $267.51 | $0.00 |
| 2024 | 16028 | CONSERVE - CONSERVATION FUTURES | $4.01 | $4.01 | $0.00 | $0.00 | $8.02 | $0.00 |
| 2024 | 16028 | COROADS - COUNTY ROADS (ROADS, DIV TO CE) | $107.64 | $107.62 | $0.00 | $0.00 | $215.26 | $0.00 |
| 2024 | 16028 | PORTPT - PORT DISTRICT | $55.25 | $55.24 | $0.00 | $0.00 | $110.49 | $0.00 |
| 2024 | 16028 | PUD1 - PUD #1 | $8.79 | $8.78 | $0.00 | $0.00 | $17.57 | $0.00 |
| 2024 | 16028 | LIB1 - LIBRARY DIST #1 | $41.64 | $41.64 | $0.00 | $0.00 | $83.28 | $0.00 |
| 2024 | 16028 | HD2 - HOSP DIST #2 | $7.81 | $7.80 | $0.00 | $0.00 | $15.61 | $0.00 |
| 2024 | 16028 | SD49 - SCHOOL DIST #49 | $139.58 | $139.58 | $0.00 | $0.00 | $279.16 | $0.00 |
| 2024 | 16028 | FD1 - FIRE DISTRICT #1 | $176.86 | $176.86 | $0.00 | $0.00 | $353.72 | $0.00 |
| 2024 | 16028 | EMS1 - FIRE DIST #1 EMS | $67.56 | $67.55 | $0.00 | $0.00 | $135.11 | $0.00 |
| 2024 | 16028 | JCCD - JC Conservation District | $2.55 | $2.55 | $0.00 | $0.00 | $5.10 | $0.00 |
| 2024 | 16028 | NWA - Noxious Weed Assessment | $2.15 | $2.15 | $0.00 | $0.00 | $4.30 | $0.00 |
| 2024 | 16028 | OSS - On Site Septic | $21.00 | $21.00 | $0.00 | $0.00 | $42.00 | $0.00 |
| 2024 | 16028 | WAT - Clean Water District | $12.50 | $12.50 | $0.00 | $0.00 | $25.00 | $0.00 |
| 2024 | 16028 | TOTAL: | $1093.70 | $1093.59 | $0.00 | $0.00 | $2187.29 | $0.00 |
|
| 2024 | 16028 | $1093.70 | $1093.59 | $0.00 | $0.00 | $2187.29 | $0.00 |
Statement Details |
| 2023 | 16052 | STATE - STATE LEVY (SCHOOL) | $289.16 | $289.14 | $0.00 | $0.00 | $578.30 | $0.00 |
| 2023 | 16052 | COUNTY - COUNTY LEVIES (CE, DD, VET, MH) | $126.19 | $126.16 | $0.00 | $0.00 | $252.35 | $0.00 |
| 2023 | 16052 | CONSERVE - CONSERVATION FUTURES | $3.79 | $3.78 | $0.00 | $0.00 | $7.57 | $0.00 |
| 2023 | 16052 | COROADS - COUNTY ROADS (ROADS, DIV TO CE) | $102.09 | $102.09 | $0.00 | $0.00 | $204.18 | $0.00 |
| 2023 | 16052 | PORTPT - PORT DISTRICT | $53.16 | $53.15 | $0.00 | $0.00 | $106.31 | $0.00 |
| 2023 | 16052 | PUD1 - PUD #1 | $8.37 | $8.36 | $0.00 | $0.00 | $16.73 | $0.00 |
| 2023 | 16052 | LIB1 - LIBRARY DIST #1 | $39.50 | $39.49 | $0.00 | $0.00 | $78.99 | $0.00 |
| 2023 | 16052 | HD2 - HOSP DIST #2 | $7.36 | $7.36 | $0.00 | $0.00 | $14.72 | $0.00 |
| 2023 | 16052 | SD49 - SCHOOL DIST #49 | $135.17 | $135.16 | $0.00 | $0.00 | $270.33 | $0.00 |
| 2023 | 16052 | FD1 - FIRE DISTRICT #1 | $103.95 | $103.94 | $0.00 | $0.00 | $207.89 | $0.00 |
| 2023 | 16052 | EMS1 - FIRE DIST #1 EMS | $44.22 | $44.21 | $0.00 | $0.00 | $88.43 | $0.00 |
| 2023 | 16052 | JCCD - JC Conservation District | $2.55 | $2.55 | $0.00 | $0.00 | $5.10 | $0.00 |
| 2023 | 16052 | NWA - Noxious Weed Assessment | $2.15 | $2.15 | $0.00 | $0.00 | $4.30 | $0.00 |
| 2023 | 16052 | OSS - On Site Septic | $20.50 | $20.50 | $0.00 | $0.00 | $41.00 | $0.00 |
| 2023 | 16052 | WAT - Clean Water District | $12.00 | $12.00 | $0.00 | $0.00 | $24.00 | $0.00 |
| 2023 | 16052 | TOTAL: | $950.16 | $950.04 | $0.00 | $0.00 | $1900.20 | $0.00 |
|
| 2023 | 16052 | $950.16 | $950.04 | $0.00 | $0.00 | $1900.20 | $0.00 |
Values
| (+) Improvement Homesite Value: | + | $0 | |
| (+) Improvement Non-Homesite Value: | + | $293,175 | |
| (+) Land Homesite Value: | + | $0 | |
| (+) Land Non-Homesite Value: | + | $82,500 | |
| (+) Curr Use (HS): | + | $0 | $0 |
| (+) Curr Use (NHS): | + | $0 | $0 |
| | | -------------------------- | |
| (=) Market Value: | = | $375,675 | |
| (–) Productivity Loss: | – | $0 | |
| | | -------------------------- | |
| (=) Subtotal: | = | $375,675 | |
| (+) Senior Appraised Value: | + | $0 | |
| (+) Non-Senior Appraised Value: | + | $375,675 | |
| | | -------------------------- | |
| (=) Total Appraised Value: | = | $375,675 | |
| (–) Senior Exemption Loss: | – | $0 | |
| (–) Exemption Loss: | – | $0 | |
| | | -------------------------- | |
| (=) Taxable Value: | = | $375,675 | |
Taxing Jurisdiction
| Owner: | AMANDA O OBORNE | | |
| % Ownership: | 100.0000000000% | | |
| Total Value: | $375,675 | | |
| Tax Area: | 0211 - 1-49F1E1H2L1 |
| CE | COUNTY CURRENT EXPENSE | 0.9034619479 | $375,675 | $375,675 | $339.41 | | |
| CNTYDD | DEVELOPMENTAL DISABILITIES | 0.0052121823 | $375,675 | $375,675 | $1.96 | | |
| CNTYVET | VETERANS RELIEF | 0.0052777810 | $375,675 | $375,675 | $1.98 | | |
| MENTAL | MENTAL HEALTH | 0.0052121823 | $375,675 | $375,675 | $1.96 | | |
| ROADS | COUNTY ROADS | 0.7415066410 | $375,675 | $375,675 | $278.57 | | |
| ROADSCU | COUNTY ROADS TO CUR EXP | 0.0000000000 | $375,675 | $375,675 | $0.00 | | |
| HOSP2CASH | HOSP DIST #2 GENERAL | 0.0536075306 | $375,675 | $375,675 | $20.14 | | |
| SCH49CP | SCHOOL DIST #49 CAP PROJ | 0.6279093905 | $375,675 | $375,675 | $235.89 | | |
| SCH49MO | SCHOOL DIST #49 EP & O | 0.6376483602 | $375,675 | $375,675 | $239.55 | | |
| CONSERVE | CONSERVATION FUTURES | 0.0275621078 | $375,675 | $375,675 | $10.35 | | |
| EMS1 | FIRE DIST #1 EMS | 0.4679948282 | $375,675 | $375,675 | $175.81 | | |
| FD1 | FIRE DIST #1 GENERAL | 1.2171942929 | $375,675 | $375,675 | $457.27 | | |
| LIB1 | LIBRARY DIST #1 GENERAL | 0.2868827388 | $375,675 | $375,675 | $107.77 | | |
| PORTPT | PORT OF PT GENERAL | 0.1134941229 | $375,675 | $375,675 | $42.64 | | |
| PORTPTIDD | PORT OF PT IDD 2019 | 0.2577346692 | $375,675 | $375,675 | $96.82 | | |
| PUD1 | PUD #1 GENERAL | 0.0597888892 | $375,675 | $375,675 | $22.46 | | |
| STATE | STATE SCHOOL PART 1 | 1.4940692947 | $375,675 | $375,675 | $561.28 | | |
| STATE2 | STATE SCHOOL PART 2 | 0.8050170049 | $375,675 | $375,675 | $302.42 | | |
| | Total Tax Rate: | 7.7095739644 | | | | | |
| | | | | Taxes w/Current Exemptions: | $2,896.28 | | |
| | | | | Taxes w/o Exemptions: | $2,896.28 | | |
Improvement / Building
| Improvement #1: | Residential Bldg | State Code: | 11 | 780.0 sqft | Value: | $293,175 |
| Bathrooms (#): | 1 (FULL) | Bedrooms (#): | 3 | | Exterior Wall: | SI/ST | Floor Construction: | FRAME | | Foundation: | CONPR | Heating/Cooling: | F/A | | Inside Verify: | YES-FIX | Roof Cover: | COMP |
|
| | Type | Description | Class CD | Sub Class CD | Year Built | Area |
| | MA | Main Area | 4 | 1S | 1920 | 780.0 |
| | HWPOR | House Wood Porch | 4 | * | 1920 | 80.0 |
| | BSMTF | House basement finished | 4 | * | 1920 | 585.0 |
| | BSMTU | House basement unfinished | 4 | * | 1920 | 195.0 |
| | HDECK | House Deck | 4 | * | 2016 | 121.0 |
Sketch
Property Image
Land
| 1 | 4248-1175S | | 0.0000 | 0.00 | 0.00 | 0.00 | 1.00 | $82,500 | $0 |
Roll Value History
| 2026 | N/A | N/A | N/A | N/A | N/A |
| 2025 | $293,175 | $82,500 | $0 | $375,675 | $375,675 |
| 2024 | $210,224 | $78,750 | $0 | $288,974 | $288,974 |
| 2023 | $200,213 | $70,000 | $0 | $270,213 | $270,213 |
| 2022 | $180,651 | $65,000 | $0 | $245,651 | $245,651 |
Deed and Sales History
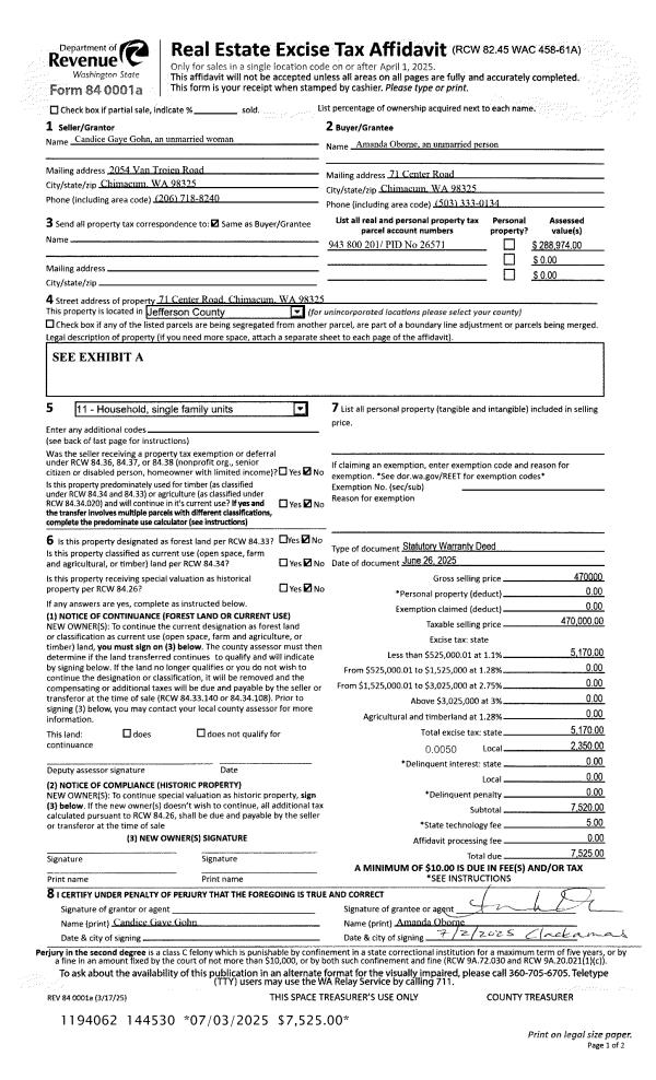
| 1 | 06/26/2025 | SWD | Statutory Warranty Deed | CANDICE G GOHN | AMANDA O OBORNE | | | $470,000.00 | 144530 | |
| 2 | 11/07/2016 | SPWD | Special Warranty Deed | RONALD G SPARKS | CANDICE G GOHN | | | $195,000.00 | 0 | |
| 3 | 04/21/2005 | SWD | Statutory Warranty Deed | FISK, TRAVIS S/APRIL K | SPARKS, RONALD G/SHARRON L | | | $0.00 | 103447 | 0 |
| 4 | 04/21/2005 | SWD | Statutory Warranty Deed | FISK, TRAVIS S/APRIL K | SPARKS, RONALD G/SHARRON L | | | $152,000.00 | 103327 | 0 |
| 5 | 04/23/1998 | SWD | Statutory Warranty Deed | PERRAN, FREDERICK J/JOHNN | FISK, TRAVIS S/APRIL K | 0 | 0 | $87,500.00 | 84313 | 0 |
Payout Agreement
| No payout information available.. |