Property
Account |
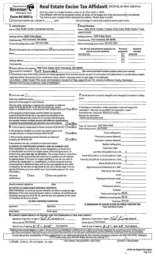
| Property ID: | 26626 | Abbreviated Legal Description: | WADE VAUGHN PLAT LOT 3 SUBJ TO EASE/REST OF RECORD |
| Parcel # / Geo ID: | 944800003 | Agent Code: | |
| Type: | Real | | |
| Tax Area: | 0110 - C-50F1E1H2 | Land Use Code | 11 |
| Open Space: | N | DFL | N |
| Historic Property: | N | Remodel Property: | N |
| Multi-Family Redevelopment: | N | | |
| Township: | 30N | Section: | 9 |
| Range: | 1W |
Location |
| Address: | 1859 EDDY ST PORT TOWNSEND, WA 98368 | Mapsco: | 145/003 |
| Neighborhood: | MOTOR LINE, COLUMBIA PARK, MADRONA RIDGE, WADE VAUGHN | Map ID: | |
| Neighborhood CD: | 6141 |
Owner |
| Name: | CARY SMITH HUNTER TRUST | Owner ID: | 113306 |
| Mailing Address: | CARY SMITH HUNTER TRUSTEE 1859 EDDY ST PORT TOWNSEND, WA 98368 | % Ownership: | 100.0000000000% |
| | | Exemptions: | |
Pay Tax Due
Select the appropriate checkbox next to the year to be paid. Multiple years may be selected.
*Convenience Fee not included
Taxes and Assessment Details
Property Tax Information as of
03/10/2026
Click on "Statement Details" to expand or collapse a tax statement.
* Please enter a valid date ** Please enter a valid date *
Statement Details |
| 2026 | 15996 | STATE - STATE LEVY (SCHOOL) | $401.42 | $401.41 | $0.00 | $0.00 | $0.00 | $802.83 |
| 2026 | 15996 | COUNTY - COUNTY LEVIES (CE, DD, VET, MH) | $160.48 | $160.48 | $0.00 | $0.00 | $0.00 | $320.96 |
| 2026 | 15996 | CONSERVE - CONSERVATION FUTURES | $4.81 | $4.81 | $0.00 | $0.00 | $0.00 | $9.62 |
| 2026 | 15996 | CITYPT - CITY OF PT | $227.81 | $227.78 | $0.00 | $0.00 | $0.00 | $455.59 |
| 2026 | 15996 | PORTPT - PORT DISTRICT | $64.82 | $64.81 | $0.00 | $0.00 | $0.00 | $129.63 |
| 2026 | 15996 | PUD1 - PUD #1 | $10.44 | $10.44 | $0.00 | $0.00 | $0.00 | $20.88 |
| 2026 | 15996 | HD2 - HOSP DIST #2 | $9.36 | $9.36 | $0.00 | $0.00 | $0.00 | $18.72 |
| 2026 | 15996 | SD50 - SCHOOL DIST #50 | $318.01 | $318.00 | $0.00 | $0.00 | $0.00 | $636.01 |
| 2026 | 15996 | FD1 - FIRE DISTRICT #1 | $212.52 | $212.51 | $0.00 | $0.00 | $0.00 | $425.03 |
| 2026 | 15996 | EMS1 - FIRE DIST #1 EMS | $81.71 | $81.71 | $0.00 | $0.00 | $0.00 | $163.42 |
| 2026 | 15996 | JCCD - JC Conservation District | $2.55 | $2.55 | $0.00 | $0.00 | $0.00 | $5.10 |
| 2026 | 15996 | NWA - Noxious Weed Assessment | $2.98 | $2.97 | $0.00 | $0.00 | $0.00 | $5.95 |
| 2026 | 15996 | TOTAL: | $1496.91 | $1496.83 | $0.00 | $0.00 | $0.00 | $2993.74 |
|
| 2026 | 15996 | $1496.91 | $1496.83 | $0.00 | $0.00 | $0.00 | $2993.74 |
Statement Details |
| 2025 | 16050 | STATE - STATE LEVY (SCHOOL) | $405.88 | $405.88 | $0.00 | $0.00 | $811.76 | $0.00 |
| 2025 | 16050 | COUNTY - COUNTY LEVIES (CE, DD, VET, MH) | $159.63 | $159.60 | $0.00 | $0.00 | $319.23 | $0.00 |
| 2025 | 16050 | CONSERVE - CONSERVATION FUTURES | $4.79 | $4.78 | $0.00 | $0.00 | $9.57 | $0.00 |
| 2025 | 16050 | CITYPT - CITY OF PT | $230.18 | $230.17 | $0.00 | $0.00 | $460.35 | $0.00 |
| 2025 | 16050 | PORTPT - PORT DISTRICT | $65.13 | $65.13 | $0.00 | $0.00 | $130.26 | $0.00 |
| 2025 | 16050 | PUD1 - PUD #1 | $10.45 | $10.44 | $0.00 | $0.00 | $20.89 | $0.00 |
| 2025 | 16050 | HD2 - HOSP DIST #2 | $9.31 | $9.31 | $0.00 | $0.00 | $18.62 | $0.00 |
| 2025 | 16050 | SD50 - SCHOOL DIST #50 | $296.64 | $296.62 | $0.00 | $0.00 | $593.26 | $0.00 |
| 2025 | 16050 | FD1 - FIRE DISTRICT #1 | $210.62 | $210.62 | $0.00 | $0.00 | $421.24 | $0.00 |
| 2025 | 16050 | EMS1 - FIRE DIST #1 EMS | $81.01 | $81.01 | $0.00 | $0.00 | $162.02 | $0.00 |
| 2025 | 16050 | JCCD - JC Conservation District | $2.55 | $2.55 | $0.00 | $0.00 | $5.10 | $0.00 |
| 2025 | 16050 | NWA - Noxious Weed Assessment | $2.15 | $2.15 | $0.00 | $0.00 | $4.30 | $0.00 |
| 2025 | 16050 | TOTAL: | $1478.34 | $1478.26 | $0.00 | $0.00 | $2956.60 | $0.00 |
|
| 2025 | 16050 | $1478.34 | $1478.26 | $0.00 | $0.00 | $2956.60 | $0.00 |
Statement Details |
| 2024 | 16082 | STATE - STATE LEVY (SCHOOL) | $368.28 | $368.27 | $0.00 | $0.00 | $736.55 | $0.00 |
| 2024 | 16082 | COUNTY - COUNTY LEVIES (CE, DD, VET, MH) | $157.59 | $157.58 | $0.00 | $0.00 | $315.17 | $0.00 |
| 2024 | 16082 | CONSERVE - CONSERVATION FUTURES | $4.73 | $4.72 | $0.00 | $0.00 | $9.45 | $0.00 |
| 2024 | 16082 | CITYPT - CITY OF PT | $225.18 | $225.16 | $0.00 | $0.00 | $450.34 | $0.00 |
| 2024 | 16082 | PORTPT - PORT DISTRICT | $65.09 | $65.09 | $0.00 | $0.00 | $130.18 | $0.00 |
| 2024 | 16082 | PUD1 - PUD #1 | $10.35 | $10.35 | $0.00 | $0.00 | $20.70 | $0.00 |
| 2024 | 16082 | HD2 - HOSP DIST #2 | $9.20 | $9.19 | $0.00 | $0.00 | $18.39 | $0.00 |
| 2024 | 16082 | SD50 - SCHOOL DIST #50 | $297.96 | $297.94 | $0.00 | $0.00 | $595.90 | $0.00 |
| 2024 | 16082 | FD1 - FIRE DISTRICT #1 | $208.37 | $208.37 | $0.00 | $0.00 | $416.74 | $0.00 |
| 2024 | 16082 | EMS1 - FIRE DIST #1 EMS | $79.59 | $79.59 | $0.00 | $0.00 | $159.18 | $0.00 |
| 2024 | 16082 | JCCD - JC Conservation District | $2.55 | $2.55 | $0.00 | $0.00 | $5.10 | $0.00 |
| 2024 | 16082 | NWA - Noxious Weed Assessment | $2.15 | $2.15 | $0.00 | $0.00 | $4.30 | $0.00 |
| 2024 | 16082 | TOTAL: | $1431.04 | $1430.96 | $0.00 | $0.00 | $2862.00 | $0.00 |
|
| 2024 | 16082 | $1431.04 | $1430.96 | $0.00 | $0.00 | $2862.00 | $0.00 |
Statement Details |
| 2023 | 16106 | STATE - STATE LEVY (SCHOOL) | $368.85 | $368.84 | $0.00 | $0.00 | $737.69 | $0.00 |
| 2023 | 16106 | COUNTY - COUNTY LEVIES (CE, DD, VET, MH) | $160.97 | $160.94 | $0.00 | $0.00 | $321.91 | $0.00 |
| 2023 | 16106 | CONSERVE - CONSERVATION FUTURES | $4.83 | $4.82 | $0.00 | $0.00 | $9.65 | $0.00 |
| 2023 | 16106 | CITYPT - CITY OF PT | $227.48 | $227.48 | $0.00 | $0.00 | $454.96 | $0.00 |
| 2023 | 16106 | PORTPT - PORT DISTRICT | $67.81 | $67.80 | $0.00 | $0.00 | $135.61 | $0.00 |
| 2023 | 16106 | PUD1 - PUD #1 | $10.67 | $10.67 | $0.00 | $0.00 | $21.34 | $0.00 |
| 2023 | 16106 | HD2 - HOSP DIST #2 | $9.40 | $9.39 | $0.00 | $0.00 | $18.79 | $0.00 |
| 2023 | 16106 | SD50 - SCHOOL DIST #50 | $292.70 | $292.67 | $0.00 | $0.00 | $585.37 | $0.00 |
| 2023 | 16106 | FD1 - FIRE DISTRICT #1 | $132.60 | $132.59 | $0.00 | $0.00 | $265.19 | $0.00 |
| 2023 | 16106 | EMS1 - FIRE DIST #1 EMS | $56.41 | $56.40 | $0.00 | $0.00 | $112.81 | $0.00 |
| 2023 | 16106 | JCCD - JC Conservation District | $2.55 | $2.55 | $0.00 | $0.00 | $5.10 | $0.00 |
| 2023 | 16106 | NWA - Noxious Weed Assessment | $2.15 | $2.15 | $0.00 | $0.00 | $4.30 | $0.00 |
| 2023 | 16106 | TOTAL: | $1336.42 | $1336.30 | $0.00 | $0.00 | $2672.72 | $0.00 |
|
| 2023 | 16106 | $1336.42 | $1336.30 | $0.00 | $0.00 | $2672.72 | $0.00 |
Values
| (+) Improvement Homesite Value: | + | $0 | |
| (+) Improvement Non-Homesite Value: | + | $244,192 | |
| (+) Land Homesite Value: | + | $0 | |
| (+) Land Non-Homesite Value: | + | $105,000 | |
| (+) Curr Use (HS): | + | $0 | $0 |
| (+) Curr Use (NHS): | + | $0 | $0 |
| | | -------------------------- | |
| (=) Market Value: | = | $349,192 | |
| (–) Productivity Loss: | – | $0 | |
| | | -------------------------- | |
| (=) Subtotal: | = | $349,192 | |
| (+) Senior Appraised Value: | + | $0 | |
| (+) Non-Senior Appraised Value: | + | $349,192 | |
| | | -------------------------- | |
| (=) Total Appraised Value: | = | $349,192 | |
| (–) Senior Exemption Loss: | – | $0 | |
| (–) Exemption Loss: | – | $0 | |
| | | -------------------------- | |
| (=) Taxable Value: | = | $349,192 | |
Taxing Jurisdiction
| Owner: | CARY SMITH HUNTER TRUST | | |
| % Ownership: | 100.0000000000% | | |
| Total Value: | $349,192 | | |
| Tax Area: | 0110 - C-50F1E1H2 |
| CE | COUNTY CURRENT EXPENSE | 0.9034619479 | $349,192 | $349,192 | $315.48 | | |
| CNTYDD | DEVELOPMENTAL DISABILITIES | 0.0052121823 | $349,192 | $349,192 | $1.82 | | |
| CNTYVET | VETERANS RELIEF | 0.0052777810 | $349,192 | $349,192 | $1.84 | | |
| MENTAL | MENTAL HEALTH | 0.0052121823 | $349,192 | $349,192 | $1.82 | | |
| PTGEN | CITY OF PT GENERAL | 0.8551967795 | $349,192 | $349,192 | $298.63 | | |
| PTLLL | CITY OF PT - LIBRARY LID LIFT | 0.4010114288 | $349,192 | $349,192 | $140.03 | | |
| PTMVBOND | CITY OF PT MV BOND | 0.0484717981 | $349,192 | $349,192 | $16.93 | | |
| HOSP2CASH | HOSP DIST #2 GENERAL | 0.0536075306 | $349,192 | $349,192 | $18.72 | | |
| SCH50BOND | SCHOOL DIST #50 BOND 2016 | 0.5377451389 | $349,192 | $349,192 | $187.78 | | |
| SCH50CP | SCHOOL DIST #50 CAP PROJ | 0.4573475088 | $349,192 | $349,192 | $159.70 | | |
| SCH50MO | SCHOOL DIST #50 EP & O | 0.8262822886 | $349,192 | $349,192 | $288.53 | | |
| CONSERVE | CONSERVATION FUTURES | 0.0275621078 | $349,192 | $349,192 | $9.62 | | |
| EMS1 | FIRE DIST #1 EMS | 0.4679948282 | $349,192 | $349,192 | $163.42 | | |
| FD1 | FIRE DIST #1 GENERAL | 1.2171942929 | $349,192 | $349,192 | $425.03 | | |
| PORTPT | PORT OF PT GENERAL | 0.1134941229 | $349,192 | $349,192 | $39.63 | | |
| PORTPTIDD | PORT OF PT IDD 2019 | 0.2577346692 | $349,192 | $349,192 | $90.00 | | |
| PUD1 | PUD #1 GENERAL | 0.0597888892 | $349,192 | $349,192 | $20.88 | | |
| STATE | STATE SCHOOL PART 1 | 1.4940692947 | $349,192 | $349,192 | $521.72 | | |
| STATE2 | STATE SCHOOL PART 2 | 0.8050170049 | $349,192 | $349,192 | $281.11 | | |
| | Total Tax Rate: | 8.5416817766 | | | | | |
| | | | | Taxes w/Current Exemptions: | $2,982.69 | | |
| | | | | Taxes w/o Exemptions: | $2,982.69 | | |
Improvement / Building
| Improvement #1: | Residential Bldg | State Code: | 11 | 1288.0 sqft | Value: | $244,192 |
| Bathrooms (#): | 2 (FULL) | Bedrooms (#): | 3 | | Exterior Wall: | SI/ST | Foundation: | 01BASE | | Heating/Cooling: | HPUMP | Roof Cover: | COMP |
|
| | Type | Description | Class CD | Sub Class CD | Year Built | Area |
| | MA | Main Area | 3 | 1S | 2018 | 1288.0 |
| | HWPOR | House Wood Porch | 3 | * | 2018 | 32.0 |
Sketch
Property Image
Land
| 1 | 6141-1175L | | 0.0000 | 0.00 | 0.00 | 0.00 | 1.00 | $105,000 | $0 |
Roll Value History
| 2026 | N/A | N/A | N/A | N/A | N/A |
| 2025 | $244,192 | $105,000 | $0 | $349,192 | $349,192 |
| 2024 | $233,509 | $105,000 | $0 | $338,509 | $338,509 |
| 2023 | $223,356 | $95,000 | $0 | $318,356 | $318,356 |
| 2022 | $223,356 | $90,000 | $0 | $313,356 | $313,356 |
Deed and Sales History
| 1 | 07/27/2025 | QCD | Quit Claim Deed | CARY SMITH HUNTER | CARY SMITH HUNTER TRUST | | | | 144912 | |
| 2 | 11/29/2023 | SWD | Statutory Warranty Deed | FREDERIK O & KIMBERLY S BOND | CARY SMITH HUNTER | | | $425,000.00 | 141948 | |
| 3 | 12/13/2019 | QCD | Quit Claim Deed | FREDERIK O BOND | FREDERIK O & KIMBERLY S BOND | | | | 133641 | |
| 4 | 12/18/2008 | SWD | Statutory Warranty Deed | TOWNSEND HOLDINGS LLC A W | BOND, FREDERIK O | 0 | 0 | $196,000.00 | 112314 | 0 |
|   | |
Payout Agreement
| No payout information available.. |