Property
Account |
| Property ID: | 26635 | Abbreviated Legal Description: | WADE VAUGHN PLAT LOT 12 - IMPS ONLY/ LAND COMPONENT #94480016 SUBJ TO EASE/REST OF RECORD SUBJ/REST COVT #561182 |
| Parcel # / Geo ID: | 944800012 | Agent Code: | |
| Type: | Real | | |
| Tax Area: | 0110 - C-50F1E1H2 | Land Use Code | 11 |
| Open Space: | N | DFL | N |
| Historic Property: | N | Remodel Property: | N |
| Multi-Family Redevelopment: | N | | |
| Township: | 30N | Section: | 9 |
| Range: | 1W |
Location |
| Address: | 1968 EDDY ST PORT TOWNSEND, WA 98368 | Mapsco: | 145/012 |
| Neighborhood: | MOTOR LINE, COLUMBIA PARK, MADRONA RIDGE, WADE VAUGHN | Map ID: | |
| Neighborhood CD: | 6141 |
Owner |
| Name: | KAREN WYMAN | Owner ID: | 92094 |
| Mailing Address: | 1968 EDDY ST PORT TOWNSEND, WA 98368-5941 | % Ownership: | 100.0000000000% |
| | | Exemptions: | SNR/DSBL |
Pay Tax Due
Select the appropriate checkbox next to the year to be paid. Multiple years may be selected.
*Convenience Fee not included
Taxes and Assessment Details
Property Tax Information as of
03/11/2026
Click on "Statement Details" to expand or collapse a tax statement.
* Please enter a valid date ** Please enter a valid date *
Statement Details |
| 2026 | 16005 | STATE - STATE LEVY (SCHOOL) | $28.55 | $28.54 | $0.00 | $0.00 | $0.00 | $57.09 |
| 2026 | 16005 | COUNTY - COUNTY LEVIES (CE, DD, VET, MH) | $17.56 | $17.56 | $0.00 | $0.00 | $0.00 | $35.12 |
| 2026 | 16005 | CONSERVE - CONSERVATION FUTURES | $0.53 | $0.52 | $0.00 | $0.00 | $0.00 | $1.05 |
| 2026 | 16005 | CITYPT - CITY OF PT | $24.00 | $24.00 | $0.00 | $0.00 | $0.00 | $48.00 |
| 2026 | 16005 | PORTPT - PORT DISTRICT | $7.10 | $7.09 | $0.00 | $0.00 | $0.00 | $14.19 |
| 2026 | 16005 | PUD1 - PUD #1 | $1.14 | $1.14 | $0.00 | $0.00 | $0.00 | $2.28 |
| 2026 | 16005 | HD2 - HOSP DIST #2 | $1.03 | $1.02 | $0.00 | $0.00 | $0.00 | $2.05 |
| 2026 | 16005 | SD50 - SCHOOL DIST #50 | $0.00 | $0.00 | $0.00 | $0.00 | $0.00 | $0.00 |
| 2026 | 16005 | FD1 - FIRE DISTRICT #1 | $23.26 | $23.25 | $0.00 | $0.00 | $0.00 | $46.51 |
| 2026 | 16005 | EMS1 - FIRE DIST #1 EMS | $8.94 | $8.94 | $0.00 | $0.00 | $0.00 | $17.88 |
| 2026 | 16005 | TOTAL: | $112.11 | $112.06 | $0.00 | $0.00 | $0.00 | $224.17 |
|
| 2026 | 16005 | $112.11 | $112.06 | $0.00 | $0.00 | $0.00 | $224.17 |
Statement Details |
| 2025 | 16059 | STATE - STATE LEVY (SCHOOL) | $43.72 | $43.71 | $0.00 | $0.00 | $87.43 | $0.00 |
| 2025 | 16059 | COUNTY - COUNTY LEVIES (CE, DD, VET, MH) | $26.45 | $26.44 | $0.00 | $0.00 | $52.89 | $0.00 |
| 2025 | 16059 | CONSERVE - CONSERVATION FUTURES | $0.80 | $0.79 | $0.00 | $0.00 | $1.59 | $0.00 |
| 2025 | 16059 | CITYPT - CITY OF PT | $36.71 | $36.69 | $0.00 | $0.00 | $73.40 | $0.00 |
| 2025 | 16059 | PORTPT - PORT DISTRICT | $10.80 | $10.78 | $0.00 | $0.00 | $21.58 | $0.00 |
| 2025 | 16059 | PUD1 - PUD #1 | $1.73 | $1.73 | $0.00 | $0.00 | $3.46 | $0.00 |
| 2025 | 16059 | HD2 - HOSP DIST #2 | $1.55 | $1.54 | $0.00 | $0.00 | $3.09 | $0.00 |
| 2025 | 16059 | SD50 - SCHOOL DIST #50 | $0.00 | $0.00 | $0.00 | $0.00 | $0.00 | $0.00 |
| 2025 | 16059 | FD1 - FIRE DISTRICT #1 | $34.90 | $34.89 | $0.00 | $0.00 | $69.79 | $0.00 |
| 2025 | 16059 | EMS1 - FIRE DIST #1 EMS | $13.42 | $13.42 | $0.00 | $0.00 | $26.84 | $0.00 |
| 2025 | 16059 | TOTAL: | $170.08 | $169.99 | $0.00 | $0.00 | $340.07 | $0.00 |
|
| 2025 | 16059 | $170.08 | $169.99 | $0.00 | $0.00 | $340.07 | $0.00 |
Statement Details |
| 2024 | 16091 | STATE - STATE LEVY (SCHOOL) | $42.23 | $42.22 | $0.00 | $0.00 | $84.45 | $0.00 |
| 2024 | 16091 | COUNTY - COUNTY LEVIES (CE, DD, VET, MH) | $27.77 | $27.75 | $0.00 | $0.00 | $55.52 | $0.00 |
| 2024 | 16091 | CONSERVE - CONSERVATION FUTURES | $0.83 | $0.83 | $0.00 | $0.00 | $1.66 | $0.00 |
| 2024 | 16091 | CITYPT - CITY OF PT | $38.15 | $38.14 | $0.00 | $0.00 | $76.29 | $0.00 |
| 2024 | 16091 | PORTPT - PORT DISTRICT | $11.47 | $11.47 | $0.00 | $0.00 | $22.94 | $0.00 |
| 2024 | 16091 | PUD1 - PUD #1 | $1.83 | $1.82 | $0.00 | $0.00 | $3.65 | $0.00 |
| 2024 | 16091 | HD2 - HOSP DIST #2 | $1.62 | $1.62 | $0.00 | $0.00 | $3.24 | $0.00 |
| 2024 | 16091 | SD50 - SCHOOL DIST #50 | $0.00 | $0.00 | $0.00 | $0.00 | $0.00 | $0.00 |
| 2024 | 16091 | FD1 - FIRE DISTRICT #1 | $36.71 | $36.71 | $0.00 | $0.00 | $73.42 | $0.00 |
| 2024 | 16091 | EMS1 - FIRE DIST #1 EMS | $14.02 | $14.02 | $0.00 | $0.00 | $28.04 | $0.00 |
| 2024 | 16091 | TOTAL: | $174.63 | $174.58 | $0.00 | $0.00 | $349.21 | $0.00 |
|
| 2024 | 16091 | $174.63 | $174.58 | $0.00 | $0.00 | $349.21 | $0.00 |
Statement Details |
| 2023 | 16115 | STATE - STATE LEVY (SCHOOL) | $43.01 | $43.01 | $0.00 | $0.00 | $86.02 | $0.00 |
| 2023 | 16115 | COUNTY - COUNTY LEVIES (CE, DD, VET, MH) | $28.83 | $28.79 | $0.00 | $0.00 | $57.62 | $0.00 |
| 2023 | 16115 | CONSERVE - CONSERVATION FUTURES | $0.87 | $0.86 | $0.00 | $0.00 | $1.73 | $0.00 |
| 2023 | 16115 | CITYPT - CITY OF PT | $39.11 | $39.11 | $0.00 | $0.00 | $78.22 | $0.00 |
| 2023 | 16115 | PORTPT - PORT DISTRICT | $12.14 | $12.13 | $0.00 | $0.00 | $24.27 | $0.00 |
| 2023 | 16115 | PUD1 - PUD #1 | $1.91 | $1.91 | $0.00 | $0.00 | $3.82 | $0.00 |
| 2023 | 16115 | HD2 - HOSP DIST #2 | $1.69 | $1.67 | $0.00 | $0.00 | $3.36 | $0.00 |
| 2023 | 16115 | SD50 - SCHOOL DIST #50 | $0.00 | $0.00 | $0.00 | $0.00 | $0.00 | $0.00 |
| 2023 | 16115 | FD1 - FIRE DISTRICT #1 | $23.73 | $23.73 | $0.00 | $0.00 | $47.46 | $0.00 |
| 2023 | 16115 | EMS1 - FIRE DIST #1 EMS | $10.10 | $10.09 | $0.00 | $0.00 | $20.19 | $0.00 |
| 2023 | 16115 | TOTAL: | $161.39 | $161.30 | $0.00 | $0.00 | $322.69 | $0.00 |
|
| 2023 | 16115 | $161.39 | $161.30 | $0.00 | $0.00 | $322.69 | $0.00 |
Values
| (+) Improvement Homesite Value: | + | $208,777 | |
| (+) Improvement Non-Homesite Value: | + | $0 | |
| (+) Land Homesite Value: | + | $0 | |
| (+) Land Non-Homesite Value: | + | $0 | |
| (+) Curr Use (HS): | + | $0 | $0 |
| (+) Curr Use (NHS): | + | $0 | $0 |
| | | -------------------------- | |
| (=) Market Value: | = | $208,777 | |
| (–) Productivity Loss: | – | $0 | |
| | | -------------------------- | |
| (=) Subtotal: | = | $208,777 | |
| (+) Senior Appraised Value: | + | $98,213 | |
| (+) Non-Senior Appraised Value: | + | $0 | |
| | | -------------------------- | |
| (=) Total Appraised Value: | = | $98,213 | |
| (–) Senior Exemption Loss: | – | $60,000 | |
| (–) Exemption Loss: | – | $0 | |
| | | -------------------------- | |
| (=) Taxable Value: | = | $38,213 | |
Taxing Jurisdiction
| Owner: | KAREN WYMAN | | |
| % Ownership: | 100.0000000000% | | |
| Total Value: | $208,777 | | |
| Tax Area: | 0110 - C-50F1E1H2 |
| CE | COUNTY CURRENT EXPENSE | 0.9034619479 | $208,777 | $38,213 | $34.52 | | |
| CNTYDD | DEVELOPMENTAL DISABILITIES | 0.0052121823 | $208,777 | $38,213 | $0.20 | | |
| CNTYVET | VETERANS RELIEF | 0.0052777810 | $208,777 | $38,213 | $0.20 | | |
| MENTAL | MENTAL HEALTH | 0.0052121823 | $208,777 | $38,213 | $0.20 | | |
| PTGEN | CITY OF PT GENERAL | 0.8551967795 | $208,777 | $38,213 | $32.68 | | |
| PTLLL | CITY OF PT - LIBRARY LID LIFT | 0.4010114288 | $208,777 | $38,213 | $15.32 | | |
| PTMVBOND | CITY OF PT MV BOND | 0.0000000000 | $208,777 | $0 | $0.00 | | |
| HOSP2CASH | HOSP DIST #2 GENERAL | 0.0536075306 | $208,777 | $38,213 | $2.05 | | |
| SCH50BOND | SCHOOL DIST #50 BOND 2016 | 0.0000000000 | $208,777 | $0 | $0.00 | | |
| SCH50CP | SCHOOL DIST #50 CAP PROJ | 0.0000000000 | $208,777 | $0 | $0.00 | | |
| SCH50MO | SCHOOL DIST #50 EP & O | 0.0000000000 | $208,777 | $0 | $0.00 | | |
| CONSERVE | CONSERVATION FUTURES | 0.0275621078 | $208,777 | $38,213 | $1.05 | | |
| EMS1 | FIRE DIST #1 EMS | 0.4679948282 | $208,777 | $38,213 | $17.88 | | |
| FD1 | FIRE DIST #1 GENERAL | 1.2171942929 | $208,777 | $38,213 | $46.51 | | |
| PORTPT | PORT OF PT GENERAL | 0.1134941229 | $208,777 | $38,213 | $4.34 | | |
| PORTPTIDD | PORT OF PT IDD 2019 | 0.2577346692 | $208,777 | $38,213 | $9.85 | | |
| PUD1 | PUD #1 GENERAL | 0.0597888892 | $208,777 | $38,213 | $2.28 | | |
| STATE | STATE SCHOOL PART 1 | 1.4940692947 | $208,777 | $38,213 | $57.09 | | |
| STATE2 | STATE SCHOOL PART 2 | 0.0000000000 | $208,777 | $0 | $0.00 | | |
| | Total Tax Rate: | 5.8668180373 | | | | | |
| | | | | Taxes w/Current Exemptions: | $224.17 | | |
| | | | | Taxes w/o Exemptions: | $1,783.30 | | |
Improvement / Building
| Improvement #1: | Residential Bldg | State Code: | 11 | 964.0 sqft | Value: | $208,777 |
| Bathrooms (#): | 1 (FULL) | Bathrooms (#): | 1 (HALF) | | Bedrooms (#): | 2 | Exterior Wall: | SI/ST | | Floor Construction: | FRAME | Foundation: | CONPR | | Heating/Cooling: | ELBB | Inside Verify: | NO | | Roof Cover: | COMP |   |   |
|
| | Type | Description | Class CD | Sub Class CD | Year Built | Area |
| | MA | Main Area | 3+ | 1S | 2011 | 964.0 |
| | HCPOR | House Concrete Porch | 3 | * | 2011 | 92.0 |
| | SHED | Shed (Table Not Dep) | 3 | * | 2011 | 64.0 |
Sketch
Property Image
Land
No land segments exist for this property.
Roll Value History
| 2026 | N/A | N/A | N/A | N/A | N/A |
| 2025 | $208,777 | $0 | $0 | $208,777 | $38,213 |
| 2024 | $184,569 | $86,625 | $0 | $271,194 | $56,085 |
| 2023 | $176,545 | $77,500 | $0 | $254,045 | $56,085 |
| 2022 | $176,544 | $72,500 | $0 | $249,044 | $56,085 |
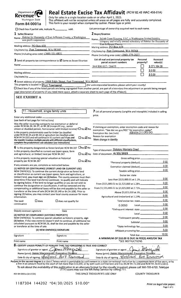
Deed and Sales History
| 1 | 04/25/2025 | SWD | Statutory Warranty Deed | | SALISH COAST HOUSING, LLC | | | | 144202 | LND ONLY |
| 2 | 04/29/2025 | SWD | Statutory Warranty Deed | KAREN WYMAN | HABITAT FOR HUMANITY OF EAST | | | $68,500.00 | 144200 | LND ONLY |
|   | |
| 3 | 06/18/2014 | SWD | Statutory Warranty Deed | HABITAT FOR HUMANITY OF EAST | KAREN WYMAN | | | $148,000.00 | 121407 | |
| 4 | 09/03/2013 | SWD | Statutory Warranty Deed | LYNDA S VARNET | HABITAT FOR HUMANITY OF EAST | | | $140,000.00 | 120023 | |
| 5 | 01/17/2012 | SWD | Statutory Warranty Deed | HABITAT FOR HUMANITY OF E | VARNET, LYNDA SUE | 0 | 0 | $132,200.00 | 117085 | 0 |
| 6 | 04/15/2009 | SWD | Statutory Warranty Deed | TOWNSEND HOLDINGS LLC | HABITAT FOR HUMANITY EJ | | | $279,000.00 | 112824 | 0 |
Payout Agreement
| No payout information available.. |