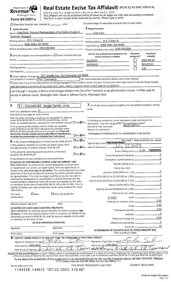
Property
Account |
| Property ID: | 26657 | Abbreviated Legal Description: | CORRIGAN'S ADDITION BLK 4 LOTS 2, 3 & 4 CERT/LOTS OF RECORD #516097 |
| Parcel # / Geo ID: | 945300401 | Agent Code: | |
| Type: | Real | | |
| Tax Area: | 0110 - C-50F1E1H2 | Land Use Code | 11 |
| Open Space: | N | DFL | N |
| Historic Property: | N | Remodel Property: | N |
| Multi-Family Redevelopment: | N | | |
| Township: | 30N | Section: | 3 |
| Range: | 1W |
Location |
| Address: | 1677 UMATILLA AVE PORT TOWNSEND, WA 98368 | Mapsco: | 016/030 |
| Neighborhood: | CORRIGAN & KITTINGERS PLATS AND ACREAGE (TAX 37 - 39) | Map ID: | |
| Neighborhood CD: | 6070 |
Owner |
| Name: | LINDA L SUTOR REV LIV TRUST | Owner ID: | 114079 |
| Mailing Address: | LINDA L SUTOR TRUSTEE 25 S CLINTON ST WALLA WALLA, WA 99362-5025 | % Ownership: | 100.0000000000% |
| | | Exemptions: | |
Pay Tax Due
There is currently No Amount Due on this property.
Taxes and Assessment Details
Property Tax Information as of
03/11/2026
Click on "Statement Details" to expand or collapse a tax statement.
* Please enter a valid date ** Please enter a valid date *
Statement Details |
| | TOTAL: | $0.00 | $0.00 | $0.00 | $0.00 | $0.00 | $0.00 |
|
| | $0.00 | $0.00 | $0.00 | $0.00 | $0.00 | $0.00 |
Values
| (+) Improvement Homesite Value: | + | $411,629 | |
| (+) Improvement Non-Homesite Value: | + | $0 | |
| (+) Land Homesite Value: | + | $164,850 | |
| (+) Land Non-Homesite Value: | + | $0 | |
| (+) Curr Use (HS): | + | $0 | $0 |
| (+) Curr Use (NHS): | + | $0 | $0 |
| | | -------------------------- | |
| (=) Market Value: | = | $576,479 | |
| (–) Productivity Loss: | – | $0 | |
| | | -------------------------- | |
| (=) Subtotal: | = | $576,479 | |
| (+) Senior Appraised Value: | + | $0 | |
| (+) Non-Senior Appraised Value: | + | $576,479 | |
| | | -------------------------- | |
| (=) Total Appraised Value: | = | $576,479 | |
| (–) Senior Exemption Loss: | – | $0 | |
| (–) Exemption Loss: | – | $0 | |
| | | -------------------------- | |
| (=) Taxable Value: | = | $576,479 | |
Taxing Jurisdiction
| Owner: | LINDA L SUTOR REV LIV TRUST | | |
| % Ownership: | 100.0000000000% | | |
| Total Value: | $576,479 | | |
| Tax Area: | 0110 - C-50F1E1H2 |
| CE | COUNTY CURRENT EXPENSE | 0.9034619479 | $576,479 | $576,479 | $520.83 | | |
| CNTYDD | DEVELOPMENTAL DISABILITIES | 0.0052121823 | $576,479 | $576,479 | $3.00 | | |
| CNTYVET | VETERANS RELIEF | 0.0052777810 | $576,479 | $576,479 | $3.04 | | |
| MENTAL | MENTAL HEALTH | 0.0052121823 | $576,479 | $576,479 | $3.00 | | |
| PTGEN | CITY OF PT GENERAL | 0.8551967795 | $576,479 | $576,479 | $493.00 | | |
| PTLLL | CITY OF PT - LIBRARY LID LIFT | 0.4010114288 | $576,479 | $576,479 | $231.17 | | |
| PTMVBOND | CITY OF PT MV BOND | 0.0484717981 | $576,479 | $576,479 | $27.94 | | |
| HOSP2CASH | HOSP DIST #2 GENERAL | 0.0536075306 | $576,479 | $576,479 | $30.90 | | |
| SCH50BOND | SCHOOL DIST #50 BOND 2016 | 0.5377451389 | $576,479 | $576,479 | $310.00 | | |
| SCH50CP | SCHOOL DIST #50 CAP PROJ | 0.4573475088 | $576,479 | $576,479 | $263.65 | | |
| SCH50MO | SCHOOL DIST #50 EP & O | 0.8262822886 | $576,479 | $576,479 | $476.33 | | |
| CONSERVE | CONSERVATION FUTURES | 0.0275621078 | $576,479 | $576,479 | $15.89 | | |
| EMS1 | FIRE DIST #1 EMS | 0.4679948282 | $576,479 | $576,479 | $269.79 | | |
| FD1 | FIRE DIST #1 GENERAL | 1.2171942929 | $576,479 | $576,479 | $701.69 | | |
| PORTPT | PORT OF PT GENERAL | 0.1134941229 | $576,479 | $576,479 | $65.43 | | |
| PORTPTIDD | PORT OF PT IDD 2019 | 0.2577346692 | $576,479 | $576,479 | $148.58 | | |
| PUD1 | PUD #1 GENERAL | 0.0597888892 | $576,479 | $576,479 | $34.47 | | |
| STATE | STATE SCHOOL PART 1 | 1.4940692947 | $576,479 | $576,479 | $861.30 | | |
| STATE2 | STATE SCHOOL PART 2 | 0.8050170049 | $576,479 | $576,479 | $464.08 | | |
| | Total Tax Rate: | 8.5416817766 | | | | | |
| | | | | Taxes w/Current Exemptions: | $4,924.09 | | |
| | | | | Taxes w/o Exemptions: | $4,924.09 | | |
Improvement / Building
| Improvement #1: | Residential Bldg | State Code: | 11 | 1728.0 sqft | Value: | $411,629 |
| Bathrooms (#): | 1 (FULL) | Bathrooms (#): | 1 (HALF) | | Bedrooms (#): | 2 | Exterior Wall: | SI/ST | | Fireplace: | WD ST-GOOD | Floor Construction: | FRAME | | Foundation: | CONPR | Heating/Cooling: | ELBB | | Roof Cover: | METAL |   |   |
|
| | Type | Description | Class CD | Sub Class CD | Year Built | Area |
| | MA | Main Area | 4- | 2S | 1987 | 864.0 |
| | MA2 | Second Floor Main Area | 4- | 2S | 1987 | 864.0 |
| | HWPOR | House Wood Porch | 4 | * | 1987 | 240.0 |
| | GDET | Detached Garage | 4 | 2S | 1987 | 468.0 |
| | HATTIC | House Attic | 4 | * | 1987 | 432.0 |
| | PATIO | House Patio | 4 | * | 1987 | 485.0 |
| | HWPOR | House Wood Porch | 3 | * | 2018 | 77.0 |
Sketch
Property Image
Land
| 1 | 6070-1176L | Lots Along Unimproved Roads or XS Lots | 0.0000 | 0.00 | 0.00 | 0.00 | 1.00 | $17,850 | $0 |
| 2 | 6070-1175L | Standard Lot (2+/-) with Developed Access | 0.0000 | 0.00 | 0.00 | 0.00 | 2.00 | $147,000 | $0 |
Roll Value History
| 2026 | N/A | N/A | N/A | N/A | N/A |
| 2025 | $411,629 | $164,850 | $0 | $576,479 | $576,479 |
| 2024 | $329,748 | $162,750 | $0 | $492,498 | $63,139 |
| 2023 | $315,411 | $150,000 | $0 | $465,411 | $63,139 |
| 2022 | $315,411 | $145,000 | $0 | $460,411 | $63,139 |
Deed and Sales History
| 1 | 02/12/2026 | QCD | Quit Claim Deed | LINDA SUTOR | LINDA L SUTOR REV LIV TRUST | | | | 145676 | |
| 2 | 07/22/2025 | PRD | Personal Representatives Deed | LESTER J TAVENNER | LINDA SUTOR | | | | 144612 | |
| 3 | 01/03/2019 | LOP | Lack of Probate | | | | | | 131645 | |
Payout Agreement
| No payout information available.. |