Property
Account |
| Property ID: | 26659 | Abbreviated Legal Description: | CORRIGAN'S ADDITION BLK 4 LOTS 5, 6 & 7 CERT/LOTS OF RECORD#516097 |
| Parcel # / Geo ID: | 945300403 | Agent Code: | |
| Type: | Real | | |
| Tax Area: | 0110 - C-50F1E1H2 | Land Use Code | 91 |
| Open Space: | N | DFL | N |
| Historic Property: | N | Remodel Property: | N |
| Multi-Family Redevelopment: | N | | |
| Township: | 30N | Section: | 3 |
| Range: | 1W |
Location |
| Address: | | Mapsco: | 016/032 |
| Neighborhood: | CORRIGAN & KITTINGERS PLATS AND ACREAGE (TAX 37 - 39) | Map ID: | |
| Neighborhood CD: | 6070 |
Owner |
| Name: | LINDA L SUTOR REV LIV TRUST | Owner ID: | 114079 |
| Mailing Address: | LINDA L SUTOR TRUSTEE 25 S CLINTON ST WALLA WALLA, WA 99362-5025 | % Ownership: | 100.0000000000% |
| | | Exemptions: | |
Pay Tax Due
Select the appropriate checkbox next to the year to be paid. Multiple years may be selected.
*Convenience Fee not included
Taxes and Assessment Details
Property Tax Information as of
03/10/2026
Click on "Statement Details" to expand or collapse a tax statement.
* Please enter a valid date ** Please enter a valid date *
Statement Details |
| 2026 | 16029 | STATE - STATE LEVY (SCHOOL) | $77.51 | $77.51 | $0.00 | $0.00 | $0.00 | $155.02 |
| 2026 | 16029 | COUNTY - COUNTY LEVIES (CE, DD, VET, MH) | $31.00 | $30.98 | $0.00 | $0.00 | $0.00 | $61.98 |
| 2026 | 16029 | CONSERVE - CONSERVATION FUTURES | $0.93 | $0.93 | $0.00 | $0.00 | $0.00 | $1.86 |
| 2026 | 16029 | CITYPT - CITY OF PT | $43.99 | $43.98 | $0.00 | $0.00 | $0.00 | $87.97 |
| 2026 | 16029 | PORTPT - PORT DISTRICT | $12.52 | $12.51 | $0.00 | $0.00 | $0.00 | $25.03 |
| 2026 | 16029 | PUD1 - PUD #1 | $2.02 | $2.01 | $0.00 | $0.00 | $0.00 | $4.03 |
| 2026 | 16029 | HD2 - HOSP DIST #2 | $1.81 | $1.80 | $0.00 | $0.00 | $0.00 | $3.61 |
| 2026 | 16029 | SD50 - SCHOOL DIST #50 | $61.41 | $61.40 | $0.00 | $0.00 | $0.00 | $122.81 |
| 2026 | 16029 | FD1 - FIRE DISTRICT #1 | $41.04 | $41.03 | $0.00 | $0.00 | $0.00 | $82.07 |
| 2026 | 16029 | EMS1 - FIRE DIST #1 EMS | $15.78 | $15.77 | $0.00 | $0.00 | $0.00 | $31.55 |
| 2026 | 16029 | JCCD - JC Conservation District | $2.53 | $2.53 | $0.00 | $0.00 | $0.00 | $5.06 |
| 2026 | 16029 | NWA - Noxious Weed Assessment | $2.98 | $2.97 | $0.00 | $0.00 | $0.00 | $5.95 |
| 2026 | 16029 | WAT - Clean Water District | $13.00 | $13.00 | $0.00 | $0.00 | $0.00 | $26.00 |
| 2026 | 16029 | TOTAL: | $306.52 | $306.42 | $0.00 | $0.00 | $0.00 | $612.94 |
|
| 2026 | 16029 | $306.52 | $306.42 | $0.00 | $0.00 | $0.00 | $612.94 |
Statement Details |
| 2025 | 16083 | STATE - STATE LEVY (SCHOOL) | $78.70 | $78.68 | $0.00 | $0.00 | $157.38 | $0.00 |
| 2025 | 16083 | COUNTY - COUNTY LEVIES (CE, DD, VET, MH) | $30.96 | $30.92 | $0.00 | $0.00 | $61.88 | $0.00 |
| 2025 | 16083 | CONSERVE - CONSERVATION FUTURES | $0.93 | $0.93 | $0.00 | $0.00 | $1.86 | $0.00 |
| 2025 | 16083 | CITYPT - CITY OF PT | $44.63 | $44.61 | $0.00 | $0.00 | $89.24 | $0.00 |
| 2025 | 16083 | PORTPT - PORT DISTRICT | $12.63 | $12.62 | $0.00 | $0.00 | $25.25 | $0.00 |
| 2025 | 16083 | PUD1 - PUD #1 | $2.03 | $2.02 | $0.00 | $0.00 | $4.05 | $0.00 |
| 2025 | 16083 | HD2 - HOSP DIST #2 | $1.81 | $1.80 | $0.00 | $0.00 | $3.61 | $0.00 |
| 2025 | 16083 | SD50 - SCHOOL DIST #50 | $57.51 | $57.50 | $0.00 | $0.00 | $115.01 | $0.00 |
| 2025 | 16083 | FD1 - FIRE DISTRICT #1 | $40.83 | $40.83 | $0.00 | $0.00 | $81.66 | $0.00 |
| 2025 | 16083 | EMS1 - FIRE DIST #1 EMS | $15.71 | $15.70 | $0.00 | $0.00 | $31.41 | $0.00 |
| 2025 | 16083 | JCCD - JC Conservation District | $2.53 | $2.53 | $0.00 | $0.00 | $5.06 | $0.00 |
| 2025 | 16083 | NWA - Noxious Weed Assessment | $2.15 | $2.15 | $0.00 | $0.00 | $4.30 | $0.00 |
| 2025 | 16083 | WAT - Clean Water District | $13.00 | $13.00 | $0.00 | $0.00 | $26.00 | $0.00 |
| 2025 | 16083 | TOTAL: | $303.42 | $303.29 | $0.00 | $0.00 | $606.71 | $0.00 |
|
| 2025 | 16083 | $303.42 | $303.29 | $0.00 | $0.00 | $606.71 | $0.00 |
Statement Details |
| 2024 | 16115 | STATE - STATE LEVY (SCHOOL) | $72.31 | $72.29 | $0.00 | $0.00 | $144.60 | $0.00 |
| 2024 | 16115 | COUNTY - COUNTY LEVIES (CE, DD, VET, MH) | $30.95 | $30.92 | $0.00 | $0.00 | $61.87 | $0.00 |
| 2024 | 16115 | CONSERVE - CONSERVATION FUTURES | $0.93 | $0.93 | $0.00 | $0.00 | $1.86 | $0.00 |
| 2024 | 16115 | CITYPT - CITY OF PT | $44.22 | $44.19 | $0.00 | $0.00 | $88.41 | $0.00 |
| 2024 | 16115 | PORTPT - PORT DISTRICT | $12.78 | $12.78 | $0.00 | $0.00 | $25.56 | $0.00 |
| 2024 | 16115 | PUD1 - PUD #1 | $2.03 | $2.03 | $0.00 | $0.00 | $4.06 | $0.00 |
| 2024 | 16115 | HD2 - HOSP DIST #2 | $1.81 | $1.80 | $0.00 | $0.00 | $3.61 | $0.00 |
| 2024 | 16115 | SD50 - SCHOOL DIST #50 | $58.50 | $58.49 | $0.00 | $0.00 | $116.99 | $0.00 |
| 2024 | 16115 | FD1 - FIRE DISTRICT #1 | $40.91 | $40.90 | $0.00 | $0.00 | $81.81 | $0.00 |
| 2024 | 16115 | EMS1 - FIRE DIST #1 EMS | $15.63 | $15.62 | $0.00 | $0.00 | $31.25 | $0.00 |
| 2024 | 16115 | JCCD - JC Conservation District | $2.53 | $2.53 | $0.00 | $0.00 | $5.06 | $0.00 |
| 2024 | 16115 | NWA - Noxious Weed Assessment | $2.15 | $2.15 | $0.00 | $0.00 | $4.30 | $0.00 |
| 2024 | 16115 | WAT - Clean Water District | $12.50 | $12.50 | $0.00 | $0.00 | $25.00 | $0.00 |
| 2024 | 16115 | TOTAL: | $297.25 | $297.13 | $0.00 | $0.00 | $594.38 | $0.00 |
|
| 2024 | 16115 | $297.25 | $297.13 | $0.00 | $0.00 | $594.38 | $0.00 |
Statement Details |
| 2023 | 16139 | STATE - STATE LEVY (SCHOOL) | $73.57 | $73.56 | $0.00 | $0.00 | $147.13 | $0.00 |
| 2023 | 16139 | COUNTY - COUNTY LEVIES (CE, DD, VET, MH) | $32.11 | $32.09 | $0.00 | $0.00 | $64.20 | $0.00 |
| 2023 | 16139 | CONSERVE - CONSERVATION FUTURES | $0.97 | $0.96 | $0.00 | $0.00 | $1.93 | $0.00 |
| 2023 | 16139 | CITYPT - CITY OF PT | $45.38 | $45.36 | $0.00 | $0.00 | $90.74 | $0.00 |
| 2023 | 16139 | PORTPT - PORT DISTRICT | $13.53 | $13.52 | $0.00 | $0.00 | $27.05 | $0.00 |
| 2023 | 16139 | PUD1 - PUD #1 | $2.13 | $2.13 | $0.00 | $0.00 | $4.26 | $0.00 |
| 2023 | 16139 | HD2 - HOSP DIST #2 | $1.88 | $1.87 | $0.00 | $0.00 | $3.75 | $0.00 |
| 2023 | 16139 | SD50 - SCHOOL DIST #50 | $58.38 | $58.37 | $0.00 | $0.00 | $116.75 | $0.00 |
| 2023 | 16139 | FD1 - FIRE DISTRICT #1 | $26.45 | $26.44 | $0.00 | $0.00 | $52.89 | $0.00 |
| 2023 | 16139 | EMS1 - FIRE DIST #1 EMS | $11.25 | $11.25 | $0.00 | $0.00 | $22.50 | $0.00 |
| 2023 | 16139 | JCCD - JC Conservation District | $2.53 | $2.53 | $0.00 | $0.00 | $5.06 | $0.00 |
| 2023 | 16139 | NWA - Noxious Weed Assessment | $2.15 | $2.15 | $0.00 | $0.00 | $4.30 | $0.00 |
| 2023 | 16139 | WAT - Clean Water District | $12.00 | $12.00 | $0.00 | $0.00 | $24.00 | $0.00 |
| 2023 | 16139 | TOTAL: | $282.33 | $282.23 | $0.00 | $0.00 | $564.56 | $0.00 |
|
| 2023 | 16139 | $282.33 | $282.23 | $0.00 | $0.00 | $564.56 | $0.00 |
Values
| (+) Improvement Homesite Value: | + | $0 | |
| (+) Improvement Non-Homesite Value: | + | $0 | |
| (+) Land Homesite Value: | + | $0 | |
| (+) Land Non-Homesite Value: | + | $67,425 | |
| (+) Curr Use (HS): | + | $0 | $0 |
| (+) Curr Use (NHS): | + | $0 | $0 |
| | | -------------------------- | |
| (=) Market Value: | = | $67,425 | |
| (–) Productivity Loss: | – | $0 | |
| | | -------------------------- | |
| (=) Subtotal: | = | $67,425 | |
| (+) Senior Appraised Value: | + | $0 | |
| (+) Non-Senior Appraised Value: | + | $67,425 | |
| | | -------------------------- | |
| (=) Total Appraised Value: | = | $67,425 | |
| (–) Senior Exemption Loss: | – | $0 | |
| (–) Exemption Loss: | – | $0 | |
| | | -------------------------- | |
| (=) Taxable Value: | = | $67,425 | |
Taxing Jurisdiction
| Owner: | LINDA L SUTOR REV LIV TRUST | | |
| % Ownership: | 100.0000000000% | | |
| Total Value: | $67,425 | | |
| Tax Area: | 0110 - C-50F1E1H2 |
| CE | COUNTY CURRENT EXPENSE | 0.9034619479 | $67,425 | $67,425 | $60.92 | | |
| CNTYDD | DEVELOPMENTAL DISABILITIES | 0.0052121823 | $67,425 | $67,425 | $0.35 | | |
| CNTYVET | VETERANS RELIEF | 0.0052777810 | $67,425 | $67,425 | $0.36 | | |
| MENTAL | MENTAL HEALTH | 0.0052121823 | $67,425 | $67,425 | $0.35 | | |
| PTGEN | CITY OF PT GENERAL | 0.8551967795 | $67,425 | $67,425 | $57.66 | | |
| PTLLL | CITY OF PT - LIBRARY LID LIFT | 0.4010114288 | $67,425 | $67,425 | $27.04 | | |
| PTMVBOND | CITY OF PT MV BOND | 0.0484717981 | $67,425 | $67,425 | $3.27 | | |
| HOSP2CASH | HOSP DIST #2 GENERAL | 0.0536075306 | $67,425 | $67,425 | $3.61 | | |
| SCH50BOND | SCHOOL DIST #50 BOND 2016 | 0.5377451389 | $67,425 | $67,425 | $36.26 | | |
| SCH50CP | SCHOOL DIST #50 CAP PROJ | 0.4573475088 | $67,425 | $67,425 | $30.84 | | |
| SCH50MO | SCHOOL DIST #50 EP & O | 0.8262822886 | $67,425 | $67,425 | $55.71 | | |
| CONSERVE | CONSERVATION FUTURES | 0.0275621078 | $67,425 | $67,425 | $1.86 | | |
| EMS1 | FIRE DIST #1 EMS | 0.4679948282 | $67,425 | $67,425 | $31.55 | | |
| FD1 | FIRE DIST #1 GENERAL | 1.2171942929 | $67,425 | $67,425 | $82.07 | | |
| PORTPT | PORT OF PT GENERAL | 0.1134941229 | $67,425 | $67,425 | $7.65 | | |
| PORTPTIDD | PORT OF PT IDD 2019 | 0.2577346692 | $67,425 | $67,425 | $17.38 | | |
| PUD1 | PUD #1 GENERAL | 0.0597888892 | $67,425 | $67,425 | $4.03 | | |
| STATE | STATE SCHOOL PART 1 | 1.4940692947 | $67,425 | $67,425 | $100.74 | | |
| STATE2 | STATE SCHOOL PART 2 | 0.8050170049 | $67,425 | $67,425 | $54.28 | | |
| | Total Tax Rate: | 8.5416817766 | | | | | |
| | | | | Taxes w/Current Exemptions: | $575.93 | | |
| | | | | Taxes w/o Exemptions: | $575.93 | | |
Improvement / Building
Sketch
| No sketches available for this property. |
Property Image
Land
| 1 | 6070-1175L | | 0.0000 | 0.00 | 0.00 | 0.00 | 2.00 | $58,500 | $0 |
| 2 | 6070-1176L | | 0.0000 | 0.00 | 0.00 | 0.00 | 1.00 | $8,925 | $0 |
Roll Value History
| 2026 | N/A | N/A | N/A | N/A | N/A |
| 2025 | $0 | $67,425 | $0 | $67,425 | $67,425 |
| 2024 | $0 | $65,625 | $0 | $65,625 | $65,625 |
| 2023 | $0 | $62,500 | $0 | $62,500 | $62,500 |
| 2022 | $0 | $62,500 | $0 | $62,500 | $62,500 |
Deed and Sales History
| 1 | 02/12/2026 | QCD | Quit Claim Deed | LINDA SUTOR | LINDA L SUTOR REV LIV TRUST | | | | 145676 | |
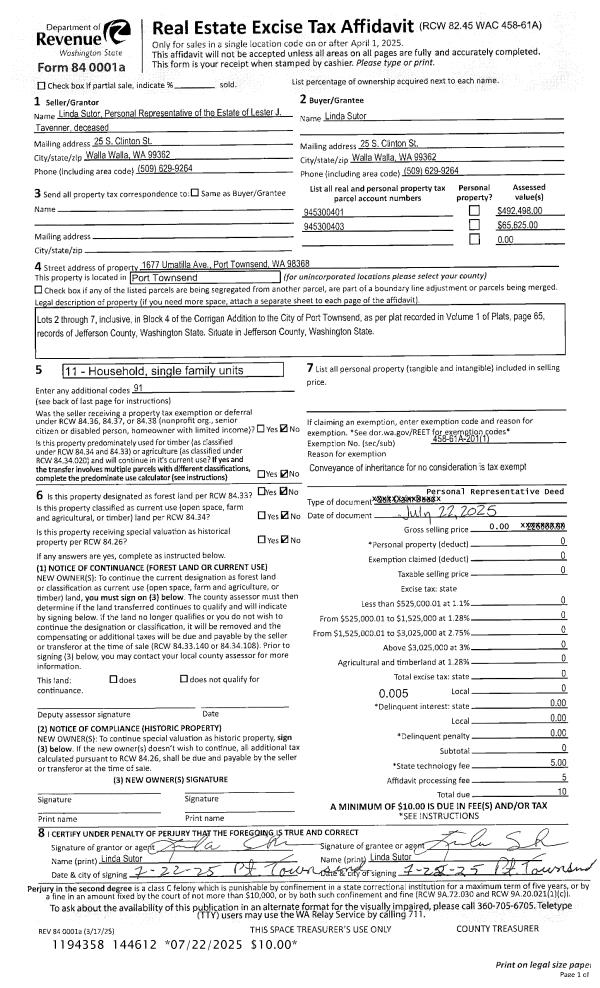
| 2 | 07/22/2025 | PRD | Personal Representatives Deed | LESTER J TAVENNER | LINDA SUTOR | | | | 144612 | |
| 3 | 01/03/2019 | LOP | Lack of Probate | | | | | | 131645 | |
Payout Agreement
| No payout information available.. |