Property
Account |
| Property ID: | 26684 | Abbreviated Legal Description: | COTTAGES OF UMATILLA HILL CONDO UNIT 10 |
| Parcel # / Geo ID: | 945800010 | Agent Code: | |
| Type: | Real | | |
| Tax Area: | 0110 - C-50F1E1H2 | Land Use Code | 14 |
| Open Space: | N | DFL | N |
| Historic Property: | N | Remodel Property: | N |
| Multi-Family Redevelopment: | N | | |
| Township: | 30N | Section: | 3 |
| Range: | 1W |
Location |
| Address: | 2910 10 KIMBALL CT PORT TOWNSEND, WA 98368 | Mapsco: | 144/026 |
| Neighborhood: | CYCLE 6 CONDOMINIUMS - PORT TOWNSEND | Map ID: | |
| Neighborhood CD: | 6900 |
Owner |
| Name: | JANE ALEXANDER | Owner ID: | 114106 |
| Mailing Address: | 2910 KIMBALL CT #10 PORT TOWNSEND, WA 98368-6151 | % Ownership: | 100.0000000000% |
| | | Exemptions: | |
Pay Tax Due
Select the appropriate checkbox next to the year to be paid. Multiple years may be selected.
*Convenience Fee not included
Taxes and Assessment Details
Property Tax Information as of
03/12/2026
Click on "Statement Details" to expand or collapse a tax statement.
* Please enter a valid date ** Please enter a valid date *
Statement Details |
| 2026 | 16054 | STATE - STATE LEVY (SCHOOL) | $579.67 | $579.65 | $0.00 | $0.00 | $0.00 | $1159.32 |
| 2026 | 16054 | COUNTY - COUNTY LEVIES (CE, DD, VET, MH) | $231.76 | $231.73 | $0.00 | $0.00 | $0.00 | $463.49 |
| 2026 | 16054 | CONSERVE - CONSERVATION FUTURES | $6.95 | $6.95 | $0.00 | $0.00 | $0.00 | $13.90 |
| 2026 | 16054 | CITYPT - CITY OF PT | $328.95 | $328.93 | $0.00 | $0.00 | $0.00 | $657.88 |
| 2026 | 16054 | PORTPT - PORT DISTRICT | $93.60 | $93.59 | $0.00 | $0.00 | $0.00 | $187.19 |
| 2026 | 16054 | PUD1 - PUD #1 | $15.08 | $15.07 | $0.00 | $0.00 | $0.00 | $30.15 |
| 2026 | 16054 | HD2 - HOSP DIST #2 | $13.52 | $13.51 | $0.00 | $0.00 | $0.00 | $27.03 |
| 2026 | 16054 | SD50 - SCHOOL DIST #50 | $459.22 | $459.21 | $0.00 | $0.00 | $0.00 | $918.43 |
| 2026 | 16054 | FD1 - FIRE DISTRICT #1 | $306.89 | $306.88 | $0.00 | $0.00 | $0.00 | $613.77 |
| 2026 | 16054 | EMS1 - FIRE DIST #1 EMS | $118.00 | $117.99 | $0.00 | $0.00 | $0.00 | $235.99 |
| 2026 | 16054 | JCCD - JC Conservation District | $2.55 | $2.55 | $0.00 | $0.00 | $0.00 | $5.10 |
| 2026 | 16054 | NWA - Noxious Weed Assessment | $2.98 | $2.97 | $0.00 | $0.00 | $0.00 | $5.95 |
| 2026 | 16054 | TOTAL: | $2159.17 | $2159.03 | $0.00 | $0.00 | $0.00 | $4318.20 |
|
| 2026 | 16054 | $2159.17 | $2159.03 | $0.00 | $0.00 | $0.00 | $4318.20 |
Statement Details |
| 2025 | 16108 | STATE - STATE LEVY (SCHOOL) | $550.72 | $550.71 | $0.00 | $0.00 | $1101.43 | $0.00 |
| 2025 | 16108 | COUNTY - COUNTY LEVIES (CE, DD, VET, MH) | $216.58 | $216.55 | $0.00 | $0.00 | $433.13 | $0.00 |
| 2025 | 16108 | CONSERVE - CONSERVATION FUTURES | $6.50 | $6.49 | $0.00 | $0.00 | $12.99 | $0.00 |
| 2025 | 16108 | CITYPT - CITY OF PT | $312.32 | $312.30 | $0.00 | $0.00 | $624.62 | $0.00 |
| 2025 | 16108 | PORTPT - PORT DISTRICT | $88.37 | $88.37 | $0.00 | $0.00 | $176.74 | $0.00 |
| 2025 | 16108 | PUD1 - PUD #1 | $14.17 | $14.17 | $0.00 | $0.00 | $28.34 | $0.00 |
| 2025 | 16108 | HD2 - HOSP DIST #2 | $12.64 | $12.63 | $0.00 | $0.00 | $25.27 | $0.00 |
| 2025 | 16108 | SD50 - SCHOOL DIST #50 | $402.49 | $402.48 | $0.00 | $0.00 | $804.97 | $0.00 |
| 2025 | 16108 | FD1 - FIRE DISTRICT #1 | $285.79 | $285.78 | $0.00 | $0.00 | $571.57 | $0.00 |
| 2025 | 16108 | EMS1 - FIRE DIST #1 EMS | $109.92 | $109.92 | $0.00 | $0.00 | $219.84 | $0.00 |
| 2025 | 16108 | JCCD - JC Conservation District | $2.55 | $2.55 | $0.00 | $0.00 | $5.10 | $0.00 |
| 2025 | 16108 | NWA - Noxious Weed Assessment | $2.15 | $2.15 | $0.00 | $0.00 | $4.30 | $0.00 |
| 2025 | 16108 | TOTAL: | $2004.20 | $2004.10 | $0.00 | $0.00 | $4008.30 | $0.00 |
|
| 2025 | 16108 | $2004.20 | $2004.10 | $0.00 | $0.00 | $4008.30 | $0.00 |
Statement Details |
| 2024 | 16140 | STATE - STATE LEVY (SCHOOL) | $482.87 | $482.85 | $0.00 | $0.00 | $965.72 | $0.00 |
| 2024 | 16140 | COUNTY - COUNTY LEVIES (CE, DD, VET, MH) | $206.63 | $206.60 | $0.00 | $0.00 | $413.23 | $0.00 |
| 2024 | 16140 | CONSERVE - CONSERVATION FUTURES | $6.20 | $6.19 | $0.00 | $0.00 | $12.39 | $0.00 |
| 2024 | 16140 | CITYPT - CITY OF PT | $295.24 | $295.22 | $0.00 | $0.00 | $590.46 | $0.00 |
| 2024 | 16140 | PORTPT - PORT DISTRICT | $85.35 | $85.34 | $0.00 | $0.00 | $170.69 | $0.00 |
| 2024 | 16140 | PUD1 - PUD #1 | $13.57 | $13.57 | $0.00 | $0.00 | $27.14 | $0.00 |
| 2024 | 16140 | HD2 - HOSP DIST #2 | $12.06 | $12.05 | $0.00 | $0.00 | $24.11 | $0.00 |
| 2024 | 16140 | SD50 - SCHOOL DIST #50 | $390.67 | $390.65 | $0.00 | $0.00 | $781.32 | $0.00 |
| 2024 | 16140 | FD1 - FIRE DISTRICT #1 | $273.20 | $273.20 | $0.00 | $0.00 | $546.40 | $0.00 |
| 2024 | 16140 | EMS1 - FIRE DIST #1 EMS | $104.36 | $104.35 | $0.00 | $0.00 | $208.71 | $0.00 |
| 2024 | 16140 | JCCD - JC Conservation District | $2.55 | $2.55 | $0.00 | $0.00 | $5.10 | $0.00 |
| 2024 | 16140 | NWA - Noxious Weed Assessment | $2.15 | $2.15 | $0.00 | $0.00 | $4.30 | $0.00 |
| 2024 | 16140 | TOTAL: | $1874.85 | $1874.72 | $0.00 | $0.00 | $3749.57 | $0.00 |
|
| 2024 | 16140 | $1874.85 | $1874.72 | $0.00 | $0.00 | $3749.57 | $0.00 |
Statement Details |
| 2023 | 16164 | STATE - STATE LEVY (SCHOOL) | $476.09 | $476.07 | $0.00 | $0.00 | $952.16 | $0.00 |
| 2023 | 16164 | COUNTY - COUNTY LEVIES (CE, DD, VET, MH) | $207.76 | $207.74 | $0.00 | $0.00 | $415.50 | $0.00 |
| 2023 | 16164 | CONSERVE - CONSERVATION FUTURES | $6.23 | $6.23 | $0.00 | $0.00 | $12.46 | $0.00 |
| 2023 | 16164 | CITYPT - CITY OF PT | $293.62 | $293.61 | $0.00 | $0.00 | $587.23 | $0.00 |
| 2023 | 16164 | PORTPT - PORT DISTRICT | $87.52 | $87.51 | $0.00 | $0.00 | $175.03 | $0.00 |
| 2023 | 16164 | PUD1 - PUD #1 | $13.77 | $13.77 | $0.00 | $0.00 | $27.54 | $0.00 |
| 2023 | 16164 | HD2 - HOSP DIST #2 | $12.13 | $12.12 | $0.00 | $0.00 | $24.25 | $0.00 |
| 2023 | 16164 | SD50 - SCHOOL DIST #50 | $377.78 | $377.77 | $0.00 | $0.00 | $755.55 | $0.00 |
| 2023 | 16164 | FD1 - FIRE DISTRICT #1 | $171.14 | $171.14 | $0.00 | $0.00 | $342.28 | $0.00 |
| 2023 | 16164 | EMS1 - FIRE DIST #1 EMS | $72.80 | $72.80 | $0.00 | $0.00 | $145.60 | $0.00 |
| 2023 | 16164 | JCCD - JC Conservation District | $2.55 | $2.55 | $0.00 | $0.00 | $5.10 | $0.00 |
| 2023 | 16164 | NWA - Noxious Weed Assessment | $2.15 | $2.15 | $0.00 | $0.00 | $4.30 | $0.00 |
| 2023 | 16164 | TOTAL: | $1723.54 | $1723.46 | $0.00 | $0.00 | $3447.00 | $0.00 |
|
| 2023 | 16164 | $1723.54 | $1723.46 | $0.00 | $0.00 | $3447.00 | $0.00 |
Values
| (+) Improvement Homesite Value: | + | $0 | |
| (+) Improvement Non-Homesite Value: | + | $334,252 | |
| (+) Land Homesite Value: | + | $0 | |
| (+) Land Non-Homesite Value: | + | $170,000 | |
| (+) Curr Use (HS): | + | $0 | $0 |
| (+) Curr Use (NHS): | + | $0 | $0 |
| | | -------------------------- | |
| (=) Market Value: | = | $504,252 | |
| (–) Productivity Loss: | – | $0 | |
| | | -------------------------- | |
| (=) Subtotal: | = | $504,252 | |
| (+) Senior Appraised Value: | + | $0 | |
| (+) Non-Senior Appraised Value: | + | $504,252 | |
| | | -------------------------- | |
| (=) Total Appraised Value: | = | $504,252 | |
| (–) Senior Exemption Loss: | – | $0 | |
| (–) Exemption Loss: | – | $0 | |
| | | -------------------------- | |
| (=) Taxable Value: | = | $504,252 | |
Taxing Jurisdiction
| Owner: | JANE ALEXANDER | | |
| % Ownership: | 100.0000000000% | | |
| Total Value: | $504,252 | | |
| Tax Area: | 0110 - C-50F1E1H2 |
| CE | COUNTY CURRENT EXPENSE | 0.9034619479 | $504,252 | $504,252 | $455.57 | | |
| CNTYDD | DEVELOPMENTAL DISABILITIES | 0.0052121823 | $504,252 | $504,252 | $2.63 | | |
| CNTYVET | VETERANS RELIEF | 0.0052777810 | $504,252 | $504,252 | $2.66 | | |
| MENTAL | MENTAL HEALTH | 0.0052121823 | $504,252 | $504,252 | $2.63 | | |
| PTGEN | CITY OF PT GENERAL | 0.8551967795 | $504,252 | $504,252 | $431.23 | | |
| PTLLL | CITY OF PT - LIBRARY LID LIFT | 0.4010114288 | $504,252 | $504,252 | $202.21 | | |
| PTMVBOND | CITY OF PT MV BOND | 0.0484717981 | $504,252 | $504,252 | $24.44 | | |
| HOSP2CASH | HOSP DIST #2 GENERAL | 0.0536075306 | $504,252 | $504,252 | $27.03 | | |
| SCH50BOND | SCHOOL DIST #50 BOND 2016 | 0.5377451389 | $504,252 | $504,252 | $271.16 | | |
| SCH50CP | SCHOOL DIST #50 CAP PROJ | 0.4573475088 | $504,252 | $504,252 | $230.62 | | |
| SCH50MO | SCHOOL DIST #50 EP & O | 0.8262822886 | $504,252 | $504,252 | $416.65 | | |
| CONSERVE | CONSERVATION FUTURES | 0.0275621078 | $504,252 | $504,252 | $13.90 | | |
| EMS1 | FIRE DIST #1 EMS | 0.4679948282 | $504,252 | $504,252 | $235.99 | | |
| FD1 | FIRE DIST #1 GENERAL | 1.2171942929 | $504,252 | $504,252 | $613.77 | | |
| PORTPT | PORT OF PT GENERAL | 0.1134941229 | $504,252 | $504,252 | $57.23 | | |
| PORTPTIDD | PORT OF PT IDD 2019 | 0.2577346692 | $504,252 | $504,252 | $129.96 | | |
| PUD1 | PUD #1 GENERAL | 0.0597888892 | $504,252 | $504,252 | $30.15 | | |
| STATE | STATE SCHOOL PART 1 | 1.4940692947 | $504,252 | $504,252 | $753.39 | | |
| STATE2 | STATE SCHOOL PART 2 | 0.8050170049 | $504,252 | $504,252 | $405.93 | | |
| | Total Tax Rate: | 8.5416817766 | | | | | |
| | | | | Taxes w/Current Exemptions: | $4,307.15 | | |
| | | | | Taxes w/o Exemptions: | $4,307.15 | | |
Improvement / Building
| Improvement #1: | Residential Bldg | State Code: | 14 | 977.0 sqft | Value: | $334,252 |
| Bathrooms (#): | 1 (FULL) | Bedrooms (#): | 2 | | Exterior Wall: | SI/ST | Fireplace: | SIN 1-GOOD | | Floor Construction: | FRAME | Foundation: | CONPR | | Heating/Cooling: | F/A | Inside Verify: | NO | | Roof Cover: | COMP |   |   |
|
| | Type | Description | Class CD | Sub Class CD | Year Built | Area |
| | MA | Main Area | 5 | 15SF | 2004 | 657.0 |
| | MA2 | Second Floor Main Area | 5 | 15SF | 2004 | 320.0 |
| | HWPOR | House Wood Porch | 5 | * | 2004 | 112.0 |
| | OTHER | Other | 5 | * | 2004 | 0.0 |
Sketch
| No sketches available for this property. |
Property Image
Land
| 1 | 9458-1143S | | 0.0000 | 0.00 | 0.00 | 0.00 | 1.00 | $170,000 | $0 |
Roll Value History
| 2026 | N/A | N/A | N/A | N/A | N/A |
| 2025 | $334,252 | $170,000 | $0 | $504,252 | $504,252 |
| 2024 | $309,309 | $150,000 | $0 | $459,309 | $459,309 |
| 2023 | $282,412 | $135,000 | $0 | $417,412 | $417,412 |
| 2022 | $269,459 | $135,000 | $0 | $404,459 | $404,459 |
Deed and Sales History
| 1 | 02/12/2026 | SWD | Statutory Warranty Deed | DAVID MILLAR | JANE ALEXANDER | | | $505,000.00 | 145694 | |
| 2 | 11/01/2019 | SWD | Statutory Warranty Deed | ROBERT & MICHELE BRECHLIN | DAVID MILLAR | | | $352,000.00 | 133427 | |
| 3 | 06/13/2019 | SWD | Statutory Warranty Deed | BARBARA CECIL | ROBERT & MICHELE BRECHLIN | | | $330,000.00 | 132564 | |
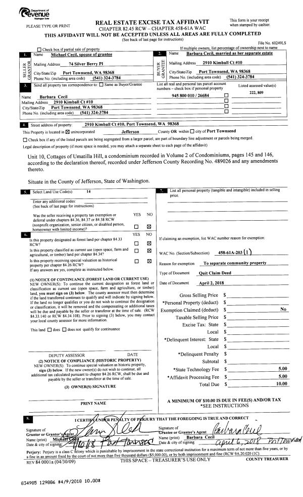
| 4 | 04/02/2018 | QCD | Quit Claim Deed | BARBARA CECIL | | | | | 129886 | |
| 5 | 04/02/2018 | SWD | Statutory Warranty Deed | KRICK FAMILY TRUST | BARBARA CECIL | | | $300,000.00 | 129885 | |
| 6 | 08/20/2014 | SWD | Statutory Warranty Deed | MARY H DUTTON | KRICK FAMILY TRUST | | | $232,100.00 | 121796 | |
| 7 | 05/27/2005 | SWD | Statutory Warranty Deed | KIMBALL AND LANDIS, LLC, | DUTTON, MARY H | | | $232,000.00 | 103729 | 0 |
Payout Agreement
| No payout information available.. |