Property
Account |
| Property ID: | 26691 | Abbreviated Legal Description: | COVE ADDITION BLK 5 LOTS 1 & 2 W/TAX 61(W1/2) BND TGTH THRU BLA #84622 |
| Parcel # / Geo ID: | 945900502 | Agent Code: | |
| Type: | Real | | |
| Tax Area: | 0111 - 1-50F1E1H2L1 | Land Use Code | 91 |
| Open Space: | N | DFL | N |
| Historic Property: | N | Remodel Property: | N |
| Multi-Family Redevelopment: | N | | |
| Township: | 30N | Section: | 16 |
| Range: | 1W |
Location |
| Address: | | Mapsco: | 022/006 |
| Neighborhood: | S15 & 16 T30 R1W, GLEN COVE, GISE | Map ID: | |
| Neighborhood CD: | 5345 |
Owner |
| Name: | MICHAEL W & JOCELYN V MOORE | Owner ID: | 103050 |
| Mailing Address: | 61 ANDERSON ST PORT HADLOCK, WA 98339-9632 | % Ownership: | 100.0000000000% |
| | | Exemptions: | |
Pay Tax Due
Select the appropriate checkbox next to the year to be paid. Multiple years may be selected.
*Convenience Fee not included
Taxes and Assessment Details
Property Tax Information as of
03/11/2026
Click on "Statement Details" to expand or collapse a tax statement.
* Please enter a valid date ** Please enter a valid date *
Statement Details |
| 2026 | 16061 | STATE - STATE LEVY (SCHOOL) | $35.41 | $35.40 | $0.00 | $0.00 | $0.00 | $70.81 |
| 2026 | 16061 | COUNTY - COUNTY LEVIES (CE, DD, VET, MH) | $14.16 | $14.15 | $0.00 | $0.00 | $0.00 | $28.31 |
| 2026 | 16061 | CONSERVE - CONSERVATION FUTURES | $0.43 | $0.42 | $0.00 | $0.00 | $0.00 | $0.85 |
| 2026 | 16061 | COROADS - COUNTY ROADS (ROADS, DIV TO CE) | $11.42 | $11.42 | $0.00 | $0.00 | $0.00 | $22.84 |
| 2026 | 16061 | PORTPT - PORT DISTRICT | $5.72 | $5.72 | $0.00 | $0.00 | $0.00 | $11.44 |
| 2026 | 16061 | PUD1 - PUD #1 | $0.92 | $0.92 | $0.00 | $0.00 | $0.00 | $1.84 |
| 2026 | 16061 | LIB1 - LIBRARY DIST #1 | $4.42 | $4.42 | $0.00 | $0.00 | $0.00 | $8.84 |
| 2026 | 16061 | HD2 - HOSP DIST #2 | $0.83 | $0.82 | $0.00 | $0.00 | $0.00 | $1.65 |
| 2026 | 16061 | SD50 - SCHOOL DIST #50 | $28.06 | $28.04 | $0.00 | $0.00 | $0.00 | $56.10 |
| 2026 | 16061 | FD1 - FIRE DISTRICT #1 | $18.75 | $18.74 | $0.00 | $0.00 | $0.00 | $37.49 |
| 2026 | 16061 | EMS1 - FIRE DIST #1 EMS | $7.21 | $7.20 | $0.00 | $0.00 | $0.00 | $14.41 |
| 2026 | 16061 | FP - DNR Forest Fire Protection Assmt | $8.50 | $8.50 | $0.00 | $0.00 | $0.00 | $17.00 |
| 2026 | 16061 | FPLCA - DNR Landowner Contingency Assmt | $3.00 | $3.00 | $0.00 | $0.00 | $0.00 | $6.00 |
| 2026 | 16061 | JCCD - JC Conservation District | $2.53 | $2.53 | $0.00 | $0.00 | $0.00 | $5.06 |
| 2026 | 16061 | NWA - Noxious Weed Assessment | $2.98 | $2.97 | $0.00 | $0.00 | $0.00 | $5.95 |
| 2026 | 16061 | WAT - Clean Water District | $13.00 | $13.00 | $0.00 | $0.00 | $0.00 | $26.00 |
| 2026 | 16061 | FP ADMIN - FP ADMIN | $0.50 | $0.00 | $0.00 | $0.00 | $0.00 | $0.50 |
| 2026 | 16061 | TOTAL: | $157.84 | $157.25 | $0.00 | $0.00 | $0.00 | $315.09 |
|
| 2026 | 16061 | $157.84 | $157.25 | $0.00 | $0.00 | $0.00 | $315.09 |
Statement Details |
| 2025 | 16115 | STATE - STATE LEVY (SCHOOL) | $36.93 | $36.93 | $0.00 | $0.00 | $73.86 | $0.00 |
| 2025 | 16115 | COUNTY - COUNTY LEVIES (CE, DD, VET, MH) | $14.53 | $14.51 | $0.00 | $0.00 | $29.04 | $0.00 |
| 2025 | 16115 | CONSERVE - CONSERVATION FUTURES | $0.44 | $0.43 | $0.00 | $0.00 | $0.87 | $0.00 |
| 2025 | 16115 | COROADS - COUNTY ROADS (ROADS, DIV TO CE) | $11.64 | $11.63 | $0.00 | $0.00 | $23.27 | $0.00 |
| 2025 | 16115 | PORTPT - PORT DISTRICT | $5.94 | $5.92 | $0.00 | $0.00 | $11.86 | $0.00 |
| 2025 | 16115 | PUD1 - PUD #1 | $0.95 | $0.95 | $0.00 | $0.00 | $1.90 | $0.00 |
| 2025 | 16115 | LIB1 - LIBRARY DIST #1 | $4.50 | $4.50 | $0.00 | $0.00 | $9.00 | $0.00 |
| 2025 | 16115 | HD2 - HOSP DIST #2 | $0.85 | $0.84 | $0.00 | $0.00 | $1.69 | $0.00 |
| 2025 | 16115 | SD50 - SCHOOL DIST #50 | $27.00 | $26.98 | $0.00 | $0.00 | $53.98 | $0.00 |
| 2025 | 16115 | FD1 - FIRE DISTRICT #1 | $19.17 | $19.16 | $0.00 | $0.00 | $38.33 | $0.00 |
| 2025 | 16115 | EMS1 - FIRE DIST #1 EMS | $7.37 | $7.37 | $0.00 | $0.00 | $14.74 | $0.00 |
| 2025 | 16115 | FP - DNR Forest Fire Protection Assmt | $8.50 | $8.50 | $0.00 | $0.00 | $17.00 | $0.00 |
| 2025 | 16115 | FPLCA - DNR Landowner Contingency Assmt | $3.00 | $3.00 | $0.00 | $0.00 | $6.00 | $0.00 |
| 2025 | 16115 | JCCD - JC Conservation District | $2.53 | $2.53 | $0.00 | $0.00 | $5.06 | $0.00 |
| 2025 | 16115 | NWA - Noxious Weed Assessment | $2.15 | $2.15 | $0.00 | $0.00 | $4.30 | $0.00 |
| 2025 | 16115 | WAT - Clean Water District | $13.00 | $13.00 | $0.00 | $0.00 | $26.00 | $0.00 |
| 2025 | 16115 | FP ADMIN - FP ADMIN | $0.50 | $0.00 | $0.00 | $0.00 | $0.50 | $0.00 |
| 2025 | 16115 | TOTAL: | $159.00 | $158.40 | $0.00 | $0.00 | $317.40 | $0.00 |
|
| 2025 | 16115 | $159.00 | $158.40 | $0.00 | $0.00 | $317.40 | $0.00 |
Statement Details |
| 2024 | 16147 | STATE - STATE LEVY (SCHOOL) | $34.02 | $34.00 | $0.00 | $0.00 | $68.02 | $0.00 |
| 2024 | 16147 | COUNTY - COUNTY LEVIES (CE, DD, VET, MH) | $14.56 | $14.54 | $0.00 | $0.00 | $29.10 | $0.00 |
| 2024 | 16147 | CONSERVE - CONSERVATION FUTURES | $0.44 | $0.43 | $0.00 | $0.00 | $0.87 | $0.00 |
| 2024 | 16147 | COROADS - COUNTY ROADS (ROADS, DIV TO CE) | $11.71 | $11.71 | $0.00 | $0.00 | $23.42 | $0.00 |
| 2024 | 16147 | PORTPT - PORT DISTRICT | $6.02 | $6.00 | $0.00 | $0.00 | $12.02 | $0.00 |
| 2024 | 16147 | PUD1 - PUD #1 | $0.96 | $0.95 | $0.00 | $0.00 | $1.91 | $0.00 |
| 2024 | 16147 | LIB1 - LIBRARY DIST #1 | $4.53 | $4.53 | $0.00 | $0.00 | $9.06 | $0.00 |
| 2024 | 16147 | HD2 - HOSP DIST #2 | $0.85 | $0.85 | $0.00 | $0.00 | $1.70 | $0.00 |
| 2024 | 16147 | SD50 - SCHOOL DIST #50 | $27.52 | $27.51 | $0.00 | $0.00 | $55.03 | $0.00 |
| 2024 | 16147 | FD1 - FIRE DISTRICT #1 | $19.25 | $19.24 | $0.00 | $0.00 | $38.49 | $0.00 |
| 2024 | 16147 | EMS1 - FIRE DIST #1 EMS | $7.35 | $7.35 | $0.00 | $0.00 | $14.70 | $0.00 |
| 2024 | 16147 | FP - DNR Forest Fire Protection Assmt | $8.50 | $8.50 | $0.00 | $0.00 | $17.00 | $0.00 |
| 2024 | 16147 | FPLCA - DNR Landowner Contingency Assmt | $3.00 | $3.00 | $0.00 | $0.00 | $6.00 | $0.00 |
| 2024 | 16147 | JCCD - JC Conservation District | $2.53 | $2.53 | $0.00 | $0.00 | $5.06 | $0.00 |
| 2024 | 16147 | NWA - Noxious Weed Assessment | $2.15 | $2.15 | $0.00 | $0.00 | $4.30 | $0.00 |
| 2024 | 16147 | WAT - Clean Water District | $12.50 | $12.50 | $0.00 | $0.00 | $25.00 | $0.00 |
| 2024 | 16147 | FP ADMIN - FP ADMIN | $0.50 | $0.00 | $0.00 | $0.00 | $0.50 | $0.00 |
| 2024 | 16147 | TOTAL: | $156.39 | $155.79 | $0.00 | $0.00 | $312.18 | $0.00 |
|
| 2024 | 16147 | $156.39 | $155.79 | $0.00 | $0.00 | $312.18 | $0.00 |
Statement Details |
| 2023 | 16171 | STATE - STATE LEVY (SCHOOL) | $32.97 | $32.95 | $0.00 | $0.00 | $65.92 | $0.00 |
| 2023 | 16171 | COUNTY - COUNTY LEVIES (CE, DD, VET, MH) | $14.39 | $14.37 | $0.00 | $0.00 | $28.76 | $0.00 |
| 2023 | 16171 | CONSERVE - CONSERVATION FUTURES | $0.43 | $0.43 | $0.00 | $0.00 | $0.86 | $0.00 |
| 2023 | 16171 | COROADS - COUNTY ROADS (ROADS, DIV TO CE) | $11.64 | $11.64 | $0.00 | $0.00 | $23.28 | $0.00 |
| 2023 | 16171 | PORTPT - PORT DISTRICT | $6.07 | $6.05 | $0.00 | $0.00 | $12.12 | $0.00 |
| 2023 | 16171 | PUD1 - PUD #1 | $0.96 | $0.95 | $0.00 | $0.00 | $1.91 | $0.00 |
| 2023 | 16171 | LIB1 - LIBRARY DIST #1 | $4.50 | $4.50 | $0.00 | $0.00 | $9.00 | $0.00 |
| 2023 | 16171 | HD2 - HOSP DIST #2 | $0.85 | $0.83 | $0.00 | $0.00 | $1.68 | $0.00 |
| 2023 | 16171 | SD50 - SCHOOL DIST #50 | $26.17 | $26.14 | $0.00 | $0.00 | $52.31 | $0.00 |
| 2023 | 16171 | FD1 - FIRE DISTRICT #1 | $11.85 | $11.85 | $0.00 | $0.00 | $23.70 | $0.00 |
| 2023 | 16171 | EMS1 - FIRE DIST #1 EMS | $5.04 | $5.04 | $0.00 | $0.00 | $10.08 | $0.00 |
| 2023 | 16171 | FP - DNR Forest Fire Protection Assmt | $8.50 | $8.50 | $0.00 | $0.00 | $17.00 | $0.00 |
| 2023 | 16171 | FPLCA - DNR Landowner Contingency Assmt | $3.00 | $3.00 | $0.00 | $0.00 | $6.00 | $0.00 |
| 2023 | 16171 | JCCD - JC Conservation District | $2.53 | $2.53 | $0.00 | $0.00 | $5.06 | $0.00 |
| 2023 | 16171 | NWA - Noxious Weed Assessment | $2.15 | $2.15 | $0.00 | $0.00 | $4.30 | $0.00 |
| 2023 | 16171 | WAT - Clean Water District | $12.00 | $12.00 | $0.00 | $0.00 | $24.00 | $0.00 |
| 2023 | 16171 | FP ADMIN - FP ADMIN | $0.50 | $0.00 | $0.00 | $0.00 | $0.50 | $0.00 |
| 2023 | 16171 | TOTAL: | $143.55 | $142.93 | $0.00 | $0.00 | $286.48 | $0.00 |
|
| 2023 | 16171 | $143.55 | $142.93 | $0.00 | $0.00 | $286.48 | $0.00 |
Values
| (+) Improvement Homesite Value: | + | $0 | |
| (+) Improvement Non-Homesite Value: | + | $0 | |
| (+) Land Homesite Value: | + | $0 | |
| (+) Land Non-Homesite Value: | + | $30,800 | |
| (+) Curr Use (HS): | + | $0 | $0 |
| (+) Curr Use (NHS): | + | $0 | $0 |
| | | -------------------------- | |
| (=) Market Value: | = | $30,800 | |
| (–) Productivity Loss: | – | $0 | |
| | | -------------------------- | |
| (=) Subtotal: | = | $30,800 | |
| (+) Senior Appraised Value: | + | $0 | |
| (+) Non-Senior Appraised Value: | + | $30,800 | |
| | | -------------------------- | |
| (=) Total Appraised Value: | = | $30,800 | |
| (–) Senior Exemption Loss: | – | $0 | |
| (–) Exemption Loss: | – | $0 | |
| | | -------------------------- | |
| (=) Taxable Value: | = | $30,800 | |
Taxing Jurisdiction
| Owner: | MICHAEL W & JOCELYN V MOORE | | |
| % Ownership: | 100.0000000000% | | |
| Total Value: | $30,800 | | |
| Tax Area: | 0111 - 1-50F1E1H2L1 |
| CE | COUNTY CURRENT EXPENSE | 0.9034619479 | $30,800 | $30,800 | $27.83 | | |
| CNTYDD | DEVELOPMENTAL DISABILITIES | 0.0052121823 | $30,800 | $30,800 | $0.16 | | |
| CNTYVET | VETERANS RELIEF | 0.0052777810 | $30,800 | $30,800 | $0.16 | | |
| MENTAL | MENTAL HEALTH | 0.0052121823 | $30,800 | $30,800 | $0.16 | | |
| ROADS | COUNTY ROADS | 0.7415066410 | $30,800 | $30,800 | $22.84 | | |
| ROADSCU | COUNTY ROADS TO CUR EXP | 0.0000000000 | $30,800 | $30,800 | $0.00 | | |
| HOSP2CASH | HOSP DIST #2 GENERAL | 0.0536075306 | $30,800 | $30,800 | $1.65 | | |
| SCH50BOND | SCHOOL DIST #50 BOND 2016 | 0.5377451389 | $30,800 | $30,800 | $16.56 | | |
| SCH50CP | SCHOOL DIST #50 CAP PROJ | 0.4573475088 | $30,800 | $30,800 | $14.09 | | |
| SCH50MO | SCHOOL DIST #50 EP & O | 0.8262822886 | $30,800 | $30,800 | $25.45 | | |
| CONSERVE | CONSERVATION FUTURES | 0.0275621078 | $30,800 | $30,800 | $0.85 | | |
| EMS1 | FIRE DIST #1 EMS | 0.4679948282 | $30,800 | $30,800 | $14.41 | | |
| FD1 | FIRE DIST #1 GENERAL | 1.2171942929 | $30,800 | $30,800 | $37.49 | | |
| LIB1 | LIBRARY DIST #1 GENERAL | 0.2868827388 | $30,800 | $30,800 | $8.84 | | |
| PORTPT | PORT OF PT GENERAL | 0.1134941229 | $30,800 | $30,800 | $3.50 | | |
| PORTPTIDD | PORT OF PT IDD 2019 | 0.2577346692 | $30,800 | $30,800 | $7.94 | | |
| PUD1 | PUD #1 GENERAL | 0.0597888892 | $30,800 | $30,800 | $1.84 | | |
| STATE | STATE SCHOOL PART 1 | 1.4940692947 | $30,800 | $30,800 | $46.02 | | |
| STATE2 | STATE SCHOOL PART 2 | 0.8050170049 | $30,800 | $30,800 | $24.79 | | |
| | Total Tax Rate: | 8.2653911500 | | | | | |
| | | | | Taxes w/Current Exemptions: | $254.58 | | |
| | | | | Taxes w/o Exemptions: | $254.58 | | |
Improvement / Building
Sketch
| No sketches available for this property. |
Property Image
Land
| 1 | 5345-1285S | | 0.0000 | 0.00 | 0.00 | 0.00 | 1.00 | $30,800 | $0 |
Roll Value History
| 2026 | N/A | N/A | N/A | N/A | N/A |
| 2025 | $0 | $30,800 | $0 | $30,800 | $30,800 |
| 2024 | $0 | $30,800 | $0 | $30,800 | $30,800 |
| 2023 | $0 | $29,400 | $0 | $29,400 | $29,400 |
| 2022 | $0 | $28,000 | $0 | $28,000 | $28,000 |
Deed and Sales History
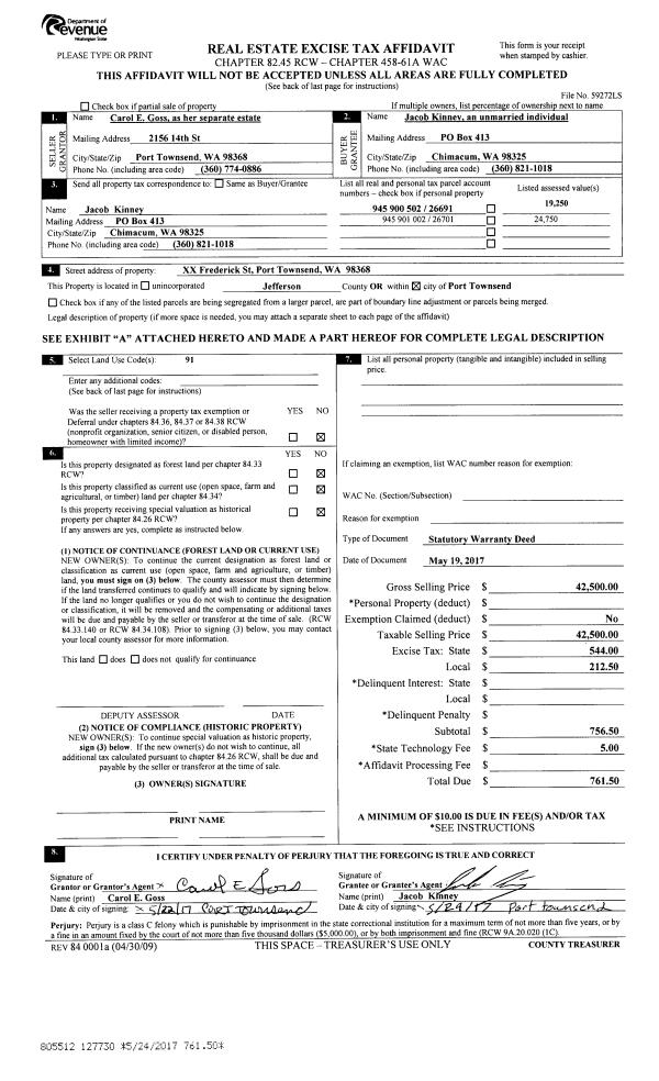
| 1 | 08/03/2020 | SWD | Statutory Warranty Deed | JACOB KINNEY | MICHAEL W & JOCELYN V MOORE | | | $70,000.00 | 134819 | |
|   | |
| 2 | 05/19/2017 | SWD | Statutory Warranty Deed | CRAIG W GOSS | JACOB KINNEY | | | $42,500.00 | 127730 | |
|   | |
| 3 | 08/19/1998 | SWD | Statutory Warranty Deed | PETERSON, WILLIAM E | GOSS, CRAIG W/CAROL E | 0 | 0 | $0.00 | 85287 | 0 |
Payout Agreement
| No payout information available.. |