Property
Account |
| Property ID: | 26701 | Abbreviated Legal Description: | COVE ADDITION BLK 10 LOTS 1,2,7 & 8 BND TGTH THRU BLA #84622 |
| Parcel # / Geo ID: | 945901002 | Agent Code: | |
| Type: | Real | | |
| Tax Area: | 0111 - 1-50F1E1H2L1 | Land Use Code | 18 |
| Open Space: | N | DFL | N |
| Historic Property: | N | Remodel Property: | N |
| Multi-Family Redevelopment: | N | | |
| Township: | 30N | Section: | 16 |
| Range: | 1W |
Location |
| Address: | 479 FREDERICKS ST PORT TOWNSEND, WA 98368 | Mapsco: | 022/016 |
| Neighborhood: | S15 & 16 T30 R1W, GLEN COVE, GISE | Map ID: | |
| Neighborhood CD: | 5345 |
Owner |
| Name: | NEIL & STACEY NELSON | Owner ID: | 96974 |
| Mailing Address: | 61 ANDERSON ST PORT HADLOCK, WA 98339-9632 | % Ownership: | 100.0000000000% |
| | | Exemptions: | |
Pay Tax Due
Select the appropriate checkbox next to the year to be paid. Multiple years may be selected.
*Convenience Fee not included
Taxes and Assessment Details
Property Tax Information as of
03/11/2026
Click on "Statement Details" to expand or collapse a tax statement.
* Please enter a valid date ** Please enter a valid date *
Statement Details |
| 2026 | 16071 | STATE - STATE LEVY (SCHOOL) | $107.49 | $107.48 | $0.00 | $0.00 | $0.00 | $214.97 |
| 2026 | 16071 | COUNTY - COUNTY LEVIES (CE, DD, VET, MH) | $42.99 | $42.95 | $0.00 | $0.00 | $0.00 | $85.94 |
| 2026 | 16071 | CONSERVE - CONSERVATION FUTURES | $1.29 | $1.29 | $0.00 | $0.00 | $0.00 | $2.58 |
| 2026 | 16071 | COROADS - COUNTY ROADS (ROADS, DIV TO CE) | $34.67 | $34.66 | $0.00 | $0.00 | $0.00 | $69.33 |
| 2026 | 16071 | PORTPT - PORT DISTRICT | $17.36 | $17.35 | $0.00 | $0.00 | $0.00 | $34.71 |
| 2026 | 16071 | PUD1 - PUD #1 | $2.80 | $2.79 | $0.00 | $0.00 | $0.00 | $5.59 |
| 2026 | 16071 | LIB1 - LIBRARY DIST #1 | $13.41 | $13.41 | $0.00 | $0.00 | $0.00 | $26.82 |
| 2026 | 16071 | HD2 - HOSP DIST #2 | $2.51 | $2.50 | $0.00 | $0.00 | $0.00 | $5.01 |
| 2026 | 16071 | SD50 - SCHOOL DIST #50 | $85.15 | $85.15 | $0.00 | $0.00 | $0.00 | $170.30 |
| 2026 | 16071 | FD1 - FIRE DISTRICT #1 | $56.91 | $56.90 | $0.00 | $0.00 | $0.00 | $113.81 |
| 2026 | 16071 | EMS1 - FIRE DIST #1 EMS | $21.88 | $21.88 | $0.00 | $0.00 | $0.00 | $43.76 |
| 2026 | 16071 | FP - DNR Forest Fire Protection Assmt | $8.50 | $8.50 | $0.00 | $0.00 | $0.00 | $17.00 |
| 2026 | 16071 | FPLCA - DNR Landowner Contingency Assmt | $3.00 | $3.00 | $0.00 | $0.00 | $0.00 | $6.00 |
| 2026 | 16071 | JCCD - JC Conservation District | $2.53 | $2.53 | $0.00 | $0.00 | $0.00 | $5.06 |
| 2026 | 16071 | NWA - Noxious Weed Assessment | $2.98 | $2.97 | $0.00 | $0.00 | $0.00 | $5.95 |
| 2026 | 16071 | OSS - On Site Septic | $23.10 | $23.10 | $0.00 | $0.00 | $0.00 | $46.20 |
| 2026 | 16071 | WAT - Clean Water District | $13.00 | $13.00 | $0.00 | $0.00 | $0.00 | $26.00 |
| 2026 | 16071 | FP ADMIN - FP ADMIN | $0.50 | $0.00 | $0.00 | $0.00 | $0.00 | $0.50 |
| 2026 | 16071 | TOTAL: | $440.07 | $439.46 | $0.00 | $0.00 | $0.00 | $879.53 |
|
| 2026 | 16071 | $440.07 | $439.46 | $0.00 | $0.00 | $0.00 | $879.53 |
Statement Details |
| 2025 | 16125 | STATE - STATE LEVY (SCHOOL) | $112.11 | $112.10 | $0.00 | $0.00 | $224.21 | $0.00 |
| 2025 | 16125 | COUNTY - COUNTY LEVIES (CE, DD, VET, MH) | $44.10 | $44.08 | $0.00 | $0.00 | $88.18 | $0.00 |
| 2025 | 16125 | CONSERVE - CONSERVATION FUTURES | $1.32 | $1.32 | $0.00 | $0.00 | $2.64 | $0.00 |
| 2025 | 16125 | COROADS - COUNTY ROADS (ROADS, DIV TO CE) | $35.32 | $35.32 | $0.00 | $0.00 | $70.64 | $0.00 |
| 2025 | 16125 | PORTPT - PORT DISTRICT | $18.00 | $17.98 | $0.00 | $0.00 | $35.98 | $0.00 |
| 2025 | 16125 | PUD1 - PUD #1 | $2.89 | $2.88 | $0.00 | $0.00 | $5.77 | $0.00 |
| 2025 | 16125 | LIB1 - LIBRARY DIST #1 | $13.67 | $13.66 | $0.00 | $0.00 | $27.33 | $0.00 |
| 2025 | 16125 | HD2 - HOSP DIST #2 | $2.57 | $2.57 | $0.00 | $0.00 | $5.14 | $0.00 |
| 2025 | 16125 | SD50 - SCHOOL DIST #50 | $81.94 | $81.93 | $0.00 | $0.00 | $163.87 | $0.00 |
| 2025 | 16125 | FD1 - FIRE DISTRICT #1 | $58.18 | $58.17 | $0.00 | $0.00 | $116.35 | $0.00 |
| 2025 | 16125 | EMS1 - FIRE DIST #1 EMS | $22.38 | $22.37 | $0.00 | $0.00 | $44.75 | $0.00 |
| 2025 | 16125 | FP - DNR Forest Fire Protection Assmt | $8.50 | $8.50 | $0.00 | $0.00 | $17.00 | $0.00 |
| 2025 | 16125 | FPLCA - DNR Landowner Contingency Assmt | $3.00 | $3.00 | $0.00 | $0.00 | $6.00 | $0.00 |
| 2025 | 16125 | JCCD - JC Conservation District | $2.55 | $2.55 | $0.00 | $0.00 | $5.10 | $0.00 |
| 2025 | 16125 | NWA - Noxious Weed Assessment | $2.15 | $2.15 | $0.00 | $0.00 | $4.30 | $0.00 |
| 2025 | 16125 | OSS - On Site Septic | $21.50 | $21.50 | $0.00 | $0.00 | $43.00 | $0.00 |
| 2025 | 16125 | WAT - Clean Water District | $13.00 | $13.00 | $0.00 | $0.00 | $26.00 | $0.00 |
| 2025 | 16125 | FP ADMIN - FP ADMIN | $0.50 | $0.00 | $0.00 | $0.00 | $0.50 | $0.00 |
| 2025 | 16125 | TOTAL: | $443.68 | $443.08 | $0.00 | $0.00 | $886.76 | $0.00 |
|
| 2025 | 16125 | $443.68 | $443.08 | $0.00 | $0.00 | $886.76 | $0.00 |
Statement Details |
| 2024 | 16157 | STATE - STATE LEVY (SCHOOL) | $100.82 | $100.81 | $0.00 | $0.00 | $201.63 | $0.00 |
| 2024 | 16157 | COUNTY - COUNTY LEVIES (CE, DD, VET, MH) | $43.16 | $43.12 | $0.00 | $0.00 | $86.28 | $0.00 |
| 2024 | 16157 | CONSERVE - CONSERVATION FUTURES | $1.30 | $1.29 | $0.00 | $0.00 | $2.59 | $0.00 |
| 2024 | 16157 | COROADS - COUNTY ROADS (ROADS, DIV TO CE) | $34.72 | $34.71 | $0.00 | $0.00 | $69.43 | $0.00 |
| 2024 | 16157 | PORTPT - PORT DISTRICT | $17.82 | $17.81 | $0.00 | $0.00 | $35.63 | $0.00 |
| 2024 | 16157 | PUD1 - PUD #1 | $2.84 | $2.83 | $0.00 | $0.00 | $5.67 | $0.00 |
| 2024 | 16157 | LIB1 - LIBRARY DIST #1 | $13.43 | $13.43 | $0.00 | $0.00 | $26.86 | $0.00 |
| 2024 | 16157 | HD2 - HOSP DIST #2 | $2.52 | $2.51 | $0.00 | $0.00 | $5.03 | $0.00 |
| 2024 | 16157 | SD50 - SCHOOL DIST #50 | $81.58 | $81.55 | $0.00 | $0.00 | $163.13 | $0.00 |
| 2024 | 16157 | FD1 - FIRE DISTRICT #1 | $57.04 | $57.04 | $0.00 | $0.00 | $114.08 | $0.00 |
| 2024 | 16157 | EMS1 - FIRE DIST #1 EMS | $21.79 | $21.79 | $0.00 | $0.00 | $43.58 | $0.00 |
| 2024 | 16157 | FP - DNR Forest Fire Protection Assmt | $8.50 | $8.50 | $0.00 | $0.00 | $17.00 | $0.00 |
| 2024 | 16157 | FPLCA - DNR Landowner Contingency Assmt | $3.00 | $3.00 | $0.00 | $0.00 | $6.00 | $0.00 |
| 2024 | 16157 | JCCD - JC Conservation District | $2.55 | $2.55 | $0.00 | $0.00 | $5.10 | $0.00 |
| 2024 | 16157 | NWA - Noxious Weed Assessment | $2.15 | $2.15 | $0.00 | $0.00 | $4.30 | $0.00 |
| 2024 | 16157 | OSS - On Site Septic | $21.00 | $21.00 | $0.00 | $0.00 | $42.00 | $0.00 |
| 2024 | 16157 | WAT - Clean Water District | $12.50 | $12.50 | $0.00 | $0.00 | $25.00 | $0.00 |
| 2024 | 16157 | FP ADMIN - FP ADMIN | $0.50 | $0.00 | $0.00 | $0.00 | $0.50 | $0.00 |
| 2024 | 16157 | TOTAL: | $427.22 | $426.59 | $0.00 | $0.00 | $853.81 | $0.00 |
|
| 2024 | 16157 | $427.22 | $426.59 | $0.00 | $0.00 | $853.81 | $0.00 |
Statement Details |
| 2023 | 16181 | STATE - STATE LEVY (SCHOOL) | $37.67 | $37.66 | $0.00 | $0.00 | $75.33 | $0.00 |
| 2023 | 16181 | COUNTY - COUNTY LEVIES (CE, DD, VET, MH) | $16.46 | $16.42 | $0.00 | $0.00 | $32.88 | $0.00 |
| 2023 | 16181 | CONSERVE - CONSERVATION FUTURES | $0.50 | $0.49 | $0.00 | $0.00 | $0.99 | $0.00 |
| 2023 | 16181 | COROADS - COUNTY ROADS (ROADS, DIV TO CE) | $13.31 | $13.29 | $0.00 | $0.00 | $26.60 | $0.00 |
| 2023 | 16181 | PORTPT - PORT DISTRICT | $6.93 | $6.92 | $0.00 | $0.00 | $13.85 | $0.00 |
| 2023 | 16181 | PUD1 - PUD #1 | $1.09 | $1.09 | $0.00 | $0.00 | $2.18 | $0.00 |
| 2023 | 16181 | LIB1 - LIBRARY DIST #1 | $5.15 | $5.14 | $0.00 | $0.00 | $10.29 | $0.00 |
| 2023 | 16181 | HD2 - HOSP DIST #2 | $0.97 | $0.95 | $0.00 | $0.00 | $1.92 | $0.00 |
| 2023 | 16181 | SD50 - SCHOOL DIST #50 | $29.90 | $29.88 | $0.00 | $0.00 | $59.78 | $0.00 |
| 2023 | 16181 | FD1 - FIRE DISTRICT #1 | $13.54 | $13.54 | $0.00 | $0.00 | $27.08 | $0.00 |
| 2023 | 16181 | EMS1 - FIRE DIST #1 EMS | $5.76 | $5.76 | $0.00 | $0.00 | $11.52 | $0.00 |
| 2023 | 16181 | FP - DNR Forest Fire Protection Assmt | $8.50 | $8.50 | $0.00 | $0.00 | $17.00 | $0.00 |
| 2023 | 16181 | FPLCA - DNR Landowner Contingency Assmt | $3.00 | $3.00 | $0.00 | $0.00 | $6.00 | $0.00 |
| 2023 | 16181 | JCCD - JC Conservation District | $2.53 | $2.53 | $0.00 | $0.00 | $5.06 | $0.00 |
| 2023 | 16181 | NWA - Noxious Weed Assessment | $2.15 | $2.15 | $0.00 | $0.00 | $4.30 | $0.00 |
| 2023 | 16181 | OSS - On Site Septic | $20.50 | $20.50 | $0.00 | $0.00 | $41.00 | $0.00 |
| 2023 | 16181 | WAT - Clean Water District | $12.00 | $12.00 | $0.00 | $0.00 | $24.00 | $0.00 |
| 2023 | 16181 | FP ADMIN - FP ADMIN | $0.50 | $0.00 | $0.00 | $0.00 | $0.50 | $0.00 |
| 2023 | 16181 | TOTAL: | $180.46 | $179.82 | $0.00 | $0.00 | $360.28 | $0.00 |
|
| 2023 | 16181 | $180.46 | $179.82 | $0.00 | $0.00 | $360.28 | $0.00 |
Values
| (+) Improvement Homesite Value: | + | $0 | |
| (+) Improvement Non-Homesite Value: | + | $0 | |
| (+) Land Homesite Value: | + | $0 | |
| (+) Land Non-Homesite Value: | + | $93,500 | |
| (+) Curr Use (HS): | + | $0 | $0 |
| (+) Curr Use (NHS): | + | $0 | $0 |
| | | -------------------------- | |
| (=) Market Value: | = | $93,500 | |
| (–) Productivity Loss: | – | $0 | |
| | | -------------------------- | |
| (=) Subtotal: | = | $93,500 | |
| (+) Senior Appraised Value: | + | $0 | |
| (+) Non-Senior Appraised Value: | + | $93,500 | |
| | | -------------------------- | |
| (=) Total Appraised Value: | = | $93,500 | |
| (–) Senior Exemption Loss: | – | $0 | |
| (–) Exemption Loss: | – | $0 | |
| | | -------------------------- | |
| (=) Taxable Value: | = | $93,500 | |
Taxing Jurisdiction
| Owner: | NEIL & STACEY NELSON | | |
| % Ownership: | 100.0000000000% | | |
| Total Value: | $93,500 | | |
| Tax Area: | 0111 - 1-50F1E1H2L1 |
| CE | COUNTY CURRENT EXPENSE | 0.9034619479 | $93,500 | $93,500 | $84.47 | | |
| CNTYDD | DEVELOPMENTAL DISABILITIES | 0.0052121823 | $93,500 | $93,500 | $0.49 | | |
| CNTYVET | VETERANS RELIEF | 0.0052777810 | $93,500 | $93,500 | $0.49 | | |
| MENTAL | MENTAL HEALTH | 0.0052121823 | $93,500 | $93,500 | $0.49 | | |
| ROADS | COUNTY ROADS | 0.7415066410 | $93,500 | $93,500 | $69.33 | | |
| ROADSCU | COUNTY ROADS TO CUR EXP | 0.0000000000 | $93,500 | $93,500 | $0.00 | | |
| HOSP2CASH | HOSP DIST #2 GENERAL | 0.0536075306 | $93,500 | $93,500 | $5.01 | | |
| SCH50BOND | SCHOOL DIST #50 BOND 2016 | 0.5377451389 | $93,500 | $93,500 | $50.28 | | |
| SCH50CP | SCHOOL DIST #50 CAP PROJ | 0.4573475088 | $93,500 | $93,500 | $42.76 | | |
| SCH50MO | SCHOOL DIST #50 EP & O | 0.8262822886 | $93,500 | $93,500 | $77.26 | | |
| CONSERVE | CONSERVATION FUTURES | 0.0275621078 | $93,500 | $93,500 | $2.58 | | |
| EMS1 | FIRE DIST #1 EMS | 0.4679948282 | $93,500 | $93,500 | $43.76 | | |
| FD1 | FIRE DIST #1 GENERAL | 1.2171942929 | $93,500 | $93,500 | $113.81 | | |
| LIB1 | LIBRARY DIST #1 GENERAL | 0.2868827388 | $93,500 | $93,500 | $26.82 | | |
| PORTPT | PORT OF PT GENERAL | 0.1134941229 | $93,500 | $93,500 | $10.61 | | |
| PORTPTIDD | PORT OF PT IDD 2019 | 0.2577346692 | $93,500 | $93,500 | $24.10 | | |
| PUD1 | PUD #1 GENERAL | 0.0597888892 | $93,500 | $93,500 | $5.59 | | |
| STATE | STATE SCHOOL PART 1 | 1.4940692947 | $93,500 | $93,500 | $139.70 | | |
| STATE2 | STATE SCHOOL PART 2 | 0.8050170049 | $93,500 | $93,500 | $75.27 | | |
| | Total Tax Rate: | 8.2653911500 | | | | | |
| | | | | Taxes w/Current Exemptions: | $772.82 | | |
| | | | | Taxes w/o Exemptions: | $772.82 | | |
Improvement / Building
Sketch
| No sketches available for this property. |
Property Image
Land
| 1 | 5345-1275S | | 0.0000 | 0.00 | 0.00 | 0.00 | 1.00 | $93,500 | $0 |
Roll Value History
| 2026 | N/A | N/A | N/A | N/A | N/A |
| 2025 | $0 | $93,500 | $0 | $93,500 | $93,500 |
| 2024 | $0 | $93,500 | $0 | $93,500 | $93,500 |
| 2023 | $0 | $87,150 | $0 | $87,150 | $87,150 |
| 2022 | $0 | $32,000 | $0 | $32,000 | $32,000 |
Deed and Sales History
| 1 | 10/17/2022 | QCD | Quit Claim Deed | NEIL NELSON | NEIL & STACEY NELSON | | | | 139993 | |
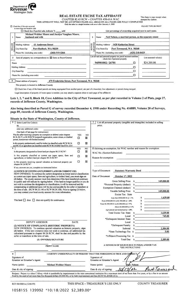
| 2 | 10/17/2022 | SWD | Statutory Warranty Deed | MICHAEL W & JOCELYN V MOORE | NEIL NELSON | | | $149,000.00 | 139992 | |
| 3 | 08/03/2020 | SWD | Statutory Warranty Deed | JACOB KINNEY | MICHAEL W & JOCELYN V MOORE | | | $70,000.00 | 134819 | |
|   | |
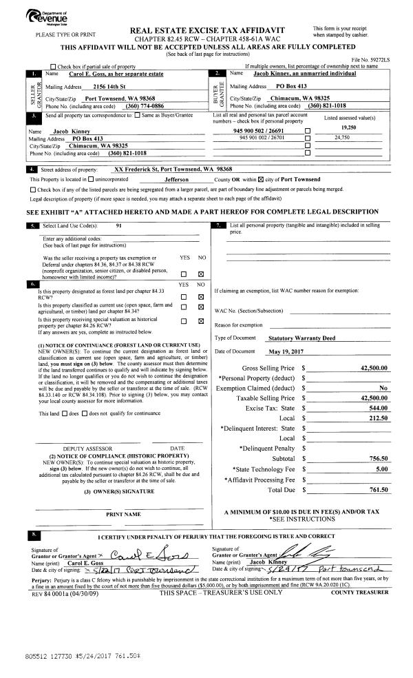
| 4 | 05/19/2017 | SWD | Statutory Warranty Deed | CRAIG W GOSS | JACOB KINNEY | | | $42,500.00 | 127730 | |
|   | |
| 5 | 08/19/1998 | SWD | Statutory Warranty Deed | PETERSON, WILLIAM E | GOSS, CRAIG W/CAROL E | 0 | 0 | $0.00 | 85173 | 0 |
| 6 | 08/19/1998 | SWD | Statutory Warranty Deed | PETERSON, WILLIAM E | GOSS, CRAIG W/CAROL E | 0 | 0 | $0.00 | 85287 | 0 |
| 7 | 06/08/1998 | BLA | Boundary Line Adjustment | GOSS, CRAIG W/CAROL E | GOSS, CRAIG W/CAROL E | 0 | 0 | $0.00 | 84622 | 0 |
Payout Agreement
| No payout information available.. |