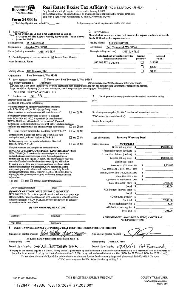
Property
Account |
| Property ID: | 26774 | Abbreviated Legal Description: | DENNY'S 2ND ADDITION BLK 5 LOTS 25 THRU 28 |
| Parcel # / Geo ID: | 947100507 | Agent Code: | |
| Type: | Real | | |
| Tax Area: | 0111 - 1-50F1E1H2L1 | Land Use Code | 33 |
| Open Space: | N | DFL | N |
| Historic Property: | N | Remodel Property: | N |
| Multi-Family Redevelopment: | N | | |
| Township: | 30N | Section: | 16 |
| Range: | 1W |
Location |
| Address: | 72 DENNY AVE PORT TOWNSEND, WA 98368 | Mapsco: | 022/069 |
| Neighborhood: | SR20 / OTTO ST / GLEN COVE COMMERCIAL AREA NORTH | Map ID: | |
| Neighborhood CD: | 5350C |
Owner |
| Name: | JOSHUA A JONES | Owner ID: | 110531 |
| Mailing Address: | JACOB K WILFORD 816 DISCOVERY RD PORT TOWNSEND, WA 98368 | % Ownership: | 100.0000000000% |
| | | Exemptions: | |
Pay Tax Due
Select the appropriate checkbox next to the year to be paid. Multiple years may be selected.
*Convenience Fee not included
Taxes and Assessment Details
Property Tax Information as of
03/12/2026
Click on "Statement Details" to expand or collapse a tax statement.
* Please enter a valid date ** Please enter a valid date *
Statement Details |
| 2026 | 16144 | STATE - STATE LEVY (SCHOOL) | $433.54 | $433.53 | $0.00 | $0.00 | $0.00 | $867.07 |
| 2026 | 16144 | COUNTY - COUNTY LEVIES (CE, DD, VET, MH) | $173.35 | $173.31 | $0.00 | $0.00 | $0.00 | $346.66 |
| 2026 | 16144 | CONSERVE - CONSERVATION FUTURES | $5.20 | $5.19 | $0.00 | $0.00 | $0.00 | $10.39 |
| 2026 | 16144 | COROADS - COUNTY ROADS (ROADS, DIV TO CE) | $139.83 | $139.82 | $0.00 | $0.00 | $0.00 | $279.65 |
| 2026 | 16144 | PORTPT - PORT DISTRICT | $70.00 | $70.00 | $0.00 | $0.00 | $0.00 | $140.00 |
| 2026 | 16144 | PUD1 - PUD #1 | $11.28 | $11.27 | $0.00 | $0.00 | $0.00 | $22.55 |
| 2026 | 16144 | LIB1 - LIBRARY DIST #1 | $54.10 | $54.09 | $0.00 | $0.00 | $0.00 | $108.19 |
| 2026 | 16144 | HD2 - HOSP DIST #2 | $10.11 | $10.11 | $0.00 | $0.00 | $0.00 | $20.22 |
| 2026 | 16144 | SD50 - SCHOOL DIST #50 | $343.45 | $343.45 | $0.00 | $0.00 | $0.00 | $686.90 |
| 2026 | 16144 | FD1 - FIRE DISTRICT #1 | $229.53 | $229.52 | $0.00 | $0.00 | $0.00 | $459.05 |
| 2026 | 16144 | EMS1 - FIRE DIST #1 EMS | $88.25 | $88.25 | $0.00 | $0.00 | $0.00 | $176.50 |
| 2026 | 16144 | FP - DNR Forest Fire Protection Assmt | $8.50 | $8.50 | $0.00 | $0.00 | $0.00 | $17.00 |
| 2026 | 16144 | FPLCA - DNR Landowner Contingency Assmt | $3.00 | $3.00 | $0.00 | $0.00 | $0.00 | $6.00 |
| 2026 | 16144 | JCCD - JC Conservation District | $2.53 | $2.53 | $0.00 | $0.00 | $0.00 | $5.06 |
| 2026 | 16144 | NWA - Noxious Weed Assessment | $2.98 | $2.97 | $0.00 | $0.00 | $0.00 | $5.95 |
| 2026 | 16144 | OSS - On Site Septic | $23.10 | $23.10 | $0.00 | $0.00 | $0.00 | $46.20 |
| 2026 | 16144 | WAT - Clean Water District | $13.00 | $13.00 | $0.00 | $0.00 | $0.00 | $26.00 |
| 2026 | 16144 | FP ADMIN - FP ADMIN | $0.50 | $0.00 | $0.00 | $0.00 | $0.00 | $0.50 |
| 2026 | 16144 | TOTAL: | $1612.25 | $1611.64 | $0.00 | $0.00 | $0.00 | $3223.89 |
|
| 2026 | 16144 | $1612.25 | $1611.64 | $0.00 | $0.00 | $0.00 | $3223.89 |
Statement Details |
| 2025 | 16198 | STATE - STATE LEVY (SCHOOL) | $452.20 | $452.19 | $0.00 | $0.00 | $904.39 | $0.00 |
| 2025 | 16198 | COUNTY - COUNTY LEVIES (CE, DD, VET, MH) | $177.83 | $177.81 | $0.00 | $0.00 | $355.64 | $0.00 |
| 2025 | 16198 | CONSERVE - CONSERVATION FUTURES | $5.33 | $5.33 | $0.00 | $0.00 | $10.66 | $0.00 |
| 2025 | 16198 | COROADS - COUNTY ROADS (ROADS, DIV TO CE) | $142.47 | $142.45 | $0.00 | $0.00 | $284.92 | $0.00 |
| 2025 | 16198 | PORTPT - PORT DISTRICT | $72.57 | $72.55 | $0.00 | $0.00 | $145.12 | $0.00 |
| 2025 | 16198 | PUD1 - PUD #1 | $11.64 | $11.63 | $0.00 | $0.00 | $23.27 | $0.00 |
| 2025 | 16198 | LIB1 - LIBRARY DIST #1 | $55.12 | $55.12 | $0.00 | $0.00 | $110.24 | $0.00 |
| 2025 | 16198 | HD2 - HOSP DIST #2 | $10.38 | $10.37 | $0.00 | $0.00 | $20.75 | $0.00 |
| 2025 | 16198 | SD50 - SCHOOL DIST #50 | $330.49 | $330.47 | $0.00 | $0.00 | $660.96 | $0.00 |
| 2025 | 16198 | FD1 - FIRE DISTRICT #1 | $234.66 | $234.65 | $0.00 | $0.00 | $469.31 | $0.00 |
| 2025 | 16198 | EMS1 - FIRE DIST #1 EMS | $90.26 | $90.25 | $0.00 | $0.00 | $180.51 | $0.00 |
| 2025 | 16198 | FP - DNR Forest Fire Protection Assmt | $8.50 | $8.50 | $0.00 | $0.00 | $17.00 | $0.00 |
| 2025 | 16198 | FPLCA - DNR Landowner Contingency Assmt | $3.00 | $3.00 | $0.00 | $0.00 | $6.00 | $0.00 |
| 2025 | 16198 | JCCD - JC Conservation District | $2.53 | $2.53 | $0.00 | $0.00 | $5.06 | $0.00 |
| 2025 | 16198 | NWA - Noxious Weed Assessment | $2.15 | $2.15 | $0.00 | $0.00 | $4.30 | $0.00 |
| 2025 | 16198 | OSS - On Site Septic | $21.50 | $21.50 | $0.00 | $0.00 | $43.00 | $0.00 |
| 2025 | 16198 | WAT - Clean Water District | $13.00 | $13.00 | $0.00 | $0.00 | $26.00 | $0.00 |
| 2025 | 16198 | FP ADMIN - FP ADMIN | $0.50 | $0.00 | $0.00 | $0.00 | $0.50 | $0.00 |
| 2025 | 16198 | TOTAL: | $1634.13 | $1633.50 | $0.00 | $0.00 | $3267.63 | $0.00 |
|
| 2025 | 16198 | $1634.13 | $1633.50 | $0.00 | $0.00 | $3267.63 | $0.00 |
Statement Details |
| 2024 | 16230 | STATE - STATE LEVY (SCHOOL) | $369.25 | $369.25 | $0.00 | $0.00 | $738.50 | $0.00 |
| 2024 | 16230 | COUNTY - COUNTY LEVIES (CE, DD, VET, MH) | $158.01 | $158.00 | $0.00 | $0.00 | $316.01 | $0.00 |
| 2024 | 16230 | CONSERVE - CONSERVATION FUTURES | $4.74 | $4.74 | $0.00 | $0.00 | $9.48 | $0.00 |
| 2024 | 16230 | COROADS - COUNTY ROADS (ROADS, DIV TO CE) | $127.15 | $127.14 | $0.00 | $0.00 | $254.29 | $0.00 |
| 2024 | 16230 | PORTPT - PORT DISTRICT | $65.27 | $65.26 | $0.00 | $0.00 | $130.53 | $0.00 |
| 2024 | 16230 | PUD1 - PUD #1 | $10.38 | $10.38 | $0.00 | $0.00 | $20.76 | $0.00 |
| 2024 | 16230 | LIB1 - LIBRARY DIST #1 | $49.19 | $49.19 | $0.00 | $0.00 | $98.38 | $0.00 |
| 2024 | 16230 | HD2 - HOSP DIST #2 | $9.22 | $9.22 | $0.00 | $0.00 | $18.44 | $0.00 |
| 2024 | 16230 | SD50 - SCHOOL DIST #50 | $298.75 | $298.73 | $0.00 | $0.00 | $597.48 | $0.00 |
| 2024 | 16230 | FD1 - FIRE DISTRICT #1 | $208.92 | $208.92 | $0.00 | $0.00 | $417.84 | $0.00 |
| 2024 | 16230 | EMS1 - FIRE DIST #1 EMS | $79.80 | $79.80 | $0.00 | $0.00 | $159.60 | $0.00 |
| 2024 | 16230 | JCCD - JC Conservation District | $2.53 | $2.53 | $0.00 | $0.00 | $5.06 | $0.00 |
| 2024 | 16230 | NWA - Noxious Weed Assessment | $2.15 | $2.15 | $0.00 | $0.00 | $4.30 | $0.00 |
| 2024 | 16230 | OSS - On Site Septic | $21.00 | $21.00 | $0.00 | $0.00 | $42.00 | $0.00 |
| 2024 | 16230 | WAT - Clean Water District | $12.50 | $12.50 | $0.00 | $0.00 | $25.00 | $0.00 |
| 2024 | 16230 | TOTAL: | $1418.86 | $1418.81 | $0.00 | $0.00 | $2837.67 | $0.00 |
|
| 2024 | 16230 | $1418.86 | $1418.81 | $0.00 | $0.00 | $2837.67 | $0.00 |
Statement Details |
| 2023 | 16254 | STATE - STATE LEVY (SCHOOL) | $359.52 | $359.51 | $0.00 | $0.00 | $719.03 | $0.00 |
| 2023 | 16254 | COUNTY - COUNTY LEVIES (CE, DD, VET, MH) | $156.88 | $156.88 | $0.00 | $0.00 | $313.76 | $0.00 |
| 2023 | 16254 | CONSERVE - CONSERVATION FUTURES | $4.71 | $4.70 | $0.00 | $0.00 | $9.41 | $0.00 |
| 2023 | 16254 | COROADS - COUNTY ROADS (ROADS, DIV TO CE) | $126.93 | $126.93 | $0.00 | $0.00 | $253.86 | $0.00 |
| 2023 | 16254 | PORTPT - PORT DISTRICT | $66.09 | $66.08 | $0.00 | $0.00 | $132.17 | $0.00 |
| 2023 | 16254 | PUD1 - PUD #1 | $10.40 | $10.40 | $0.00 | $0.00 | $20.80 | $0.00 |
| 2023 | 16254 | LIB1 - LIBRARY DIST #1 | $49.11 | $49.10 | $0.00 | $0.00 | $98.21 | $0.00 |
| 2023 | 16254 | HD2 - HOSP DIST #2 | $9.16 | $9.15 | $0.00 | $0.00 | $18.31 | $0.00 |
| 2023 | 16254 | SD50 - SCHOOL DIST #50 | $285.30 | $285.27 | $0.00 | $0.00 | $570.57 | $0.00 |
| 2023 | 16254 | FD1 - FIRE DISTRICT #1 | $129.24 | $129.24 | $0.00 | $0.00 | $258.48 | $0.00 |
| 2023 | 16254 | EMS1 - FIRE DIST #1 EMS | $54.98 | $54.97 | $0.00 | $0.00 | $109.95 | $0.00 |
| 2023 | 16254 | JCCD - JC Conservation District | $2.53 | $2.53 | $0.00 | $0.00 | $5.06 | $0.00 |
| 2023 | 16254 | NWA - Noxious Weed Assessment | $2.15 | $2.15 | $0.00 | $0.00 | $4.30 | $0.00 |
| 2023 | 16254 | OSS - On Site Septic | $20.50 | $20.50 | $0.00 | $0.00 | $41.00 | $0.00 |
| 2023 | 16254 | WAT - Clean Water District | $12.00 | $12.00 | $0.00 | $0.00 | $24.00 | $0.00 |
| 2023 | 16254 | TOTAL: | $1289.50 | $1289.41 | $0.00 | $0.00 | $2578.91 | $0.00 |
|
| 2023 | 16254 | $1289.50 | $1289.41 | $0.00 | $0.00 | $2578.91 | $0.00 |
Values
| (+) Improvement Homesite Value: | + | $0 | |
| (+) Improvement Non-Homesite Value: | + | $237,138 | |
| (+) Land Homesite Value: | + | $0 | |
| (+) Land Non-Homesite Value: | + | $140,000 | |
| (+) Curr Use (HS): | + | $0 | $0 |
| (+) Curr Use (NHS): | + | $0 | $0 |
| | | -------------------------- | |
| (=) Market Value: | = | $377,138 | |
| (–) Productivity Loss: | – | $0 | |
| | | -------------------------- | |
| (=) Subtotal: | = | $377,138 | |
| (+) Senior Appraised Value: | + | $0 | |
| (+) Non-Senior Appraised Value: | + | $377,138 | |
| | | -------------------------- | |
| (=) Total Appraised Value: | = | $377,138 | |
| (–) Senior Exemption Loss: | – | $0 | |
| (–) Exemption Loss: | – | $0 | |
| | | -------------------------- | |
| (=) Taxable Value: | = | $377,138 | |
Taxing Jurisdiction
| Owner: | JOSHUA A JONES | | |
| % Ownership: | 100.0000000000% | | |
| Total Value: | $377,138 | | |
| Tax Area: | 0111 - 1-50F1E1H2L1 |
| CE | COUNTY CURRENT EXPENSE | 0.9034619479 | $377,138 | $377,138 | $340.73 | | |
| CNTYDD | DEVELOPMENTAL DISABILITIES | 0.0052121823 | $377,138 | $377,138 | $1.97 | | |
| CNTYVET | VETERANS RELIEF | 0.0052777810 | $377,138 | $377,138 | $1.99 | | |
| MENTAL | MENTAL HEALTH | 0.0052121823 | $377,138 | $377,138 | $1.97 | | |
| ROADS | COUNTY ROADS | 0.7415066410 | $377,138 | $377,138 | $279.65 | | |
| ROADSCU | COUNTY ROADS TO CUR EXP | 0.0000000000 | $377,138 | $377,138 | $0.00 | | |
| HOSP2CASH | HOSP DIST #2 GENERAL | 0.0536075306 | $377,138 | $377,138 | $20.22 | | |
| SCH50BOND | SCHOOL DIST #50 BOND 2016 | 0.5377451389 | $377,138 | $377,138 | $202.80 | | |
| SCH50CP | SCHOOL DIST #50 CAP PROJ | 0.4573475088 | $377,138 | $377,138 | $172.48 | | |
| SCH50MO | SCHOOL DIST #50 EP & O | 0.8262822886 | $377,138 | $377,138 | $311.62 | | |
| CONSERVE | CONSERVATION FUTURES | 0.0275621078 | $377,138 | $377,138 | $10.39 | | |
| EMS1 | FIRE DIST #1 EMS | 0.4679948282 | $377,138 | $377,138 | $176.50 | | |
| FD1 | FIRE DIST #1 GENERAL | 1.2171942929 | $377,138 | $377,138 | $459.05 | | |
| LIB1 | LIBRARY DIST #1 GENERAL | 0.2868827388 | $377,138 | $377,138 | $108.19 | | |
| PORTPT | PORT OF PT GENERAL | 0.1134941229 | $377,138 | $377,138 | $42.80 | | |
| PORTPTIDD | PORT OF PT IDD 2019 | 0.2577346692 | $377,138 | $377,138 | $97.20 | | |
| PUD1 | PUD #1 GENERAL | 0.0597888892 | $377,138 | $377,138 | $22.55 | | |
| STATE | STATE SCHOOL PART 1 | 1.4940692947 | $377,138 | $377,138 | $563.47 | | |
| STATE2 | STATE SCHOOL PART 2 | 0.8050170049 | $377,138 | $377,138 | $303.60 | | |
| | Total Tax Rate: | 8.2653911500 | | | | | |
| | | | | Taxes w/Current Exemptions: | $3,117.18 | | |
| | | | | Taxes w/o Exemptions: | $3,117.18 | | |
Improvement / Building
| Improvement #1: | Commercial/Industrial/Government Bldg | State Code: | 33 | 3168.0 sqft | Value: | $237,138 |
| Exterior Wall: | METAL | Floor Construction: | CONCR | | Foundation: | CONPR | Interior Finish: | UNFIN | | Roof Cover: | METAL |   |   |
|
Sketch
Property Image
Land
| 1 | 5350-6175L | | 0.4476 | 19496.00 | 0.00 | 0.00 | 4.00 | $140,000 | $0 |
Roll Value History
| 2026 | N/A | N/A | N/A | N/A | N/A |
| 2025 | $237,138 | $140,000 | $0 | $377,138 | $377,138 |
| 2024 | $237,138 | $140,000 | $0 | $377,138 | $377,138 |
| 2023 | $184,202 | $135,000 | $0 | $319,202 | $319,202 |
| 2022 | $175,430 | $130,000 | $0 | $305,430 | $305,430 |
Deed and Sales History
| 1 | 03/13/2024 | QCD | Quit Claim Deed | AMBER JONES | JOSHUA A JONES | | | | 142337 | |
| 2 | 03/15/2024 | SWD | Statutory Warranty Deed | JOHN STEPHEN LOPES TRUSTEE | JOSHUA A JONES | | | $450,000.00 | 142336 | |
| 3 | 11/20/2001 | SWD | Statutory Warranty Deed | DISCOVERY TIMBER COMPANY | LOPES FAMILY REVOCABLE TRUST, | 0 | 0 | $27,500.00 | 93614 | 0 |
Payout Agreement
| No payout information available.. |