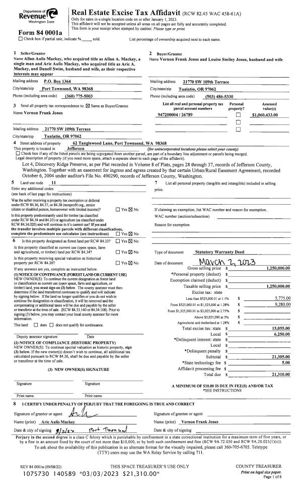
Property
Account |
| Property ID: | 26789 | Abbreviated Legal Description: | DISCOVERY RIDGE PRESERVE LOT 4 TGTH W/UND INT IN TRACT A SUBJ TO EASE/RESTRICT OF RECORD |
| Parcel # / Geo ID: | 947200004 | Agent Code: | |
| Type: | Real | | |
| Tax Area: | 0111 - 1-50F1E1H2L1 | Land Use Code | 11 |
| Open Space: | N | DFL | N |
| Historic Property: | N | Remodel Property: | N |
| Multi-Family Redevelopment: | N | | |
| Township: | 30N | Section: | 19 |
| Range: | 1W |
Location |
| Address: | 62 TANGLEWOOD LN PORT TOWNSEND, WA 98368 | Mapsco: | 027/004 |
| Neighborhood: | S19,30&31T30NR1W,S25T30R2W,ARBUTUS,BAYVIEW CHEVY,DISCO RIDGE | Map ID: | |
| Neighborhood CD: | 5360 |
Owner |
| Name: | VERNON F & LOUISE S JONES | Owner ID: | 108453 |
| Mailing Address: | 21770 SW 109TH TER TUALATIN, OR 97062-6009 | % Ownership: | 100.0000000000% |
| | | Exemptions: | |
Pay Tax Due
Select the appropriate checkbox next to the year to be paid. Multiple years may be selected.
*Convenience Fee not included
Taxes and Assessment Details
Property Tax Information as of
03/12/2026
Click on "Statement Details" to expand or collapse a tax statement.
* Please enter a valid date ** Please enter a valid date *
Statement Details |
| 2026 | 16159 | STATE - STATE LEVY (SCHOOL) | $1487.41 | $1487.40 | $0.00 | $0.00 | $0.00 | $2974.81 |
| 2026 | 16159 | COUNTY - COUNTY LEVIES (CE, DD, VET, MH) | $594.66 | $594.65 | $0.00 | $0.00 | $0.00 | $1189.31 |
| 2026 | 16159 | CONSERVE - CONSERVATION FUTURES | $17.83 | $17.83 | $0.00 | $0.00 | $0.00 | $35.66 |
| 2026 | 16159 | COROADS - COUNTY ROADS (ROADS, DIV TO CE) | $479.72 | $479.72 | $0.00 | $0.00 | $0.00 | $959.44 |
| 2026 | 16159 | PORTPT - PORT DISTRICT | $240.18 | $240.16 | $0.00 | $0.00 | $0.00 | $480.34 |
| 2026 | 16159 | PUD1 - PUD #1 | $38.68 | $38.68 | $0.00 | $0.00 | $0.00 | $77.36 |
| 2026 | 16159 | LIB1 - LIBRARY DIST #1 | $185.60 | $185.60 | $0.00 | $0.00 | $0.00 | $371.20 |
| 2026 | 16159 | HD2 - HOSP DIST #2 | $34.68 | $34.68 | $0.00 | $0.00 | $0.00 | $69.36 |
| 2026 | 16159 | SD50 - SCHOOL DIST #50 | $1178.36 | $1178.34 | $0.00 | $0.00 | $0.00 | $2356.70 |
| 2026 | 16159 | FD1 - FIRE DISTRICT #1 | $787.47 | $787.47 | $0.00 | $0.00 | $0.00 | $1574.94 |
| 2026 | 16159 | EMS1 - FIRE DIST #1 EMS | $302.77 | $302.77 | $0.00 | $0.00 | $0.00 | $605.54 |
| 2026 | 16159 | FP - DNR Forest Fire Protection Assmt | $8.50 | $8.50 | $0.00 | $0.00 | $0.00 | $17.00 |
| 2026 | 16159 | FPLCA - DNR Landowner Contingency Assmt | $3.00 | $3.00 | $0.00 | $0.00 | $0.00 | $6.00 |
| 2026 | 16159 | JCCD - JC Conservation District | $3.05 | $3.05 | $0.00 | $0.00 | $0.00 | $6.10 |
| 2026 | 16159 | NWA - Noxious Weed Assessment | $5.23 | $5.22 | $0.00 | $0.00 | $0.00 | $10.45 |
| 2026 | 16159 | OSS - On Site Septic | $46.20 | $46.20 | $0.00 | $0.00 | $0.00 | $92.40 |
| 2026 | 16159 | WAT - Clean Water District | $13.00 | $13.00 | $0.00 | $0.00 | $0.00 | $26.00 |
| 2026 | 16159 | FP ADMIN - FP ADMIN | $0.50 | $0.00 | $0.00 | $0.00 | $0.00 | $0.50 |
| 2026 | 16159 | TOTAL: | $5426.84 | $5426.27 | $0.00 | $0.00 | $0.00 | $10853.11 |
|
| 2026 | 16159 | $5426.84 | $5426.27 | $0.00 | $0.00 | $0.00 | $10853.11 |
Statement Details |
| 2025 | 16213 | STATE - STATE LEVY (SCHOOL) | $1551.42 | $1551.41 | $0.00 | $0.00 | $3102.83 | $0.00 |
| 2025 | 16213 | COUNTY - COUNTY LEVIES (CE, DD, VET, MH) | $610.09 | $610.07 | $0.00 | $0.00 | $1220.16 | $0.00 |
| 2025 | 16213 | CONSERVE - CONSERVATION FUTURES | $18.30 | $18.29 | $0.00 | $0.00 | $36.59 | $0.00 |
| 2025 | 16213 | COROADS - COUNTY ROADS (ROADS, DIV TO CE) | $488.78 | $488.77 | $0.00 | $0.00 | $977.55 | $0.00 |
| 2025 | 16213 | PORTPT - PORT DISTRICT | $248.95 | $248.95 | $0.00 | $0.00 | $497.90 | $0.00 |
| 2025 | 16213 | PUD1 - PUD #1 | $39.92 | $39.92 | $0.00 | $0.00 | $79.84 | $0.00 |
| 2025 | 16213 | LIB1 - LIBRARY DIST #1 | $189.11 | $189.10 | $0.00 | $0.00 | $378.21 | $0.00 |
| 2025 | 16213 | HD2 - HOSP DIST #2 | $35.60 | $35.59 | $0.00 | $0.00 | $71.19 | $0.00 |
| 2025 | 16213 | SD50 - SCHOOL DIST #50 | $1133.84 | $1133.82 | $0.00 | $0.00 | $2267.66 | $0.00 |
| 2025 | 16213 | FD1 - FIRE DISTRICT #1 | $805.08 | $805.07 | $0.00 | $0.00 | $1610.15 | $0.00 |
| 2025 | 16213 | EMS1 - FIRE DIST #1 EMS | $309.66 | $309.65 | $0.00 | $0.00 | $619.31 | $0.00 |
| 2025 | 16213 | FP - DNR Forest Fire Protection Assmt | $8.50 | $8.50 | $0.00 | $0.00 | $17.00 | $0.00 |
| 2025 | 16213 | FPLCA - DNR Landowner Contingency Assmt | $3.00 | $3.00 | $0.00 | $0.00 | $6.00 | $0.00 |
| 2025 | 16213 | JCCD - JC Conservation District | $3.05 | $3.05 | $0.00 | $0.00 | $6.10 | $0.00 |
| 2025 | 16213 | NWA - Noxious Weed Assessment | $3.65 | $3.65 | $0.00 | $0.00 | $7.30 | $0.00 |
| 2025 | 16213 | OSS - On Site Septic | $43.00 | $43.00 | $0.00 | $0.00 | $86.00 | $0.00 |
| 2025 | 16213 | WAT - Clean Water District | $13.00 | $13.00 | $0.00 | $0.00 | $26.00 | $0.00 |
| 2025 | 16213 | FP ADMIN - FP ADMIN | $0.50 | $0.00 | $0.00 | $0.00 | $0.50 | $0.00 |
| 2025 | 16213 | TOTAL: | $5505.45 | $5504.84 | $0.00 | $0.00 | $11010.29 | $0.00 |
|
| 2025 | 16213 | $5505.45 | $5504.84 | $0.00 | $0.00 | $11010.29 | $0.00 |
Statement Details |
| 2024 | 16245 | STATE - STATE LEVY (SCHOOL) | $1449.36 | $1449.36 | $0.00 | $0.00 | $2898.72 | $0.00 |
| 2024 | 16245 | COUNTY - COUNTY LEVIES (CE, DD, VET, MH) | $620.20 | $620.18 | $0.00 | $0.00 | $1240.38 | $0.00 |
| 2024 | 16245 | CONSERVE - CONSERVATION FUTURES | $18.60 | $18.59 | $0.00 | $0.00 | $37.19 | $0.00 |
| 2024 | 16245 | COROADS - COUNTY ROADS (ROADS, DIV TO CE) | $499.06 | $499.04 | $0.00 | $0.00 | $998.10 | $0.00 |
| 2024 | 16245 | PORTPT - PORT DISTRICT | $256.17 | $256.16 | $0.00 | $0.00 | $512.33 | $0.00 |
| 2024 | 16245 | PUD1 - PUD #1 | $40.74 | $40.73 | $0.00 | $0.00 | $81.47 | $0.00 |
| 2024 | 16245 | LIB1 - LIBRARY DIST #1 | $193.08 | $193.08 | $0.00 | $0.00 | $386.16 | $0.00 |
| 2024 | 16245 | HD2 - HOSP DIST #2 | $36.19 | $36.18 | $0.00 | $0.00 | $72.37 | $0.00 |
| 2024 | 16245 | SD50 - SCHOOL DIST #50 | $1172.61 | $1172.59 | $0.00 | $0.00 | $2345.20 | $0.00 |
| 2024 | 16245 | FD1 - FIRE DISTRICT #1 | $820.05 | $820.04 | $0.00 | $0.00 | $1640.09 | $0.00 |
| 2024 | 16245 | EMS1 - FIRE DIST #1 EMS | $313.23 | $313.22 | $0.00 | $0.00 | $626.45 | $0.00 |
| 2024 | 16245 | FP - DNR Forest Fire Protection Assmt | $8.50 | $8.50 | $0.00 | $0.00 | $17.00 | $0.00 |
| 2024 | 16245 | FPLCA - DNR Landowner Contingency Assmt | $3.00 | $3.00 | $0.00 | $0.00 | $6.00 | $0.00 |
| 2024 | 16245 | JCCD - JC Conservation District | $3.05 | $3.05 | $0.00 | $0.00 | $6.10 | $0.00 |
| 2024 | 16245 | NWA - Noxious Weed Assessment | $3.65 | $3.65 | $0.00 | $0.00 | $7.30 | $0.00 |
| 2024 | 16245 | OSS - On Site Septic | $42.00 | $42.00 | $0.00 | $0.00 | $84.00 | $0.00 |
| 2024 | 16245 | WAT - Clean Water District | $12.50 | $12.50 | $0.00 | $0.00 | $25.00 | $0.00 |
| 2024 | 16245 | FP ADMIN - FP ADMIN | $0.50 | $0.00 | $0.00 | $0.00 | $0.50 | $0.00 |
| 2024 | 16245 | TOTAL: | $5492.49 | $5491.87 | $0.00 | $0.00 | $10984.36 | $0.00 |
|
| 2024 | 16245 | $5492.49 | $5491.87 | $0.00 | $0.00 | $10984.36 | $0.00 |
Statement Details |
| 2023 | 16269 | STATE - STATE LEVY (SCHOOL) | $1248.21 | $1248.21 | $0.00 | $0.00 | $2496.42 | $0.00 |
| 2023 | 16269 | COUNTY - COUNTY LEVIES (CE, DD, VET, MH) | $544.68 | $544.67 | $0.00 | $0.00 | $1089.35 | $0.00 |
| 2023 | 16269 | CONSERVE - CONSERVATION FUTURES | $16.34 | $16.33 | $0.00 | $0.00 | $32.67 | $0.00 |
| 2023 | 16269 | COROADS - COUNTY ROADS (ROADS, DIV TO CE) | $440.69 | $440.68 | $0.00 | $0.00 | $881.37 | $0.00 |
| 2023 | 16269 | PORTPT - PORT DISTRICT | $229.46 | $229.44 | $0.00 | $0.00 | $458.90 | $0.00 |
| 2023 | 16269 | PUD1 - PUD #1 | $36.11 | $36.10 | $0.00 | $0.00 | $72.21 | $0.00 |
| 2023 | 16269 | LIB1 - LIBRARY DIST #1 | $170.50 | $170.50 | $0.00 | $0.00 | $341.00 | $0.00 |
| 2023 | 16269 | HD2 - HOSP DIST #2 | $31.79 | $31.78 | $0.00 | $0.00 | $63.57 | $0.00 |
| 2023 | 16269 | SD50 - SCHOOL DIST #50 | $990.49 | $990.47 | $0.00 | $0.00 | $1980.96 | $0.00 |
| 2023 | 16269 | FD1 - FIRE DISTRICT #1 | $448.71 | $448.71 | $0.00 | $0.00 | $897.42 | $0.00 |
| 2023 | 16269 | EMS1 - FIRE DIST #1 EMS | $190.88 | $190.87 | $0.00 | $0.00 | $381.75 | $0.00 |
| 2023 | 16269 | FP - DNR Forest Fire Protection Assmt | $8.50 | $8.50 | $0.00 | $0.00 | $17.00 | $0.00 |
| 2023 | 16269 | FPLCA - DNR Landowner Contingency Assmt | $3.00 | $3.00 | $0.00 | $0.00 | $6.00 | $0.00 |
| 2023 | 16269 | JCCD - JC Conservation District | $3.05 | $3.05 | $0.00 | $0.00 | $6.10 | $0.00 |
| 2023 | 16269 | NWA - Noxious Weed Assessment | $3.65 | $3.65 | $0.00 | $0.00 | $7.30 | $0.00 |
| 2023 | 16269 | OSS - On Site Septic | $41.00 | $41.00 | $0.00 | $0.00 | $82.00 | $0.00 |
| 2023 | 16269 | WAT - Clean Water District | $12.00 | $12.00 | $0.00 | $0.00 | $24.00 | $0.00 |
| 2023 | 16269 | FP ADMIN - FP ADMIN | $0.50 | $0.00 | $0.00 | $0.00 | $0.50 | $0.00 |
| 2023 | 16269 | TOTAL: | $4419.56 | $4418.96 | $0.00 | $0.00 | $8838.52 | $0.00 |
|
| 2023 | 16269 | $4419.56 | $4418.96 | $0.00 | $0.00 | $8838.52 | $0.00 |
Values
| (+) Improvement Homesite Value: | + | $0 | |
| (+) Improvement Non-Homesite Value: | + | $971,766 | |
| (+) Land Homesite Value: | + | $0 | |
| (+) Land Non-Homesite Value: | + | $322,146 | |
| (+) Curr Use (HS): | + | $0 | $0 |
| (+) Curr Use (NHS): | + | $0 | $0 |
| | | -------------------------- | |
| (=) Market Value: | = | $1,293,912 | |
| (–) Productivity Loss: | – | $0 | |
| | | -------------------------- | |
| (=) Subtotal: | = | $1,293,912 | |
| (+) Senior Appraised Value: | + | $0 | |
| (+) Non-Senior Appraised Value: | + | $1,293,912 | |
| | | -------------------------- | |
| (=) Total Appraised Value: | = | $1,293,912 | |
| (–) Senior Exemption Loss: | – | $0 | |
| (–) Exemption Loss: | – | $0 | |
| | | -------------------------- | |
| (=) Taxable Value: | = | $1,293,912 | |
Taxing Jurisdiction
| Owner: | VERNON F & LOUISE S JONES | | |
| % Ownership: | 100.0000000000% | | |
| Total Value: | $1,293,912 | | |
| Tax Area: | 0111 - 1-50F1E1H2L1 |
| CE | COUNTY CURRENT EXPENSE | 0.9034619479 | $1,293,912 | $1,293,912 | $1,169.00 | | |
| CNTYDD | DEVELOPMENTAL DISABILITIES | 0.0052121823 | $1,293,912 | $1,293,912 | $6.74 | | |
| CNTYVET | VETERANS RELIEF | 0.0052777810 | $1,293,912 | $1,293,912 | $6.83 | | |
| MENTAL | MENTAL HEALTH | 0.0052121823 | $1,293,912 | $1,293,912 | $6.74 | | |
| ROADS | COUNTY ROADS | 0.7415066410 | $1,293,912 | $1,293,912 | $959.44 | | |
| ROADSCU | COUNTY ROADS TO CUR EXP | 0.0000000000 | $1,293,912 | $1,293,912 | $0.00 | | |
| HOSP2CASH | HOSP DIST #2 GENERAL | 0.0536075306 | $1,293,912 | $1,293,912 | $69.36 | | |
| SCH50BOND | SCHOOL DIST #50 BOND 2016 | 0.5377451389 | $1,293,912 | $1,293,912 | $695.79 | | |
| SCH50CP | SCHOOL DIST #50 CAP PROJ | 0.4573475088 | $1,293,912 | $1,293,912 | $591.77 | | |
| SCH50MO | SCHOOL DIST #50 EP & O | 0.8262822886 | $1,293,912 | $1,293,912 | $1,069.14 | | |
| CONSERVE | CONSERVATION FUTURES | 0.0275621078 | $1,293,912 | $1,293,912 | $35.66 | | |
| EMS1 | FIRE DIST #1 EMS | 0.4679948282 | $1,293,912 | $1,293,912 | $605.54 | | |
| FD1 | FIRE DIST #1 GENERAL | 1.2171942929 | $1,293,912 | $1,293,912 | $1,574.94 | | |
| LIB1 | LIBRARY DIST #1 GENERAL | 0.2868827388 | $1,293,912 | $1,293,912 | $371.20 | | |
| PORTPT | PORT OF PT GENERAL | 0.1134941229 | $1,293,912 | $1,293,912 | $146.85 | | |
| PORTPTIDD | PORT OF PT IDD 2019 | 0.2577346692 | $1,293,912 | $1,293,912 | $333.49 | | |
| PUD1 | PUD #1 GENERAL | 0.0597888892 | $1,293,912 | $1,293,912 | $77.36 | | |
| STATE | STATE SCHOOL PART 1 | 1.4940692947 | $1,293,912 | $1,293,912 | $1,933.19 | | |
| STATE2 | STATE SCHOOL PART 2 | 0.8050170049 | $1,293,912 | $1,293,912 | $1,041.62 | | |
| | Total Tax Rate: | 8.2653911500 | | | | | |
| | | | | Taxes w/Current Exemptions: | $10,694.66 | | |
| | | | | Taxes w/o Exemptions: | $10,694.66 | | |
Improvement / Building
| Improvement #1: | Residential Bldg | State Code: | 11 | 3528.0 sqft | Value: | $641,793 |
| Bathrooms (#): | 4 (FULL) | Bedrooms (#): | 4 | | Exterior Wall: | SI/ST | Fireplace: | WD ST-GOOD | | Floor Construction: | FRAME | Foundation: | CONPR | | Heating/Cooling: | HPUMP | Inside Verify: | YES | | Roof Cover: | METAL |   |   |
|
| | Type | Description | Class CD | Sub Class CD | Year Built | Area |
| | MA | Main Area | 4- | 2S | 2013 | 1764.0 |
| | MA2 | Second Floor Main Area | 4- | 2S | 2013 | 1764.0 |
| | HWPOR | House Wood Porch | 4 | 2S | 2013 | 134.0 |
| | HDECK | House Deck | 4 | 2S | 2013 | 346.0 |
| | PATIO | House Patio | 4 | 2S | 2013 | 450.0 |
| Improvement #2: | Residential Bldg | State Code: | 11 | 1220.0 sqft | Value: | $329,973 |
| Bathrooms (#): | 2 (FULL) | Bedrooms (#): | 2 | | Exterior Wall: | SI/ST | Fireplace: | WD ST-GOOD | | Floor Construction: | FRAME | Foundation: | CONPR | | Heating/Cooling: | HPUMP | Inside Verify: | YES | | Roof Cover: | METAL |   |   |
|
| | Type | Description | Class CD | Sub Class CD | Year Built | Area |
| | MA | Main Area | 4- | 1S | 2013 | 1220.0 |
| | GDET | Detached Garage | 3 | 1S | 2013 | 1000.0 |
| | HDECK | House Deck | 4 | 1S | 2013 | 64.0 |
Sketch
Property Image
Land
| 1 | 5360-1355S | | 1.0000 | 43560.00 | 0.00 | 0.00 | 1.00 | $143,000 | $0 |
| 2 | 1672A | | 9.5800 | 417304.80 | 0.00 | 0.00 | 0.00 | $179,146 | $0 |
Roll Value History
| 2026 | N/A | N/A | N/A | N/A | N/A |
| 2025 | $971,766 | $322,146 | $0 | $1,293,912 | $1,293,912 |
| 2024 | $971,766 | $322,146 | $0 | $1,293,912 | $1,293,912 |
| 2023 | $960,710 | $292,194 | $0 | $1,252,904 | $1,252,904 |
| 2022 | $873,373 | $187,060 | $0 | $1,060,433 | $1,060,433 |
Deed and Sales History
| 1 | 03/02/2023 | SWD | Statutory Warranty Deed | ALLAN A MACKEY | VERNON F & LOUISE S JONES | | | $1,250,000.00 | 140589 | |
| 2 | 11/01/2013 | QCD | Quit Claim Deed | ALLAN A MACKEY | ALLAN A MACKEY | | | | 120263 | |
| 3 | 08/01/2011 | SWD | Statutory Warranty Deed | MC KEOWN, GEOFFREY, MC KE | MACKEY, ALLAN A/SHARON/ARIC & | 0 | 0 | $130,000.00 | 116346 | 0 |
| 4 | 06/11/2009 | SWD | Statutory Warranty Deed | AISSEN, LOUIS | MCKEOWN, GEOFFREY/JENNIFER & | | | $179,000.00 | 112977 | 0 |
| 5 | 03/19/2007 | SWD | Statutory Warranty Deed | RIDDLE, RICHARD N | AISSEN, LOUIS | 0 | 0 | $141,300.00 | 108830 | 0 |
| 6 | 03/09/2005 | SWD | Statutory Warranty Deed | HENLEY GROUP, LTD | RIDDLE, RICHARD N | | | $125,000.00 | 103129 | 0 |
Payout Agreement
| No payout information available.. |