Property
Account |
| Property ID: | 26793 | Abbreviated Legal Description: | DISCOVERY RIDGE PRESERVE LOT 8 TGTH W/UND INT TRACT A SUBJ TO EASE/RESTRICT OF RECORD |
| Parcel # / Geo ID: | 947200008 | Agent Code: | |
| Type: | Real | | |
| Tax Area: | 0111 - 1-50F1E1H2L1 | Land Use Code | 11 |
| Open Space: | N | DFL | N |
| Historic Property: | N | Remodel Property: | N |
| Multi-Family Redevelopment: | N | | |
| Township: | 30N | Section: | 19 |
| Range: | 1W |
Location |
| Address: | 62 CHASE RD PORT TOWNSEND, WA 98368 | Mapsco: | 027/008 |
| Neighborhood: | S19,30&31T30NR1W,S25T30R2W,ARBUTUS,BAYVIEW CHEVY,DISCO RIDGE | Map ID: | |
| Neighborhood CD: | 5360 |
Owner |
| Name: | PAUL G NEBEL | Owner ID: | 106470 |
| Mailing Address: | 62 CHASE RD PORT TOWNSEND, WA 98368-8863 | % Ownership: | 100.0000000000% |
| | | Exemptions: | |
Pay Tax Due
Select the appropriate checkbox next to the year to be paid. Multiple years may be selected.
*Convenience Fee not included
Taxes and Assessment Details
Property Tax Information as of
03/10/2026
Click on "Statement Details" to expand or collapse a tax statement.
* Please enter a valid date ** Please enter a valid date *
Statement Details |
| 2026 | 16163 | STATE - STATE LEVY (SCHOOL) | $918.76 | $918.75 | $0.00 | $0.00 | $0.00 | $1837.51 |
| 2026 | 16163 | COUNTY - COUNTY LEVIES (CE, DD, VET, MH) | $367.33 | $367.31 | $0.00 | $0.00 | $0.00 | $734.64 |
| 2026 | 16163 | CONSERVE - CONSERVATION FUTURES | $11.02 | $11.01 | $0.00 | $0.00 | $0.00 | $22.03 |
| 2026 | 16163 | COROADS - COUNTY ROADS (ROADS, DIV TO CE) | $296.32 | $296.32 | $0.00 | $0.00 | $0.00 | $592.64 |
| 2026 | 16163 | PORTPT - PORT DISTRICT | $148.36 | $148.34 | $0.00 | $0.00 | $0.00 | $296.70 |
| 2026 | 16163 | PUD1 - PUD #1 | $23.90 | $23.89 | $0.00 | $0.00 | $0.00 | $47.79 |
| 2026 | 16163 | LIB1 - LIBRARY DIST #1 | $114.65 | $114.64 | $0.00 | $0.00 | $0.00 | $229.29 |
| 2026 | 16163 | HD2 - HOSP DIST #2 | $21.43 | $21.42 | $0.00 | $0.00 | $0.00 | $42.85 |
| 2026 | 16163 | SD50 - SCHOOL DIST #50 | $727.87 | $727.84 | $0.00 | $0.00 | $0.00 | $1455.71 |
| 2026 | 16163 | FD1 - FIRE DISTRICT #1 | $486.42 | $486.41 | $0.00 | $0.00 | $0.00 | $972.83 |
| 2026 | 16163 | EMS1 - FIRE DIST #1 EMS | $187.02 | $187.02 | $0.00 | $0.00 | $0.00 | $374.04 |
| 2026 | 16163 | FP - DNR Forest Fire Protection Assmt | $8.50 | $8.50 | $0.00 | $0.00 | $0.00 | $17.00 |
| 2026 | 16163 | FPLCA - DNR Landowner Contingency Assmt | $3.00 | $3.00 | $0.00 | $0.00 | $0.00 | $6.00 |
| 2026 | 16163 | JCCD - JC Conservation District | $2.85 | $2.85 | $0.00 | $0.00 | $0.00 | $5.70 |
| 2026 | 16163 | NWA - Noxious Weed Assessment | $4.33 | $4.32 | $0.00 | $0.00 | $0.00 | $8.65 |
| 2026 | 16163 | OSS - On Site Septic | $23.10 | $23.10 | $0.00 | $0.00 | $0.00 | $46.20 |
| 2026 | 16163 | WAT - Clean Water District | $13.00 | $13.00 | $0.00 | $0.00 | $0.00 | $26.00 |
| 2026 | 16163 | FP ADMIN - FP ADMIN | $0.50 | $0.00 | $0.00 | $0.00 | $0.00 | $0.50 |
| 2026 | 16163 | TOTAL: | $3358.36 | $3357.72 | $0.00 | $0.00 | $0.00 | $6716.08 |
|
| 2026 | 16163 | $3358.36 | $3357.72 | $0.00 | $0.00 | $0.00 | $6716.08 |
Statement Details |
| 2025 | 16217 | STATE - STATE LEVY (SCHOOL) | $958.30 | $958.29 | $0.00 | $0.00 | $1916.59 | $0.00 |
| 2025 | 16217 | COUNTY - COUNTY LEVIES (CE, DD, VET, MH) | $376.84 | $376.84 | $0.00 | $0.00 | $753.68 | $0.00 |
| 2025 | 16217 | CONSERVE - CONSERVATION FUTURES | $11.30 | $11.30 | $0.00 | $0.00 | $22.60 | $0.00 |
| 2025 | 16217 | COROADS - COUNTY ROADS (ROADS, DIV TO CE) | $301.92 | $301.90 | $0.00 | $0.00 | $603.82 | $0.00 |
| 2025 | 16217 | PORTPT - PORT DISTRICT | $153.78 | $153.77 | $0.00 | $0.00 | $307.55 | $0.00 |
| 2025 | 16217 | PUD1 - PUD #1 | $24.66 | $24.66 | $0.00 | $0.00 | $49.32 | $0.00 |
| 2025 | 16217 | LIB1 - LIBRARY DIST #1 | $116.81 | $116.80 | $0.00 | $0.00 | $233.61 | $0.00 |
| 2025 | 16217 | HD2 - HOSP DIST #2 | $21.99 | $21.98 | $0.00 | $0.00 | $43.97 | $0.00 |
| 2025 | 16217 | SD50 - SCHOOL DIST #50 | $700.36 | $700.35 | $0.00 | $0.00 | $1400.71 | $0.00 |
| 2025 | 16217 | FD1 - FIRE DISTRICT #1 | $497.29 | $497.28 | $0.00 | $0.00 | $994.57 | $0.00 |
| 2025 | 16217 | EMS1 - FIRE DIST #1 EMS | $191.27 | $191.27 | $0.00 | $0.00 | $382.54 | $0.00 |
| 2025 | 16217 | FP - DNR Forest Fire Protection Assmt | $8.50 | $8.50 | $0.00 | $0.00 | $17.00 | $0.00 |
| 2025 | 16217 | FPLCA - DNR Landowner Contingency Assmt | $3.00 | $3.00 | $0.00 | $0.00 | $6.00 | $0.00 |
| 2025 | 16217 | JCCD - JC Conservation District | $2.85 | $2.85 | $0.00 | $0.00 | $5.70 | $0.00 |
| 2025 | 16217 | NWA - Noxious Weed Assessment | $3.05 | $3.05 | $0.00 | $0.00 | $6.10 | $0.00 |
| 2025 | 16217 | OSS - On Site Septic | $21.50 | $21.50 | $0.00 | $0.00 | $43.00 | $0.00 |
| 2025 | 16217 | WAT - Clean Water District | $13.00 | $13.00 | $0.00 | $0.00 | $26.00 | $0.00 |
| 2025 | 16217 | FP ADMIN - FP ADMIN | $0.50 | $0.00 | $0.00 | $0.00 | $0.50 | $0.00 |
| 2025 | 16217 | TOTAL: | $3406.92 | $3406.34 | $0.00 | $0.00 | $6813.26 | $0.00 |
|
| 2025 | 16217 | $3406.92 | $3406.34 | $0.00 | $0.00 | $6813.26 | $0.00 |
Statement Details |
| 2024 | 16249 | STATE - STATE LEVY (SCHOOL) | $923.73 | $923.72 | $0.00 | $0.00 | $1847.45 | $0.00 |
| 2024 | 16249 | COUNTY - COUNTY LEVIES (CE, DD, VET, MH) | $395.27 | $395.27 | $0.00 | $0.00 | $790.54 | $0.00 |
| 2024 | 16249 | CONSERVE - CONSERVATION FUTURES | $11.86 | $11.85 | $0.00 | $0.00 | $23.71 | $0.00 |
| 2024 | 16249 | COROADS - COUNTY ROADS (ROADS, DIV TO CE) | $318.07 | $318.06 | $0.00 | $0.00 | $636.13 | $0.00 |
| 2024 | 16249 | PORTPT - PORT DISTRICT | $163.27 | $163.25 | $0.00 | $0.00 | $326.52 | $0.00 |
| 2024 | 16249 | PUD1 - PUD #1 | $25.97 | $25.96 | $0.00 | $0.00 | $51.93 | $0.00 |
| 2024 | 16249 | LIB1 - LIBRARY DIST #1 | $123.06 | $123.05 | $0.00 | $0.00 | $246.11 | $0.00 |
| 2024 | 16249 | HD2 - HOSP DIST #2 | $23.07 | $23.06 | $0.00 | $0.00 | $46.13 | $0.00 |
| 2024 | 16249 | SD50 - SCHOOL DIST #50 | $747.35 | $747.33 | $0.00 | $0.00 | $1494.68 | $0.00 |
| 2024 | 16249 | FD1 - FIRE DISTRICT #1 | $522.65 | $522.64 | $0.00 | $0.00 | $1045.29 | $0.00 |
| 2024 | 16249 | EMS1 - FIRE DIST #1 EMS | $199.63 | $199.63 | $0.00 | $0.00 | $399.26 | $0.00 |
| 2024 | 16249 | FP - DNR Forest Fire Protection Assmt | $8.50 | $8.50 | $0.00 | $0.00 | $17.00 | $0.00 |
| 2024 | 16249 | FPLCA - DNR Landowner Contingency Assmt | $3.00 | $3.00 | $0.00 | $0.00 | $6.00 | $0.00 |
| 2024 | 16249 | JCCD - JC Conservation District | $2.85 | $2.85 | $0.00 | $0.00 | $5.70 | $0.00 |
| 2024 | 16249 | NWA - Noxious Weed Assessment | $3.05 | $3.05 | $0.00 | $0.00 | $6.10 | $0.00 |
| 2024 | 16249 | OSS - On Site Septic | $21.00 | $21.00 | $0.00 | $0.00 | $42.00 | $0.00 |
| 2024 | 16249 | WAT - Clean Water District | $12.50 | $12.50 | $0.00 | $0.00 | $25.00 | $0.00 |
| 2024 | 16249 | FP ADMIN - FP ADMIN | $0.50 | $0.00 | $0.00 | $0.00 | $0.50 | $0.00 |
| 2024 | 16249 | TOTAL: | $3505.33 | $3504.72 | $0.00 | $0.00 | $7010.05 | $0.00 |
|
| 2024 | 16249 | $3505.33 | $3504.72 | $0.00 | $0.00 | $7010.05 | $0.00 |
Statement Details |
| 2023 | 16273 | STATE - STATE LEVY (SCHOOL) | $848.25 | $848.24 | $0.00 | $0.00 | $1696.49 | $0.00 |
| 2023 | 16273 | COUNTY - COUNTY LEVIES (CE, DD, VET, MH) | $370.15 | $370.14 | $0.00 | $0.00 | $740.29 | $0.00 |
| 2023 | 16273 | CONSERVE - CONSERVATION FUTURES | $11.10 | $11.10 | $0.00 | $0.00 | $22.20 | $0.00 |
| 2023 | 16273 | COROADS - COUNTY ROADS (ROADS, DIV TO CE) | $299.48 | $299.47 | $0.00 | $0.00 | $598.95 | $0.00 |
| 2023 | 16273 | PORTPT - PORT DISTRICT | $155.93 | $155.92 | $0.00 | $0.00 | $311.85 | $0.00 |
| 2023 | 16273 | PUD1 - PUD #1 | $24.54 | $24.53 | $0.00 | $0.00 | $49.07 | $0.00 |
| 2023 | 16273 | LIB1 - LIBRARY DIST #1 | $115.87 | $115.86 | $0.00 | $0.00 | $231.73 | $0.00 |
| 2023 | 16273 | HD2 - HOSP DIST #2 | $21.60 | $21.60 | $0.00 | $0.00 | $43.20 | $0.00 |
| 2023 | 16273 | SD50 - SCHOOL DIST #50 | $673.10 | $673.09 | $0.00 | $0.00 | $1346.19 | $0.00 |
| 2023 | 16273 | FD1 - FIRE DISTRICT #1 | $304.93 | $304.92 | $0.00 | $0.00 | $609.85 | $0.00 |
| 2023 | 16273 | EMS1 - FIRE DIST #1 EMS | $129.71 | $129.71 | $0.00 | $0.00 | $259.42 | $0.00 |
| 2023 | 16273 | FP - DNR Forest Fire Protection Assmt | $8.50 | $8.50 | $0.00 | $0.00 | $17.00 | $0.00 |
| 2023 | 16273 | FPLCA - DNR Landowner Contingency Assmt | $3.00 | $3.00 | $0.00 | $0.00 | $6.00 | $0.00 |
| 2023 | 16273 | JCCD - JC Conservation District | $2.85 | $2.85 | $0.00 | $0.00 | $5.70 | $0.00 |
| 2023 | 16273 | NWA - Noxious Weed Assessment | $3.05 | $3.05 | $0.00 | $0.00 | $6.10 | $0.00 |
| 2023 | 16273 | OSS - On Site Septic | $20.50 | $20.50 | $0.00 | $0.00 | $41.00 | $0.00 |
| 2023 | 16273 | WAT - Clean Water District | $12.00 | $12.00 | $0.00 | $0.00 | $24.00 | $0.00 |
| 2023 | 16273 | FP ADMIN - FP ADMIN | $0.50 | $0.00 | $0.00 | $0.00 | $0.50 | $0.00 |
| 2023 | 16273 | TOTAL: | $3005.06 | $3004.48 | $0.00 | $0.00 | $6009.54 | $0.00 |
|
| 2023 | 16273 | $3005.06 | $3004.48 | $0.00 | $0.00 | $6009.54 | $0.00 |
Values
| (+) Improvement Homesite Value: | + | $0 | |
| (+) Improvement Non-Homesite Value: | + | $550,534 | |
| (+) Land Homesite Value: | + | $0 | |
| (+) Land Non-Homesite Value: | + | $248,702 | |
| (+) Curr Use (HS): | + | $0 | $0 |
| (+) Curr Use (NHS): | + | $0 | $0 |
| | | -------------------------- | |
| (=) Market Value: | = | $799,236 | |
| (–) Productivity Loss: | – | $0 | |
| | | -------------------------- | |
| (=) Subtotal: | = | $799,236 | |
| (+) Senior Appraised Value: | + | $0 | |
| (+) Non-Senior Appraised Value: | + | $799,236 | |
| | | -------------------------- | |
| (=) Total Appraised Value: | = | $799,236 | |
| (–) Senior Exemption Loss: | – | $0 | |
| (–) Exemption Loss: | – | $0 | |
| | | -------------------------- | |
| (=) Taxable Value: | = | $799,236 | |
Taxing Jurisdiction
| Owner: | PAUL G NEBEL | | |
| % Ownership: | 100.0000000000% | | |
| Total Value: | $799,236 | | |
| Tax Area: | 0111 - 1-50F1E1H2L1 |
| CE | COUNTY CURRENT EXPENSE | 0.9034619479 | $799,236 | $799,236 | $722.08 | | |
| CNTYDD | DEVELOPMENTAL DISABILITIES | 0.0052121823 | $799,236 | $799,236 | $4.17 | | |
| CNTYVET | VETERANS RELIEF | 0.0052777810 | $799,236 | $799,236 | $4.22 | | |
| MENTAL | MENTAL HEALTH | 0.0052121823 | $799,236 | $799,236 | $4.17 | | |
| ROADS | COUNTY ROADS | 0.7415066410 | $799,236 | $799,236 | $592.64 | | |
| ROADSCU | COUNTY ROADS TO CUR EXP | 0.0000000000 | $799,236 | $799,236 | $0.00 | | |
| HOSP2CASH | HOSP DIST #2 GENERAL | 0.0536075306 | $799,236 | $799,236 | $42.85 | | |
| SCH50BOND | SCHOOL DIST #50 BOND 2016 | 0.5377451389 | $799,236 | $799,236 | $429.79 | | |
| SCH50CP | SCHOOL DIST #50 CAP PROJ | 0.4573475088 | $799,236 | $799,236 | $365.53 | | |
| SCH50MO | SCHOOL DIST #50 EP & O | 0.8262822886 | $799,236 | $799,236 | $660.39 | | |
| CONSERVE | CONSERVATION FUTURES | 0.0275621078 | $799,236 | $799,236 | $22.03 | | |
| EMS1 | FIRE DIST #1 EMS | 0.4679948282 | $799,236 | $799,236 | $374.04 | | |
| FD1 | FIRE DIST #1 GENERAL | 1.2171942929 | $799,236 | $799,236 | $972.83 | | |
| LIB1 | LIBRARY DIST #1 GENERAL | 0.2868827388 | $799,236 | $799,236 | $229.29 | | |
| PORTPT | PORT OF PT GENERAL | 0.1134941229 | $799,236 | $799,236 | $90.71 | | |
| PORTPTIDD | PORT OF PT IDD 2019 | 0.2577346692 | $799,236 | $799,236 | $205.99 | | |
| PUD1 | PUD #1 GENERAL | 0.0597888892 | $799,236 | $799,236 | $47.79 | | |
| STATE | STATE SCHOOL PART 1 | 1.4940692947 | $799,236 | $799,236 | $1,194.11 | | |
| STATE2 | STATE SCHOOL PART 2 | 0.8050170049 | $799,236 | $799,236 | $643.40 | | |
| | Total Tax Rate: | 8.2653911500 | | | | | |
| | | | | Taxes w/Current Exemptions: | $6,606.03 | | |
| | | | | Taxes w/o Exemptions: | $6,606.03 | | |
Improvement / Building
| Improvement #1: | Residential Bldg | State Code: | 11 | 1706.0 sqft | Value: | $550,534 |
| Bathrooms (#): | 3 (FULL) | Bedrooms (#): | 3 | | Exterior Wall: | SI/ST | Fireplace: | WD ST-GOOD | | Floor Construction: | FRAME | Foundation: | CONPR | | Heating/Cooling: | ELBB | Inside Verify: | NO | | Roof Cover: | COMP |   |   |
|
| | Type | Description | Class CD | Sub Class CD | Year Built | Area |
| | MA | Main Area | 5 | 1S | 2015 | 1706.0 |
| | GATT | House Attached Garage | 5 | 1S | 2015 | 484.0 |
| | HWPOR | House Wood Porch | 5 | 1S | 2015 | 208.0 |
| | SHED | Shed (Table Not Dep) | 4 | 1S | 2015 | 0.0 |
Sketch
Property Image
Land
| 1 | 1671A | | 5.9500 | 259182.00 | 0.00 | 0.00 | 0.00 | $105,702 | $0 |
| 2 | 5360-1355S | | 1.0000 | 43560.00 | 0.00 | 0.00 | 1.00 | $143,000 | $0 |
Roll Value History
| 2026 | N/A | N/A | N/A | N/A | N/A |
| 2025 | $550,534 | $248,702 | $0 | $799,236 | $799,236 |
| 2024 | $550,534 | $248,702 | $0 | $799,236 | $799,236 |
| 2023 | $571,683 | $226,837 | $0 | $798,520 | $798,520 |
| 2022 | $519,712 | $200,920 | $0 | $720,632 | $720,632 |
Deed and Sales History
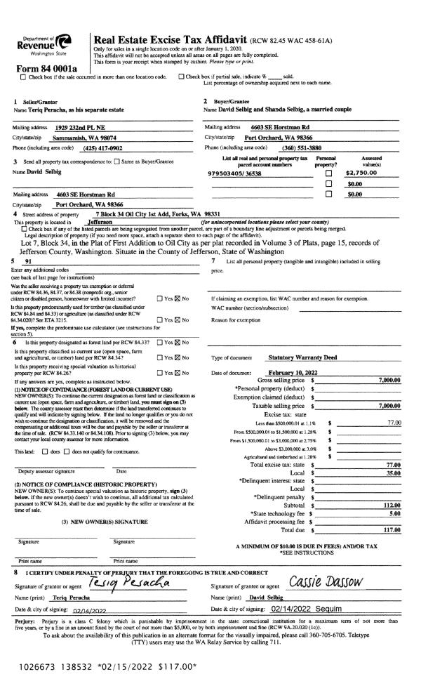
| 1 | 02/04/2022 | SWD | Statutory Warranty Deed | CRAIG & JULIA EAKES | PAUL G NEBEL | | | $755,000.00 | 138559 | |
| 2 | 10/21/2014 | SWD | Statutory Warranty Deed | KINDRA KEMP | CRAIG & JULIA EAKES | | | $135,000.00 | 122110 | |
| 3 | 06/22/2005 | SWD | Statutory Warranty Deed | THE HENLEY GROUP | KEMP, KINDRA | | | $82,000.00 | 103995 | 0 |
Payout Agreement
| No payout information available.. |