Property
Account |
| Property ID: | 26808 | Abbreviated Legal Description: | DISCOVERY BAY HEIGHTS DIV 1 LOT 9 W/S TO EASE |
| Parcel # / Geo ID: | 947300009 | Agent Code: | |
| Type: | Real | | |
| Tax Area: | 0111 - 1-50F1E1H2L1 | Land Use Code | 11 |
| Open Space: | N | DFL | N |
| Historic Property: | N | Remodel Property: | N |
| Multi-Family Redevelopment: | N | | |
| Township: | 30N | Section: | 32 |
| Range: | 1W |
Location |
| Address: | 99 VANCOUVER LN PORT TOWNSEND, WA 98368 | Mapsco: | 023/009 |
| Neighborhood: | S32 T30 R1W, ADELMA BCH, DISCO HEIGHTS | Map ID: | |
| Neighborhood CD: | 5375 |
Owner |
| Name: | LAURIE A & RICHARD A NEAL JR | Owner ID: | 111037 |
| Mailing Address: | 5827 W AUTUMN VISTA WAY FLORENCE, AZ 85132-1292 | % Ownership: | 100.0000000000% |
| | | Exemptions: | |
Pay Tax Due
Select the appropriate checkbox next to the year to be paid. Multiple years may be selected.
*Convenience Fee not included
Taxes and Assessment Details
Property Tax Information as of
03/10/2026
Click on "Statement Details" to expand or collapse a tax statement.
* Please enter a valid date ** Please enter a valid date *
Statement Details |
| 2026 | 16178 | STATE - STATE LEVY (SCHOOL) | $848.50 | $848.50 | $0.00 | $0.00 | $0.00 | $1697.00 |
| 2026 | 16178 | COUNTY - COUNTY LEVIES (CE, DD, VET, MH) | $339.24 | $339.22 | $0.00 | $0.00 | $0.00 | $678.46 |
| 2026 | 16178 | CONSERVE - CONSERVATION FUTURES | $10.17 | $10.17 | $0.00 | $0.00 | $0.00 | $20.34 |
| 2026 | 16178 | COROADS - COUNTY ROADS (ROADS, DIV TO CE) | $273.66 | $273.66 | $0.00 | $0.00 | $0.00 | $547.32 |
| 2026 | 16178 | PORTPT - PORT DISTRICT | $137.01 | $137.00 | $0.00 | $0.00 | $0.00 | $274.01 |
| 2026 | 16178 | PUD1 - PUD #1 | $22.07 | $22.06 | $0.00 | $0.00 | $0.00 | $44.13 |
| 2026 | 16178 | LIB1 - LIBRARY DIST #1 | $105.88 | $105.87 | $0.00 | $0.00 | $0.00 | $211.75 |
| 2026 | 16178 | HD2 - HOSP DIST #2 | $19.79 | $19.78 | $0.00 | $0.00 | $0.00 | $39.57 |
| 2026 | 16178 | SD50 - SCHOOL DIST #50 | $672.20 | $672.19 | $0.00 | $0.00 | $0.00 | $1344.39 |
| 2026 | 16178 | FD1 - FIRE DISTRICT #1 | $449.22 | $449.21 | $0.00 | $0.00 | $0.00 | $898.43 |
| 2026 | 16178 | EMS1 - FIRE DIST #1 EMS | $172.72 | $172.71 | $0.00 | $0.00 | $0.00 | $345.43 |
| 2026 | 16178 | JCCD - JC Conservation District | $2.55 | $2.55 | $0.00 | $0.00 | $0.00 | $5.10 |
| 2026 | 16178 | NWA - Noxious Weed Assessment | $2.98 | $2.97 | $0.00 | $0.00 | $0.00 | $5.95 |
| 2026 | 16178 | OSS - On Site Septic | $23.10 | $23.10 | $0.00 | $0.00 | $0.00 | $46.20 |
| 2026 | 16178 | WAT - Clean Water District | $13.00 | $13.00 | $0.00 | $0.00 | $0.00 | $26.00 |
| 2026 | 16178 | TOTAL: | $3092.09 | $3091.99 | $0.00 | $0.00 | $0.00 | $6184.08 |
|
| 2026 | 16178 | $3092.09 | $3091.99 | $0.00 | $0.00 | $0.00 | $6184.08 |
Statement Details |
| 2025 | 16232 | STATE - STATE LEVY (SCHOOL) | $885.01 | $885.01 | $0.00 | $0.00 | $1770.02 | $0.00 |
| 2025 | 16232 | COUNTY - COUNTY LEVIES (CE, DD, VET, MH) | $348.04 | $348.02 | $0.00 | $0.00 | $696.06 | $0.00 |
| 2025 | 16232 | CONSERVE - CONSERVATION FUTURES | $10.44 | $10.43 | $0.00 | $0.00 | $20.87 | $0.00 |
| 2025 | 16232 | COROADS - COUNTY ROADS (ROADS, DIV TO CE) | $278.83 | $278.81 | $0.00 | $0.00 | $557.64 | $0.00 |
| 2025 | 16232 | PORTPT - PORT DISTRICT | $142.02 | $142.01 | $0.00 | $0.00 | $284.03 | $0.00 |
| 2025 | 16232 | PUD1 - PUD #1 | $22.78 | $22.77 | $0.00 | $0.00 | $45.55 | $0.00 |
| 2025 | 16232 | LIB1 - LIBRARY DIST #1 | $107.88 | $107.87 | $0.00 | $0.00 | $215.75 | $0.00 |
| 2025 | 16232 | HD2 - HOSP DIST #2 | $20.31 | $20.30 | $0.00 | $0.00 | $40.61 | $0.00 |
| 2025 | 16232 | SD50 - SCHOOL DIST #50 | $646.80 | $646.79 | $0.00 | $0.00 | $1293.59 | $0.00 |
| 2025 | 16232 | FD1 - FIRE DISTRICT #1 | $459.26 | $459.26 | $0.00 | $0.00 | $918.52 | $0.00 |
| 2025 | 16232 | EMS1 - FIRE DIST #1 EMS | $176.65 | $176.64 | $0.00 | $0.00 | $353.29 | $0.00 |
| 2025 | 16232 | JCCD - JC Conservation District | $2.55 | $2.55 | $0.00 | $0.00 | $5.10 | $0.00 |
| 2025 | 16232 | NWA - Noxious Weed Assessment | $2.15 | $2.15 | $0.00 | $0.00 | $4.30 | $0.00 |
| 2025 | 16232 | OSS - On Site Septic | $21.50 | $21.50 | $0.00 | $0.00 | $43.00 | $0.00 |
| 2025 | 16232 | WAT - Clean Water District | $13.00 | $13.00 | $0.00 | $0.00 | $26.00 | $0.00 |
| 2025 | 16232 | TOTAL: | $3137.22 | $3137.11 | $0.00 | $0.00 | $6274.33 | $0.00 |
|
| 2025 | 16232 | $3137.22 | $3137.11 | $0.00 | $0.00 | $6274.33 | $0.00 |
Statement Details |
| 2024 | 16264 | STATE - STATE LEVY (SCHOOL) | $942.19 | $942.18 | $0.00 | $0.00 | $1884.37 | $0.00 |
| 2024 | 16264 | COUNTY - COUNTY LEVIES (CE, DD, VET, MH) | $403.19 | $403.15 | $0.00 | $0.00 | $806.34 | $0.00 |
| 2024 | 16264 | CONSERVE - CONSERVATION FUTURES | $12.09 | $12.09 | $0.00 | $0.00 | $24.18 | $0.00 |
| 2024 | 16264 | COROADS - COUNTY ROADS (ROADS, DIV TO CE) | $324.42 | $324.42 | $0.00 | $0.00 | $648.84 | $0.00 |
| 2024 | 16264 | PORTPT - PORT DISTRICT | $166.53 | $166.52 | $0.00 | $0.00 | $333.05 | $0.00 |
| 2024 | 16264 | PUD1 - PUD #1 | $26.48 | $26.48 | $0.00 | $0.00 | $52.96 | $0.00 |
| 2024 | 16264 | LIB1 - LIBRARY DIST #1 | $125.52 | $125.51 | $0.00 | $0.00 | $251.03 | $0.00 |
| 2024 | 16264 | HD2 - HOSP DIST #2 | $23.53 | $23.52 | $0.00 | $0.00 | $47.05 | $0.00 |
| 2024 | 16264 | SD50 - SCHOOL DIST #50 | $762.28 | $762.26 | $0.00 | $0.00 | $1524.54 | $0.00 |
| 2024 | 16264 | FD1 - FIRE DISTRICT #1 | $533.09 | $533.09 | $0.00 | $0.00 | $1066.18 | $0.00 |
| 2024 | 16264 | EMS1 - FIRE DIST #1 EMS | $203.62 | $203.62 | $0.00 | $0.00 | $407.24 | $0.00 |
| 2024 | 16264 | JCCD - JC Conservation District | $2.55 | $2.55 | $0.00 | $0.00 | $5.10 | $0.00 |
| 2024 | 16264 | NWA - Noxious Weed Assessment | $2.15 | $2.15 | $0.00 | $0.00 | $4.30 | $0.00 |
| 2024 | 16264 | OSS - On Site Septic | $21.00 | $21.00 | $0.00 | $0.00 | $42.00 | $0.00 |
| 2024 | 16264 | WAT - Clean Water District | $12.50 | $12.50 | $0.00 | $0.00 | $25.00 | $0.00 |
| 2024 | 16264 | TOTAL: | $3561.14 | $3561.04 | $0.00 | $0.00 | $7122.18 | $0.00 |
|
| 2024 | 16264 | $3561.14 | $3561.04 | $0.00 | $0.00 | $7122.18 | $0.00 |
Statement Details |
| 2023 | 16288 | STATE - STATE LEVY (SCHOOL) | $874.50 | $874.48 | $0.00 | $0.00 | $1748.98 | $0.00 |
| 2023 | 16288 | COUNTY - COUNTY LEVIES (CE, DD, VET, MH) | $381.62 | $381.58 | $0.00 | $0.00 | $763.20 | $0.00 |
| 2023 | 16288 | CONSERVE - CONSERVATION FUTURES | $11.45 | $11.44 | $0.00 | $0.00 | $22.89 | $0.00 |
| 2023 | 16288 | COROADS - COUNTY ROADS (ROADS, DIV TO CE) | $308.75 | $308.74 | $0.00 | $0.00 | $617.49 | $0.00 |
| 2023 | 16288 | PORTPT - PORT DISTRICT | $160.76 | $160.75 | $0.00 | $0.00 | $321.51 | $0.00 |
| 2023 | 16288 | PUD1 - PUD #1 | $25.30 | $25.29 | $0.00 | $0.00 | $50.59 | $0.00 |
| 2023 | 16288 | LIB1 - LIBRARY DIST #1 | $119.45 | $119.45 | $0.00 | $0.00 | $238.90 | $0.00 |
| 2023 | 16288 | HD2 - HOSP DIST #2 | $22.27 | $22.26 | $0.00 | $0.00 | $44.53 | $0.00 |
| 2023 | 16288 | SD50 - SCHOOL DIST #50 | $693.94 | $693.92 | $0.00 | $0.00 | $1387.86 | $0.00 |
| 2023 | 16288 | FD1 - FIRE DISTRICT #1 | $314.37 | $314.36 | $0.00 | $0.00 | $628.73 | $0.00 |
| 2023 | 16288 | EMS1 - FIRE DIST #1 EMS | $133.73 | $133.72 | $0.00 | $0.00 | $267.45 | $0.00 |
| 2023 | 16288 | JCCD - JC Conservation District | $2.55 | $2.55 | $0.00 | $0.00 | $5.10 | $0.00 |
| 2023 | 16288 | NWA - Noxious Weed Assessment | $2.15 | $2.15 | $0.00 | $0.00 | $4.30 | $0.00 |
| 2023 | 16288 | OSS - On Site Septic | $20.50 | $20.50 | $0.00 | $0.00 | $41.00 | $0.00 |
| 2023 | 16288 | WAT - Clean Water District | $12.00 | $12.00 | $0.00 | $0.00 | $24.00 | $0.00 |
| 2023 | 16288 | TOTAL: | $3083.34 | $3083.19 | $0.00 | $0.00 | $6166.53 | $0.00 |
|
| 2023 | 16288 | $3083.34 | $3083.19 | $0.00 | $0.00 | $6166.53 | $0.00 |
Values
| (+) Improvement Homesite Value: | + | $0 | |
| (+) Improvement Non-Homesite Value: | + | $551,117 | |
| (+) Land Homesite Value: | + | $0 | |
| (+) Land Non-Homesite Value: | + | $187,000 | |
| (+) Curr Use (HS): | + | $0 | $0 |
| (+) Curr Use (NHS): | + | $0 | $0 |
| | | -------------------------- | |
| (=) Market Value: | = | $738,117 | |
| (–) Productivity Loss: | – | $0 | |
| | | -------------------------- | |
| (=) Subtotal: | = | $738,117 | |
| (+) Senior Appraised Value: | + | $0 | |
| (+) Non-Senior Appraised Value: | + | $738,117 | |
| | | -------------------------- | |
| (=) Total Appraised Value: | = | $738,117 | |
| (–) Senior Exemption Loss: | – | $0 | |
| (–) Exemption Loss: | – | $0 | |
| | | -------------------------- | |
| (=) Taxable Value: | = | $738,117 | |
Taxing Jurisdiction
| Owner: | LAURIE A & RICHARD A NEAL JR | | |
| % Ownership: | 100.0000000000% | | |
| Total Value: | $738,117 | | |
| Tax Area: | 0111 - 1-50F1E1H2L1 |
| CE | COUNTY CURRENT EXPENSE | 0.9034619479 | $738,117 | $738,117 | $666.86 | | |
| CNTYDD | DEVELOPMENTAL DISABILITIES | 0.0052121823 | $738,117 | $738,117 | $3.85 | | |
| CNTYVET | VETERANS RELIEF | 0.0052777810 | $738,117 | $738,117 | $3.90 | | |
| MENTAL | MENTAL HEALTH | 0.0052121823 | $738,117 | $738,117 | $3.85 | | |
| ROADS | COUNTY ROADS | 0.7415066410 | $738,117 | $738,117 | $547.32 | | |
| ROADSCU | COUNTY ROADS TO CUR EXP | 0.0000000000 | $738,117 | $738,117 | $0.00 | | |
| HOSP2CASH | HOSP DIST #2 GENERAL | 0.0536075306 | $738,117 | $738,117 | $39.57 | | |
| SCH50BOND | SCHOOL DIST #50 BOND 2016 | 0.5377451389 | $738,117 | $738,117 | $396.92 | | |
| SCH50CP | SCHOOL DIST #50 CAP PROJ | 0.4573475088 | $738,117 | $738,117 | $337.58 | | |
| SCH50MO | SCHOOL DIST #50 EP & O | 0.8262822886 | $738,117 | $738,117 | $609.89 | | |
| CONSERVE | CONSERVATION FUTURES | 0.0275621078 | $738,117 | $738,117 | $20.34 | | |
| EMS1 | FIRE DIST #1 EMS | 0.4679948282 | $738,117 | $738,117 | $345.43 | | |
| FD1 | FIRE DIST #1 GENERAL | 1.2171942929 | $738,117 | $738,117 | $898.43 | | |
| LIB1 | LIBRARY DIST #1 GENERAL | 0.2868827388 | $738,117 | $738,117 | $211.75 | | |
| PORTPT | PORT OF PT GENERAL | 0.1134941229 | $738,117 | $738,117 | $83.77 | | |
| PORTPTIDD | PORT OF PT IDD 2019 | 0.2577346692 | $738,117 | $738,117 | $190.24 | | |
| PUD1 | PUD #1 GENERAL | 0.0597888892 | $738,117 | $738,117 | $44.13 | | |
| STATE | STATE SCHOOL PART 1 | 1.4940692947 | $738,117 | $738,117 | $1,102.80 | | |
| STATE2 | STATE SCHOOL PART 2 | 0.8050170049 | $738,117 | $738,117 | $594.20 | | |
| | Total Tax Rate: | 8.2653911500 | | | | | |
| | | | | Taxes w/Current Exemptions: | $6,100.83 | | |
| | | | | Taxes w/o Exemptions: | $6,100.83 | | |
Improvement / Building
| Improvement #1: | Residential Bldg | State Code: | 11 | 2338.0 sqft | Value: | $551,117 |
| Bathrooms (#): | 3 (FULL) | Bedrooms (#): | 3 | | Exterior Wall: | SI/ST | Fireplace: | PROPS-GOOD | | Floor Construction: | FRAME | Foundation: | CONPR | | Heating/Cooling: | HTWTR | Roof Cover: | COMP |
|
| | Type | Description | Class CD | Sub Class CD | Year Built | Area |
| | MA | Main Area | 4+ | 1S | 2004 | 2338.0 |
| | PATIO | House Patio | 4 | * | 2004 | 600.0 |
| | HCPOR | House Concrete Porch | 4 | * | 2004 | 132.0 |
| | GATT | House Attached Garage | 4 | 1S | 2004 | 528.0 |
| | SHED | Shed (Table Not Dep) | 4 | * | 2004 | 120.0 |
| | CONCD | Concrete Drive | 4 | * | 2004 | 2000.0 |
Sketch
| No sketches available for this property. |
Property Image
Land
| 1 | 5375-1155L | | 0.0000 | 0.00 | 0.00 | 0.00 | 1.00 | $187,000 | $0 |
Roll Value History
| 2026 | N/A | N/A | N/A | N/A | N/A |
| 2025 | $551,117 | $187,000 | $0 | $738,117 | $738,117 |
| 2024 | $551,117 | $187,000 | $0 | $738,117 | $738,117 |
| 2023 | $641,229 | $173,250 | $0 | $814,479 | $814,479 |
| 2022 | $582,935 | $160,000 | $0 | $742,935 | $742,935 |
Deed and Sales History
| 1 | 06/21/2024 | SWD | Statutory Warranty Deed | KEVIN S PETERS & SALLY A GADOW | LAURIE A & RICHARD A NEAL JR | | | $755,000.00 | 142790 | |
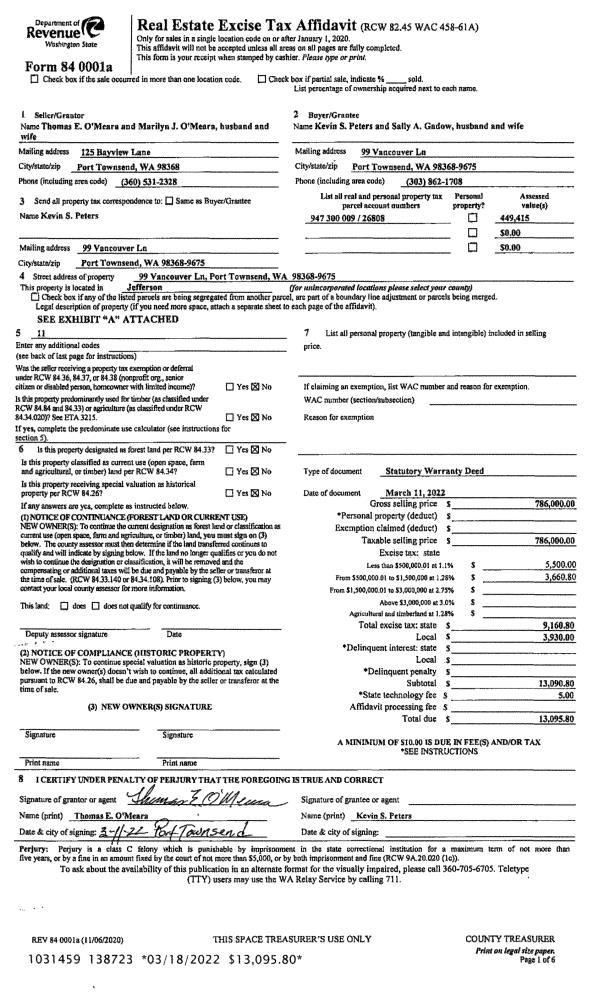
| 2 | 03/11/2022 | SWD | Statutory Warranty Deed | THOMAS E & MARILYN O'MEARA | KEVIN S PETERS & SALLY A GADOW | | | $786,000.00 | 138723 | |
| 3 | 10/30/2003 | SWD | Statutory Warranty Deed | DYNAMIC PROTECTION SERVIC | O'MEARA, THOMAS E/MARILYN J | 0 | 0 | $35,000.00 | 98762 | 0 |
Payout Agreement
| No payout information available.. |