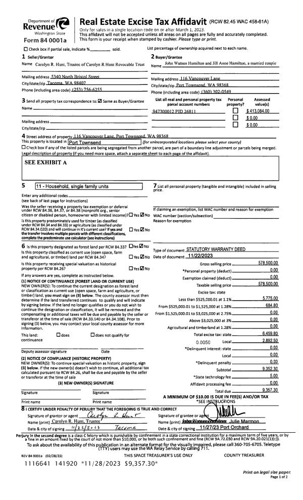
Property
Account |
| Property ID: | 26811 | Abbreviated Legal Description: | DISCOVERY BAY HEIGHTS DIV 1 LOT 12 W/S TO EASE |
| Parcel # / Geo ID: | 947300012 | Agent Code: | |
| Type: | Real | | |
| Tax Area: | 0111 - 1-50F1E1H2L1 | Land Use Code | 11 |
| Open Space: | N | DFL | N |
| Historic Property: | N | Remodel Property: | N |
| Multi-Family Redevelopment: | N | | |
| Township: | 30N | Section: | 32 |
| Range: | 1W |
Location |
| Address: | 116 VANCOUVER LN PORT TOWNSEND, WA 98368 | Mapsco: | 023/012 |
| Neighborhood: | S32 T30 R1W, ADELMA BCH, DISCO HEIGHTS | Map ID: | |
| Neighborhood CD: | 5375 |
Owner |
| Name: | JOHN W & JILL A HAMILTON | Owner ID: | 110051 |
| Mailing Address: | 116 VANCOUVER LN PORT TOWNSEND, WA 98368-9122 | % Ownership: | 100.0000000000% |
| | | Exemptions: | |
Pay Tax Due
Select the appropriate checkbox next to the year to be paid. Multiple years may be selected.
*Convenience Fee not included
Taxes and Assessment Details
Property Tax Information as of
03/12/2026
Click on "Statement Details" to expand or collapse a tax statement.
* Please enter a valid date ** Please enter a valid date *
Statement Details |
| 2026 | 16181 | STATE - STATE LEVY (SCHOOL) | $551.51 | $551.49 | $0.00 | $0.00 | $0.00 | $1103.00 |
| 2026 | 16181 | COUNTY - COUNTY LEVIES (CE, DD, VET, MH) | $220.49 | $220.48 | $0.00 | $0.00 | $0.00 | $440.97 |
| 2026 | 16181 | CONSERVE - CONSERVATION FUTURES | $6.61 | $6.61 | $0.00 | $0.00 | $0.00 | $13.22 |
| 2026 | 16181 | COROADS - COUNTY ROADS (ROADS, DIV TO CE) | $177.87 | $177.87 | $0.00 | $0.00 | $0.00 | $355.74 |
| 2026 | 16181 | PORTPT - PORT DISTRICT | $89.06 | $89.04 | $0.00 | $0.00 | $0.00 | $178.10 |
| 2026 | 16181 | PUD1 - PUD #1 | $14.34 | $14.34 | $0.00 | $0.00 | $0.00 | $28.68 |
| 2026 | 16181 | LIB1 - LIBRARY DIST #1 | $68.82 | $68.81 | $0.00 | $0.00 | $0.00 | $137.63 |
| 2026 | 16181 | HD2 - HOSP DIST #2 | $12.86 | $12.86 | $0.00 | $0.00 | $0.00 | $25.72 |
| 2026 | 16181 | SD50 - SCHOOL DIST #50 | $436.92 | $436.90 | $0.00 | $0.00 | $0.00 | $873.82 |
| 2026 | 16181 | FD1 - FIRE DISTRICT #1 | $291.98 | $291.98 | $0.00 | $0.00 | $0.00 | $583.96 |
| 2026 | 16181 | EMS1 - FIRE DIST #1 EMS | $112.26 | $112.26 | $0.00 | $0.00 | $0.00 | $224.52 |
| 2026 | 16181 | JCCD - JC Conservation District | $2.55 | $2.55 | $0.00 | $0.00 | $0.00 | $5.10 |
| 2026 | 16181 | NWA - Noxious Weed Assessment | $2.98 | $2.97 | $0.00 | $0.00 | $0.00 | $5.95 |
| 2026 | 16181 | OSS - On Site Septic | $23.10 | $23.10 | $0.00 | $0.00 | $0.00 | $46.20 |
| 2026 | 16181 | WAT - Clean Water District | $13.00 | $13.00 | $0.00 | $0.00 | $0.00 | $26.00 |
| 2026 | 16181 | TOTAL: | $2024.35 | $2024.26 | $0.00 | $0.00 | $0.00 | $4048.61 |
|
| 2026 | 16181 | $2024.35 | $2024.26 | $0.00 | $0.00 | $0.00 | $4048.61 |
Statement Details |
| 2025 | 16235 | STATE - STATE LEVY (SCHOOL) | $575.24 | $575.23 | $0.00 | $0.00 | $1150.47 | $0.00 |
| 2025 | 16235 | COUNTY - COUNTY LEVIES (CE, DD, VET, MH) | $226.21 | $226.20 | $0.00 | $0.00 | $452.41 | $0.00 |
| 2025 | 16235 | CONSERVE - CONSERVATION FUTURES | $6.79 | $6.78 | $0.00 | $0.00 | $13.57 | $0.00 |
| 2025 | 16235 | COROADS - COUNTY ROADS (ROADS, DIV TO CE) | $181.23 | $181.22 | $0.00 | $0.00 | $362.45 | $0.00 |
| 2025 | 16235 | PORTPT - PORT DISTRICT | $92.31 | $92.30 | $0.00 | $0.00 | $184.61 | $0.00 |
| 2025 | 16235 | PUD1 - PUD #1 | $14.80 | $14.80 | $0.00 | $0.00 | $29.60 | $0.00 |
| 2025 | 16235 | LIB1 - LIBRARY DIST #1 | $70.12 | $70.11 | $0.00 | $0.00 | $140.23 | $0.00 |
| 2025 | 16235 | HD2 - HOSP DIST #2 | $13.20 | $13.19 | $0.00 | $0.00 | $26.39 | $0.00 |
| 2025 | 16235 | SD50 - SCHOOL DIST #50 | $420.40 | $420.40 | $0.00 | $0.00 | $840.80 | $0.00 |
| 2025 | 16235 | FD1 - FIRE DISTRICT #1 | $298.51 | $298.50 | $0.00 | $0.00 | $597.01 | $0.00 |
| 2025 | 16235 | EMS1 - FIRE DIST #1 EMS | $114.82 | $114.81 | $0.00 | $0.00 | $229.63 | $0.00 |
| 2025 | 16235 | JCCD - JC Conservation District | $2.55 | $2.55 | $0.00 | $0.00 | $5.10 | $0.00 |
| 2025 | 16235 | NWA - Noxious Weed Assessment | $2.15 | $2.15 | $0.00 | $0.00 | $4.30 | $0.00 |
| 2025 | 16235 | OSS - On Site Septic | $21.50 | $21.50 | $0.00 | $0.00 | $43.00 | $0.00 |
| 2025 | 16235 | WAT - Clean Water District | $13.00 | $13.00 | $0.00 | $0.00 | $26.00 | $0.00 |
| 2025 | 16235 | TOTAL: | $2052.83 | $2052.74 | $0.00 | $0.00 | $4105.57 | $0.00 |
|
| 2025 | 16235 | $2052.83 | $2052.74 | $0.00 | $0.00 | $4105.57 | $0.00 |
Statement Details |
| 2024 | 16267 | STATE - STATE LEVY (SCHOOL) | $524.78 | $524.77 | $0.00 | $0.00 | $1049.55 | $0.00 |
| 2024 | 16267 | COUNTY - COUNTY LEVIES (CE, DD, VET, MH) | $224.57 | $224.55 | $0.00 | $0.00 | $449.12 | $0.00 |
| 2024 | 16267 | CONSERVE - CONSERVATION FUTURES | $6.74 | $6.73 | $0.00 | $0.00 | $13.47 | $0.00 |
| 2024 | 16267 | COROADS - COUNTY ROADS (ROADS, DIV TO CE) | $180.70 | $180.69 | $0.00 | $0.00 | $361.39 | $0.00 |
| 2024 | 16267 | PORTPT - PORT DISTRICT | $92.76 | $92.74 | $0.00 | $0.00 | $185.50 | $0.00 |
| 2024 | 16267 | PUD1 - PUD #1 | $14.75 | $14.75 | $0.00 | $0.00 | $29.50 | $0.00 |
| 2024 | 16267 | LIB1 - LIBRARY DIST #1 | $69.91 | $69.91 | $0.00 | $0.00 | $139.82 | $0.00 |
| 2024 | 16267 | HD2 - HOSP DIST #2 | $13.10 | $13.10 | $0.00 | $0.00 | $26.20 | $0.00 |
| 2024 | 16267 | SD50 - SCHOOL DIST #50 | $424.57 | $424.57 | $0.00 | $0.00 | $849.14 | $0.00 |
| 2024 | 16267 | FD1 - FIRE DISTRICT #1 | $296.92 | $296.91 | $0.00 | $0.00 | $593.83 | $0.00 |
| 2024 | 16267 | EMS1 - FIRE DIST #1 EMS | $113.41 | $113.41 | $0.00 | $0.00 | $226.82 | $0.00 |
| 2024 | 16267 | JCCD - JC Conservation District | $2.55 | $2.55 | $0.00 | $0.00 | $5.10 | $0.00 |
| 2024 | 16267 | NWA - Noxious Weed Assessment | $2.15 | $2.15 | $0.00 | $0.00 | $4.30 | $0.00 |
| 2024 | 16267 | OSS - On Site Septic | $21.00 | $21.00 | $0.00 | $0.00 | $42.00 | $0.00 |
| 2024 | 16267 | WAT - Clean Water District | $12.50 | $12.50 | $0.00 | $0.00 | $25.00 | $0.00 |
| 2024 | 16267 | TOTAL: | $2000.41 | $2000.33 | $0.00 | $0.00 | $4000.74 | $0.00 |
|
| 2024 | 16267 | $2000.41 | $2000.33 | $0.00 | $0.00 | $4000.74 | $0.00 |
Statement Details |
| 2023 | 16291 | STATE - STATE LEVY (SCHOOL) | $486.24 | $486.23 | $0.00 | $0.00 | $972.47 | $0.00 |
| 2023 | 16291 | COUNTY - COUNTY LEVIES (CE, DD, VET, MH) | $212.19 | $212.17 | $0.00 | $0.00 | $424.36 | $0.00 |
| 2023 | 16291 | CONSERVE - CONSERVATION FUTURES | $6.36 | $6.36 | $0.00 | $0.00 | $12.72 | $0.00 |
| 2023 | 16291 | COROADS - COUNTY ROADS (ROADS, DIV TO CE) | $171.68 | $171.66 | $0.00 | $0.00 | $343.34 | $0.00 |
| 2023 | 16291 | PORTPT - PORT DISTRICT | $89.38 | $89.38 | $0.00 | $0.00 | $178.76 | $0.00 |
| 2023 | 16291 | PUD1 - PUD #1 | $14.07 | $14.06 | $0.00 | $0.00 | $28.13 | $0.00 |
| 2023 | 16291 | LIB1 - LIBRARY DIST #1 | $66.42 | $66.41 | $0.00 | $0.00 | $132.83 | $0.00 |
| 2023 | 16291 | HD2 - HOSP DIST #2 | $12.38 | $12.38 | $0.00 | $0.00 | $24.76 | $0.00 |
| 2023 | 16291 | SD50 - SCHOOL DIST #50 | $385.85 | $385.82 | $0.00 | $0.00 | $771.67 | $0.00 |
| 2023 | 16291 | FD1 - FIRE DISTRICT #1 | $174.79 | $174.79 | $0.00 | $0.00 | $349.58 | $0.00 |
| 2023 | 16291 | EMS1 - FIRE DIST #1 EMS | $74.36 | $74.35 | $0.00 | $0.00 | $148.71 | $0.00 |
| 2023 | 16291 | JCCD - JC Conservation District | $2.55 | $2.55 | $0.00 | $0.00 | $5.10 | $0.00 |
| 2023 | 16291 | NWA - Noxious Weed Assessment | $2.15 | $2.15 | $0.00 | $0.00 | $4.30 | $0.00 |
| 2023 | 16291 | OSS - On Site Septic | $20.50 | $20.50 | $0.00 | $0.00 | $41.00 | $0.00 |
| 2023 | 16291 | WAT - Clean Water District | $12.00 | $12.00 | $0.00 | $0.00 | $24.00 | $0.00 |
| 2023 | 16291 | TOTAL: | $1730.92 | $1730.81 | $0.00 | $0.00 | $3461.73 | $0.00 |
|
| 2023 | 16291 | $1730.92 | $1730.81 | $0.00 | $0.00 | $3461.73 | $0.00 |
Values
| (+) Improvement Homesite Value: | + | $0 | |
| (+) Improvement Non-Homesite Value: | + | $336,757 | |
| (+) Land Homesite Value: | + | $0 | |
| (+) Land Non-Homesite Value: | + | $143,000 | |
| (+) Curr Use (HS): | + | $0 | $0 |
| (+) Curr Use (NHS): | + | $0 | $0 |
| | | -------------------------- | |
| (=) Market Value: | = | $479,757 | |
| (–) Productivity Loss: | – | $0 | |
| | | -------------------------- | |
| (=) Subtotal: | = | $479,757 | |
| (+) Senior Appraised Value: | + | $0 | |
| (+) Non-Senior Appraised Value: | + | $479,757 | |
| | | -------------------------- | |
| (=) Total Appraised Value: | = | $479,757 | |
| (–) Senior Exemption Loss: | – | $0 | |
| (–) Exemption Loss: | – | $0 | |
| | | -------------------------- | |
| (=) Taxable Value: | = | $479,757 | |
Taxing Jurisdiction
| Owner: | JOHN W & JILL A HAMILTON | | |
| % Ownership: | 100.0000000000% | | |
| Total Value: | $479,757 | | |
| Tax Area: | 0111 - 1-50F1E1H2L1 |
| CE | COUNTY CURRENT EXPENSE | 0.9034619479 | $479,757 | $479,757 | $433.44 | | |
| CNTYDD | DEVELOPMENTAL DISABILITIES | 0.0052121823 | $479,757 | $479,757 | $2.50 | | |
| CNTYVET | VETERANS RELIEF | 0.0052777810 | $479,757 | $479,757 | $2.53 | | |
| MENTAL | MENTAL HEALTH | 0.0052121823 | $479,757 | $479,757 | $2.50 | | |
| ROADS | COUNTY ROADS | 0.7415066410 | $479,757 | $479,757 | $355.74 | | |
| ROADSCU | COUNTY ROADS TO CUR EXP | 0.0000000000 | $479,757 | $479,757 | $0.00 | | |
| HOSP2CASH | HOSP DIST #2 GENERAL | 0.0536075306 | $479,757 | $479,757 | $25.72 | | |
| SCH50BOND | SCHOOL DIST #50 BOND 2016 | 0.5377451389 | $479,757 | $479,757 | $257.99 | | |
| SCH50CP | SCHOOL DIST #50 CAP PROJ | 0.4573475088 | $479,757 | $479,757 | $219.42 | | |
| SCH50MO | SCHOOL DIST #50 EP & O | 0.8262822886 | $479,757 | $479,757 | $396.41 | | |
| CONSERVE | CONSERVATION FUTURES | 0.0275621078 | $479,757 | $479,757 | $13.22 | | |
| EMS1 | FIRE DIST #1 EMS | 0.4679948282 | $479,757 | $479,757 | $224.52 | | |
| FD1 | FIRE DIST #1 GENERAL | 1.2171942929 | $479,757 | $479,757 | $583.96 | | |
| LIB1 | LIBRARY DIST #1 GENERAL | 0.2868827388 | $479,757 | $479,757 | $137.63 | | |
| PORTPT | PORT OF PT GENERAL | 0.1134941229 | $479,757 | $479,757 | $54.45 | | |
| PORTPTIDD | PORT OF PT IDD 2019 | 0.2577346692 | $479,757 | $479,757 | $123.65 | | |
| PUD1 | PUD #1 GENERAL | 0.0597888892 | $479,757 | $479,757 | $28.68 | | |
| STATE | STATE SCHOOL PART 1 | 1.4940692947 | $479,757 | $479,757 | $716.79 | | |
| STATE2 | STATE SCHOOL PART 2 | 0.8050170049 | $479,757 | $479,757 | $386.21 | | |
| | Total Tax Rate: | 8.2653911500 | | | | | |
| | | | | Taxes w/Current Exemptions: | $3,965.36 | | |
| | | | | Taxes w/o Exemptions: | $3,965.36 | | |
Improvement / Building
| Improvement #1: | Residential Bldg | State Code: | 11 | 1716.0 sqft | Value: | $336,757 |
| Bathrooms (#): | 2 (FULL) | Bedrooms (#): | 2 | | Exterior Wall: | PL/T1 | Fireplace: | WD ST-GOOD | | Floor Construction: | FRAME | Foundation: | CONPR | | Heating/Cooling: | HPUMP | Roof Cover: | COMP |
|
| | Type | Description | Class CD | Sub Class CD | Year Built | Area |
| | MA | Main Area | 4 | 1S | 1991 | 1716.0 |
| | HWPOR | House Wood Porch | 3 | * | 1991 | 40.0 |
| | HDECK | House Deck | 3 | * | 1991 | 188.0 |
| | GATT | House Attached Garage | 3 | 1S | 1991 | 728.0 |
| | ASPHD | Asphalt Drive | 3 | * | 1991 | 400.0 |
| | CONCD | Concrete Drive | 3 | * | 1991 | 300.0 |
Sketch
| No sketches available for this property. |
Property Image
Land
| 1 | 5375-1175L | | 0.0000 | 0.00 | 0.00 | 0.00 | 1.00 | $143,000 | $0 |
Roll Value History
| 2026 | N/A | N/A | N/A | N/A | N/A |
| 2025 | $336,757 | $143,000 | $0 | $479,757 | $479,757 |
| 2024 | $336,757 | $143,000 | $0 | $479,757 | $479,757 |
| 2023 | $322,392 | $131,250 | $0 | $453,642 | $453,642 |
| 2022 | $293,084 | $120,000 | $0 | $413,084 | $413,084 |
Deed and Sales History
| 1 | 11/22/2023 | SWD | Statutory Warranty Deed | CAROLYN R HUNT TRUSTEE | JOHN W & JILL A HAMILTON | | | $578,500.00 | 141920 | |
| 2 | 04/27/2011 | QCD | Quit Claim Deed | HUNT, CAROLYN R | HUNT, CAROLYN R TRUSTEE | | | $0.00 | 115920 | 0 |
| 3 | 11/11/2002 | SWD | Statutory Warranty Deed | HUBBARD, THOMAS & GRETA | HUNT, CAROLYN R | 0 | 0 | $182,000.00 | 95983 | 0 |
| 4 | 06/21/1995 | SWD | Statutory Warranty Deed | BROWN, KETURAH A | HUBBARD, THOMAS/GRETA | 0 | 0 | $147,000.00 | 77211 | 0 |
Payout Agreement
| No payout information available.. |