Property
Account |
| Property ID: | 26886 | Abbreviated Legal Description: | DISCOVERY BAY VILLAGE LOT 62 |
| Parcel # / Geo ID: | 947400062 | Agent Code: | |
| Type: | Real | | |
| Tax Area: | 0151 - 1-50F5E5H2L1 | Land Use Code | 91 |
| Open Space: | N | DFL | N |
| Historic Property: | N | Remodel Property: | N |
| Multi-Family Redevelopment: | N | | |
| Township: | 29N | Section: | 13 |
| Range: | 2W |
Location |
| Address: | 46 CARLI CT PORT TOWNSEND, WA 98368 | Mapsco: | 024/053 |
| Neighborhood: | DISCOVERY BAY VILLAGE; S13 T29 R2W | Map ID: | |
| Neighborhood CD: | 5440 |
Owner |
| Name: | CALEB CARLSON & | Owner ID: | 112919 |
| Mailing Address: | ANN MCILVAINE 2023 E SIMS WAY PMB 347 PORT TOWNSEND, WA 98368-6905 | % Ownership: | 100.0000000000% |
| | | Exemptions: | |
Pay Tax Due
Select the appropriate checkbox next to the year to be paid. Multiple years may be selected.
*Convenience Fee not included
Taxes and Assessment Details
Property Tax Information as of
03/10/2026
Click on "Statement Details" to expand or collapse a tax statement.
* Please enter a valid date ** Please enter a valid date *
Statement Details |
| 2026 | 16256 | STATE - STATE LEVY (SCHOOL) | $56.91 | $56.90 | $0.00 | $0.00 | $0.00 | $113.81 |
| 2026 | 16256 | COUNTY - COUNTY LEVIES (CE, DD, VET, MH) | $22.75 | $22.75 | $0.00 | $0.00 | $0.00 | $45.50 |
| 2026 | 16256 | CONSERVE - CONSERVATION FUTURES | $0.68 | $0.68 | $0.00 | $0.00 | $0.00 | $1.36 |
| 2026 | 16256 | COROADS - COUNTY ROADS (ROADS, DIV TO CE) | $18.35 | $18.35 | $0.00 | $0.00 | $0.00 | $36.70 |
| 2026 | 16256 | PORTPT - PORT DISTRICT | $9.19 | $9.19 | $0.00 | $0.00 | $0.00 | $18.38 |
| 2026 | 16256 | PUD1 - PUD #1 | $1.48 | $1.48 | $0.00 | $0.00 | $0.00 | $2.96 |
| 2026 | 16256 | LIB1 - LIBRARY DIST #1 | $7.10 | $7.10 | $0.00 | $0.00 | $0.00 | $14.20 |
| 2026 | 16256 | HD2 - HOSP DIST #2 | $1.33 | $1.32 | $0.00 | $0.00 | $0.00 | $2.65 |
| 2026 | 16256 | SD50 - SCHOOL DIST #50 | $45.08 | $45.08 | $0.00 | $0.00 | $0.00 | $90.16 |
| 2026 | 16256 | FD5 - FIRE DISTRICT #5 | $26.44 | $26.44 | $0.00 | $0.00 | $0.00 | $52.88 |
| 2026 | 16256 | EMS5 - FIRE DIST #5 EMS | $9.44 | $9.43 | $0.00 | $0.00 | $0.00 | $18.87 |
| 2026 | 16256 | FP - DNR Forest Fire Protection Assmt | $8.50 | $8.50 | $0.00 | $0.00 | $0.00 | $17.00 |
| 2026 | 16256 | FPLCA - DNR Landowner Contingency Assmt | $3.00 | $3.00 | $0.00 | $0.00 | $0.00 | $6.00 |
| 2026 | 16256 | JCCD - JC Conservation District | $2.53 | $2.53 | $0.00 | $0.00 | $0.00 | $5.06 |
| 2026 | 16256 | NWA - Noxious Weed Assessment | $2.98 | $2.97 | $0.00 | $0.00 | $0.00 | $5.95 |
| 2026 | 16256 | OSS - On Site Septic | $23.10 | $23.10 | $0.00 | $0.00 | $0.00 | $46.20 |
| 2026 | 16256 | WAT - Clean Water District | $13.00 | $13.00 | $0.00 | $0.00 | $0.00 | $26.00 |
| 2026 | 16256 | FP ADMIN - FP ADMIN | $0.50 | $0.00 | $0.00 | $0.00 | $0.00 | $0.50 |
| 2026 | 16256 | TOTAL: | $252.36 | $251.82 | $0.00 | $0.00 | $0.00 | $504.18 |
|
| 2026 | 16256 | $252.36 | $251.82 | $0.00 | $0.00 | $0.00 | $504.18 |
Statement Details |
| 2025 | 16310 | STATE - STATE LEVY (SCHOOL) | $21.58 | $21.58 | $0.00 | $0.00 | $43.16 | $0.00 |
| 2025 | 16310 | COUNTY - COUNTY LEVIES (CE, DD, VET, MH) | $8.49 | $8.49 | $0.00 | $0.00 | $16.98 | $0.00 |
| 2025 | 16310 | CONSERVE - CONSERVATION FUTURES | $0.26 | $0.25 | $0.00 | $0.00 | $0.51 | $0.00 |
| 2025 | 16310 | COROADS - COUNTY ROADS (ROADS, DIV TO CE) | $6.81 | $6.79 | $0.00 | $0.00 | $13.60 | $0.00 |
| 2025 | 16310 | PORTPT - PORT DISTRICT | $3.47 | $3.46 | $0.00 | $0.00 | $6.93 | $0.00 |
| 2025 | 16310 | PUD1 - PUD #1 | $0.56 | $0.55 | $0.00 | $0.00 | $1.11 | $0.00 |
| 2025 | 16310 | LIB1 - LIBRARY DIST #1 | $2.63 | $2.63 | $0.00 | $0.00 | $5.26 | $0.00 |
| 2025 | 16310 | HD2 - HOSP DIST #2 | $0.50 | $0.49 | $0.00 | $0.00 | $0.99 | $0.00 |
| 2025 | 16310 | SD50 - SCHOOL DIST #50 | $15.78 | $15.77 | $0.00 | $0.00 | $31.55 | $0.00 |
| 2025 | 16310 | FD5 - FIRE DISTRICT #5 | $9.92 | $9.90 | $0.00 | $0.00 | $19.82 | $0.00 |
| 2025 | 16310 | EMS5 - FIRE DIST #5 EMS | $3.53 | $3.52 | $0.00 | $0.00 | $7.05 | $0.00 |
| 2025 | 16310 | FPLCA - DNR Landowner Contingency Assmt | $3.00 | $3.00 | $0.00 | $0.00 | $6.00 | $0.00 |
| 2025 | 16310 | JCCD - JC Conservation District | $2.53 | $2.53 | $0.00 | $0.00 | $5.06 | $0.00 |
| 2025 | 16310 | NWA - Noxious Weed Assessment | $2.15 | $2.15 | $0.00 | $0.00 | $4.30 | $0.00 |
| 2025 | 16310 | OSS - On Site Septic | $21.50 | $21.50 | $0.00 | $0.00 | $43.00 | $0.00 |
| 2025 | 16310 | WAT - Clean Water District | $13.00 | $13.00 | $0.00 | $0.00 | $26.00 | $0.00 |
| 2025 | 16310 | TOTAL: | $115.71 | $115.61 | $0.00 | $0.00 | $231.32 | $0.00 |
|
| 2025 | 16310 | $115.71 | $115.61 | $0.00 | $0.00 | $231.32 | $0.00 |
Statement Details |
| 2024 | 16342 | STATE - STATE LEVY (SCHOOL) | $20.82 | $20.82 | $0.00 | $0.00 | $41.64 | $0.00 |
| 2024 | 16342 | COUNTY - COUNTY LEVIES (CE, DD, VET, MH) | $8.91 | $8.91 | $0.00 | $0.00 | $17.82 | $0.00 |
| 2024 | 16342 | CONSERVE - CONSERVATION FUTURES | $0.27 | $0.26 | $0.00 | $0.00 | $0.53 | $0.00 |
| 2024 | 16342 | COROADS - COUNTY ROADS (ROADS, DIV TO CE) | $7.18 | $7.16 | $0.00 | $0.00 | $14.34 | $0.00 |
| 2024 | 16342 | PORTPT - PORT DISTRICT | $3.68 | $3.68 | $0.00 | $0.00 | $7.36 | $0.00 |
| 2024 | 16342 | PUD1 - PUD #1 | $0.59 | $0.58 | $0.00 | $0.00 | $1.17 | $0.00 |
| 2024 | 16342 | LIB1 - LIBRARY DIST #1 | $2.78 | $2.77 | $0.00 | $0.00 | $5.55 | $0.00 |
| 2024 | 16342 | HD2 - HOSP DIST #2 | $0.52 | $0.52 | $0.00 | $0.00 | $1.04 | $0.00 |
| 2024 | 16342 | SD50 - SCHOOL DIST #50 | $16.86 | $16.84 | $0.00 | $0.00 | $33.70 | $0.00 |
| 2024 | 16342 | FD5 - FIRE DISTRICT #5 | $10.41 | $10.41 | $0.00 | $0.00 | $20.82 | $0.00 |
| 2024 | 16342 | EMS5 - FIRE DIST #5 EMS | $3.58 | $3.57 | $0.00 | $0.00 | $7.15 | $0.00 |
| 2024 | 16342 | FPLCA - DNR Landowner Contingency Assmt | $3.00 | $3.00 | $0.00 | $0.00 | $6.00 | $0.00 |
| 2024 | 16342 | JCCD - JC Conservation District | $2.53 | $2.53 | $0.00 | $0.00 | $5.06 | $0.00 |
| 2024 | 16342 | NWA - Noxious Weed Assessment | $2.15 | $2.15 | $0.00 | $0.00 | $4.30 | $0.00 |
| 2024 | 16342 | OSS - On Site Septic | $21.00 | $21.00 | $0.00 | $0.00 | $42.00 | $0.00 |
| 2024 | 16342 | WAT - Clean Water District | $12.50 | $12.50 | $0.00 | $0.00 | $25.00 | $0.00 |
| 2024 | 16342 | TOTAL: | $116.78 | $116.70 | $0.00 | $0.00 | $233.48 | $0.00 |
|
| 2024 | 16342 | $116.78 | $116.70 | $0.00 | $0.00 | $233.48 | $0.00 |
Statement Details |
| 2023 | 16366 | STATE - STATE LEVY (SCHOOL) | $21.20 | $21.18 | $0.00 | $0.00 | $42.38 | $0.00 |
| 2023 | 16366 | COUNTY - COUNTY LEVIES (CE, DD, VET, MH) | $9.25 | $9.23 | $0.00 | $0.00 | $18.48 | $0.00 |
| 2023 | 16366 | CONSERVE - CONSERVATION FUTURES | $0.28 | $0.27 | $0.00 | $0.00 | $0.55 | $0.00 |
| 2023 | 16366 | COROADS - COUNTY ROADS (ROADS, DIV TO CE) | $7.49 | $7.47 | $0.00 | $0.00 | $14.96 | $0.00 |
| 2023 | 16366 | PORTPT - PORT DISTRICT | $3.90 | $3.89 | $0.00 | $0.00 | $7.79 | $0.00 |
| 2023 | 16366 | PUD1 - PUD #1 | $0.62 | $0.61 | $0.00 | $0.00 | $1.23 | $0.00 |
| 2023 | 16366 | LIB1 - LIBRARY DIST #1 | $2.90 | $2.89 | $0.00 | $0.00 | $5.79 | $0.00 |
| 2023 | 16366 | HD2 - HOSP DIST #2 | $0.55 | $0.53 | $0.00 | $0.00 | $1.08 | $0.00 |
| 2023 | 16366 | SD50 - SCHOOL DIST #50 | $16.83 | $16.80 | $0.00 | $0.00 | $33.63 | $0.00 |
| 2023 | 16366 | FD5 - FIRE DISTRICT #5 | $11.01 | $11.00 | $0.00 | $0.00 | $22.01 | $0.00 |
| 2023 | 16366 | EMS5 - FIRE DIST #5 EMS | $3.62 | $3.61 | $0.00 | $0.00 | $7.23 | $0.00 |
| 2023 | 16366 | FPLCA - DNR Landowner Contingency Assmt | $3.00 | $3.00 | $0.00 | $0.00 | $6.00 | $0.00 |
| 2023 | 16366 | JCCD - JC Conservation District | $2.53 | $2.53 | $0.00 | $0.00 | $5.06 | $0.00 |
| 2023 | 16366 | NWA - Noxious Weed Assessment | $2.15 | $2.15 | $0.00 | $0.00 | $4.30 | $0.00 |
| 2023 | 16366 | OSS - On Site Septic | $20.50 | $20.50 | $0.00 | $0.00 | $41.00 | $0.00 |
| 2023 | 16366 | WAT - Clean Water District | $12.00 | $12.00 | $0.00 | $0.00 | $24.00 | $0.00 |
| 2023 | 16366 | TOTAL: | $117.83 | $117.66 | $0.00 | $0.00 | $235.49 | $0.00 |
|
| 2023 | 16366 | $117.83 | $117.66 | $0.00 | $0.00 | $235.49 | $0.00 |
Values
| (+) Improvement Homesite Value: | + | $0 | |
| (+) Improvement Non-Homesite Value: | + | $0 | |
| (+) Land Homesite Value: | + | $0 | |
| (+) Land Non-Homesite Value: | + | $49,500 | |
| (+) Curr Use (HS): | + | $0 | $0 |
| (+) Curr Use (NHS): | + | $0 | $0 |
| | | -------------------------- | |
| (=) Market Value: | = | $49,500 | |
| (–) Productivity Loss: | – | $0 | |
| | | -------------------------- | |
| (=) Subtotal: | = | $49,500 | |
| (+) Senior Appraised Value: | + | $0 | |
| (+) Non-Senior Appraised Value: | + | $49,500 | |
| | | -------------------------- | |
| (=) Total Appraised Value: | = | $49,500 | |
| (–) Senior Exemption Loss: | – | $0 | |
| (–) Exemption Loss: | – | $0 | |
| | | -------------------------- | |
| (=) Taxable Value: | = | $49,500 | |
Taxing Jurisdiction
| Owner: | CALEB CARLSON & | | |
| % Ownership: | 100.0000000000% | | |
| Total Value: | $49,500 | | |
| Tax Area: | 0151 - 1-50F5E5H2L1 |
| CE | COUNTY CURRENT EXPENSE | 0.9034619479 | $49,500 | $49,500 | $44.72 | | |
| CNTYDD | DEVELOPMENTAL DISABILITIES | 0.0052121823 | $49,500 | $49,500 | $0.26 | | |
| CNTYVET | VETERANS RELIEF | 0.0052777810 | $49,500 | $49,500 | $0.26 | | |
| MENTAL | MENTAL HEALTH | 0.0052121823 | $49,500 | $49,500 | $0.26 | | |
| ROADS | COUNTY ROADS | 0.7415066410 | $49,500 | $49,500 | $36.70 | | |
| ROADSCU | COUNTY ROADS TO CUR EXP | 0.0000000000 | $49,500 | $49,500 | $0.00 | | |
| HOSP2CASH | HOSP DIST #2 GENERAL | 0.0536075306 | $49,500 | $49,500 | $2.65 | | |
| SCH50BOND | SCHOOL DIST #50 BOND 2016 | 0.5377451389 | $49,500 | $49,500 | $26.62 | | |
| SCH50CP | SCHOOL DIST #50 CAP PROJ | 0.4573475088 | $49,500 | $49,500 | $22.64 | | |
| SCH50MO | SCHOOL DIST #50 EP & O | 0.8262822886 | $49,500 | $49,500 | $40.90 | | |
| CONSERVE | CONSERVATION FUTURES | 0.0275621078 | $49,500 | $49,500 | $1.36 | | |
| EMS5 | FIRE DIST #5 EMS | 0.3811607070 | $49,500 | $49,500 | $18.87 | | |
| FD5 | FIRE DIST #5 GENERAL | 0.8460827285 | $49,500 | $49,500 | $41.88 | | |
| FD5BOND | FIRE DIST #5 BOND 2016 | 0.2222840608 | $49,500 | $49,500 | $11.00 | | |
| LIB1 | LIBRARY DIST #1 GENERAL | 0.2868827388 | $49,500 | $49,500 | $14.20 | | |
| PORTPT | PORT OF PT GENERAL | 0.1134941229 | $49,500 | $49,500 | $5.62 | | |
| PORTPTIDD | PORT OF PT IDD 2019 | 0.2577346692 | $49,500 | $49,500 | $12.76 | | |
| PUD1 | PUD #1 GENERAL | 0.0597888892 | $49,500 | $49,500 | $2.96 | | |
| STATE | STATE SCHOOL PART 1 | 1.4940692947 | $49,500 | $49,500 | $73.96 | | |
| STATE2 | STATE SCHOOL PART 2 | 0.8050170049 | $49,500 | $49,500 | $39.85 | | |
| | Total Tax Rate: | 8.0297295252 | | | | | |
| | | | | Taxes w/Current Exemptions: | $397.47 | | |
| | | | | Taxes w/o Exemptions: | $397.47 | | |
Improvement / Building
Sketch
| No sketches available for this property. |
Property Image
Land
| 1 | 5440-1175S | | 0.0000 | 0.00 | 0.00 | 0.00 | 1.00 | $49,500 | $0 |
Roll Value History
| 2026 | N/A | N/A | N/A | N/A | N/A |
| 2025 | $0 | $49,500 | $0 | $49,500 | $49,500 |
| 2024 | $0 | $18,000 | $0 | $18,000 | $18,000 |
| 2023 | $0 | $18,000 | $0 | $18,000 | $18,000 |
| 2022 | $0 | $18,000 | $0 | $18,000 | $18,000 |
Deed and Sales History
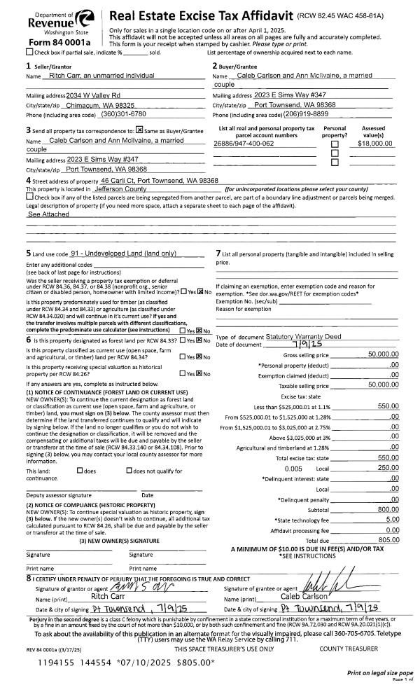
| 1 | 07/09/2025 | SWD | Statutory Warranty Deed | RITCH CARR | CALEB CARLSON & | | | $50,000.00 | 144554 | |
| 2 | 09/14/2020 | SWD | Statutory Warranty Deed | K & F HOLDINGS LLC | RITCH CARR | | | $15,000.00 | 135100 | |
| 3 | 08/21/2019 | SWD | Statutory Warranty Deed | PENSCO TRUST CO F/B/O | K & F HOLDINGS LLC | | | $7,412.00 | 133070 | |
| 4 | 11/19/2007 | QCD | Quit Claim Deed | PENSCO TRUST | PENSCO TRUST | 0 | 0 | $0.00 | 110456 | 0 |
| 5 | 10/28/2005 | SWD | Statutory Warranty Deed | EASTMAN, MARLANE | PENSCO TRUST CO, CUSTODIAN | 0 | 0 | $35,000.00 | 105210 | 0 |
Payout Agreement
| No payout information available.. |