Property
Account |
| Property ID: | 26887 | Abbreviated Legal Description: | DISCOVERY BAY VILLAGE LOT 63 |
| Parcel # / Geo ID: | 947400063 | Agent Code: | |
| Type: | Real | | |
| Tax Area: | 0151 - 1-50F5E5H2L1 | Land Use Code | 11 |
| Open Space: | N | DFL | N |
| Historic Property: | N | Remodel Property: | N |
| Multi-Family Redevelopment: | N | | |
| Township: | 29N | Section: | 13 |
| Range: | 2W |
Location |
| Address: | 72 CARLI CT PORT TOWNSEND, WA 98368 | Mapsco: | 024/054 |
| Neighborhood: | DISCOVERY BAY VILLAGE; S13 T29 R2W | Map ID: | |
| Neighborhood CD: | 5440 |
Owner |
| Name: | DAVLIN RENTAL LLC | Owner ID: | 103574 |
| Mailing Address: | 1514 BARRON ST PORTSMOUTH, VA 23704-1702 | % Ownership: | 100.0000000000% |
| | | Exemptions: | |
Pay Tax Due
Select the appropriate checkbox next to the year to be paid. Multiple years may be selected.
*Convenience Fee not included
Taxes and Assessment Details
Property Tax Information as of
03/11/2026
Click on "Statement Details" to expand or collapse a tax statement.
* Please enter a valid date ** Please enter a valid date *
Statement Details |
| 2026 | 16257 | STATE - STATE LEVY (SCHOOL) | $341.75 | $341.74 | $0.00 | $0.00 | $0.00 | $683.49 |
| 2026 | 16257 | COUNTY - COUNTY LEVIES (CE, DD, VET, MH) | $136.65 | $136.61 | $0.00 | $0.00 | $0.00 | $273.26 |
| 2026 | 16257 | CONSERVE - CONSERVATION FUTURES | $4.10 | $4.09 | $0.00 | $0.00 | $0.00 | $8.19 |
| 2026 | 16257 | COROADS - COUNTY ROADS (ROADS, DIV TO CE) | $110.22 | $110.22 | $0.00 | $0.00 | $0.00 | $220.44 |
| 2026 | 16257 | PORTPT - PORT DISTRICT | $55.18 | $55.18 | $0.00 | $0.00 | $0.00 | $110.36 |
| 2026 | 16257 | PUD1 - PUD #1 | $8.89 | $8.88 | $0.00 | $0.00 | $0.00 | $17.77 |
| 2026 | 16257 | LIB1 - LIBRARY DIST #1 | $42.65 | $42.64 | $0.00 | $0.00 | $0.00 | $85.29 |
| 2026 | 16257 | HD2 - HOSP DIST #2 | $7.97 | $7.97 | $0.00 | $0.00 | $0.00 | $15.94 |
| 2026 | 16257 | SD50 - SCHOOL DIST #50 | $270.73 | $270.73 | $0.00 | $0.00 | $0.00 | $541.46 |
| 2026 | 16257 | FD5 - FIRE DISTRICT #5 | $158.81 | $158.80 | $0.00 | $0.00 | $0.00 | $317.61 |
| 2026 | 16257 | EMS5 - FIRE DIST #5 EMS | $56.66 | $56.65 | $0.00 | $0.00 | $0.00 | $113.31 |
| 2026 | 16257 | FP - DNR Forest Fire Protection Assmt | $8.50 | $8.50 | $0.00 | $0.00 | $0.00 | $17.00 |
| 2026 | 16257 | FPLCA - DNR Landowner Contingency Assmt | $3.00 | $3.00 | $0.00 | $0.00 | $0.00 | $6.00 |
| 2026 | 16257 | JCCD - JC Conservation District | $2.55 | $2.55 | $0.00 | $0.00 | $0.00 | $5.10 |
| 2026 | 16257 | NWA - Noxious Weed Assessment | $2.98 | $2.97 | $0.00 | $0.00 | $0.00 | $5.95 |
| 2026 | 16257 | OSS - On Site Septic | $23.10 | $23.10 | $0.00 | $0.00 | $0.00 | $46.20 |
| 2026 | 16257 | WAT - Clean Water District | $13.00 | $13.00 | $0.00 | $0.00 | $0.00 | $26.00 |
| 2026 | 16257 | FP ADMIN - FP ADMIN | $0.50 | $0.00 | $0.00 | $0.00 | $0.00 | $0.50 |
| 2026 | 16257 | TOTAL: | $1247.24 | $1246.63 | $0.00 | $0.00 | $0.00 | $2493.87 |
|
| 2026 | 16257 | $1247.24 | $1246.63 | $0.00 | $0.00 | $0.00 | $2493.87 |
Statement Details |
| 2025 | 16311 | STATE - STATE LEVY (SCHOOL) | $324.05 | $324.04 | $0.00 | $0.00 | $648.09 | $0.00 |
| 2025 | 16311 | COUNTY - COUNTY LEVIES (CE, DD, VET, MH) | $127.43 | $127.42 | $0.00 | $0.00 | $254.85 | $0.00 |
| 2025 | 16311 | CONSERVE - CONSERVATION FUTURES | $3.82 | $3.82 | $0.00 | $0.00 | $7.64 | $0.00 |
| 2025 | 16311 | COROADS - COUNTY ROADS (ROADS, DIV TO CE) | $102.10 | $102.08 | $0.00 | $0.00 | $204.18 | $0.00 |
| 2025 | 16311 | PORTPT - PORT DISTRICT | $52.01 | $51.99 | $0.00 | $0.00 | $104.00 | $0.00 |
| 2025 | 16311 | PUD1 - PUD #1 | $8.34 | $8.34 | $0.00 | $0.00 | $16.68 | $0.00 |
| 2025 | 16311 | LIB1 - LIBRARY DIST #1 | $39.50 | $39.50 | $0.00 | $0.00 | $79.00 | $0.00 |
| 2025 | 16311 | HD2 - HOSP DIST #2 | $7.44 | $7.43 | $0.00 | $0.00 | $14.87 | $0.00 |
| 2025 | 16311 | SD50 - SCHOOL DIST #50 | $236.83 | $236.82 | $0.00 | $0.00 | $473.65 | $0.00 |
| 2025 | 16311 | FD5 - FIRE DISTRICT #5 | $148.79 | $148.79 | $0.00 | $0.00 | $297.58 | $0.00 |
| 2025 | 16311 | EMS5 - FIRE DIST #5 EMS | $52.91 | $52.90 | $0.00 | $0.00 | $105.81 | $0.00 |
| 2025 | 16311 | FP - DNR Forest Fire Protection Assmt | $8.50 | $8.50 | $0.00 | $0.00 | $17.00 | $0.00 |
| 2025 | 16311 | FPLCA - DNR Landowner Contingency Assmt | $3.00 | $3.00 | $0.00 | $0.00 | $6.00 | $0.00 |
| 2025 | 16311 | JCCD - JC Conservation District | $2.55 | $2.55 | $0.00 | $0.00 | $5.10 | $0.00 |
| 2025 | 16311 | NWA - Noxious Weed Assessment | $2.15 | $2.15 | $0.00 | $0.00 | $4.30 | $0.00 |
| 2025 | 16311 | OSS - On Site Septic | $21.50 | $21.50 | $0.00 | $0.00 | $43.00 | $0.00 |
| 2025 | 16311 | WAT - Clean Water District | $13.00 | $13.00 | $0.00 | $0.00 | $26.00 | $0.00 |
| 2025 | 16311 | FP ADMIN - FP ADMIN | $0.50 | $0.00 | $0.00 | $0.00 | $0.50 | $0.00 |
| 2025 | 16311 | TOTAL: | $1154.42 | $1153.83 | $0.00 | $0.00 | $2308.25 | $0.00 |
|
| 2025 | 16311 | $1154.42 | $1153.83 | $0.00 | $0.00 | $2308.25 | $0.00 |
Statement Details |
| 2024 | 16343 | STATE - STATE LEVY (SCHOOL) | $294.38 | $294.38 | $0.00 | $0.00 | $588.76 | $0.00 |
| 2024 | 16343 | COUNTY - COUNTY LEVIES (CE, DD, VET, MH) | $125.97 | $125.96 | $0.00 | $0.00 | $251.93 | $0.00 |
| 2024 | 16343 | CONSERVE - CONSERVATION FUTURES | $3.78 | $3.77 | $0.00 | $0.00 | $7.55 | $0.00 |
| 2024 | 16343 | COROADS - COUNTY ROADS (ROADS, DIV TO CE) | $101.37 | $101.36 | $0.00 | $0.00 | $202.73 | $0.00 |
| 2024 | 16343 | PORTPT - PORT DISTRICT | $52.04 | $52.02 | $0.00 | $0.00 | $104.06 | $0.00 |
| 2024 | 16343 | PUD1 - PUD #1 | $8.28 | $8.27 | $0.00 | $0.00 | $16.55 | $0.00 |
| 2024 | 16343 | LIB1 - LIBRARY DIST #1 | $39.22 | $39.21 | $0.00 | $0.00 | $78.43 | $0.00 |
| 2024 | 16343 | HD2 - HOSP DIST #2 | $7.35 | $7.35 | $0.00 | $0.00 | $14.70 | $0.00 |
| 2024 | 16343 | SD50 - SCHOOL DIST #50 | $238.18 | $238.16 | $0.00 | $0.00 | $476.34 | $0.00 |
| 2024 | 16343 | FD5 - FIRE DISTRICT #5 | $147.19 | $147.18 | $0.00 | $0.00 | $294.37 | $0.00 |
| 2024 | 16343 | EMS5 - FIRE DIST #5 EMS | $50.51 | $50.51 | $0.00 | $0.00 | $101.02 | $0.00 |
| 2024 | 16343 | JCCD - JC Conservation District | $2.55 | $2.55 | $0.00 | $0.00 | $5.10 | $0.00 |
| 2024 | 16343 | NWA - Noxious Weed Assessment | $2.15 | $2.15 | $0.00 | $0.00 | $4.30 | $0.00 |
| 2024 | 16343 | OSS - On Site Septic | $21.00 | $21.00 | $0.00 | $0.00 | $42.00 | $0.00 |
| 2024 | 16343 | WAT - Clean Water District | $12.50 | $12.50 | $0.00 | $0.00 | $25.00 | $0.00 |
| 2024 | 16343 | TOTAL: | $1106.47 | $1106.37 | $0.00 | $0.00 | $2212.84 | $0.00 |
|
| 2024 | 16343 | $1106.47 | $1106.37 | $0.00 | $0.00 | $2212.84 | $0.00 |
Statement Details |
| 2023 | 16367 | STATE - STATE LEVY (SCHOOL) | $293.67 | $293.65 | $0.00 | $0.00 | $587.32 | $0.00 |
| 2023 | 16367 | COUNTY - COUNTY LEVIES (CE, DD, VET, MH) | $128.15 | $128.12 | $0.00 | $0.00 | $256.27 | $0.00 |
| 2023 | 16367 | CONSERVE - CONSERVATION FUTURES | $3.84 | $3.84 | $0.00 | $0.00 | $7.68 | $0.00 |
| 2023 | 16367 | COROADS - COUNTY ROADS (ROADS, DIV TO CE) | $103.68 | $103.67 | $0.00 | $0.00 | $207.35 | $0.00 |
| 2023 | 16367 | PORTPT - PORT DISTRICT | $53.99 | $53.98 | $0.00 | $0.00 | $107.97 | $0.00 |
| 2023 | 16367 | PUD1 - PUD #1 | $8.50 | $8.49 | $0.00 | $0.00 | $16.99 | $0.00 |
| 2023 | 16367 | LIB1 - LIBRARY DIST #1 | $40.11 | $40.11 | $0.00 | $0.00 | $80.22 | $0.00 |
| 2023 | 16367 | HD2 - HOSP DIST #2 | $7.48 | $7.47 | $0.00 | $0.00 | $14.95 | $0.00 |
| 2023 | 16367 | SD50 - SCHOOL DIST #50 | $233.03 | $233.01 | $0.00 | $0.00 | $466.04 | $0.00 |
| 2023 | 16367 | FD5 - FIRE DISTRICT #5 | $152.51 | $152.50 | $0.00 | $0.00 | $305.01 | $0.00 |
| 2023 | 16367 | EMS5 - FIRE DIST #5 EMS | $50.13 | $50.12 | $0.00 | $0.00 | $100.25 | $0.00 |
| 2023 | 16367 | JCCD - JC Conservation District | $2.55 | $2.55 | $0.00 | $0.00 | $5.10 | $0.00 |
| 2023 | 16367 | NWA - Noxious Weed Assessment | $2.15 | $2.15 | $0.00 | $0.00 | $4.30 | $0.00 |
| 2023 | 16367 | OSS - On Site Septic | $20.50 | $20.50 | $0.00 | $0.00 | $41.00 | $0.00 |
| 2023 | 16367 | WAT - Clean Water District | $12.00 | $12.00 | $0.00 | $0.00 | $24.00 | $0.00 |
| 2023 | 16367 | TOTAL: | $1112.29 | $1112.16 | $0.00 | $0.00 | $2224.45 | $0.00 |
|
| 2023 | 16367 | $1112.29 | $1112.16 | $0.00 | $0.00 | $2224.45 | $0.00 |
Values
| (+) Improvement Homesite Value: | + | $0 | |
| (+) Improvement Non-Homesite Value: | + | $198,286 | |
| (+) Land Homesite Value: | + | $0 | |
| (+) Land Non-Homesite Value: | + | $99,000 | |
| (+) Curr Use (HS): | + | $0 | $0 |
| (+) Curr Use (NHS): | + | $0 | $0 |
| | | -------------------------- | |
| (=) Market Value: | = | $297,286 | |
| (–) Productivity Loss: | – | $0 | |
| | | -------------------------- | |
| (=) Subtotal: | = | $297,286 | |
| (+) Senior Appraised Value: | + | $0 | |
| (+) Non-Senior Appraised Value: | + | $297,286 | |
| | | -------------------------- | |
| (=) Total Appraised Value: | = | $297,286 | |
| (–) Senior Exemption Loss: | – | $0 | |
| (–) Exemption Loss: | – | $0 | |
| | | -------------------------- | |
| (=) Taxable Value: | = | $297,286 | |
Taxing Jurisdiction
| Owner: | DAVLIN RENTAL LLC | | |
| % Ownership: | 100.0000000000% | | |
| Total Value: | $297,286 | | |
| Tax Area: | 0151 - 1-50F5E5H2L1 |
| CE | COUNTY CURRENT EXPENSE | 0.9034619479 | $297,286 | $297,286 | $268.59 | | |
| CNTYDD | DEVELOPMENTAL DISABILITIES | 0.0052121823 | $297,286 | $297,286 | $1.55 | | |
| CNTYVET | VETERANS RELIEF | 0.0052777810 | $297,286 | $297,286 | $1.57 | | |
| MENTAL | MENTAL HEALTH | 0.0052121823 | $297,286 | $297,286 | $1.55 | | |
| ROADS | COUNTY ROADS | 0.7415066410 | $297,286 | $297,286 | $220.44 | | |
| ROADSCU | COUNTY ROADS TO CUR EXP | 0.0000000000 | $297,286 | $297,286 | $0.00 | | |
| HOSP2CASH | HOSP DIST #2 GENERAL | 0.0536075306 | $297,286 | $297,286 | $15.94 | | |
| SCH50BOND | SCHOOL DIST #50 BOND 2016 | 0.5377451389 | $297,286 | $297,286 | $159.86 | | |
| SCH50CP | SCHOOL DIST #50 CAP PROJ | 0.4573475088 | $297,286 | $297,286 | $135.96 | | |
| SCH50MO | SCHOOL DIST #50 EP & O | 0.8262822886 | $297,286 | $297,286 | $245.64 | | |
| CONSERVE | CONSERVATION FUTURES | 0.0275621078 | $297,286 | $297,286 | $8.19 | | |
| EMS5 | FIRE DIST #5 EMS | 0.3811607070 | $297,286 | $297,286 | $113.31 | | |
| FD5 | FIRE DIST #5 GENERAL | 0.8460827285 | $297,286 | $297,286 | $251.53 | | |
| FD5BOND | FIRE DIST #5 BOND 2016 | 0.2222840608 | $297,286 | $297,286 | $66.08 | | |
| LIB1 | LIBRARY DIST #1 GENERAL | 0.2868827388 | $297,286 | $297,286 | $85.29 | | |
| PORTPT | PORT OF PT GENERAL | 0.1134941229 | $297,286 | $297,286 | $33.74 | | |
| PORTPTIDD | PORT OF PT IDD 2019 | 0.2577346692 | $297,286 | $297,286 | $76.62 | | |
| PUD1 | PUD #1 GENERAL | 0.0597888892 | $297,286 | $297,286 | $17.77 | | |
| STATE | STATE SCHOOL PART 1 | 1.4940692947 | $297,286 | $297,286 | $444.17 | | |
| STATE2 | STATE SCHOOL PART 2 | 0.8050170049 | $297,286 | $297,286 | $239.32 | | |
| | Total Tax Rate: | 8.0297295252 | | | | | |
| | | | | Taxes w/Current Exemptions: | $2,387.12 | | |
| | | | | Taxes w/o Exemptions: | $2,387.12 | | |
Improvement / Building
| Improvement #1: | Residential Bldg | State Code: | 11 | 1008.0 sqft | Value: | $198,286 |
| Bathrooms (#): | 1 (FULL) | Bedrooms (#): | 2 | | Exterior Wall: | SI/ST | Fireplace: | WD ST-GOOD | | Floor Construction: | FRAME | Foundation: | CONPR | | Heating/Cooling: | OTHER | Roof Cover: | METAL |
|
| | Type | Description | Class CD | Sub Class CD | Year Built | Area |
| | MA | Main Area | 3 | 1S | 1992 | 1008.0 |
| | HWPOR | House Wood Porch | 2 | * | 1992 | 336.0 |
| | GBLTIN | Builtin Garage | 2 | 1S | 1992 | 649.0 |
| | BSMTF | House basement finished | 2 | * | 1992 | 251.3 |
| | BSMTU | House basement unfinished | 2 | * | 1992 | 107.7 |
Sketch
| No sketches available for this property. |
Property Image
Land
| 1 | 5440-1175S | | 0.0000 | 0.00 | 0.00 | 0.00 | 1.00 | $99,000 | $0 |
Roll Value History
| 2026 | N/A | N/A | N/A | N/A | N/A |
| 2025 | $198,286 | $99,000 | $0 | $297,286 | $297,286 |
| 2024 | $180,260 | $90,000 | $0 | $270,260 | $270,260 |
| 2023 | $169,480 | $85,000 | $0 | $254,480 | $254,480 |
| 2022 | $169,480 | $80,000 | $0 | $249,480 | $249,480 |
Deed and Sales History
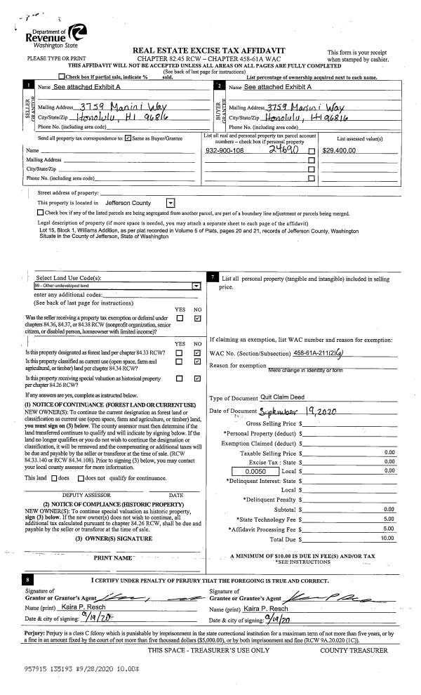
| 1 | 09/18/2020 | QCD | Quit Claim Deed | DAVID O VREELAND | DAVLIN RENTAL LLC | | | | 135453 | |
| 2 | 03/25/1992 | SWD | Statutory Warranty Deed | FAGER, STEVEN L | VREELAND, DAVID ORRIN | 0 | 0 | $24,000.00 | 68028 | 0 |
Payout Agreement
| No payout information available.. |