Property
Account |
| Property ID: | 27165 | Abbreviated Legal Description: | DUNDEE PLACE BLK 36 LOTS 1,2,3 |
| Parcel # / Geo ID: | 948003601 | Agent Code: | |
| Type: | Real | | |
| Tax Area: | 0110 - C-50F1E1H2 | Land Use Code | 11 |
| Open Space: | N | DFL | N |
| Historic Property: | N | Remodel Property: | N |
| Multi-Family Redevelopment: | N | | |
| Township: | 30N | Section: | 3 |
| Range: | 1W |
Location |
| Address: | 3211 CROSS ST PORT TOWNSEND, WA 98368 | Mapsco: | 019/001 |
| Neighborhood: | DUNDEE PLATS | Map ID: | |
| Neighborhood CD: | 6075 |
Owner |
| Name: | PAUL DAVID DAVIS | Owner ID: | 107036 |
| Mailing Address: | 3211 CROSS ST PORT TOWNSEND, WA 98368-4909 | % Ownership: | 100.0000000000% |
| | | Exemptions: | |
Pay Tax Due
Select the appropriate checkbox next to the year to be paid. Multiple years may be selected.
*Convenience Fee not included
Taxes and Assessment Details
Property Tax Information as of
03/09/2026
Click on "Statement Details" to expand or collapse a tax statement.
* Please enter a valid date ** Please enter a valid date *
Statement Details |
| 2026 | 16531 | STATE - STATE LEVY (SCHOOL) | $532.74 | $532.73 | $0.00 | $0.00 | $0.00 | $1065.47 |
| 2026 | 16531 | COUNTY - COUNTY LEVIES (CE, DD, VET, MH) | $213.00 | $212.99 | $0.00 | $0.00 | $0.00 | $425.99 |
| 2026 | 16531 | CONSERVE - CONSERVATION FUTURES | $6.39 | $6.38 | $0.00 | $0.00 | $0.00 | $12.77 |
| 2026 | 16531 | CITYPT - CITY OF PT | $302.32 | $302.31 | $0.00 | $0.00 | $0.00 | $604.63 |
| 2026 | 16531 | PORTPT - PORT DISTRICT | $86.02 | $86.02 | $0.00 | $0.00 | $0.00 | $172.04 |
| 2026 | 16531 | PUD1 - PUD #1 | $13.86 | $13.85 | $0.00 | $0.00 | $0.00 | $27.71 |
| 2026 | 16531 | HD2 - HOSP DIST #2 | $12.42 | $12.42 | $0.00 | $0.00 | $0.00 | $24.84 |
| 2026 | 16531 | SD50 - SCHOOL DIST #50 | $422.06 | $422.03 | $0.00 | $0.00 | $0.00 | $844.09 |
| 2026 | 16531 | FD1 - FIRE DISTRICT #1 | $282.05 | $282.04 | $0.00 | $0.00 | $0.00 | $564.09 |
| 2026 | 16531 | EMS1 - FIRE DIST #1 EMS | $108.45 | $108.44 | $0.00 | $0.00 | $0.00 | $216.89 |
| 2026 | 16531 | JCCD - JC Conservation District | $2.55 | $2.55 | $0.00 | $0.00 | $0.00 | $5.10 |
| 2026 | 16531 | NWA - Noxious Weed Assessment | $2.98 | $2.97 | $0.00 | $0.00 | $0.00 | $5.95 |
| 2026 | 16531 | TOTAL: | $1984.84 | $1984.73 | $0.00 | $0.00 | $0.00 | $3969.57 |
|
| 2026 | 16531 | $1984.84 | $1984.73 | $0.00 | $0.00 | $0.00 | $3969.57 |
Statement Details |
| 2025 | 16585 | STATE - STATE LEVY (SCHOOL) | $551.54 | $551.52 | $0.00 | $0.00 | $1103.06 | $0.00 |
| 2025 | 16585 | COUNTY - COUNTY LEVIES (CE, DD, VET, MH) | $216.89 | $216.87 | $0.00 | $0.00 | $433.76 | $0.00 |
| 2025 | 16585 | CONSERVE - CONSERVATION FUTURES | $6.51 | $6.50 | $0.00 | $0.00 | $13.01 | $0.00 |
| 2025 | 16585 | CITYPT - CITY OF PT | $312.78 | $312.77 | $0.00 | $0.00 | $625.55 | $0.00 |
| 2025 | 16585 | PORTPT - PORT DISTRICT | $88.50 | $88.50 | $0.00 | $0.00 | $177.00 | $0.00 |
| 2025 | 16585 | PUD1 - PUD #1 | $14.19 | $14.19 | $0.00 | $0.00 | $28.38 | $0.00 |
| 2025 | 16585 | HD2 - HOSP DIST #2 | $12.66 | $12.65 | $0.00 | $0.00 | $25.31 | $0.00 |
| 2025 | 16585 | SD50 - SCHOOL DIST #50 | $403.08 | $403.07 | $0.00 | $0.00 | $806.15 | $0.00 |
| 2025 | 16585 | FD1 - FIRE DISTRICT #1 | $286.21 | $286.20 | $0.00 | $0.00 | $572.41 | $0.00 |
| 2025 | 16585 | EMS1 - FIRE DIST #1 EMS | $110.08 | $110.08 | $0.00 | $0.00 | $220.16 | $0.00 |
| 2025 | 16585 | JCCD - JC Conservation District | $2.55 | $2.55 | $0.00 | $0.00 | $5.10 | $0.00 |
| 2025 | 16585 | NWA - Noxious Weed Assessment | $2.15 | $2.15 | $0.00 | $0.00 | $4.30 | $0.00 |
| 2025 | 16585 | TOTAL: | $2007.14 | $2007.05 | $0.00 | $0.00 | $4014.19 | $0.00 |
|
| 2025 | 16585 | $2007.14 | $2007.05 | $0.00 | $0.00 | $4014.19 | $0.00 |
Statement Details |
| 2024 | 16619 | STATE - STATE LEVY (SCHOOL) | $502.21 | $502.21 | $0.00 | $0.00 | $1004.42 | $0.00 |
| 2024 | 16619 | COUNTY - COUNTY LEVIES (CE, DD, VET, MH) | $214.92 | $214.89 | $0.00 | $0.00 | $429.81 | $0.00 |
| 2024 | 16619 | CONSERVE - CONSERVATION FUTURES | $6.45 | $6.44 | $0.00 | $0.00 | $12.89 | $0.00 |
| 2024 | 16619 | CITYPT - CITY OF PT | $307.06 | $307.06 | $0.00 | $0.00 | $614.12 | $0.00 |
| 2024 | 16619 | PORTPT - PORT DISTRICT | $88.77 | $88.76 | $0.00 | $0.00 | $177.53 | $0.00 |
| 2024 | 16619 | PUD1 - PUD #1 | $14.12 | $14.11 | $0.00 | $0.00 | $28.23 | $0.00 |
| 2024 | 16619 | HD2 - HOSP DIST #2 | $12.54 | $12.54 | $0.00 | $0.00 | $25.08 | $0.00 |
| 2024 | 16619 | SD50 - SCHOOL DIST #50 | $406.32 | $406.30 | $0.00 | $0.00 | $812.62 | $0.00 |
| 2024 | 16619 | FD1 - FIRE DISTRICT #1 | $284.15 | $284.15 | $0.00 | $0.00 | $568.30 | $0.00 |
| 2024 | 16619 | EMS1 - FIRE DIST #1 EMS | $108.54 | $108.53 | $0.00 | $0.00 | $217.07 | $0.00 |
| 2024 | 16619 | JCCD - JC Conservation District | $2.55 | $2.55 | $0.00 | $0.00 | $5.10 | $0.00 |
| 2024 | 16619 | NWA - Noxious Weed Assessment | $2.15 | $2.15 | $0.00 | $0.00 | $4.30 | $0.00 |
| 2024 | 16619 | TOTAL: | $1949.78 | $1949.69 | $0.00 | $0.00 | $3899.47 | $0.00 |
|
| 2024 | 16619 | $1949.78 | $1949.69 | $0.00 | $0.00 | $3899.47 | $0.00 |
Statement Details |
| 2023 | 16643 | STATE - STATE LEVY (SCHOOL) | $505.13 | $505.13 | $0.00 | $0.00 | $1010.26 | $0.00 |
| 2023 | 16643 | COUNTY - COUNTY LEVIES (CE, DD, VET, MH) | $220.43 | $220.41 | $0.00 | $0.00 | $440.84 | $0.00 |
| 2023 | 16643 | CONSERVE - CONSERVATION FUTURES | $6.61 | $6.61 | $0.00 | $0.00 | $13.22 | $0.00 |
| 2023 | 16643 | CITYPT - CITY OF PT | $311.54 | $311.52 | $0.00 | $0.00 | $623.06 | $0.00 |
| 2023 | 16643 | PORTPT - PORT DISTRICT | $92.86 | $92.84 | $0.00 | $0.00 | $185.70 | $0.00 |
| 2023 | 16643 | PUD1 - PUD #1 | $14.61 | $14.61 | $0.00 | $0.00 | $29.22 | $0.00 |
| 2023 | 16643 | HD2 - HOSP DIST #2 | $12.87 | $12.85 | $0.00 | $0.00 | $25.72 | $0.00 |
| 2023 | 16643 | SD50 - SCHOOL DIST #50 | $400.84 | $400.82 | $0.00 | $0.00 | $801.66 | $0.00 |
| 2023 | 16643 | FD1 - FIRE DISTRICT #1 | $181.59 | $181.58 | $0.00 | $0.00 | $363.17 | $0.00 |
| 2023 | 16643 | EMS1 - FIRE DIST #1 EMS | $77.25 | $77.24 | $0.00 | $0.00 | $154.49 | $0.00 |
| 2023 | 16643 | JCCD - JC Conservation District | $2.55 | $2.55 | $0.00 | $0.00 | $5.10 | $0.00 |
| 2023 | 16643 | NWA - Noxious Weed Assessment | $2.15 | $2.15 | $0.00 | $0.00 | $4.30 | $0.00 |
| 2023 | 16643 | TOTAL: | $1828.43 | $1828.31 | $0.00 | $0.00 | $3656.74 | $0.00 |
|
| 2023 | 16643 | $1828.43 | $1828.31 | $0.00 | $0.00 | $3656.74 | $0.00 |
Values
| (+) Improvement Homesite Value: | + | $0 | |
| (+) Improvement Non-Homesite Value: | + | $256,985 | |
| (+) Land Homesite Value: | + | $0 | |
| (+) Land Non-Homesite Value: | + | $206,450 | |
| (+) Curr Use (HS): | + | $0 | $0 |
| (+) Curr Use (NHS): | + | $0 | $0 |
| | | -------------------------- | |
| (=) Market Value: | = | $463,435 | |
| (–) Productivity Loss: | – | $0 | |
| | | -------------------------- | |
| (=) Subtotal: | = | $463,435 | |
| (+) Senior Appraised Value: | + | $0 | |
| (+) Non-Senior Appraised Value: | + | $463,435 | |
| | | -------------------------- | |
| (=) Total Appraised Value: | = | $463,435 | |
| (–) Senior Exemption Loss: | – | $0 | |
| (–) Exemption Loss: | – | $0 | |
| | | -------------------------- | |
| (=) Taxable Value: | = | $463,435 | |
Taxing Jurisdiction
| Owner: | PAUL DAVID DAVIS | | |
| % Ownership: | 100.0000000000% | | |
| Total Value: | $463,435 | | |
| Tax Area: | 0110 - C-50F1E1H2 |
| CE | COUNTY CURRENT EXPENSE | 0.9034619479 | $463,435 | $463,435 | $418.70 | | |
| CNTYDD | DEVELOPMENTAL DISABILITIES | 0.0052121823 | $463,435 | $463,435 | $2.42 | | |
| CNTYVET | VETERANS RELIEF | 0.0052777810 | $463,435 | $463,435 | $2.45 | | |
| MENTAL | MENTAL HEALTH | 0.0052121823 | $463,435 | $463,435 | $2.42 | | |
| PTGEN | CITY OF PT GENERAL | 0.8551967795 | $463,435 | $463,435 | $396.33 | | |
| PTLLL | CITY OF PT - LIBRARY LID LIFT | 0.4010114288 | $463,435 | $463,435 | $185.84 | | |
| PTMVBOND | CITY OF PT MV BOND | 0.0484717981 | $463,435 | $463,435 | $22.46 | | |
| HOSP2CASH | HOSP DIST #2 GENERAL | 0.0536075306 | $463,435 | $463,435 | $24.84 | | |
| SCH50BOND | SCHOOL DIST #50 BOND 2016 | 0.5377451389 | $463,435 | $463,435 | $249.21 | | |
| SCH50CP | SCHOOL DIST #50 CAP PROJ | 0.4573475088 | $463,435 | $463,435 | $211.95 | | |
| SCH50MO | SCHOOL DIST #50 EP & O | 0.8262822886 | $463,435 | $463,435 | $382.93 | | |
| CONSERVE | CONSERVATION FUTURES | 0.0275621078 | $463,435 | $463,435 | $12.77 | | |
| EMS1 | FIRE DIST #1 EMS | 0.4679948282 | $463,435 | $463,435 | $216.89 | | |
| FD1 | FIRE DIST #1 GENERAL | 1.2171942929 | $463,435 | $463,435 | $564.09 | | |
| PORTPT | PORT OF PT GENERAL | 0.1134941229 | $463,435 | $463,435 | $52.60 | | |
| PORTPTIDD | PORT OF PT IDD 2019 | 0.2577346692 | $463,435 | $463,435 | $119.44 | | |
| PUD1 | PUD #1 GENERAL | 0.0597888892 | $463,435 | $463,435 | $27.71 | | |
| STATE | STATE SCHOOL PART 1 | 1.4940692947 | $463,435 | $463,435 | $692.40 | | |
| STATE2 | STATE SCHOOL PART 2 | 0.8050170049 | $463,435 | $463,435 | $373.07 | | |
| | Total Tax Rate: | 8.5416817766 | | | | | |
| | | | | Taxes w/Current Exemptions: | $3,958.52 | | |
| | | | | Taxes w/o Exemptions: | $3,958.52 | | |
Improvement / Building
| Improvement #1: | Residential Bldg | State Code: | 11 | 1539.0 sqft | Value: | $256,985 |
| Bathrooms (#): | 2 (FULL) | Bedrooms (#): | 3 | | Exterior Wall: | SI/ST | Fireplace: | PROPS-GOOD | | Floor Construction: | FRAME | Foundation: | CONPR | | Heating/Cooling: | ELBB | Roof Cover: | COMP |
|
| | Type | Description | Class CD | Sub Class CD | Year Built | Area |
| | MA | Main Area | 3 | 1S | 1990 | 1539.0 |
| | HDECK | House Deck | 3 | * | 1990 | 352.0 |
| | SHED | Shed (Table Not Dep) | 4 | * | 1990 | 240.0 |
Sketch
Property Image
Land
| 1 | 6075-1177L | | 0.0000 | 0.00 | 0.00 | 0.00 | 1.00 | $6,450 | $0 |
| 2 | 6075-1165L | | 0.0000 | 0.00 | 0.00 | 0.00 | 2.00 | $200,000 | $0 |
Roll Value History
| 2026 | N/A | N/A | N/A | N/A | N/A |
| 2025 | $256,985 | $206,450 | $0 | $463,435 | $463,435 |
| 2024 | $254,168 | $205,821 | $0 | $459,989 | $459,989 |
| 2023 | $243,118 | $191,020 | $0 | $434,138 | $434,138 |
| 2022 | $243,118 | $186,020 | $0 | $429,138 | $429,138 |
Deed and Sales History
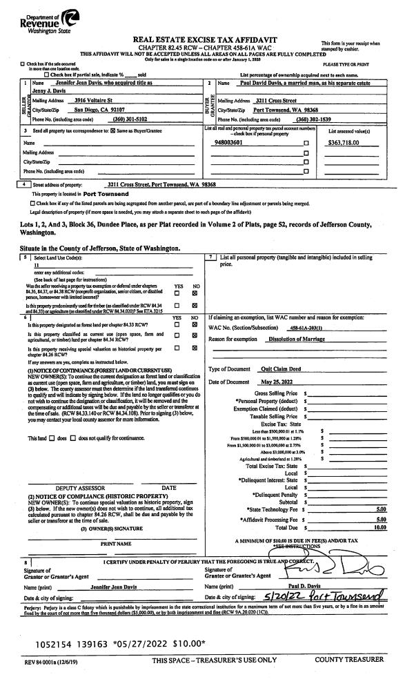
| 1 | 05/25/2022 | QCD | Quit Claim Deed | JENNIFER J DAVIS | PAUL DAVID DAVIS | | | | 139163 | |
| 2 | 01/24/2002 | SWD | Statutory Warranty Deed | SLAY, LARRY M/BONNIE L | DAVIS, PAUL D/JENNY J | 0 | 0 | $129,000.00 | 93902 | 0 |
| 3 | 03/26/1999 | SWD | Statutory Warranty Deed | SMITH, MILTON/GREEN MAXWE | SLAY, LARRY M/BONNIE L | 0 | 0 | $95,000.00 | 86609 | 0 |
Payout Agreement
| No payout information available.. |