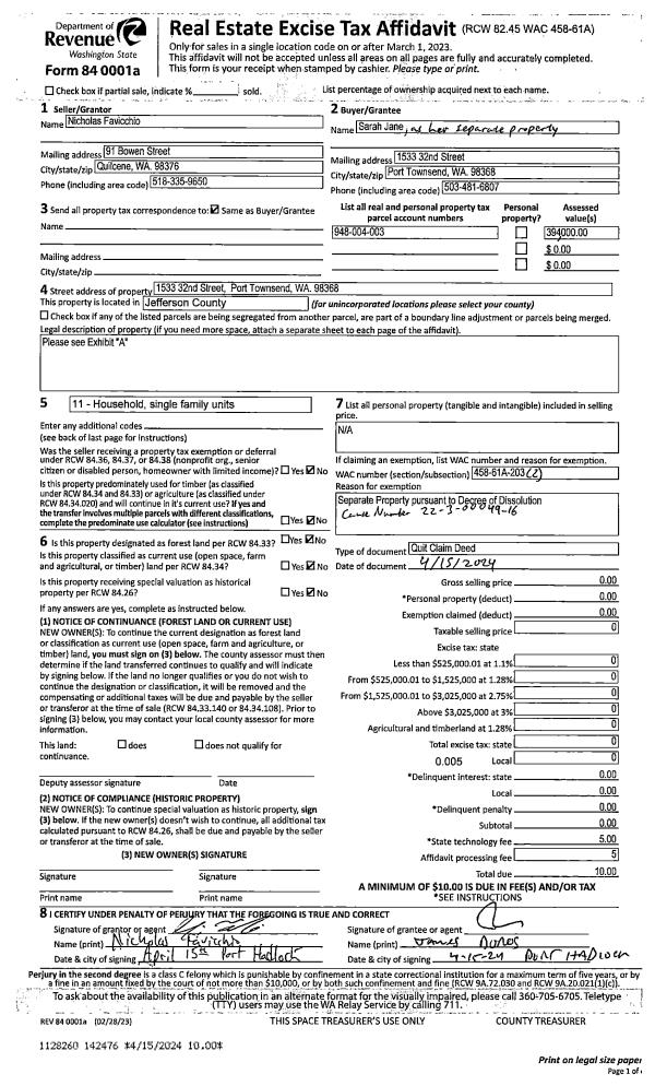
Property
Account |
| Property ID: | 27191 | Abbreviated Legal Description: | DUNDEE PLACE BLK 40 LOT 4(W20'), 5(LS W10'), LS TAX 73 |
| Parcel # / Geo ID: | 948004003 | Agent Code: | |
| Type: | Real | | |
| Tax Area: | 0110 - C-50F1E1H2 | Land Use Code | 11 |
| Open Space: | N | DFL | N |
| Historic Property: | N | Remodel Property: | N |
| Multi-Family Redevelopment: | N | | |
| Township: | 30N | Section: | 3 |
| Range: | 1W |
Location |
| Address: | 1533 32ND ST PORT TOWNSEND, WA 98368 | Mapsco: | 019/032 |
| Neighborhood: | DUNDEE PLATS | Map ID: | |
| Neighborhood CD: | 6075 |
Owner |
| Name: | SARAH JANE | Owner ID: | 110665 |
| Mailing Address: | 1533 32ND ST PORT TOWNSEND, WA 98368-4816 | % Ownership: | 100.0000000000% |
| | | Exemptions: | |
Pay Tax Due
There is currently No Amount Due on this property.
Taxes and Assessment Details
Property Tax Information as of
03/11/2026
Click on "Statement Details" to expand or collapse a tax statement.
* Please enter a valid date ** Please enter a valid date *
Statement Details |
| | TOTAL: | $0.00 | $0.00 | $0.00 | $0.00 | $0.00 | $0.00 |
|
| | $0.00 | $0.00 | $0.00 | $0.00 | $0.00 | $0.00 |
Values
| (+) Improvement Homesite Value: | + | $0 | |
| (+) Improvement Non-Homesite Value: | + | $257,884 | |
| (+) Land Homesite Value: | + | $0 | |
| (+) Land Non-Homesite Value: | + | $126,900 | |
| (+) Curr Use (HS): | + | $0 | $0 |
| (+) Curr Use (NHS): | + | $0 | $0 |
| | | -------------------------- | |
| (=) Market Value: | = | $384,784 | |
| (–) Productivity Loss: | – | $0 | |
| | | -------------------------- | |
| (=) Subtotal: | = | $384,784 | |
| (+) Senior Appraised Value: | + | $0 | |
| (+) Non-Senior Appraised Value: | + | $384,784 | |
| | | -------------------------- | |
| (=) Total Appraised Value: | = | $384,784 | |
| (–) Senior Exemption Loss: | – | $0 | |
| (–) Exemption Loss: | – | $0 | |
| | | -------------------------- | |
| (=) Taxable Value: | = | $384,784 | |
Taxing Jurisdiction
| Owner: | SARAH JANE | | |
| % Ownership: | 100.0000000000% | | |
| Total Value: | $384,784 | | |
| Tax Area: | 0110 - C-50F1E1H2 |
| CE | COUNTY CURRENT EXPENSE | 0.9034619479 | $384,784 | $384,784 | $347.64 | | |
| CNTYDD | DEVELOPMENTAL DISABILITIES | 0.0052121823 | $384,784 | $384,784 | $2.01 | | |
| CNTYVET | VETERANS RELIEF | 0.0052777810 | $384,784 | $384,784 | $2.03 | | |
| MENTAL | MENTAL HEALTH | 0.0052121823 | $384,784 | $384,784 | $2.01 | | |
| PTGEN | CITY OF PT GENERAL | 0.8551967795 | $384,784 | $384,784 | $329.07 | | |
| PTLLL | CITY OF PT - LIBRARY LID LIFT | 0.4010114288 | $384,784 | $384,784 | $154.30 | | |
| PTMVBOND | CITY OF PT MV BOND | 0.0484717981 | $384,784 | $384,784 | $18.65 | | |
| HOSP2CASH | HOSP DIST #2 GENERAL | 0.0536075306 | $384,784 | $384,784 | $20.63 | | |
| SCH50BOND | SCHOOL DIST #50 BOND 2016 | 0.5377451389 | $384,784 | $384,784 | $206.92 | | |
| SCH50CP | SCHOOL DIST #50 CAP PROJ | 0.4573475088 | $384,784 | $384,784 | $175.98 | | |
| SCH50MO | SCHOOL DIST #50 EP & O | 0.8262822886 | $384,784 | $384,784 | $317.94 | | |
| CONSERVE | CONSERVATION FUTURES | 0.0275621078 | $384,784 | $384,784 | $10.61 | | |
| EMS1 | FIRE DIST #1 EMS | 0.4679948282 | $384,784 | $384,784 | $180.08 | | |
| FD1 | FIRE DIST #1 GENERAL | 1.2171942929 | $384,784 | $384,784 | $468.36 | | |
| PORTPT | PORT OF PT GENERAL | 0.1134941229 | $384,784 | $384,784 | $43.67 | | |
| PORTPTIDD | PORT OF PT IDD 2019 | 0.2577346692 | $384,784 | $384,784 | $99.17 | | |
| PUD1 | PUD #1 GENERAL | 0.0597888892 | $384,784 | $384,784 | $23.01 | | |
| STATE | STATE SCHOOL PART 1 | 1.4940692947 | $384,784 | $384,784 | $574.89 | | |
| STATE2 | STATE SCHOOL PART 2 | 0.8050170049 | $384,784 | $384,784 | $309.76 | | |
| | Total Tax Rate: | 8.5416817766 | | | | | |
| | | | | Taxes w/Current Exemptions: | $3,286.73 | | |
| | | | | Taxes w/o Exemptions: | $3,286.73 | | |
Improvement / Building
| Improvement #1: | Residential Bldg | State Code: | 11 | 1120.0 sqft | Value: | $257,884 |
| Bathrooms (#): | 1 (FULL) | Bathrooms (#): | 1 (HALF) | | Bedrooms (#): | 3 | Exterior Wall: | SI/ST | | Fireplace: | WD ST-GOOD | Floor Construction: | FRAME | | Foundation: | CONPR | Heating/Cooling: | ELBB | | Roof Cover: | COMP |   |   |
|
| | Type | Description | Class CD | Sub Class CD | Year Built | Area |
| | MA | Main Area | 4- | 2S | 1981 | 560.0 |
| | MA2 | Second Floor Main Area | 4- | 2S | 1981 | 560.0 |
| | HWPOR | House Wood Porch | 3 | * | 1981 | 102.0 |
| | HCPOR | House Concrete Porch | 3 | * | 1981 | 48.0 |
| | GATT | House Attached Garage | 4 | 2S | 1981 | 264.0 |
| | CONCD | Concrete Drive | 3 | * | 1981 | 230.0 |
Sketch
Property Image
Land
| 1 | 6075-1165L | Fair Wtr/Terr View Lots w Access/Utilities Nearby | 0.0000 | 0.00 | 0.00 | 0.00 | 1.00 | $126,900 | $0 |
Roll Value History
| 2026 | N/A | N/A | N/A | N/A | N/A |
| 2025 | $257,884 | $126,900 | $0 | $384,784 | $384,784 |
| 2024 | $246,765 | $127,260 | $0 | $374,025 | $374,025 |
| 2023 | $236,036 | $116,200 | $0 | $352,236 | $352,236 |
| 2022 | $236,036 | $111,200 | $0 | $347,236 | $347,236 |
Deed and Sales History
| 1 | 04/15/2024 | QCD | Quit Claim Deed | NICHOLAS FAVICCHIO | SARAH JANE | | | | 142476 | |
| 2 | 11/05/2015 | SWD | Statutory Warranty Deed | LUKE CHERNEY | NICHOLAS FAVICCHIO & SARAH JANE | | | $219,750.00 | 124370 | |
| 3 | 05/05/2005 | SWD | Statutory Warranty Deed | HOFFMAN, DIANA M | CHERNEY, LUKE & AUDREY | | | $175,000.00 | 103521 | 0 |
Payout Agreement
| No payout information available.. |