Property
Account |
| Property ID: | 27241 | Abbreviated Legal Description: | EDGEWATER UNIT 5 |
| Parcel # / Geo ID: | 948100005 | Agent Code: | |
| Type: | Real | | |
| Tax Area: | 0110 - C-50F1E1H2 | Land Use Code | 14 |
| Open Space: | N | DFL | N |
| Historic Property: | N | Remodel Property: | N |
| Multi-Family Redevelopment: | N | | |
| Township: | 30N | Section: | 11 |
| Range: | 1W |
Location |
| Address: | 2137 WASHINGTON ST #05 PORT TOWNSEND, WA 98368 | Mapsco: | 020/063 |
| Neighborhood: | CYCLE 6 CONDOMINIUMS - PORT TOWNSEND | Map ID: | |
| Neighborhood CD: | 6900 |
Owner |
| Name: | GREGORY J & RIAN M STUPICA | Owner ID: | 111337 |
| Mailing Address: | 140 3RD ST PORT HADLOCK, WA 98339-9503 | % Ownership: | 100.0000000000% |
| | | Exemptions: | |
Pay Tax Due
Select the appropriate checkbox next to the year to be paid. Multiple years may be selected.
*Convenience Fee not included
Taxes and Assessment Details
Property Tax Information as of
03/10/2026
Click on "Statement Details" to expand or collapse a tax statement.
* Please enter a valid date ** Please enter a valid date *
Statement Details |
| 2026 | 16606 | STATE - STATE LEVY (SCHOOL) | $431.88 | $431.87 | $0.00 | $0.00 | $0.00 | $863.75 |
| 2026 | 16606 | COUNTY - COUNTY LEVIES (CE, DD, VET, MH) | $172.67 | $172.66 | $0.00 | $0.00 | $0.00 | $345.33 |
| 2026 | 16606 | CONSERVE - CONSERVATION FUTURES | $5.18 | $5.17 | $0.00 | $0.00 | $0.00 | $10.35 |
| 2026 | 16606 | CITYPT - CITY OF PT | $245.09 | $245.07 | $0.00 | $0.00 | $0.00 | $490.16 |
| 2026 | 16606 | PORTPT - PORT DISTRICT | $69.74 | $69.73 | $0.00 | $0.00 | $0.00 | $139.47 |
| 2026 | 16606 | PUD1 - PUD #1 | $11.23 | $11.23 | $0.00 | $0.00 | $0.00 | $22.46 |
| 2026 | 16606 | HD2 - HOSP DIST #2 | $10.07 | $10.07 | $0.00 | $0.00 | $0.00 | $20.14 |
| 2026 | 16606 | SD50 - SCHOOL DIST #50 | $342.15 | $342.13 | $0.00 | $0.00 | $0.00 | $684.28 |
| 2026 | 16606 | FD1 - FIRE DISTRICT #1 | $228.65 | $228.64 | $0.00 | $0.00 | $0.00 | $457.29 |
| 2026 | 16606 | EMS1 - FIRE DIST #1 EMS | $87.91 | $87.91 | $0.00 | $0.00 | $0.00 | $175.82 |
| 2026 | 16606 | JCCD - JC Conservation District | $2.55 | $2.55 | $0.00 | $0.00 | $0.00 | $5.10 |
| 2026 | 16606 | NWA - Noxious Weed Assessment | $2.98 | $2.97 | $0.00 | $0.00 | $0.00 | $5.95 |
| 2026 | 16606 | TOTAL: | $1610.10 | $1610.00 | $0.00 | $0.00 | $0.00 | $3220.10 |
|
| 2026 | 16606 | $1610.10 | $1610.00 | $0.00 | $0.00 | $0.00 | $3220.10 |
Statement Details |
| 2025 | 16660 | STATE - STATE LEVY (SCHOOL) | $428.88 | $428.88 | $0.00 | $0.00 | $857.76 | $0.00 |
| 2025 | 16660 | COUNTY - COUNTY LEVIES (CE, DD, VET, MH) | $168.67 | $168.64 | $0.00 | $0.00 | $337.31 | $0.00 |
| 2025 | 16660 | CONSERVE - CONSERVATION FUTURES | $5.06 | $5.05 | $0.00 | $0.00 | $10.11 | $0.00 |
| 2025 | 16660 | CITYPT - CITY OF PT | $243.22 | $243.22 | $0.00 | $0.00 | $486.44 | $0.00 |
| 2025 | 16660 | PORTPT - PORT DISTRICT | $68.83 | $68.81 | $0.00 | $0.00 | $137.64 | $0.00 |
| 2025 | 16660 | PUD1 - PUD #1 | $11.04 | $11.03 | $0.00 | $0.00 | $22.07 | $0.00 |
| 2025 | 16660 | HD2 - HOSP DIST #2 | $9.84 | $9.84 | $0.00 | $0.00 | $19.68 | $0.00 |
| 2025 | 16660 | SD50 - SCHOOL DIST #50 | $313.45 | $313.43 | $0.00 | $0.00 | $626.88 | $0.00 |
| 2025 | 16660 | FD1 - FIRE DISTRICT #1 | $222.56 | $222.56 | $0.00 | $0.00 | $445.12 | $0.00 |
| 2025 | 16660 | EMS1 - FIRE DIST #1 EMS | $85.60 | $85.60 | $0.00 | $0.00 | $171.20 | $0.00 |
| 2025 | 16660 | JCCD - JC Conservation District | $2.55 | $2.55 | $0.00 | $0.00 | $5.10 | $0.00 |
| 2025 | 16660 | NWA - Noxious Weed Assessment | $2.15 | $2.15 | $0.00 | $0.00 | $4.30 | $0.00 |
| 2025 | 16660 | TOTAL: | $1561.85 | $1561.76 | $0.00 | $0.00 | $3123.61 | $0.00 |
|
| 2025 | 16660 | $1561.85 | $1561.76 | $0.00 | $0.00 | $3123.61 | $0.00 |
Statement Details |
| 2024 | 16694 | STATE - STATE LEVY (SCHOOL) | $370.79 | $370.77 | $0.00 | $0.00 | $741.56 | $0.00 |
| 2024 | 16694 | COUNTY - COUNTY LEVIES (CE, DD, VET, MH) | $158.67 | $158.64 | $0.00 | $0.00 | $317.31 | $0.00 |
| 2024 | 16694 | CONSERVE - CONSERVATION FUTURES | $4.76 | $4.76 | $0.00 | $0.00 | $9.52 | $0.00 |
| 2024 | 16694 | CITYPT - CITY OF PT | $226.71 | $226.69 | $0.00 | $0.00 | $453.40 | $0.00 |
| 2024 | 16694 | PORTPT - PORT DISTRICT | $65.53 | $65.53 | $0.00 | $0.00 | $131.06 | $0.00 |
| 2024 | 16694 | PUD1 - PUD #1 | $10.42 | $10.42 | $0.00 | $0.00 | $20.84 | $0.00 |
| 2024 | 16694 | HD2 - HOSP DIST #2 | $9.26 | $9.25 | $0.00 | $0.00 | $18.51 | $0.00 |
| 2024 | 16694 | SD50 - SCHOOL DIST #50 | $299.98 | $299.97 | $0.00 | $0.00 | $599.95 | $0.00 |
| 2024 | 16694 | FD1 - FIRE DISTRICT #1 | $209.79 | $209.78 | $0.00 | $0.00 | $419.57 | $0.00 |
| 2024 | 16694 | EMS1 - FIRE DIST #1 EMS | $80.13 | $80.13 | $0.00 | $0.00 | $160.26 | $0.00 |
| 2024 | 16694 | JCCD - JC Conservation District | $2.55 | $2.55 | $0.00 | $0.00 | $5.10 | $0.00 |
| 2024 | 16694 | NWA - Noxious Weed Assessment | $2.15 | $2.15 | $0.00 | $0.00 | $4.30 | $0.00 |
| 2024 | 16694 | TOTAL: | $1440.74 | $1440.64 | $0.00 | $0.00 | $2881.38 | $0.00 |
|
| 2024 | 16694 | $1440.74 | $1440.64 | $0.00 | $0.00 | $2881.38 | $0.00 |
Statement Details |
| 2023 | 16718 | STATE - STATE LEVY (SCHOOL) | $321.21 | $321.20 | $0.00 | $0.00 | $642.41 | $0.00 |
| 2023 | 16718 | COUNTY - COUNTY LEVIES (CE, DD, VET, MH) | $140.18 | $140.14 | $0.00 | $0.00 | $280.32 | $0.00 |
| 2023 | 16718 | CONSERVE - CONSERVATION FUTURES | $4.21 | $4.20 | $0.00 | $0.00 | $8.41 | $0.00 |
| 2023 | 16718 | CITYPT - CITY OF PT | $198.10 | $198.10 | $0.00 | $0.00 | $396.20 | $0.00 |
| 2023 | 16718 | PORTPT - PORT DISTRICT | $59.05 | $59.03 | $0.00 | $0.00 | $118.08 | $0.00 |
| 2023 | 16718 | PUD1 - PUD #1 | $9.29 | $9.29 | $0.00 | $0.00 | $18.58 | $0.00 |
| 2023 | 16718 | HD2 - HOSP DIST #2 | $8.19 | $8.17 | $0.00 | $0.00 | $16.36 | $0.00 |
| 2023 | 16718 | SD50 - SCHOOL DIST #50 | $254.89 | $254.87 | $0.00 | $0.00 | $509.76 | $0.00 |
| 2023 | 16718 | FD1 - FIRE DISTRICT #1 | $115.47 | $115.46 | $0.00 | $0.00 | $230.93 | $0.00 |
| 2023 | 16718 | EMS1 - FIRE DIST #1 EMS | $49.12 | $49.11 | $0.00 | $0.00 | $98.23 | $0.00 |
| 2023 | 16718 | JCCD - JC Conservation District | $2.55 | $2.55 | $0.00 | $0.00 | $5.10 | $0.00 |
| 2023 | 16718 | NWA - Noxious Weed Assessment | $2.15 | $2.15 | $0.00 | $0.00 | $4.30 | $0.00 |
| 2023 | 16718 | TOTAL: | $1164.41 | $1164.27 | $0.00 | $0.00 | $2328.68 | $0.00 |
|
| 2023 | 16718 | $1164.41 | $1164.27 | $0.00 | $0.00 | $2328.68 | $0.00 |
Values
| (+) Improvement Homesite Value: | + | $0 | |
| (+) Improvement Non-Homesite Value: | + | $240,695 | |
| (+) Land Homesite Value: | + | $0 | |
| (+) Land Non-Homesite Value: | + | $135,000 | |
| (+) Curr Use (HS): | + | $0 | $0 |
| (+) Curr Use (NHS): | + | $0 | $0 |
| | | -------------------------- | |
| (=) Market Value: | = | $375,695 | |
| (–) Productivity Loss: | – | $0 | |
| | | -------------------------- | |
| (=) Subtotal: | = | $375,695 | |
| (+) Senior Appraised Value: | + | $0 | |
| (+) Non-Senior Appraised Value: | + | $375,695 | |
| | | -------------------------- | |
| (=) Total Appraised Value: | = | $375,695 | |
| (–) Senior Exemption Loss: | – | $0 | |
| (–) Exemption Loss: | – | $0 | |
| | | -------------------------- | |
| (=) Taxable Value: | = | $375,695 | |
Taxing Jurisdiction
| Owner: | GREGORY J & RIAN M STUPICA | | |
| % Ownership: | 100.0000000000% | | |
| Total Value: | $375,695 | | |
| Tax Area: | 0110 - C-50F1E1H2 |
| CE | COUNTY CURRENT EXPENSE | 0.9034619479 | $375,695 | $375,695 | $339.43 | | |
| CNTYDD | DEVELOPMENTAL DISABILITIES | 0.0052121823 | $375,695 | $375,695 | $1.96 | | |
| CNTYVET | VETERANS RELIEF | 0.0052777810 | $375,695 | $375,695 | $1.98 | | |
| MENTAL | MENTAL HEALTH | 0.0052121823 | $375,695 | $375,695 | $1.96 | | |
| PTGEN | CITY OF PT GENERAL | 0.8551967795 | $375,695 | $375,695 | $321.29 | | |
| PTLLL | CITY OF PT - LIBRARY LID LIFT | 0.4010114288 | $375,695 | $375,695 | $150.66 | | |
| PTMVBOND | CITY OF PT MV BOND | 0.0484717981 | $375,695 | $375,695 | $18.21 | | |
| HOSP2CASH | HOSP DIST #2 GENERAL | 0.0536075306 | $375,695 | $375,695 | $20.14 | | |
| SCH50BOND | SCHOOL DIST #50 BOND 2016 | 0.5377451389 | $375,695 | $375,695 | $202.03 | | |
| SCH50CP | SCHOOL DIST #50 CAP PROJ | 0.4573475088 | $375,695 | $375,695 | $171.82 | | |
| SCH50MO | SCHOOL DIST #50 EP & O | 0.8262822886 | $375,695 | $375,695 | $310.43 | | |
| CONSERVE | CONSERVATION FUTURES | 0.0275621078 | $375,695 | $375,695 | $10.35 | | |
| EMS1 | FIRE DIST #1 EMS | 0.4679948282 | $375,695 | $375,695 | $175.82 | | |
| FD1 | FIRE DIST #1 GENERAL | 1.2171942929 | $375,695 | $375,695 | $457.29 | | |
| PORTPT | PORT OF PT GENERAL | 0.1134941229 | $375,695 | $375,695 | $42.64 | | |
| PORTPTIDD | PORT OF PT IDD 2019 | 0.2577346692 | $375,695 | $375,695 | $96.83 | | |
| PUD1 | PUD #1 GENERAL | 0.0597888892 | $375,695 | $375,695 | $22.46 | | |
| STATE | STATE SCHOOL PART 1 | 1.4940692947 | $375,695 | $375,695 | $561.31 | | |
| STATE2 | STATE SCHOOL PART 2 | 0.8050170049 | $375,695 | $375,695 | $302.44 | | |
| | Total Tax Rate: | 8.5416817766 | | | | | |
| | | | | Taxes w/Current Exemptions: | $3,209.05 | | |
| | | | | Taxes w/o Exemptions: | $3,209.05 | | |
Improvement / Building
| Improvement #1: | Residential Bldg | State Code: | 14 | 805.0 sqft | Value: | $240,695 |
Sketch
| No sketches available for this property. |
Property Image
Land
| 1 | 9481-4113S | | 0.0000 | 0.00 | 0.00 | 0.00 | 1.00 | $135,000 | $0 |
Roll Value History
| 2026 | N/A | N/A | N/A | N/A | N/A |
| 2025 | $240,695 | $135,000 | $0 | $375,695 | $375,695 |
| 2024 | $240,695 | $117,000 | $0 | $357,695 | $357,695 |
| 2023 | $212,520 | $108,000 | $0 | $320,520 | $320,520 |
| 2022 | $173,880 | $99,000 | $0 | $272,880 | $272,880 |
Deed and Sales History
| 1 | 08/23/2024 | QCD | Quit Claim Deed | RIAN N MARSH | GREGORY J & RIAN M STUPICA | | | | 143139 | |
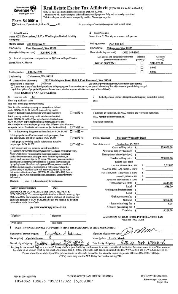
| 2 | 09/15/2022 | SWD | Statutory Warranty Deed | KCH ENTERPRISES LLC | RIAN N MARSH | | | $329,000.00 | 139825 | |
| 3 | 08/30/2006 | SWD | Statutory Warranty Deed | BLOEMKER, WILLIAM & KAREN | KCH ENTERPRISES LLC | 0 | 0 | $235,000.00 | 107525 | 0 |
| 4 | 09/01/1995 | SWD | Statutory Warranty Deed | ESTATE OF IRENE STANCIK D | BLOEMKER, WILLIAM & KAREN | 0 | 0 | $75,000.00 | 77741 | 0 |
| 5 | 03/13/1992 | SWD | Statutory Warranty Deed | THE J. JAMES JOHNSON FAMI | STANCIK, IRENE J | 0 | 0 | $75,750.00 | 67923 | 0 |
Payout Agreement
| No payout information available.. |