Property
Account |
| Property ID: | 27257 | Abbreviated Legal Description: | EDGEWOOD VILLAGE LOT 3 |
| Parcel # / Geo ID: | 948200003 | Agent Code: | |
| Type: | Real | | |
| Tax Area: | 0213 - 1-49F1E1H2L1 | Land Use Code | 11 |
| Open Space: | N | DFL | N |
| Historic Property: | N | Remodel Property: | N |
| Multi-Family Redevelopment: | N | | |
| Township: | 28N | Section: | 20 |
| Range: | 1E |
Location |
| Address: | 142 EDGEWOOD DR PORT LUDLOW, WA 98365 | Mapsco: | 023/003 |
| Neighborhood: | SOUTH BAY 1, 2, & 3; EDGEWOOD AND GREENVIEW VILLAGES | Map ID: | |
| Neighborhood CD: | 3355 |
Owner |
| Name: | KULM TRUST AGREEMENT | Owner ID: | 109397 |
| Mailing Address: | GALE B & MARGARET M KULM TRUSTEES 142 EDGEWOOD DR PORT LUDLOW, WA 98365-9220 | % Ownership: | 100.0000000000% |
| | | Exemptions: | |
Pay Tax Due
There is currently No Amount Due on this property.
Taxes and Assessment Details
Property Tax Information as of
03/11/2026
Click on "Statement Details" to expand or collapse a tax statement.
* Please enter a valid date ** Please enter a valid date *
Statement Details |
| 2026 | 16622 | STATE - STATE LEVY (SCHOOL) | $992.92 | $992.90 | $0.00 | $0.00 | $1985.82 | $0.00 |
| 2026 | 16622 | COUNTY - COUNTY LEVIES (CE, DD, VET, MH) | $396.96 | $396.96 | $0.00 | $0.00 | $793.92 | $0.00 |
| 2026 | 16622 | CONSERVE - CONSERVATION FUTURES | $11.91 | $11.90 | $0.00 | $0.00 | $23.81 | $0.00 |
| 2026 | 16622 | COROADS - COUNTY ROADS (ROADS, DIV TO CE) | $320.24 | $320.23 | $0.00 | $0.00 | $640.47 | $0.00 |
| 2026 | 16622 | PORTPT - PORT DISTRICT | $160.33 | $160.32 | $0.00 | $0.00 | $320.65 | $0.00 |
| 2026 | 16622 | PUD1 - PUD #1 | $25.82 | $25.82 | $0.00 | $0.00 | $51.64 | $0.00 |
| 2026 | 16622 | LIB1 - LIBRARY DIST #1 | $123.90 | $123.89 | $0.00 | $0.00 | $247.79 | $0.00 |
| 2026 | 16622 | HD2 - HOSP DIST #2 | $23.15 | $23.15 | $0.00 | $0.00 | $46.30 | $0.00 |
| 2026 | 16622 | SD49 - SCHOOL DIST #49 | $546.57 | $546.55 | $0.00 | $0.00 | $1093.12 | $0.00 |
| 2026 | 16622 | FD1 - FIRE DISTRICT #1 | $525.68 | $525.67 | $0.00 | $0.00 | $1051.35 | $0.00 |
| 2026 | 16622 | EMS1 - FIRE DIST #1 EMS | $202.12 | $202.11 | $0.00 | $0.00 | $404.23 | $0.00 |
| 2026 | 16622 | JCCD - JC Conservation District | $2.55 | $2.55 | $0.00 | $0.00 | $5.10 | $0.00 |
| 2026 | 16622 | NWA - Noxious Weed Assessment | $2.98 | $2.97 | $0.00 | $0.00 | $5.95 | $0.00 |
| 2026 | 16622 | TOTAL: | $3335.13 | $3335.02 | $0.00 | $0.00 | $6670.15 | $0.00 |
|
| 2026 | 16622 | $3335.13 | $3335.02 | $0.00 | $0.00 | $6670.15 | $0.00 |
Statement Details |
| 2025 | 16676 | STATE - STATE LEVY (SCHOOL) | $1035.65 | $1035.64 | $0.00 | $0.00 | $2071.29 | $0.00 |
| 2025 | 16676 | COUNTY - COUNTY LEVIES (CE, DD, VET, MH) | $407.28 | $407.25 | $0.00 | $0.00 | $814.53 | $0.00 |
| 2025 | 16676 | CONSERVE - CONSERVATION FUTURES | $12.21 | $12.21 | $0.00 | $0.00 | $24.42 | $0.00 |
| 2025 | 16676 | COROADS - COUNTY ROADS (ROADS, DIV TO CE) | $326.29 | $326.27 | $0.00 | $0.00 | $652.56 | $0.00 |
| 2025 | 16676 | PORTPT - PORT DISTRICT | $166.19 | $166.18 | $0.00 | $0.00 | $332.37 | $0.00 |
| 2025 | 16676 | PUD1 - PUD #1 | $26.65 | $26.65 | $0.00 | $0.00 | $53.30 | $0.00 |
| 2025 | 16676 | LIB1 - LIBRARY DIST #1 | $126.24 | $126.23 | $0.00 | $0.00 | $252.47 | $0.00 |
| 2025 | 16676 | HD2 - HOSP DIST #2 | $23.76 | $23.76 | $0.00 | $0.00 | $47.52 | $0.00 |
| 2025 | 16676 | SD49 - SCHOOL DIST #49 | $555.05 | $555.03 | $0.00 | $0.00 | $1110.08 | $0.00 |
| 2025 | 16676 | FD1 - FIRE DISTRICT #1 | $537.43 | $537.42 | $0.00 | $0.00 | $1074.85 | $0.00 |
| 2025 | 16676 | EMS1 - FIRE DIST #1 EMS | $206.71 | $206.71 | $0.00 | $0.00 | $413.42 | $0.00 |
| 2025 | 16676 | JCCD - JC Conservation District | $2.55 | $2.55 | $0.00 | $0.00 | $5.10 | $0.00 |
| 2025 | 16676 | NWA - Noxious Weed Assessment | $2.15 | $2.15 | $0.00 | $0.00 | $4.30 | $0.00 |
| 2025 | 16676 | TOTAL: | $3428.16 | $3428.05 | $0.00 | $0.00 | $6856.21 | $0.00 |
|
| 2025 | 16676 | $3428.16 | $3428.05 | $0.00 | $0.00 | $6856.21 | $0.00 |
Statement Details |
| 2024 | 16710 | STATE - STATE LEVY (SCHOOL) | $993.40 | $993.39 | $0.00 | $0.00 | $1986.79 | $0.00 |
| 2024 | 16710 | COUNTY - COUNTY LEVIES (CE, DD, VET, MH) | $425.09 | $425.08 | $0.00 | $0.00 | $850.17 | $0.00 |
| 2024 | 16710 | CONSERVE - CONSERVATION FUTURES | $12.75 | $12.74 | $0.00 | $0.00 | $25.49 | $0.00 |
| 2024 | 16710 | COROADS - COUNTY ROADS (ROADS, DIV TO CE) | $342.05 | $342.05 | $0.00 | $0.00 | $684.10 | $0.00 |
| 2024 | 16710 | PORTPT - PORT DISTRICT | $175.58 | $175.57 | $0.00 | $0.00 | $351.15 | $0.00 |
| 2024 | 16710 | PUD1 - PUD #1 | $27.92 | $27.92 | $0.00 | $0.00 | $55.84 | $0.00 |
| 2024 | 16710 | LIB1 - LIBRARY DIST #1 | $132.34 | $132.33 | $0.00 | $0.00 | $264.67 | $0.00 |
| 2024 | 16710 | HD2 - HOSP DIST #2 | $24.81 | $24.80 | $0.00 | $0.00 | $49.61 | $0.00 |
| 2024 | 16710 | SD49 - SCHOOL DIST #49 | $443.61 | $443.59 | $0.00 | $0.00 | $887.20 | $0.00 |
| 2024 | 16710 | FD1 - FIRE DISTRICT #1 | $562.06 | $562.06 | $0.00 | $0.00 | $1124.12 | $0.00 |
| 2024 | 16710 | EMS1 - FIRE DIST #1 EMS | $214.69 | $214.68 | $0.00 | $0.00 | $429.37 | $0.00 |
| 2024 | 16710 | JCCD - JC Conservation District | $2.55 | $2.55 | $0.00 | $0.00 | $5.10 | $0.00 |
| 2024 | 16710 | NWA - Noxious Weed Assessment | $2.15 | $2.15 | $0.00 | $0.00 | $4.30 | $0.00 |
| 2024 | 16710 | TOTAL: | $3359.00 | $3358.91 | $0.00 | $0.00 | $6717.91 | $0.00 |
|
| 2024 | 16710 | $3359.00 | $3358.91 | $0.00 | $0.00 | $6717.91 | $0.00 |
Statement Details |
| 2023 | 16734 | STATE - STATE LEVY (SCHOOL) | $1004.93 | $1004.92 | $0.00 | $0.00 | $2009.85 | $0.00 |
| 2023 | 16734 | COUNTY - COUNTY LEVIES (CE, DD, VET, MH) | $438.52 | $438.52 | $0.00 | $0.00 | $877.04 | $0.00 |
| 2023 | 16734 | CONSERVE - CONSERVATION FUTURES | $13.15 | $13.15 | $0.00 | $0.00 | $26.30 | $0.00 |
| 2023 | 16734 | COROADS - COUNTY ROADS (ROADS, DIV TO CE) | $354.80 | $354.79 | $0.00 | $0.00 | $709.59 | $0.00 |
| 2023 | 16734 | PORTPT - PORT DISTRICT | $184.73 | $184.72 | $0.00 | $0.00 | $369.45 | $0.00 |
| 2023 | 16734 | PUD1 - PUD #1 | $29.07 | $29.07 | $0.00 | $0.00 | $58.14 | $0.00 |
| 2023 | 16734 | LIB1 - LIBRARY DIST #1 | $137.27 | $137.26 | $0.00 | $0.00 | $274.53 | $0.00 |
| 2023 | 16734 | HD2 - HOSP DIST #2 | $25.60 | $25.58 | $0.00 | $0.00 | $51.18 | $0.00 |
| 2023 | 16734 | SD49 - SCHOOL DIST #49 | $469.75 | $469.75 | $0.00 | $0.00 | $939.50 | $0.00 |
| 2023 | 16734 | FD3 - FIRE DISTRICT #3 | $436.27 | $436.26 | $0.00 | $0.00 | $872.53 | $0.00 |
| 2023 | 16734 | EMS3 - FIRE DIST #3 EMS | $155.97 | $155.96 | $0.00 | $0.00 | $311.93 | $0.00 |
| 2023 | 16734 | JCCD - JC Conservation District | $2.55 | $2.55 | $0.00 | $0.00 | $5.10 | $0.00 |
| 2023 | 16734 | NWA - Noxious Weed Assessment | $2.15 | $2.15 | $0.00 | $0.00 | $4.30 | $0.00 |
| 2023 | 16734 | TOTAL: | $3254.76 | $3254.68 | $0.00 | $0.00 | $6509.44 | $0.00 |
|
| 2023 | 16734 | $3254.76 | $3254.68 | $0.00 | $0.00 | $6509.44 | $0.00 |
Values
| (+) Improvement Homesite Value: | + | $0 | |
| (+) Improvement Non-Homesite Value: | + | $707,995 | |
| (+) Land Homesite Value: | + | $0 | |
| (+) Land Non-Homesite Value: | + | $155,750 | |
| (+) Curr Use (HS): | + | $0 | $0 |
| (+) Curr Use (NHS): | + | $0 | $0 |
| | | -------------------------- | |
| (=) Market Value: | = | $863,745 | |
| (–) Productivity Loss: | – | $0 | |
| | | -------------------------- | |
| (=) Subtotal: | = | $863,745 | |
| (+) Senior Appraised Value: | + | $0 | |
| (+) Non-Senior Appraised Value: | + | $863,745 | |
| | | -------------------------- | |
| (=) Total Appraised Value: | = | $863,745 | |
| (–) Senior Exemption Loss: | – | $0 | |
| (–) Exemption Loss: | – | $0 | |
| | | -------------------------- | |
| (=) Taxable Value: | = | $863,745 | |
Taxing Jurisdiction
| Owner: | KULM TRUST AGREEMENT | | |
| % Ownership: | 100.0000000000% | | |
| Total Value: | $863,745 | | |
| Tax Area: | 0213 - 1-49F1E1H2L1 |
| CE | COUNTY CURRENT EXPENSE | 0.9034619479 | $863,745 | $863,745 | $780.36 | | |
| CNTYDD | DEVELOPMENTAL DISABILITIES | 0.0052121823 | $863,745 | $863,745 | $4.50 | | |
| CNTYVET | VETERANS RELIEF | 0.0052777810 | $863,745 | $863,745 | $4.56 | | |
| MENTAL | MENTAL HEALTH | 0.0052121823 | $863,745 | $863,745 | $4.50 | | |
| ROADS | COUNTY ROADS | 0.7415066410 | $863,745 | $863,745 | $640.47 | | |
| ROADSCU | COUNTY ROADS TO CUR EXP | 0.0000000000 | $863,745 | $863,745 | $0.00 | | |
| HOSP2CASH | HOSP DIST #2 GENERAL | 0.0536075306 | $863,745 | $863,745 | $46.30 | | |
| SCH49CP | SCHOOL DIST #49 CAP PROJ | 0.6279093905 | $863,745 | $863,745 | $542.35 | | |
| SCH49MO | SCHOOL DIST #49 EP & O | 0.6376483602 | $863,745 | $863,745 | $550.77 | | |
| CONSERVE | CONSERVATION FUTURES | 0.0275621078 | $863,745 | $863,745 | $23.81 | | |
| EMS1 | FIRE DIST #1 EMS | 0.4679948282 | $863,745 | $863,745 | $404.23 | | |
| FD1 | FIRE DIST #1 GENERAL | 1.2171942929 | $863,745 | $863,745 | $1,051.35 | | |
| LIB1 | LIBRARY DIST #1 GENERAL | 0.2868827388 | $863,745 | $863,745 | $247.79 | | |
| PORTPT | PORT OF PT GENERAL | 0.1134941229 | $863,745 | $863,745 | $98.03 | | |
| PORTPTIDD | PORT OF PT IDD 2019 | 0.2577346692 | $863,745 | $863,745 | $222.62 | | |
| PUD1 | PUD #1 GENERAL | 0.0597888892 | $863,745 | $863,745 | $51.64 | | |
| STATE | STATE SCHOOL PART 1 | 1.4940692947 | $863,745 | $863,745 | $1,290.49 | | |
| STATE2 | STATE SCHOOL PART 2 | 0.8050170049 | $863,745 | $863,745 | $695.33 | | |
| | Total Tax Rate: | 7.7095739644 | | | | | |
| | | | | Taxes w/Current Exemptions: | $6,659.10 | | |
| | | | | Taxes w/o Exemptions: | $6,659.10 | | |
Improvement / Building
| Improvement #1: | Residential Bldg | State Code: | 11 | 2412.0 sqft | Value: | $707,995 |
| Bathrooms (#): | 3 (FULL) | Bedrooms (#): | 3 | | Exterior Wall: | SI/ST | Fireplace: | SIN 1-GOOD | | Floor Construction: | FRAME | Foundation: | CONPR | | Heating/Cooling: | HPUMP | Inside Verify: | NO | | Roof Cover: | COMP |   |   |
|
| | Type | Description | Class CD | Sub Class CD | Year Built | Area |
| | MA | Main Area | 4 | 1S | 2001 | 2412.0 |
| | PATIO | House Patio | 4 | 1S | 2001 | 96.0 |
| | HBAL | House Balcony | 4 | 1S | 2001 | 575.0 |
| | HCPOR | House Concrete Porch | 4 | 1S | 2001 | 102.0 |
| | HDECK | House Deck | 4 | 1S | 2001 | 248.0 |
| | GBSMT | Basement Garage | 4 | 1S | 2001 | 1044.0 |
| | BSMTF | House basement finished | 4 | 1S | 2001 | 1464.6 |
| | HWPOR | House Wood Porch | 4 | 1S | 2001 | 50.0 |
| | CONCD | Concrete Drive | 4 | 1S | 2001 | 1750.0 |
| | BSMTU | House basement unfinished | 4 | 1S | 2001 | 258.5 |
Sketch
Property Image
Land
| 1 | 3355-1145L | | 0.0000 | 0.00 | 0.00 | 0.00 | 1.00 | $155,750 | $0 |
Roll Value History
| 2026 | N/A | N/A | N/A | N/A | N/A |
| 2025 | $707,995 | $155,750 | $0 | $863,745 | $863,745 |
| 2024 | $707,995 | $155,750 | $0 | $863,745 | $863,745 |
| 2023 | $707,995 | $150,750 | $0 | $858,745 | $858,745 |
| 2022 | $707,995 | $145,750 | $0 | $853,745 | $853,745 |
Deed and Sales History
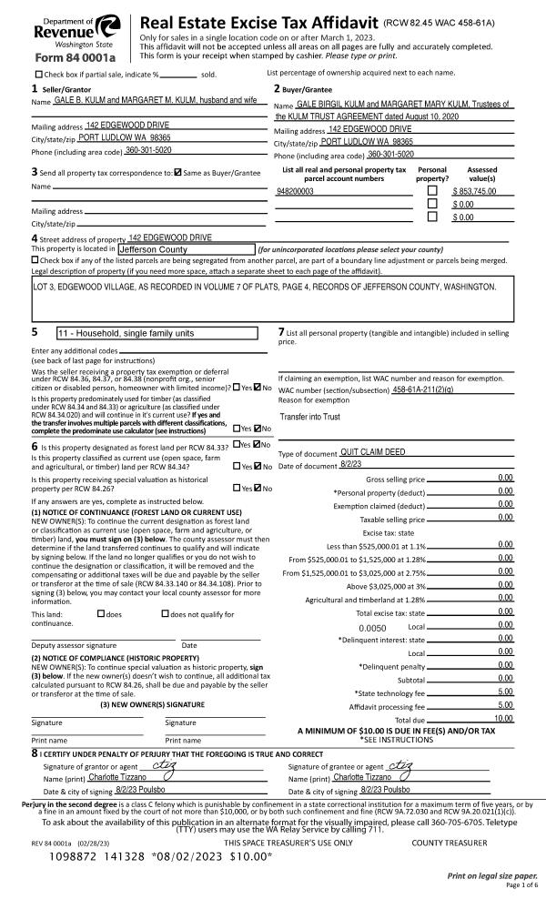
| 1 | 08/02/2023 | QCD | Quit Claim Deed | GALE B KULM | KULM TRUST AGREEMENT | | | | 141328 | |
| 2 | 10/22/1998 | SWD | Statutory Warranty Deed | LANDER CUSTOM DESIGNED HO | KULM, GALE B/MARGARET M | 0 | 0 | $87,000.00 | 85593 | 0 |
| 3 | 02/26/1998 | SWD | Statutory Warranty Deed | POPE RESOURCES | LANDER CUSTOM DESIGNED HOMES | 0 | 0 | $45,000.00 | 83898 | 0 |
Payout Agreement
| No payout information available.. |