Property
Account |
| Property ID: | 27269 | Abbreviated Legal Description: | EDGEWOOD VILLAGE LOT 15 |
| Parcel # / Geo ID: | 948200015 | Agent Code: | |
| Type: | Real | | |
| Tax Area: | 0213 - 1-49F1E1H2L1 | Land Use Code | 11 |
| Open Space: | N | DFL | N |
| Historic Property: | N | Remodel Property: | N |
| Multi-Family Redevelopment: | N | | |
| Township: | 28N | Section: | 20 |
| Range: | 1E |
Location |
| Address: | 103 EDGEWOOD DR PORT LUDLOW, WA 98365 | Mapsco: | 023/015 |
| Neighborhood: | SOUTH BAY 1, 2, & 3; EDGEWOOD AND GREENVIEW VILLAGES | Map ID: | |
| Neighborhood CD: | 3355 |
Owner |
| Name: | DOUGLAS & JOAN SCHWARTZ | Owner ID: | 98675 |
| Mailing Address: | 103 EDGEWOOD DR PORT LUDLOW, WA 98365-9220 | % Ownership: | 100.0000000000% |
| | | Exemptions: | |
Pay Tax Due
Select the appropriate checkbox next to the year to be paid. Multiple years may be selected.
*Convenience Fee not included
Taxes and Assessment Details
Property Tax Information as of
03/12/2026
Click on "Statement Details" to expand or collapse a tax statement.
* Please enter a valid date ** Please enter a valid date *
Statement Details |
| 2026 | 16634 | STATE - STATE LEVY (SCHOOL) | $700.96 | $700.94 | $0.00 | $0.00 | $0.00 | $1401.90 |
| 2026 | 16634 | COUNTY - COUNTY LEVIES (CE, DD, VET, MH) | $280.24 | $280.24 | $0.00 | $0.00 | $0.00 | $560.48 |
| 2026 | 16634 | CONSERVE - CONSERVATION FUTURES | $8.41 | $8.40 | $0.00 | $0.00 | $0.00 | $16.81 |
| 2026 | 16634 | COROADS - COUNTY ROADS (ROADS, DIV TO CE) | $226.08 | $226.07 | $0.00 | $0.00 | $0.00 | $452.15 |
| 2026 | 16634 | PORTPT - PORT DISTRICT | $113.18 | $113.18 | $0.00 | $0.00 | $0.00 | $226.36 |
| 2026 | 16634 | PUD1 - PUD #1 | $18.23 | $18.23 | $0.00 | $0.00 | $0.00 | $36.46 |
| 2026 | 16634 | LIB1 - LIBRARY DIST #1 | $87.47 | $87.46 | $0.00 | $0.00 | $0.00 | $174.93 |
| 2026 | 16634 | HD2 - HOSP DIST #2 | $16.35 | $16.34 | $0.00 | $0.00 | $0.00 | $32.69 |
| 2026 | 16634 | SD49 - SCHOOL DIST #49 | $385.85 | $385.85 | $0.00 | $0.00 | $0.00 | $771.70 |
| 2026 | 16634 | FD1 - FIRE DISTRICT #1 | $371.10 | $371.10 | $0.00 | $0.00 | $0.00 | $742.20 |
| 2026 | 16634 | EMS1 - FIRE DIST #1 EMS | $142.69 | $142.68 | $0.00 | $0.00 | $0.00 | $285.37 |
| 2026 | 16634 | JCCD - JC Conservation District | $2.55 | $2.55 | $0.00 | $0.00 | $0.00 | $5.10 |
| 2026 | 16634 | NWA - Noxious Weed Assessment | $2.98 | $2.97 | $0.00 | $0.00 | $0.00 | $5.95 |
| 2026 | 16634 | TOTAL: | $2356.09 | $2356.01 | $0.00 | $0.00 | $0.00 | $4712.10 |
|
| 2026 | 16634 | $2356.09 | $2356.01 | $0.00 | $0.00 | $0.00 | $4712.10 |
Statement Details |
| 2025 | 16688 | STATE - STATE LEVY (SCHOOL) | $731.13 | $731.11 | $0.00 | $0.00 | $1462.24 | $0.00 |
| 2025 | 16688 | COUNTY - COUNTY LEVIES (CE, DD, VET, MH) | $287.52 | $287.48 | $0.00 | $0.00 | $575.00 | $0.00 |
| 2025 | 16688 | CONSERVE - CONSERVATION FUTURES | $8.62 | $8.62 | $0.00 | $0.00 | $17.24 | $0.00 |
| 2025 | 16688 | COROADS - COUNTY ROADS (ROADS, DIV TO CE) | $230.34 | $230.34 | $0.00 | $0.00 | $460.68 | $0.00 |
| 2025 | 16688 | PORTPT - PORT DISTRICT | $117.32 | $117.32 | $0.00 | $0.00 | $234.64 | $0.00 |
| 2025 | 16688 | PUD1 - PUD #1 | $18.82 | $18.81 | $0.00 | $0.00 | $37.63 | $0.00 |
| 2025 | 16688 | LIB1 - LIBRARY DIST #1 | $89.12 | $89.11 | $0.00 | $0.00 | $178.23 | $0.00 |
| 2025 | 16688 | HD2 - HOSP DIST #2 | $16.78 | $16.77 | $0.00 | $0.00 | $33.55 | $0.00 |
| 2025 | 16688 | SD49 - SCHOOL DIST #49 | $391.84 | $391.83 | $0.00 | $0.00 | $783.67 | $0.00 |
| 2025 | 16688 | FD1 - FIRE DISTRICT #1 | $379.40 | $379.39 | $0.00 | $0.00 | $758.79 | $0.00 |
| 2025 | 16688 | EMS1 - FIRE DIST #1 EMS | $145.93 | $145.92 | $0.00 | $0.00 | $291.85 | $0.00 |
| 2025 | 16688 | JCCD - JC Conservation District | $2.55 | $2.55 | $0.00 | $0.00 | $5.10 | $0.00 |
| 2025 | 16688 | NWA - Noxious Weed Assessment | $2.15 | $2.15 | $0.00 | $0.00 | $4.30 | $0.00 |
| 2025 | 16688 | TOTAL: | $2421.52 | $2421.40 | $0.00 | $0.00 | $4842.92 | $0.00 |
|
| 2025 | 16688 | $2421.52 | $2421.40 | $0.00 | $0.00 | $4842.92 | $0.00 |
Statement Details |
| 2024 | 16722 | STATE - STATE LEVY (SCHOOL) | $699.60 | $699.58 | $0.00 | $0.00 | $1399.18 | $0.00 |
| 2024 | 16722 | COUNTY - COUNTY LEVIES (CE, DD, VET, MH) | $299.36 | $299.36 | $0.00 | $0.00 | $598.72 | $0.00 |
| 2024 | 16722 | CONSERVE - CONSERVATION FUTURES | $8.98 | $8.97 | $0.00 | $0.00 | $17.95 | $0.00 |
| 2024 | 16722 | COROADS - COUNTY ROADS (ROADS, DIV TO CE) | $240.90 | $240.88 | $0.00 | $0.00 | $481.78 | $0.00 |
| 2024 | 16722 | PORTPT - PORT DISTRICT | $123.66 | $123.64 | $0.00 | $0.00 | $247.30 | $0.00 |
| 2024 | 16722 | PUD1 - PUD #1 | $19.67 | $19.66 | $0.00 | $0.00 | $39.33 | $0.00 |
| 2024 | 16722 | LIB1 - LIBRARY DIST #1 | $93.20 | $93.19 | $0.00 | $0.00 | $186.39 | $0.00 |
| 2024 | 16722 | HD2 - HOSP DIST #2 | $17.47 | $17.46 | $0.00 | $0.00 | $34.93 | $0.00 |
| 2024 | 16722 | SD49 - SCHOOL DIST #49 | $312.41 | $312.40 | $0.00 | $0.00 | $624.81 | $0.00 |
| 2024 | 16722 | FD1 - FIRE DISTRICT #1 | $395.83 | $395.83 | $0.00 | $0.00 | $791.66 | $0.00 |
| 2024 | 16722 | EMS1 - FIRE DIST #1 EMS | $151.19 | $151.19 | $0.00 | $0.00 | $302.38 | $0.00 |
| 2024 | 16722 | JCCD - JC Conservation District | $2.55 | $2.55 | $0.00 | $0.00 | $5.10 | $0.00 |
| 2024 | 16722 | NWA - Noxious Weed Assessment | $2.15 | $2.15 | $0.00 | $0.00 | $4.30 | $0.00 |
| 2024 | 16722 | TOTAL: | $2366.97 | $2366.86 | $0.00 | $0.00 | $4733.83 | $0.00 |
|
| 2024 | 16722 | $2366.97 | $2366.86 | $0.00 | $0.00 | $4733.83 | $0.00 |
Statement Details |
| 2023 | 16746 | STATE - STATE LEVY (SCHOOL) | $705.98 | $705.97 | $0.00 | $0.00 | $1411.95 | $0.00 |
| 2023 | 16746 | COUNTY - COUNTY LEVIES (CE, DD, VET, MH) | $308.07 | $308.06 | $0.00 | $0.00 | $616.13 | $0.00 |
| 2023 | 16746 | CONSERVE - CONSERVATION FUTURES | $9.24 | $9.24 | $0.00 | $0.00 | $18.48 | $0.00 |
| 2023 | 16746 | COROADS - COUNTY ROADS (ROADS, DIV TO CE) | $249.25 | $249.24 | $0.00 | $0.00 | $498.49 | $0.00 |
| 2023 | 16746 | PORTPT - PORT DISTRICT | $129.78 | $129.77 | $0.00 | $0.00 | $259.55 | $0.00 |
| 2023 | 16746 | PUD1 - PUD #1 | $20.42 | $20.42 | $0.00 | $0.00 | $40.84 | $0.00 |
| 2023 | 16746 | LIB1 - LIBRARY DIST #1 | $96.43 | $96.43 | $0.00 | $0.00 | $192.86 | $0.00 |
| 2023 | 16746 | HD2 - HOSP DIST #2 | $17.98 | $17.97 | $0.00 | $0.00 | $35.95 | $0.00 |
| 2023 | 16746 | SD49 - SCHOOL DIST #49 | $330.00 | $330.00 | $0.00 | $0.00 | $660.00 | $0.00 |
| 2023 | 16746 | FD3 - FIRE DISTRICT #3 | $306.48 | $306.48 | $0.00 | $0.00 | $612.96 | $0.00 |
| 2023 | 16746 | EMS3 - FIRE DIST #3 EMS | $109.57 | $109.56 | $0.00 | $0.00 | $219.13 | $0.00 |
| 2023 | 16746 | JCCD - JC Conservation District | $2.55 | $2.55 | $0.00 | $0.00 | $5.10 | $0.00 |
| 2023 | 16746 | NWA - Noxious Weed Assessment | $2.15 | $2.15 | $0.00 | $0.00 | $4.30 | $0.00 |
| 2023 | 16746 | TOTAL: | $2287.90 | $2287.84 | $0.00 | $0.00 | $4575.74 | $0.00 |
|
| 2023 | 16746 | $2287.90 | $2287.84 | $0.00 | $0.00 | $4575.74 | $0.00 |
Values
| (+) Improvement Homesite Value: | + | $0 | |
| (+) Improvement Non-Homesite Value: | + | $459,766 | |
| (+) Land Homesite Value: | + | $0 | |
| (+) Land Non-Homesite Value: | + | $150,000 | |
| (+) Curr Use (HS): | + | $0 | $0 |
| (+) Curr Use (NHS): | + | $0 | $0 |
| | | -------------------------- | |
| (=) Market Value: | = | $609,766 | |
| (–) Productivity Loss: | – | $0 | |
| | | -------------------------- | |
| (=) Subtotal: | = | $609,766 | |
| (+) Senior Appraised Value: | + | $0 | |
| (+) Non-Senior Appraised Value: | + | $609,766 | |
| | | -------------------------- | |
| (=) Total Appraised Value: | = | $609,766 | |
| (–) Senior Exemption Loss: | – | $0 | |
| (–) Exemption Loss: | – | $0 | |
| | | -------------------------- | |
| (=) Taxable Value: | = | $609,766 | |
Taxing Jurisdiction
| Owner: | DOUGLAS & JOAN SCHWARTZ | | |
| % Ownership: | 100.0000000000% | | |
| Total Value: | $609,766 | | |
| Tax Area: | 0213 - 1-49F1E1H2L1 |
| CE | COUNTY CURRENT EXPENSE | 0.9034619479 | $609,766 | $609,766 | $550.90 | | |
| CNTYDD | DEVELOPMENTAL DISABILITIES | 0.0052121823 | $609,766 | $609,766 | $3.18 | | |
| CNTYVET | VETERANS RELIEF | 0.0052777810 | $609,766 | $609,766 | $3.22 | | |
| MENTAL | MENTAL HEALTH | 0.0052121823 | $609,766 | $609,766 | $3.18 | | |
| ROADS | COUNTY ROADS | 0.7415066410 | $609,766 | $609,766 | $452.15 | | |
| ROADSCU | COUNTY ROADS TO CUR EXP | 0.0000000000 | $609,766 | $609,766 | $0.00 | | |
| HOSP2CASH | HOSP DIST #2 GENERAL | 0.0536075306 | $609,766 | $609,766 | $32.69 | | |
| SCH49CP | SCHOOL DIST #49 CAP PROJ | 0.6279093905 | $609,766 | $609,766 | $382.88 | | |
| SCH49MO | SCHOOL DIST #49 EP & O | 0.6376483602 | $609,766 | $609,766 | $388.82 | | |
| CONSERVE | CONSERVATION FUTURES | 0.0275621078 | $609,766 | $609,766 | $16.81 | | |
| EMS1 | FIRE DIST #1 EMS | 0.4679948282 | $609,766 | $609,766 | $285.37 | | |
| FD1 | FIRE DIST #1 GENERAL | 1.2171942929 | $609,766 | $609,766 | $742.20 | | |
| LIB1 | LIBRARY DIST #1 GENERAL | 0.2868827388 | $609,766 | $609,766 | $174.93 | | |
| PORTPT | PORT OF PT GENERAL | 0.1134941229 | $609,766 | $609,766 | $69.20 | | |
| PORTPTIDD | PORT OF PT IDD 2019 | 0.2577346692 | $609,766 | $609,766 | $157.16 | | |
| PUD1 | PUD #1 GENERAL | 0.0597888892 | $609,766 | $609,766 | $36.46 | | |
| STATE | STATE SCHOOL PART 1 | 1.4940692947 | $609,766 | $609,766 | $911.03 | | |
| STATE2 | STATE SCHOOL PART 2 | 0.8050170049 | $609,766 | $609,766 | $490.87 | | |
| | Total Tax Rate: | 7.7095739644 | | | | | |
| | | | | Taxes w/Current Exemptions: | $4,701.05 | | |
| | | | | Taxes w/o Exemptions: | $4,701.05 | | |
Improvement / Building
| Improvement #1: | Residential Bldg | State Code: | 11 | 2146.0 sqft | Value: | $459,766 |
| Bathrooms (#): | 2 (FULL) | Bathrooms (#): | 1 (HALF) | | Bedrooms (#): | 4 | Exterior Wall: | SI/ST | | Fireplace: | SIN 1-GOOD | Floor Construction: | FRAME | | Foundation: | CONPR | Heating/Cooling: | F/A | | Inside Verify: | YES | Roof Cover: | TILE |
|
| | Type | Description | Class CD | Sub Class CD | Year Built | Area |
| | MA | Main Area | 4- | 1S | 1995 | 2146.0 |
| | HCPOR | House Concrete Porch | 4 | 1S | 1995 | 54.0 |
| | HWPOR | House Wood Porch | 4 | 1S | 1995 | 233.0 |
| | HDECK | House Deck | 4 | 1S | 1995 | 90.0 |
| | GATT | House Attached Garage | 4 | 1S | 1995 | 466.0 |
| | CONCD | Concrete Drive | 4 | 1S | 1995 | 800.0 |
Sketch
Property Image
Land
| 1 | 3355-1145L | | 0.0000 | 0.00 | 0.00 | 0.00 | 1.00 | $150,000 | $0 |
Roll Value History
| 2026 | N/A | N/A | N/A | N/A | N/A |
| 2025 | $459,766 | $150,000 | $0 | $609,766 | $609,766 |
| 2024 | $459,766 | $150,000 | $0 | $609,766 | $609,766 |
| 2023 | $459,766 | $145,000 | $0 | $604,766 | $604,766 |
| 2022 | $459,766 | $140,000 | $0 | $599,766 | $599,766 |
Deed and Sales History
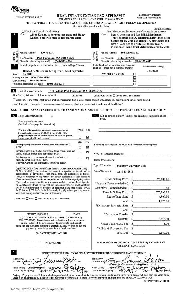
| 1 | 02/05/2018 | SWD | Statutory Warranty Deed | ALLEN J STANDISH TRSTEE | DOUGLAS & JOAN SCHWARTZ | | | $380,000.00 | 129541 | |
| 2 | 09/02/2003 | QCD | Quit Claim Deed | STANDISH, ALLEN/CATHERINE | STANDISH, ALLEN & CATHERINE/TR | 0 | 0 | $0.00 | 98233 | 0 |
| 3 | 11/20/2002 | SWD | Statutory Warranty Deed | SELIN, CARL W & DANA N | STANDISH, ALLEN & CATHERINE | 0 | 0 | $327,000.00 | 96047 | 0 |
| 4 | 08/19/1998 | SWD | Statutory Warranty Deed | CARLTON, KATHRYN C R/TRUS | SELIN, CARL W/DANA N | 0 | 0 | $275,000.00 | 85206 | 0 |
| 5 | 08/04/1997 | QCD | Quit Claim Deed | CARLTON, KATHRYN C R | CARLTON, KATHRYN C R/TRUST | 0 | 0 | $0.00 | 82681 | 0 |
| 6 | 04/11/1997 | SWD | Statutory Warranty Deed | BRUSH, DEBRA M | CARLTON, KATHRYN C RAWSON | 0 | 0 | $264,900.00 | 81753 | 0 |
| 7 | 12/19/1994 | SWD | Statutory Warranty Deed | POPE RESOURCES | CROSBIE, DEBRA M | 0 | 0 | $45,000.00 | 75869 | 0 |
Payout Agreement
| No payout information available.. |