Property
Account |
| Property ID: | 27287 | Abbreviated Legal Description: | EISENBEIS ADDITION BLK 1 LOT 6(LS E'LY 2.5') BND THRU LLA#139140 SUBJ/EASE OF RECORD/REST COVE AF#653988 |
| Parcel # / Geo ID: | 948300103 | Agent Code: | |
| Type: | Real | | |
| Tax Area: | 0110 - C-50F1E1H2 | Land Use Code | 11 |
| Open Space: | N | DFL | N |
| Historic Property: | N | Remodel Property: | N |
| Multi-Family Redevelopment: | N | | |
| Township: | 30N | Section: | 10 |
| Range: | 1W |
Location |
| Address: | 186 19TH ST PORT TOWNSEND, WA 98368 | Mapsco: | 021/003 |
| Neighborhood: | EISENBEIS, OC HASTINGS & SUPP, PINKS LESS VICTORIAN VILLAGE | Map ID: | |
| Neighborhood CD: | 6210 |
Owner |
| Name: | TINA M SEZGUN | Owner ID: | 107023 |
| Mailing Address: | LEVENT SEZGUN 218 POLK ST PORT TOWNSEND, WA 98368 | % Ownership: | 100.0000000000% |
| | | Exemptions: | |
Pay Tax Due
Select the appropriate checkbox next to the year to be paid. Multiple years may be selected.
*Convenience Fee not included
Taxes and Assessment Details
Property Tax Information as of
03/10/2026
Click on "Statement Details" to expand or collapse a tax statement.
* Please enter a valid date ** Please enter a valid date *
Statement Details |
| 2026 | 16652 | STATE - STATE LEVY (SCHOOL) | $555.20 | $555.20 | $0.00 | $0.00 | $0.00 | $1110.40 |
| 2026 | 16652 | COUNTY - COUNTY LEVIES (CE, DD, VET, MH) | $221.98 | $221.96 | $0.00 | $0.00 | $0.00 | $443.94 |
| 2026 | 16652 | CONSERVE - CONSERVATION FUTURES | $6.66 | $6.65 | $0.00 | $0.00 | $0.00 | $13.31 |
| 2026 | 16652 | CITYPT - CITY OF PT | $315.07 | $315.06 | $0.00 | $0.00 | $0.00 | $630.13 |
| 2026 | 16652 | PORTPT - PORT DISTRICT | $89.65 | $89.64 | $0.00 | $0.00 | $0.00 | $179.29 |
| 2026 | 16652 | PUD1 - PUD #1 | $14.44 | $14.44 | $0.00 | $0.00 | $0.00 | $28.88 |
| 2026 | 16652 | HD2 - HOSP DIST #2 | $12.95 | $12.94 | $0.00 | $0.00 | $0.00 | $25.89 |
| 2026 | 16652 | SD50 - SCHOOL DIST #50 | $439.85 | $439.83 | $0.00 | $0.00 | $0.00 | $879.68 |
| 2026 | 16652 | FD1 - FIRE DISTRICT #1 | $293.94 | $293.93 | $0.00 | $0.00 | $0.00 | $587.87 |
| 2026 | 16652 | EMS1 - FIRE DIST #1 EMS | $113.02 | $113.01 | $0.00 | $0.00 | $0.00 | $226.03 |
| 2026 | 16652 | JCCD - JC Conservation District | $2.55 | $2.55 | $0.00 | $0.00 | $0.00 | $5.10 |
| 2026 | 16652 | NWA - Noxious Weed Assessment | $2.98 | $2.97 | $0.00 | $0.00 | $0.00 | $5.95 |
| 2026 | 16652 | WAT - Clean Water District | $13.00 | $13.00 | $0.00 | $0.00 | $0.00 | $26.00 |
| 2026 | 16652 | TOTAL: | $2081.29 | $2081.18 | $0.00 | $0.00 | $0.00 | $4162.47 |
|
| 2026 | 16652 | $2081.29 | $2081.18 | $0.00 | $0.00 | $0.00 | $4162.47 |
Statement Details |
| 2025 | 16706 | STATE - STATE LEVY (SCHOOL) | $465.29 | $465.27 | $0.00 | $0.00 | $930.56 | $0.00 |
| 2025 | 16706 | COUNTY - COUNTY LEVIES (CE, DD, VET, MH) | $182.98 | $182.96 | $0.00 | $0.00 | $365.94 | $0.00 |
| 2025 | 16706 | CONSERVE - CONSERVATION FUTURES | $5.49 | $5.48 | $0.00 | $0.00 | $10.97 | $0.00 |
| 2025 | 16706 | CITYPT - CITY OF PT | $263.87 | $263.85 | $0.00 | $0.00 | $527.72 | $0.00 |
| 2025 | 16706 | PORTPT - PORT DISTRICT | $74.66 | $74.66 | $0.00 | $0.00 | $149.32 | $0.00 |
| 2025 | 16706 | PUD1 - PUD #1 | $11.97 | $11.97 | $0.00 | $0.00 | $23.94 | $0.00 |
| 2025 | 16706 | HD2 - HOSP DIST #2 | $10.68 | $10.67 | $0.00 | $0.00 | $21.35 | $0.00 |
| 2025 | 16706 | SD50 - SCHOOL DIST #50 | $340.05 | $340.04 | $0.00 | $0.00 | $680.09 | $0.00 |
| 2025 | 16706 | FD1 - FIRE DISTRICT #1 | $241.45 | $241.45 | $0.00 | $0.00 | $482.90 | $0.00 |
| 2025 | 16706 | EMS1 - FIRE DIST #1 EMS | $92.87 | $92.87 | $0.00 | $0.00 | $185.74 | $0.00 |
| 2025 | 16706 | JCCD - JC Conservation District | $2.55 | $2.55 | $0.00 | $0.00 | $5.10 | $0.00 |
| 2025 | 16706 | NWA - Noxious Weed Assessment | $2.15 | $2.15 | $0.00 | $0.00 | $4.30 | $0.00 |
| 2025 | 16706 | WAT - Clean Water District | $13.00 | $13.00 | $0.00 | $0.00 | $26.00 | $0.00 |
| 2025 | 16706 | TOTAL: | $1707.01 | $1706.92 | $0.00 | $0.00 | $3413.93 | $0.00 |
|
| 2025 | 16706 | $1707.01 | $1706.92 | $0.00 | $0.00 | $3413.93 | $0.00 |
Statement Details |
| 2024 | 16740 | STATE - STATE LEVY (SCHOOL) | $127.25 | $127.24 | $0.00 | $0.00 | $254.49 | $0.00 |
| 2024 | 16740 | COUNTY - COUNTY LEVIES (CE, DD, VET, MH) | $54.46 | $54.43 | $0.00 | $0.00 | $108.89 | $0.00 |
| 2024 | 16740 | CONSERVE - CONSERVATION FUTURES | $1.64 | $1.63 | $0.00 | $0.00 | $3.27 | $0.00 |
| 2024 | 16740 | CITYPT - CITY OF PT | $77.81 | $77.80 | $0.00 | $0.00 | $155.61 | $0.00 |
| 2024 | 16740 | PORTPT - PORT DISTRICT | $22.50 | $22.48 | $0.00 | $0.00 | $44.98 | $0.00 |
| 2024 | 16740 | PUD1 - PUD #1 | $3.58 | $3.57 | $0.00 | $0.00 | $7.15 | $0.00 |
| 2024 | 16740 | HD2 - HOSP DIST #2 | $3.18 | $3.17 | $0.00 | $0.00 | $6.35 | $0.00 |
| 2024 | 16740 | SD50 - SCHOOL DIST #50 | $102.96 | $102.94 | $0.00 | $0.00 | $205.90 | $0.00 |
| 2024 | 16740 | FD1 - FIRE DISTRICT #1 | $72.00 | $71.99 | $0.00 | $0.00 | $143.99 | $0.00 |
| 2024 | 16740 | EMS1 - FIRE DIST #1 EMS | $27.50 | $27.50 | $0.00 | $0.00 | $55.00 | $0.00 |
| 2024 | 16740 | JCCD - JC Conservation District | $2.53 | $2.53 | $0.00 | $0.00 | $5.06 | $0.00 |
| 2024 | 16740 | NWA - Noxious Weed Assessment | $2.15 | $2.15 | $0.00 | $0.00 | $4.30 | $0.00 |
| 2024 | 16740 | WAT - Clean Water District | $12.50 | $12.50 | $0.00 | $0.00 | $25.00 | $0.00 |
| 2024 | 16740 | TOTAL: | $510.06 | $509.93 | $0.00 | $0.00 | $1019.99 | $0.00 |
|
| 2024 | 16740 | $510.06 | $509.93 | $0.00 | $0.00 | $1019.99 | $0.00 |
Statement Details |
| 2023 | 16764 | STATE - STATE LEVY (SCHOOL) | $129.48 | $129.48 | $0.00 | $0.00 | $258.96 | $0.00 |
| 2023 | 16764 | COUNTY - COUNTY LEVIES (CE, DD, VET, MH) | $56.51 | $56.49 | $0.00 | $0.00 | $113.00 | $0.00 |
| 2023 | 16764 | CONSERVE - CONSERVATION FUTURES | $1.70 | $1.69 | $0.00 | $0.00 | $3.39 | $0.00 |
| 2023 | 16764 | CITYPT - CITY OF PT | $79.85 | $79.85 | $0.00 | $0.00 | $159.70 | $0.00 |
| 2023 | 16764 | PORTPT - PORT DISTRICT | $23.81 | $23.79 | $0.00 | $0.00 | $47.60 | $0.00 |
| 2023 | 16764 | PUD1 - PUD #1 | $3.75 | $3.74 | $0.00 | $0.00 | $7.49 | $0.00 |
| 2023 | 16764 | HD2 - HOSP DIST #2 | $3.31 | $3.29 | $0.00 | $0.00 | $6.60 | $0.00 |
| 2023 | 16764 | SD50 - SCHOOL DIST #50 | $102.75 | $102.74 | $0.00 | $0.00 | $205.49 | $0.00 |
| 2023 | 16764 | FD1 - FIRE DISTRICT #1 | $46.55 | $46.54 | $0.00 | $0.00 | $93.09 | $0.00 |
| 2023 | 16764 | EMS1 - FIRE DIST #1 EMS | $19.80 | $19.80 | $0.00 | $0.00 | $39.60 | $0.00 |
| 2023 | 16764 | JCCD - JC Conservation District | $2.53 | $2.53 | $0.00 | $0.00 | $5.06 | $0.00 |
| 2023 | 16764 | NWA - Noxious Weed Assessment | $2.15 | $2.15 | $0.00 | $0.00 | $4.30 | $0.00 |
| 2023 | 16764 | WAT - Clean Water District | $12.00 | $12.00 | $0.00 | $0.00 | $24.00 | $0.00 |
| 2023 | 16764 | TOTAL: | $484.19 | $484.09 | $0.00 | $0.00 | $968.28 | $0.00 |
|
| 2023 | 16764 | $484.19 | $484.09 | $0.00 | $0.00 | $968.28 | $0.00 |
Values
| (+) Improvement Homesite Value: | + | $0 | |
| (+) Improvement Non-Homesite Value: | + | $322,973 | |
| (+) Land Homesite Value: | + | $0 | |
| (+) Land Non-Homesite Value: | + | $160,000 | |
| (+) Curr Use (HS): | + | $0 | $0 |
| (+) Curr Use (NHS): | + | $0 | $0 |
| | | -------------------------- | |
| (=) Market Value: | = | $482,973 | |
| (–) Productivity Loss: | – | $0 | |
| | | -------------------------- | |
| (=) Subtotal: | = | $482,973 | |
| (+) Senior Appraised Value: | + | $0 | |
| (+) Non-Senior Appraised Value: | + | $482,973 | |
| | | -------------------------- | |
| (=) Total Appraised Value: | = | $482,973 | |
| (–) Senior Exemption Loss: | – | $0 | |
| (–) Exemption Loss: | – | $0 | |
| | | -------------------------- | |
| (=) Taxable Value: | = | $482,973 | |
Taxing Jurisdiction
| Owner: | TINA M SEZGUN | | |
| % Ownership: | 100.0000000000% | | |
| Total Value: | $482,973 | | |
| Tax Area: | 0110 - C-50F1E1H2 |
| CE | COUNTY CURRENT EXPENSE | 0.9034619479 | $482,973 | $482,973 | $436.35 | | |
| CNTYDD | DEVELOPMENTAL DISABILITIES | 0.0052121823 | $482,973 | $482,973 | $2.52 | | |
| CNTYVET | VETERANS RELIEF | 0.0052777810 | $482,973 | $482,973 | $2.55 | | |
| MENTAL | MENTAL HEALTH | 0.0052121823 | $482,973 | $482,973 | $2.52 | | |
| PTGEN | CITY OF PT GENERAL | 0.8551967795 | $482,973 | $482,973 | $413.04 | | |
| PTLLL | CITY OF PT - LIBRARY LID LIFT | 0.4010114288 | $482,973 | $482,973 | $193.68 | | |
| PTMVBOND | CITY OF PT MV BOND | 0.0484717981 | $482,973 | $482,973 | $23.41 | | |
| HOSP2CASH | HOSP DIST #2 GENERAL | 0.0536075306 | $482,973 | $482,973 | $25.89 | | |
| SCH50BOND | SCHOOL DIST #50 BOND 2016 | 0.5377451389 | $482,973 | $482,973 | $259.72 | | |
| SCH50CP | SCHOOL DIST #50 CAP PROJ | 0.4573475088 | $482,973 | $482,973 | $220.89 | | |
| SCH50MO | SCHOOL DIST #50 EP & O | 0.8262822886 | $482,973 | $482,973 | $399.07 | | |
| CONSERVE | CONSERVATION FUTURES | 0.0275621078 | $482,973 | $482,973 | $13.31 | | |
| EMS1 | FIRE DIST #1 EMS | 0.4679948282 | $482,973 | $482,973 | $226.03 | | |
| FD1 | FIRE DIST #1 GENERAL | 1.2171942929 | $482,973 | $482,973 | $587.87 | | |
| PORTPT | PORT OF PT GENERAL | 0.1134941229 | $482,973 | $482,973 | $54.81 | | |
| PORTPTIDD | PORT OF PT IDD 2019 | 0.2577346692 | $482,973 | $482,973 | $124.48 | | |
| PUD1 | PUD #1 GENERAL | 0.0597888892 | $482,973 | $482,973 | $28.88 | | |
| STATE | STATE SCHOOL PART 1 | 1.4940692947 | $482,973 | $482,973 | $721.60 | | |
| STATE2 | STATE SCHOOL PART 2 | 0.8050170049 | $482,973 | $482,973 | $388.80 | | |
| | Total Tax Rate: | 8.5416817766 | | | | | |
| | | | | Taxes w/Current Exemptions: | $4,125.42 | | |
| | | | | Taxes w/o Exemptions: | $4,125.42 | | |
Improvement / Building
| Improvement #1: | Residential Bldg | State Code: | 11 | 1624.0 sqft | Value: | $322,973 |
| Exterior Wall: | SI/ST | Foundation: | CONPR | | Roof Cover: | COMP |   |   |
|
| | Type | Description | Class CD | Sub Class CD | Year Built | Area |
| | MA | Main Area | 3+ | 15SF | 2024 | 636.0 |
| | MA2 | Second Floor Main Area | 3+ | 15SF | 2024 | 988.0 |
| | GBLTIN | Builtin Garage | 3 | 15SF | 2024 | 352.0 |
| | HDECK | House Deck | 3 | 15SF | 2024 | 288.0 |
| | SHED | Shed (Table Not Dep) | 4 | 15SF | 2024 | 0.0 |
Sketch
Property Image
Land
| 1 | 6210-1175L | | 0.0000 | 0.00 | 0.00 | 0.00 | 1.00 | $160,000 | $0 |
Roll Value History
| 2026 | N/A | N/A | N/A | N/A | N/A |
| 2025 | $322,973 | $160,000 | $0 | $482,973 | $482,973 |
| 2024 | $241,055 | $147,000 | $0 | $388,055 | $388,055 |
| 2023 | $0 | $110,000 | $0 | $110,000 | $110,000 |
| 2022 | $0 | $110,000 | $0 | $110,000 | $110,000 |
Deed and Sales History
| 1 | 05/18/2022 | QCD | Quit Claim Deed | MARTA FAVATI | TINA M SEZGUN | | | | 139152 | |
| 2 | 05/03/2022 | BLA | Boundary Line Adjustment | LEVENT & TINA SEZGUN | | | | | 139140 | |
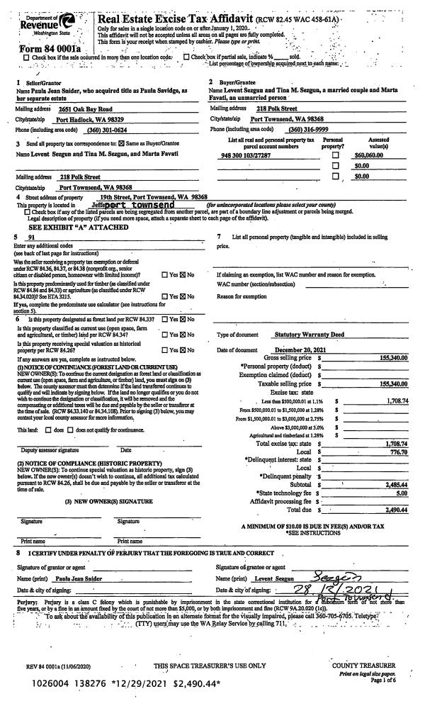
| 3 | 12/20/2021 | SWD | Statutory Warranty Deed | PAULA J SNIDER | LEVENT & TINA SEZGUN | | | $155,340.00 | 138276 | |
| 4 | 07/17/2018 | QCD | Quit Claim Deed | | | | | | 130787 | |
| 5 | 10/26/2010 | SWD | Statutory Warranty Deed | MC NAMARA, ERIN M | SAVIDGE, EDWARD B/PAULA | 0 | 0 | $57,000.00 | 115096 | 0 |
| 6 | 06/23/2010 | QCD | Quit Claim Deed | SMITH, DOMINICK, SMITH/MC | MCNAMARA, ERIN | 0 | 0 | $0.00 | 114909 | 0 |
| 7 | 10/04/1999 | SWD | Statutory Warranty Deed | DE LEO, HAZEL | SMITH, DOMINICK B & MC NAMARA | 0 | 0 | $32,000.00 | 88021 | 0 |
|   | |
Payout Agreement
| No payout information available.. |