Property
Account |
| Property ID: | 27289 | Abbreviated Legal Description: | EISENBEIS ADDITION BLK 1 LOT 10 |
| Parcel # / Geo ID: | 948300105 | Agent Code: | |
| Type: | Real | | |
| Tax Area: | 0110 - C-50F1E1H2 | Land Use Code | 11 |
| Open Space: | N | DFL | N |
| Historic Property: | N | Remodel Property: | N |
| Multi-Family Redevelopment: | N | | |
| Township: | 30N | Section: | 11 |
| Range: | 1W |
Location |
| Address: | 106 19TH ST PORT TOWNSEND, WA 98368 | Mapsco: | 021/005 |
| Neighborhood: | EISENBEIS, OC HASTINGS & SUPP, PINKS LESS VICTORIAN VILLAGE | Map ID: | |
| Neighborhood CD: | 6210 |
Owner |
| Name: | CHARLES D FLEISHMAN | Owner ID: | 90168 |
| Mailing Address: | 106 19TH ST PORT TOWNSEND, WA 98368 | % Ownership: | 100.0000000000% |
| | | Exemptions: | SNR/DSBL |
Pay Tax Due
Select the appropriate checkbox next to the year to be paid. Multiple years may be selected.
*Convenience Fee not included
Taxes and Assessment Details
Property Tax Information as of
03/12/2026
Click on "Statement Details" to expand or collapse a tax statement.
* Please enter a valid date ** Please enter a valid date *
Statement Details |
| 2026 | 16654 | STATE - STATE LEVY (SCHOOL) | $104.73 | $104.72 | $0.00 | $0.00 | $0.00 | $209.45 |
| 2026 | 16654 | COUNTY - COUNTY LEVIES (CE, DD, VET, MH) | $50.73 | $50.73 | $0.00 | $0.00 | $0.00 | $101.46 |
| 2026 | 16654 | CONSERVE - CONSERVATION FUTURES | $1.52 | $1.52 | $0.00 | $0.00 | $0.00 | $3.04 |
| 2026 | 16654 | CITYPT - CITY OF PT | $70.67 | $70.66 | $0.00 | $0.00 | $0.00 | $141.33 |
| 2026 | 16654 | PORTPT - PORT DISTRICT | $20.50 | $20.48 | $0.00 | $0.00 | $0.00 | $40.98 |
| 2026 | 16654 | PUD1 - PUD #1 | $3.30 | $3.30 | $0.00 | $0.00 | $0.00 | $6.60 |
| 2026 | 16654 | HD2 - HOSP DIST #2 | $2.96 | $2.96 | $0.00 | $0.00 | $0.00 | $5.92 |
| 2026 | 16654 | SD50 - SCHOOL DIST #50 | $50.39 | $50.37 | $0.00 | $0.00 | $0.00 | $100.76 |
| 2026 | 16654 | FD1 - FIRE DISTRICT #1 | $67.18 | $67.17 | $0.00 | $0.00 | $0.00 | $134.35 |
| 2026 | 16654 | EMS1 - FIRE DIST #1 EMS | $25.83 | $25.83 | $0.00 | $0.00 | $0.00 | $51.66 |
| 2026 | 16654 | JCCD - JC Conservation District | $2.55 | $2.55 | $0.00 | $0.00 | $0.00 | $5.10 |
| 2026 | 16654 | NWA - Noxious Weed Assessment | $2.98 | $2.97 | $0.00 | $0.00 | $0.00 | $5.95 |
| 2026 | 16654 | TOTAL: | $403.34 | $403.26 | $0.00 | $0.00 | $0.00 | $806.60 |
|
| 2026 | 16654 | $403.34 | $403.26 | $0.00 | $0.00 | $0.00 | $806.60 |
Statement Details |
| 2025 | 16708 | STATE - STATE LEVY (SCHOOL) | $85.23 | $85.21 | $0.00 | $0.00 | $170.44 | $0.00 |
| 2025 | 16708 | COUNTY - COUNTY LEVIES (CE, DD, VET, MH) | $42.60 | $42.59 | $0.00 | $0.00 | $85.19 | $0.00 |
| 2025 | 16708 | CONSERVE - CONSERVATION FUTURES | $1.28 | $1.27 | $0.00 | $0.00 | $2.55 | $0.00 |
| 2025 | 16708 | CITYPT - CITY OF PT | $60.02 | $60.02 | $0.00 | $0.00 | $120.04 | $0.00 |
| 2025 | 16708 | PORTPT - PORT DISTRICT | $17.38 | $17.38 | $0.00 | $0.00 | $34.76 | $0.00 |
| 2025 | 16708 | PUD1 - PUD #1 | $2.79 | $2.78 | $0.00 | $0.00 | $5.57 | $0.00 |
| 2025 | 16708 | HD2 - HOSP DIST #2 | $2.49 | $2.48 | $0.00 | $0.00 | $4.97 | $0.00 |
| 2025 | 16708 | SD50 - SCHOOL DIST #50 | $30.93 | $30.91 | $0.00 | $0.00 | $61.84 | $0.00 |
| 2025 | 16708 | FD1 - FIRE DISTRICT #1 | $56.21 | $56.21 | $0.00 | $0.00 | $112.42 | $0.00 |
| 2025 | 16708 | EMS1 - FIRE DIST #1 EMS | $21.62 | $21.62 | $0.00 | $0.00 | $43.24 | $0.00 |
| 2025 | 16708 | JCCD - JC Conservation District | $2.55 | $2.55 | $0.00 | $0.00 | $5.10 | $0.00 |
| 2025 | 16708 | NWA - Noxious Weed Assessment | $2.15 | $2.15 | $0.00 | $0.00 | $4.30 | $0.00 |
| 2025 | 16708 | TOTAL: | $325.25 | $325.17 | $0.00 | $0.00 | $650.42 | $0.00 |
|
| 2025 | 16708 | $325.25 | $325.17 | $0.00 | $0.00 | $650.42 | $0.00 |
Statement Details |
| 2024 | 16742 | STATE - STATE LEVY (SCHOOL) | $80.17 | $80.17 | $0.00 | $0.00 | $160.34 | $0.00 |
| 2024 | 16742 | COUNTY - COUNTY LEVIES (CE, DD, VET, MH) | $43.83 | $43.80 | $0.00 | $0.00 | $87.63 | $0.00 |
| 2024 | 16742 | CONSERVE - CONSERVATION FUTURES | $1.32 | $1.31 | $0.00 | $0.00 | $2.63 | $0.00 |
| 2024 | 16742 | CITYPT - CITY OF PT | $61.13 | $61.11 | $0.00 | $0.00 | $122.24 | $0.00 |
| 2024 | 16742 | PORTPT - PORT DISTRICT | $18.10 | $18.10 | $0.00 | $0.00 | $36.20 | $0.00 |
| 2024 | 16742 | PUD1 - PUD #1 | $2.88 | $2.88 | $0.00 | $0.00 | $5.76 | $0.00 |
| 2024 | 16742 | HD2 - HOSP DIST #2 | $2.56 | $2.55 | $0.00 | $0.00 | $5.11 | $0.00 |
| 2024 | 16742 | SD50 - SCHOOL DIST #50 | $31.33 | $31.32 | $0.00 | $0.00 | $62.65 | $0.00 |
| 2024 | 16742 | FD1 - FIRE DISTRICT #1 | $57.94 | $57.94 | $0.00 | $0.00 | $115.88 | $0.00 |
| 2024 | 16742 | EMS1 - FIRE DIST #1 EMS | $22.13 | $22.13 | $0.00 | $0.00 | $44.26 | $0.00 |
| 2024 | 16742 | JCCD - JC Conservation District | $2.55 | $2.55 | $0.00 | $0.00 | $5.10 | $0.00 |
| 2024 | 16742 | NWA - Noxious Weed Assessment | $2.15 | $2.15 | $0.00 | $0.00 | $4.30 | $0.00 |
| 2024 | 16742 | TOTAL: | $326.09 | $326.01 | $0.00 | $0.00 | $652.10 | $0.00 |
|
| 2024 | 16742 | $326.09 | $326.01 | $0.00 | $0.00 | $652.10 | $0.00 |
Statement Details |
| 2023 | 16766 | STATE - STATE LEVY (SCHOOL) | $81.33 | $81.31 | $0.00 | $0.00 | $162.64 | $0.00 |
| 2023 | 16766 | COUNTY - COUNTY LEVIES (CE, DD, VET, MH) | $45.35 | $45.32 | $0.00 | $0.00 | $90.67 | $0.00 |
| 2023 | 16766 | CONSERVE - CONSERVATION FUTURES | $1.36 | $1.36 | $0.00 | $0.00 | $2.72 | $0.00 |
| 2023 | 16766 | CITYPT - CITY OF PT | $62.51 | $62.50 | $0.00 | $0.00 | $125.01 | $0.00 |
| 2023 | 16766 | PORTPT - PORT DISTRICT | $19.10 | $19.10 | $0.00 | $0.00 | $38.20 | $0.00 |
| 2023 | 16766 | PUD1 - PUD #1 | $3.01 | $3.00 | $0.00 | $0.00 | $6.01 | $0.00 |
| 2023 | 16766 | HD2 - HOSP DIST #2 | $2.66 | $2.64 | $0.00 | $0.00 | $5.30 | $0.00 |
| 2023 | 16766 | SD50 - SCHOOL DIST #50 | $31.03 | $31.02 | $0.00 | $0.00 | $62.05 | $0.00 |
| 2023 | 16766 | FD1 - FIRE DISTRICT #1 | $37.35 | $37.35 | $0.00 | $0.00 | $74.70 | $0.00 |
| 2023 | 16766 | EMS1 - FIRE DIST #1 EMS | $15.89 | $15.89 | $0.00 | $0.00 | $31.78 | $0.00 |
| 2023 | 16766 | JCCD - JC Conservation District | $2.55 | $2.55 | $0.00 | $0.00 | $5.10 | $0.00 |
| 2023 | 16766 | NWA - Noxious Weed Assessment | $2.15 | $2.15 | $0.00 | $0.00 | $4.30 | $0.00 |
| 2023 | 16766 | TOTAL: | $304.29 | $304.19 | $0.00 | $0.00 | $608.48 | $0.00 |
|
| 2023 | 16766 | $304.29 | $304.19 | $0.00 | $0.00 | $608.48 | $0.00 |
Values
| (+) Improvement Homesite Value: | + | $150,870 | |
| (+) Improvement Non-Homesite Value: | + | $47,323 | |
| (+) Land Homesite Value: | + | $152,000 | |
| (+) Land Non-Homesite Value: | + | $8,000 | |
| (+) Curr Use (HS): | + | $0 | $0 |
| (+) Curr Use (NHS): | + | $0 | $0 |
| | | -------------------------- | |
| (=) Market Value: | = | $358,193 | |
| (–) Productivity Loss: | – | $0 | |
| | | -------------------------- | |
| (=) Subtotal: | = | $358,193 | |
| (+) Senior Appraised Value: | + | $137,633 | |
| (+) Non-Senior Appraised Value: | + | $55,323 | |
| | | -------------------------- | |
| (=) Total Appraised Value: | = | $192,956 | |
| (–) Senior Exemption Loss: | – | $82,580 | |
| (–) Exemption Loss: | – | $0 | |
| | | -------------------------- | |
| (=) Taxable Value: | = | $110,376 | |
Taxing Jurisdiction
| Owner: | CHARLES D FLEISHMAN | | |
| % Ownership: | 100.0000000000% | | |
| Total Value: | $358,193 | | |
| Tax Area: | 0110 - C-50F1E1H2 |
| CE | COUNTY CURRENT EXPENSE | 0.9034619479 | $358,193 | $110,376 | $99.72 | | |
| CNTYDD | DEVELOPMENTAL DISABILITIES | 0.0052121823 | $358,193 | $110,376 | $0.58 | | |
| CNTYVET | VETERANS RELIEF | 0.0052777810 | $358,193 | $110,376 | $0.58 | | |
| MENTAL | MENTAL HEALTH | 0.0052121823 | $358,193 | $110,376 | $0.58 | | |
| PTGEN | CITY OF PT GENERAL | 0.8551967795 | $358,193 | $110,376 | $94.39 | | |
| PTLLL | CITY OF PT - LIBRARY LID LIFT | 0.4010114288 | $358,193 | $110,376 | $44.26 | | |
| PTMVBOND | CITY OF PT MV BOND | 0.0000000000 | $358,193 | $55,323 | $2.68 | | |
| HOSP2CASH | HOSP DIST #2 GENERAL | 0.0536075306 | $358,193 | $110,376 | $5.92 | | |
| SCH50BOND | SCHOOL DIST #50 BOND 2016 | 0.0000000000 | $358,193 | $55,323 | $29.75 | | |
| SCH50CP | SCHOOL DIST #50 CAP PROJ | 0.0000000000 | $358,193 | $55,323 | $25.30 | | |
| SCH50MO | SCHOOL DIST #50 EP & O | 0.0000000000 | $358,193 | $55,323 | $45.71 | | |
| CONSERVE | CONSERVATION FUTURES | 0.0275621078 | $358,193 | $110,376 | $3.04 | | |
| EMS1 | FIRE DIST #1 EMS | 0.4679948282 | $358,193 | $110,376 | $51.66 | | |
| FD1 | FIRE DIST #1 GENERAL | 1.2171942929 | $358,193 | $110,376 | $134.35 | | |
| PORTPT | PORT OF PT GENERAL | 0.1134941229 | $358,193 | $110,376 | $12.53 | | |
| PORTPTIDD | PORT OF PT IDD 2019 | 0.2577346692 | $358,193 | $110,376 | $28.45 | | |
| PUD1 | PUD #1 GENERAL | 0.0597888892 | $358,193 | $110,376 | $6.60 | | |
| STATE | STATE SCHOOL PART 1 | 1.4940692947 | $358,193 | $110,376 | $164.91 | | |
| STATE2 | STATE SCHOOL PART 2 | 0.0000000000 | $358,193 | $55,323 | $44.54 | | |
| | Total Tax Rate: | 5.8668180373 | | | | | |
| | | | | Taxes w/Current Exemptions: | $795.55 | | |
| | | | | Taxes w/o Exemptions: | $3,059.58 | | |
Improvement / Building
| Improvement #1: | Residential Bldg | State Code: | 11 | 702.0 sqft | Value: | $150,870 |
| Bathrooms (#): | 2 (FULL) | Bedrooms (#): | 1 | | Exterior Wall: | SI/ST | Floor Construction: | FRAME | | Foundation: | CONPR | Heating/Cooling: | ELBB | | Inside Verify: | NO | Roof Cover: | COMP |
|
| | Type | Description | Class CD | Sub Class CD | Year Built | Area |
| | MA | Main Area | 3+ | 1S | 1925 | 702.0 |
| | HWPOR | House Wood Porch | 3 | 1S | 1925 | 84.0 |
| | HDECK | House Deck | 3 | 1S | 1925 | 112.0 |
| Improvement #2: | Residential Bldg | State Code: | 11 | 280.0 sqft | Value: | $47,323 |
| Bathrooms (#): | 1 (FULL) | Exterior Wall: | SI/ST | | Floor Construction: | CONCR | Foundation: | CONPR | | Heating/Cooling: | ELBB | Inside Verify: | NO | | Roof Cover: | COMP |   |   |
|
Sketch
Property Image
Land
| 1 | 6210-1175L | | 0.0000 | 0.00 | 0.00 | 0.00 | 1.00 | $160,000 | $0 |
Roll Value History
| 2026 | N/A | N/A | N/A | N/A | N/A |
| 2025 | $198,193 | $160,000 | $0 | $358,193 | $110,376 |
| 2024 | $180,117 | $147,000 | $0 | $327,117 | $90,338 |
| 2023 | $172,285 | $135,000 | $0 | $307,285 | $88,523 |
| 2022 | $172,285 | $130,000 | $0 | $302,285 | $88,273 |
Deed and Sales History
| 1 | 07/29/2016 | QCD | Quit Claim Deed | CHARLES FLEISHMAN LIVING TRUST | CHARLES D FLEISHMAN | | | | 125947 | |
| 2 | 08/13/2013 | QCD | Quit Claim Deed | | | | | | 119898 | |
| 3 | 08/13/2013 | QCD | Quit Claim Deed | | | | | | 119899 | |
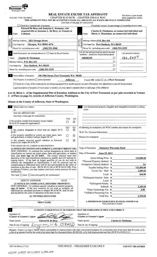
| 4 | 06/25/2013 | SWD | Statutory Warranty Deed | EDWARD B DE BRAY | CHARLES D FLEISHMAN | | | $132,000.00 | 119537 | |
| 5 | 02/02/2011 | SPWD | Special Warranty Deed | FEDERAL NATIONAL MTG ASSO | DEBRAY, EDWARD B/JEANNINE L | 0 | 0 | $0.00 | 115507 | 0 |
| 6 | 03/19/2010 | WD | Warranty Deed | RECONTRUST CO NA | FEDERAL NATIONAL MORTGAGE ASSO | 0 | 0 | $0.00 | 114184 | 0 |
| 7 | 08/05/2003 | SWD | Statutory Warranty Deed | BLOEMKER, DAVID | SMITH, DOMINICK/MCNAMARA, ERIN | 0 | 0 | $135,000.00 | 97987 | 0 |
|   | |
| 8 | 04/28/1996 | SWD | Statutory Warranty Deed | BARNHART, D G | BLOEMKER, DAVID | 0 | 0 | $0.00 | 79446 | 0 |
| 9 | 04/27/1995 | SWD | Statutory Warranty Deed | BARNHART, D G | BLOEMKER, DAVID | 0 | 0 | $80,000.00 | 76806 | 0 |
| 10 | 02/26/1993 | SWD | Statutory Warranty Deed | HILL, MARY JO/JIMMIE B SR | BARNHART, D.G. | 0 | 0 | $40,000.00 | 70559 | 0 |
Payout Agreement
| No payout information available.. |