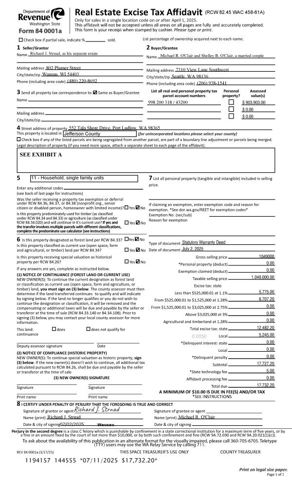
Property
Account |
| Property ID: | 27304 | Abbreviated Legal Description: | EISENBEIS ADDITION BLK 4 LOT 8 |
| Parcel # / Geo ID: | 948300404 | Agent Code: | |
| Type: | Real | | |
| Tax Area: | 0110 - C-50F1E1H2 | Land Use Code | 11 |
| Open Space: | N | DFL | N |
| Historic Property: | N | Remodel Property: | N |
| Multi-Family Redevelopment: | N | | |
| Township: | 30N | Section: | 10 |
| Range: | 1W |
Location |
| Address: | 1936 HAINES ST PORT TOWNSEND, WA 98368 | Mapsco: | 021/023 |
| Neighborhood: | EISENBEIS, OC HASTINGS & SUPP, PINKS LESS VICTORIAN VILLAGE | Map ID: | |
| Neighborhood CD: | 6210 |
Owner |
| Name: | 1936 HAINES STREET TRUST | Owner ID: | 112950 |
| Mailing Address: | STEPHEN P HOECK JR TRUSTEE 3811 BAY DR MIDDLE RIVER, MD 21220-4407 | % Ownership: | 100.0000000000% |
| | | Exemptions: | |
Pay Tax Due
There is currently No Amount Due on this property.
Taxes and Assessment Details
Property Tax Information as of
03/12/2026
Click on "Statement Details" to expand or collapse a tax statement.
* Please enter a valid date ** Please enter a valid date *
Statement Details |
| 2026 | 16669 | STATE - STATE LEVY (SCHOOL) | $381.53 | $381.52 | $0.00 | $0.00 | $763.05 | $0.00 |
| 2026 | 16669 | COUNTY - COUNTY LEVIES (CE, DD, VET, MH) | $152.55 | $152.51 | $0.00 | $0.00 | $305.06 | $0.00 |
| 2026 | 16669 | CONSERVE - CONSERVATION FUTURES | $4.58 | $4.57 | $0.00 | $0.00 | $9.15 | $0.00 |
| 2026 | 16669 | CITYPT - CITY OF PT | $216.52 | $216.49 | $0.00 | $0.00 | $433.01 | $0.00 |
| 2026 | 16669 | PORTPT - PORT DISTRICT | $61.61 | $61.60 | $0.00 | $0.00 | $123.21 | $0.00 |
| 2026 | 16669 | PUD1 - PUD #1 | $9.92 | $9.92 | $0.00 | $0.00 | $19.84 | $0.00 |
| 2026 | 16669 | HD2 - HOSP DIST #2 | $8.90 | $8.89 | $0.00 | $0.00 | $17.79 | $0.00 |
| 2026 | 16669 | SD50 - SCHOOL DIST #50 | $302.26 | $302.23 | $0.00 | $0.00 | $604.49 | $0.00 |
| 2026 | 16669 | FD1 - FIRE DISTRICT #1 | $201.99 | $201.98 | $0.00 | $0.00 | $403.97 | $0.00 |
| 2026 | 16669 | EMS1 - FIRE DIST #1 EMS | $77.66 | $77.66 | $0.00 | $0.00 | $155.32 | $0.00 |
| 2026 | 16669 | JCCD - JC Conservation District | $2.55 | $2.55 | $0.00 | $0.00 | $5.10 | $0.00 |
| 2026 | 16669 | NWA - Noxious Weed Assessment | $2.98 | $2.97 | $0.00 | $0.00 | $5.95 | $0.00 |
| 2026 | 16669 | TOTAL: | $1423.05 | $1422.89 | $0.00 | $0.00 | $2845.94 | $0.00 |
|
| 2026 | 16669 | $1423.05 | $1422.89 | $0.00 | $0.00 | $2845.94 | $0.00 |
Statement Details |
| 2025 | 16723 | STATE - STATE LEVY (SCHOOL) | $338.25 | $338.24 | $0.00 | $0.00 | $676.49 | $0.00 |
| 2025 | 16723 | COUNTY - COUNTY LEVIES (CE, DD, VET, MH) | $133.03 | $133.00 | $0.00 | $0.00 | $266.03 | $0.00 |
| 2025 | 16723 | CONSERVE - CONSERVATION FUTURES | $3.99 | $3.99 | $0.00 | $0.00 | $7.98 | $0.00 |
| 2025 | 16723 | CITYPT - CITY OF PT | $191.82 | $191.81 | $0.00 | $0.00 | $383.63 | $0.00 |
| 2025 | 16723 | PORTPT - PORT DISTRICT | $54.29 | $54.27 | $0.00 | $0.00 | $108.56 | $0.00 |
| 2025 | 16723 | PUD1 - PUD #1 | $8.71 | $8.70 | $0.00 | $0.00 | $17.41 | $0.00 |
| 2025 | 16723 | HD2 - HOSP DIST #2 | $7.76 | $7.76 | $0.00 | $0.00 | $15.52 | $0.00 |
| 2025 | 16723 | SD50 - SCHOOL DIST #50 | $247.21 | $247.19 | $0.00 | $0.00 | $494.40 | $0.00 |
| 2025 | 16723 | FD1 - FIRE DISTRICT #1 | $175.53 | $175.52 | $0.00 | $0.00 | $351.05 | $0.00 |
| 2025 | 16723 | EMS1 - FIRE DIST #1 EMS | $67.51 | $67.51 | $0.00 | $0.00 | $135.02 | $0.00 |
| 2025 | 16723 | JCCD - JC Conservation District | $2.55 | $2.55 | $0.00 | $0.00 | $5.10 | $0.00 |
| 2025 | 16723 | NWA - Noxious Weed Assessment | $2.15 | $2.15 | $0.00 | $0.00 | $4.30 | $0.00 |
| 2025 | 16723 | TOTAL: | $1232.80 | $1232.69 | $0.00 | $0.00 | $2465.49 | $0.00 |
|
| 2025 | 16723 | $1232.80 | $1232.69 | $0.00 | $0.00 | $2465.49 | $0.00 |
Statement Details |
| 2024 | 16757 | STATE - STATE LEVY (SCHOOL) | $305.77 | $305.75 | $0.00 | $0.00 | $611.52 | $0.00 |
| 2024 | 16757 | COUNTY - COUNTY LEVIES (CE, DD, VET, MH) | $130.84 | $130.84 | $0.00 | $0.00 | $261.68 | $0.00 |
| 2024 | 16757 | CONSERVE - CONSERVATION FUTURES | $3.93 | $3.92 | $0.00 | $0.00 | $7.85 | $0.00 |
| 2024 | 16757 | CITYPT - CITY OF PT | $186.95 | $186.94 | $0.00 | $0.00 | $373.89 | $0.00 |
| 2024 | 16757 | PORTPT - PORT DISTRICT | $54.05 | $54.03 | $0.00 | $0.00 | $108.08 | $0.00 |
| 2024 | 16757 | PUD1 - PUD #1 | $8.60 | $8.59 | $0.00 | $0.00 | $17.19 | $0.00 |
| 2024 | 16757 | HD2 - HOSP DIST #2 | $7.64 | $7.63 | $0.00 | $0.00 | $15.27 | $0.00 |
| 2024 | 16757 | SD50 - SCHOOL DIST #50 | $247.37 | $247.37 | $0.00 | $0.00 | $494.74 | $0.00 |
| 2024 | 16757 | FD1 - FIRE DISTRICT #1 | $173.00 | $172.99 | $0.00 | $0.00 | $345.99 | $0.00 |
| 2024 | 16757 | EMS1 - FIRE DIST #1 EMS | $66.08 | $66.08 | $0.00 | $0.00 | $132.16 | $0.00 |
| 2024 | 16757 | JCCD - JC Conservation District | $2.55 | $2.55 | $0.00 | $0.00 | $5.10 | $0.00 |
| 2024 | 16757 | NWA - Noxious Weed Assessment | $2.15 | $2.15 | $0.00 | $0.00 | $4.30 | $0.00 |
| 2024 | 16757 | TOTAL: | $1188.93 | $1188.84 | $0.00 | $0.00 | $2377.77 | $0.00 |
|
| 2024 | 16757 | $1188.93 | $1188.84 | $0.00 | $0.00 | $2377.77 | $0.00 |
Statement Details |
| 2023 | 16781 | STATE - STATE LEVY (SCHOOL) | $293.47 | $293.45 | $0.00 | $0.00 | $586.92 | $0.00 |
| 2023 | 16781 | COUNTY - COUNTY LEVIES (CE, DD, VET, MH) | $128.07 | $128.04 | $0.00 | $0.00 | $256.11 | $0.00 |
| 2023 | 16781 | CONSERVE - CONSERVATION FUTURES | $3.84 | $3.84 | $0.00 | $0.00 | $7.68 | $0.00 |
| 2023 | 16781 | CITYPT - CITY OF PT | $181.00 | $180.98 | $0.00 | $0.00 | $361.98 | $0.00 |
| 2023 | 16781 | PORTPT - PORT DISTRICT | $53.95 | $53.94 | $0.00 | $0.00 | $107.89 | $0.00 |
| 2023 | 16781 | PUD1 - PUD #1 | $8.49 | $8.49 | $0.00 | $0.00 | $16.98 | $0.00 |
| 2023 | 16781 | HD2 - HOSP DIST #2 | $7.48 | $7.47 | $0.00 | $0.00 | $14.95 | $0.00 |
| 2023 | 16781 | SD50 - SCHOOL DIST #50 | $232.87 | $232.87 | $0.00 | $0.00 | $465.74 | $0.00 |
| 2023 | 16781 | FD1 - FIRE DISTRICT #1 | $105.50 | $105.49 | $0.00 | $0.00 | $210.99 | $0.00 |
| 2023 | 16781 | EMS1 - FIRE DIST #1 EMS | $44.88 | $44.87 | $0.00 | $0.00 | $89.75 | $0.00 |
| 2023 | 16781 | JCCD - JC Conservation District | $2.55 | $2.55 | $0.00 | $0.00 | $5.10 | $0.00 |
| 2023 | 16781 | NWA - Noxious Weed Assessment | $2.15 | $2.15 | $0.00 | $0.00 | $4.30 | $0.00 |
| 2023 | 16781 | TOTAL: | $1064.25 | $1064.14 | $0.00 | $0.00 | $2128.39 | $0.00 |
|
| 2023 | 16781 | $1064.25 | $1064.14 | $0.00 | $0.00 | $2128.39 | $0.00 |
Values
| (+) Improvement Homesite Value: | + | $0 | |
| (+) Improvement Non-Homesite Value: | + | $196,890 | |
| (+) Land Homesite Value: | + | $0 | |
| (+) Land Non-Homesite Value: | + | $135,000 | |
| (+) Curr Use (HS): | + | $0 | $0 |
| (+) Curr Use (NHS): | + | $0 | $0 |
| | | -------------------------- | |
| (=) Market Value: | = | $331,890 | |
| (–) Productivity Loss: | – | $0 | |
| | | -------------------------- | |
| (=) Subtotal: | = | $331,890 | |
| (+) Senior Appraised Value: | + | $0 | |
| (+) Non-Senior Appraised Value: | + | $331,890 | |
| | | -------------------------- | |
| (=) Total Appraised Value: | = | $331,890 | |
| (–) Senior Exemption Loss: | – | $0 | |
| (–) Exemption Loss: | – | $0 | |
| | | -------------------------- | |
| (=) Taxable Value: | = | $331,890 | |
Taxing Jurisdiction
| Owner: | 1936 HAINES STREET TRUST | | |
| % Ownership: | 100.0000000000% | | |
| Total Value: | $331,890 | | |
| Tax Area: | 0110 - C-50F1E1H2 |
| CE | COUNTY CURRENT EXPENSE | 0.9034619479 | $331,890 | $331,890 | $299.85 | | |
| CNTYDD | DEVELOPMENTAL DISABILITIES | 0.0052121823 | $331,890 | $331,890 | $1.73 | | |
| CNTYVET | VETERANS RELIEF | 0.0052777810 | $331,890 | $331,890 | $1.75 | | |
| MENTAL | MENTAL HEALTH | 0.0052121823 | $331,890 | $331,890 | $1.73 | | |
| PTGEN | CITY OF PT GENERAL | 0.8551967795 | $331,890 | $331,890 | $283.83 | | |
| PTLLL | CITY OF PT - LIBRARY LID LIFT | 0.4010114288 | $331,890 | $331,890 | $133.09 | | |
| PTMVBOND | CITY OF PT MV BOND | 0.0484717981 | $331,890 | $331,890 | $16.09 | | |
| HOSP2CASH | HOSP DIST #2 GENERAL | 0.0536075306 | $331,890 | $331,890 | $17.79 | | |
| SCH50BOND | SCHOOL DIST #50 BOND 2016 | 0.5377451389 | $331,890 | $331,890 | $178.47 | | |
| SCH50CP | SCHOOL DIST #50 CAP PROJ | 0.4573475088 | $331,890 | $331,890 | $151.79 | | |
| SCH50MO | SCHOOL DIST #50 EP & O | 0.8262822886 | $331,890 | $331,890 | $274.23 | | |
| CONSERVE | CONSERVATION FUTURES | 0.0275621078 | $331,890 | $331,890 | $9.15 | | |
| EMS1 | FIRE DIST #1 EMS | 0.4679948282 | $331,890 | $331,890 | $155.32 | | |
| FD1 | FIRE DIST #1 GENERAL | 1.2171942929 | $331,890 | $331,890 | $403.97 | | |
| PORTPT | PORT OF PT GENERAL | 0.1134941229 | $331,890 | $331,890 | $37.67 | | |
| PORTPTIDD | PORT OF PT IDD 2019 | 0.2577346692 | $331,890 | $331,890 | $85.54 | | |
| PUD1 | PUD #1 GENERAL | 0.0597888892 | $331,890 | $331,890 | $19.84 | | |
| STATE | STATE SCHOOL PART 1 | 1.4940692947 | $331,890 | $331,890 | $495.87 | | |
| STATE2 | STATE SCHOOL PART 2 | 0.8050170049 | $331,890 | $331,890 | $267.18 | | |
| | Total Tax Rate: | 8.5416817766 | | | | | |
| | | | | Taxes w/Current Exemptions: | $2,834.89 | | |
| | | | | Taxes w/o Exemptions: | $2,834.89 | | |
Improvement / Building
| Improvement #1: | Residential Bldg | State Code: | 11 | 1370.0 sqft | Value: | $196,890 |
| Bathrooms (#): | 1 (FULL) | Bedrooms (#): | 3 | | Exterior Wall: | PL/T1 | Fireplace: | WD ST-AVG | | Floor Construction: | FRAME | Foundation: | CONPR | | Heating/Cooling: | ELBB | Inside Verify: | YES-FIX | | Roof Cover: | COMP |   |   |
|
| | Type | Description | Class CD | Sub Class CD | Year Built | Area |
| | MA | Main Area | 3 | 1S | 1941 | 1370.0 |
| | HDECK | House Deck | 3 | 1S | 1941 | 275.0 |
| | SHED | Shed (Table Not Dep) | 2 | 1S | 1941 | 0.0 |
Sketch
Property Image
Land
| 1 | 6210-1185L | | 0.0000 | 0.00 | 0.00 | 0.00 | 1.00 | $135,000 | $0 |
Roll Value History
| 2026 | N/A | N/A | N/A | N/A | N/A |
| 2025 | $196,890 | $135,000 | $0 | $331,890 | $331,890 |
| 2024 | $156,101 | $126,000 | $0 | $282,101 | $282,101 |
| 2023 | $149,314 | $115,000 | $0 | $264,314 | $264,314 |
| 2022 | $149,314 | $100,000 | $0 | $249,314 | $249,314 |
Deed and Sales History
| 1 | 07/18/2025 | SWD | Statutory Warranty Deed | LINDA M JACKSON | 1936 HAINES STREET TRUST | | | $161,000.00 | 144625 | |
| 2 | 01/26/2008 | SWD | Statutory Warranty Deed | FULLER, RALPH LYLE | JACKSON, LINDA MARIE | 0 | 0 | $180,000.00 | 110768 | 0 |
| 3 | 01/15/2008 | QCD | Quit Claim Deed | JACKSON, LINDA M | FULLER, RALPH LYLE | 0 | 0 | $0.00 | 110707 | 0 |
| 4 | 10/12/2006 | QCD | Quit Claim Deed | FULLER, RALPH L | JACKSON, LINDA MARIE | 0 | 0 | $0.00 | 107839 | 0 |
Payout Agreement
| No payout information available.. |