Property
Account |
| Property ID: | 27305 | Abbreviated Legal Description: | EISENBEIS ADDITION BLK 4 LOTS 3 & 4(W1/2 OF EA) BND THRU LLA#139140 SUBJ/EASE/ REST COVE AF#653987 |
| Parcel # / Geo ID: | 948300406 | Agent Code: | |
| Type: | Real | | |
| Tax Area: | 0110 - C-50F1E1H2 | Land Use Code | 91 |
| Open Space: | N | DFL | N |
| Historic Property: | N | Remodel Property: | N |
| Multi-Family Redevelopment: | N | | |
| Township: | 30N | Section: | 10 |
| Range: | 1W |
Location |
| Address: | 200 19TH ST PORT TOWNSEND, WA 98368 | Mapsco: | 021/020 |
| Neighborhood: | EISENBEIS, OC HASTINGS & SUPP, PINKS LESS VICTORIAN VILLAGE | Map ID: | |
| Neighborhood CD: | 6210 |
Owner |
| Name: | LESLIE A & KINNON MCDONELL | Owner ID: | 108520 |
| Mailing Address: | 11627 204TH AVE NE REDMOND, WA 98053-5310 | % Ownership: | 100.0000000000% |
| | | Exemptions: | |
Pay Tax Due
Select the appropriate checkbox next to the year to be paid. Multiple years may be selected.
*Convenience Fee not included
Taxes and Assessment Details
Property Tax Information as of
03/10/2026
Click on "Statement Details" to expand or collapse a tax statement.
* Please enter a valid date ** Please enter a valid date *
Statement Details |
| 2026 | 16670 | STATE - STATE LEVY (SCHOOL) | $176.46 | $176.45 | $0.00 | $0.00 | $0.00 | $352.91 |
| 2026 | 16670 | COUNTY - COUNTY LEVIES (CE, DD, VET, MH) | $70.55 | $70.54 | $0.00 | $0.00 | $0.00 | $141.09 |
| 2026 | 16670 | CONSERVE - CONSERVATION FUTURES | $2.12 | $2.11 | $0.00 | $0.00 | $0.00 | $4.23 |
| 2026 | 16670 | CITYPT - CITY OF PT | $100.14 | $100.13 | $0.00 | $0.00 | $0.00 | $200.27 |
| 2026 | 16670 | PORTPT - PORT DISTRICT | $28.49 | $28.49 | $0.00 | $0.00 | $0.00 | $56.98 |
| 2026 | 16670 | PUD1 - PUD #1 | $4.59 | $4.59 | $0.00 | $0.00 | $0.00 | $9.18 |
| 2026 | 16670 | HD2 - HOSP DIST #2 | $4.12 | $4.11 | $0.00 | $0.00 | $0.00 | $8.23 |
| 2026 | 16670 | SD50 - SCHOOL DIST #50 | $139.79 | $139.78 | $0.00 | $0.00 | $0.00 | $279.57 |
| 2026 | 16670 | FD1 - FIRE DISTRICT #1 | $93.42 | $93.42 | $0.00 | $0.00 | $0.00 | $186.84 |
| 2026 | 16670 | EMS1 - FIRE DIST #1 EMS | $35.92 | $35.92 | $0.00 | $0.00 | $0.00 | $71.84 |
| 2026 | 16670 | JCCD - JC Conservation District | $2.53 | $2.53 | $0.00 | $0.00 | $0.00 | $5.06 |
| 2026 | 16670 | NWA - Noxious Weed Assessment | $2.98 | $2.97 | $0.00 | $0.00 | $0.00 | $5.95 |
| 2026 | 16670 | WAT - Clean Water District | $13.00 | $13.00 | $0.00 | $0.00 | $0.00 | $26.00 |
| 2026 | 16670 | TOTAL: | $674.11 | $674.04 | $0.00 | $0.00 | $0.00 | $1348.15 |
|
| 2026 | 16670 | $674.11 | $674.04 | $0.00 | $0.00 | $0.00 | $1348.15 |
Statement Details |
| 2025 | 16724 | STATE - STATE LEVY (SCHOOL) | $176.26 | $176.25 | $0.00 | $0.00 | $352.51 | $0.00 |
| 2025 | 16724 | COUNTY - COUNTY LEVIES (CE, DD, VET, MH) | $69.31 | $69.30 | $0.00 | $0.00 | $138.61 | $0.00 |
| 2025 | 16724 | CONSERVE - CONSERVATION FUTURES | $2.08 | $2.08 | $0.00 | $0.00 | $4.16 | $0.00 |
| 2025 | 16724 | CITYPT - CITY OF PT | $99.96 | $99.94 | $0.00 | $0.00 | $199.90 | $0.00 |
| 2025 | 16724 | PORTPT - PORT DISTRICT | $28.29 | $28.28 | $0.00 | $0.00 | $56.57 | $0.00 |
| 2025 | 16724 | PUD1 - PUD #1 | $4.54 | $4.53 | $0.00 | $0.00 | $9.07 | $0.00 |
| 2025 | 16724 | HD2 - HOSP DIST #2 | $4.05 | $4.04 | $0.00 | $0.00 | $8.09 | $0.00 |
| 2025 | 16724 | SD50 - SCHOOL DIST #50 | $128.82 | $128.80 | $0.00 | $0.00 | $257.62 | $0.00 |
| 2025 | 16724 | FD1 - FIRE DISTRICT #1 | $91.47 | $91.46 | $0.00 | $0.00 | $182.93 | $0.00 |
| 2025 | 16724 | EMS1 - FIRE DIST #1 EMS | $35.18 | $35.18 | $0.00 | $0.00 | $70.36 | $0.00 |
| 2025 | 16724 | JCCD - JC Conservation District | $2.53 | $2.53 | $0.00 | $0.00 | $5.06 | $0.00 |
| 2025 | 16724 | NWA - Noxious Weed Assessment | $2.15 | $2.15 | $0.00 | $0.00 | $4.30 | $0.00 |
| 2025 | 16724 | WAT - Clean Water District | $13.00 | $13.00 | $0.00 | $0.00 | $26.00 | $0.00 |
| 2025 | 16724 | TOTAL: | $657.64 | $657.54 | $0.00 | $0.00 | $1315.18 | $0.00 |
|
| 2025 | 16724 | $657.64 | $657.54 | $0.00 | $0.00 | $1315.18 | $0.00 |
Statement Details |
| 2024 | 16758 | STATE - STATE LEVY (SCHOOL) | $156.18 | $156.16 | $0.00 | $0.00 | $312.34 | $0.00 |
| 2024 | 16758 | COUNTY - COUNTY LEVIES (CE, DD, VET, MH) | $66.83 | $66.81 | $0.00 | $0.00 | $133.64 | $0.00 |
| 2024 | 16758 | CONSERVE - CONSERVATION FUTURES | $2.01 | $2.00 | $0.00 | $0.00 | $4.01 | $0.00 |
| 2024 | 16758 | CITYPT - CITY OF PT | $95.50 | $95.47 | $0.00 | $0.00 | $190.97 | $0.00 |
| 2024 | 16758 | PORTPT - PORT DISTRICT | $27.60 | $27.60 | $0.00 | $0.00 | $55.20 | $0.00 |
| 2024 | 16758 | PUD1 - PUD #1 | $4.39 | $4.39 | $0.00 | $0.00 | $8.78 | $0.00 |
| 2024 | 16758 | HD2 - HOSP DIST #2 | $3.90 | $3.90 | $0.00 | $0.00 | $7.80 | $0.00 |
| 2024 | 16758 | SD50 - SCHOOL DIST #50 | $126.35 | $126.34 | $0.00 | $0.00 | $252.69 | $0.00 |
| 2024 | 16758 | FD1 - FIRE DISTRICT #1 | $88.36 | $88.36 | $0.00 | $0.00 | $176.72 | $0.00 |
| 2024 | 16758 | EMS1 - FIRE DIST #1 EMS | $33.75 | $33.75 | $0.00 | $0.00 | $67.50 | $0.00 |
| 2024 | 16758 | JCCD - JC Conservation District | $2.53 | $2.53 | $0.00 | $0.00 | $5.06 | $0.00 |
| 2024 | 16758 | NWA - Noxious Weed Assessment | $2.15 | $2.15 | $0.00 | $0.00 | $4.30 | $0.00 |
| 2024 | 16758 | WAT - Clean Water District | $12.50 | $12.50 | $0.00 | $0.00 | $25.00 | $0.00 |
| 2024 | 16758 | TOTAL: | $622.05 | $621.96 | $0.00 | $0.00 | $1244.01 | $0.00 |
|
| 2024 | 16758 | $622.05 | $621.96 | $0.00 | $0.00 | $1244.01 | $0.00 |
Statement Details |
| 2023 | 16782 | STATE - STATE LEVY (SCHOOL) | $129.48 | $129.48 | $0.00 | $0.00 | $258.96 | $0.00 |
| 2023 | 16782 | COUNTY - COUNTY LEVIES (CE, DD, VET, MH) | $56.51 | $56.49 | $0.00 | $0.00 | $113.00 | $0.00 |
| 2023 | 16782 | CONSERVE - CONSERVATION FUTURES | $1.70 | $1.69 | $0.00 | $0.00 | $3.39 | $0.00 |
| 2023 | 16782 | CITYPT - CITY OF PT | $79.85 | $79.85 | $0.00 | $0.00 | $159.70 | $0.00 |
| 2023 | 16782 | PORTPT - PORT DISTRICT | $23.81 | $23.79 | $0.00 | $0.00 | $47.60 | $0.00 |
| 2023 | 16782 | PUD1 - PUD #1 | $3.75 | $3.74 | $0.00 | $0.00 | $7.49 | $0.00 |
| 2023 | 16782 | HD2 - HOSP DIST #2 | $3.31 | $3.29 | $0.00 | $0.00 | $6.60 | $0.00 |
| 2023 | 16782 | SD50 - SCHOOL DIST #50 | $102.75 | $102.74 | $0.00 | $0.00 | $205.49 | $0.00 |
| 2023 | 16782 | FD1 - FIRE DISTRICT #1 | $46.55 | $46.54 | $0.00 | $0.00 | $93.09 | $0.00 |
| 2023 | 16782 | EMS1 - FIRE DIST #1 EMS | $19.80 | $19.80 | $0.00 | $0.00 | $39.60 | $0.00 |
| 2023 | 16782 | JCCD - JC Conservation District | $2.53 | $2.53 | $0.00 | $0.00 | $5.06 | $0.00 |
| 2023 | 16782 | NWA - Noxious Weed Assessment | $2.15 | $2.15 | $0.00 | $0.00 | $4.30 | $0.00 |
| 2023 | 16782 | WAT - Clean Water District | $12.00 | $12.00 | $0.00 | $0.00 | $24.00 | $0.00 |
| 2023 | 16782 | TOTAL: | $484.19 | $484.09 | $0.00 | $0.00 | $968.28 | $0.00 |
|
| 2023 | 16782 | $484.19 | $484.09 | $0.00 | $0.00 | $968.28 | $0.00 |
Values
| (+) Improvement Homesite Value: | + | $0 | |
| (+) Improvement Non-Homesite Value: | + | $0 | |
| (+) Land Homesite Value: | + | $0 | |
| (+) Land Non-Homesite Value: | + | $153,500 | |
| (+) Curr Use (HS): | + | $0 | $0 |
| (+) Curr Use (NHS): | + | $0 | $0 |
| | | -------------------------- | |
| (=) Market Value: | = | $153,500 | |
| (–) Productivity Loss: | – | $0 | |
| | | -------------------------- | |
| (=) Subtotal: | = | $153,500 | |
| (+) Senior Appraised Value: | + | $0 | |
| (+) Non-Senior Appraised Value: | + | $153,500 | |
| | | -------------------------- | |
| (=) Total Appraised Value: | = | $153,500 | |
| (–) Senior Exemption Loss: | – | $0 | |
| (–) Exemption Loss: | – | $0 | |
| | | -------------------------- | |
| (=) Taxable Value: | = | $153,500 | |
Taxing Jurisdiction
| Owner: | LESLIE A & KINNON MCDONELL | | |
| % Ownership: | 100.0000000000% | | |
| Total Value: | N/A | | |
| Tax Area: | 0110 - C-50F1E1H2 |
| CE | COUNTY CURRENT EXPENSE | N/A | N/A | N/A | N/A | | |
| CNTYDD | DEVELOPMENTAL DISABILITIES | N/A | N/A | N/A | N/A | | |
| CNTYVET | VETERANS RELIEF | N/A | N/A | N/A | N/A | | |
| MENTAL | MENTAL HEALTH | N/A | N/A | N/A | N/A | | |
| PTGEN | CITY OF PT GENERAL | N/A | N/A | N/A | N/A | | |
| PTLLL | CITY OF PT - LIBRARY LID LIFT | N/A | N/A | N/A | N/A | | |
| PTMVBOND | CITY OF PT MV BOND | N/A | N/A | N/A | N/A | | |
| HOSP2CASH | HOSP DIST #2 GENERAL | N/A | N/A | N/A | N/A | | |
| SCH50BOND | SCHOOL DIST #50 BOND 2016 | N/A | N/A | N/A | N/A | | |
| SCH50CP | SCHOOL DIST #50 CAP PROJ | N/A | N/A | N/A | N/A | | |
| SCH50MO | SCHOOL DIST #50 EP & O | N/A | N/A | N/A | N/A | | |
| CONSERVE | CONSERVATION FUTURES | N/A | N/A | N/A | N/A | | |
| EMS1 | FIRE DIST #1 EMS | N/A | N/A | N/A | N/A | | |
| FD1 | FIRE DIST #1 GENERAL | N/A | N/A | N/A | N/A | | |
| PORTPT | PORT OF PT GENERAL | N/A | N/A | N/A | N/A | | |
| PORTPTIDD | PORT OF PT IDD 2019 | N/A | N/A | N/A | N/A | | |
| PUD1 | PUD #1 GENERAL | N/A | N/A | N/A | N/A | | |
| STATE | STATE SCHOOL PART 1 | N/A | N/A | N/A | N/A | | |
| STATE2 | STATE SCHOOL PART 2 | N/A | N/A | N/A | N/A | | |
| | Total Tax Rate: | N/A | | | | | |
| | | | | Taxes w/Current Exemptions: | N/A | | |
| | | | | Taxes w/o Exemptions: | N/A | | |
Improvement / Building
Sketch
| No sketches available for this property. |
Property Image
Land
| 1 | 6210-1175L | | 0.0000 | 0.00 | 0.00 | 0.00 | 1.00 | $153,500 | $0 |
Roll Value History
| 2026 | N/A | N/A | N/A | N/A | N/A |
| 2025 | $0 | $153,500 | $0 | $153,500 | $153,500 |
| 2024 | $0 | $147,000 | $0 | $147,000 | $147,000 |
| 2023 | $0 | $135,000 | $0 | $135,000 | $135,000 |
| 2022 | $0 | $110,000 | $0 | $110,000 | $110,000 |
Deed and Sales History
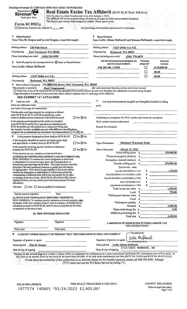
| 1 | 03/13/2023 | SWD | Statutory Warranty Deed | TINA M SEZGUN | LESLIE A & KINNON MCDONELL | | | $150,000.00 | 140665 | |
| 2 | 05/26/2022 | QCD | Quit Claim Deed | TERESA A NOMURA | TINA M SEZGUN | | | | 139153 | |
| 3 | 05/03/2022 | BLA | Boundary Line Adjustment | TINA M & LEVENT SEZGUN | | | | | 139140 | |
| 4 | 01/10/2022 | SWD | Statutory Warranty Deed | PAULA J SNIDER | TINA M & LEVENT SEZGUN | | | $162,910.00 | 138425 | |
| 5 | 07/17/2018 | QCD | Quit Claim Deed | | | | | | 130786 | |
| 6 | 01/26/2011 | SWD | Statutory Warranty Deed | SMITH, DOMINICK B/E MCNAM | SAVIDGE, EDWARD P/PAULA | 0 | 0 | $60,000.00 | 115517 | 0 |
| 7 | 07/11/2002 | SWD | Statutory Warranty Deed | CAROLYN HOFFMANN | DOMINICK SMITH, ERIN MCNAMARA | 0 | 0 | $20,000.00 | 95296 | 0 |
| 8 | 06/08/2000 | SWD | Statutory Warranty Deed | SMITH, DOMINICK/MCNAMARA, | HOFFMANN, CAROLYN | 0 | 0 | $25,000.00 | 89803 | 0 |
| 9 | 10/04/1999 | SWD | Statutory Warranty Deed | DE LEO, HAZEL | SMITH, DOMINICK B & MC NAMARA | 0 | 0 | $32,000.00 | 88021 | 0 |
|   | |
Payout Agreement
| No payout information available.. |