Property
Account |
| Property ID: | 27308 | Abbreviated Legal Description: | EISENBEIS ADDITION BLK 5 LOTS 5 & 6(ENLG BY TAX 41) BND TGTH THRU LLA#105262 |
| Parcel # / Geo ID: | 948300503 | Agent Code: | |
| Type: | Real | | |
| Tax Area: | 0110 - C-50F1E1H2 | Land Use Code | 11 |
| Open Space: | N | DFL | N |
| Historic Property: | N | Remodel Property: | N |
| Multi-Family Redevelopment: | N | | |
| Township: | 30N | Section: | 10 |
| Range: | 1W |
Location |
| Address: | 330 19TH ST PORT TOWNSEND, WA 98368 | Mapsco: | 021/026 |
| Neighborhood: | EISENBEIS, OC HASTINGS & SUPP, PINKS LESS VICTORIAN VILLAGE | Map ID: | |
| Neighborhood CD: | 6210 |
Owner |
| Name: | JOHN F PIATT & NANCY L NASLUND | Owner ID: | 71678 |
| Mailing Address: | 3039 SPRING ST PORT TOWNSEND, WA 98368-5915 | % Ownership: | 100.0000000000% |
| | | Exemptions: | |
Pay Tax Due
There is currently No Amount Due on this property.
Taxes and Assessment Details
Property Tax Information as of
03/12/2026
Click on "Statement Details" to expand or collapse a tax statement.
* Please enter a valid date ** Please enter a valid date *
Statement Details |
| 2026 | 16673 | STATE - STATE LEVY (SCHOOL) | $705.98 | $705.96 | $0.00 | $0.00 | $1411.94 | $0.00 |
| 2026 | 16673 | COUNTY - COUNTY LEVIES (CE, DD, VET, MH) | $282.24 | $282.24 | $0.00 | $0.00 | $564.48 | $0.00 |
| 2026 | 16673 | CONSERVE - CONSERVATION FUTURES | $8.47 | $8.46 | $0.00 | $0.00 | $16.93 | $0.00 |
| 2026 | 16673 | CITYPT - CITY OF PT | $400.63 | $400.61 | $0.00 | $0.00 | $801.24 | $0.00 |
| 2026 | 16673 | PORTPT - PORT DISTRICT | $113.99 | $113.99 | $0.00 | $0.00 | $227.98 | $0.00 |
| 2026 | 16673 | PUD1 - PUD #1 | $18.36 | $18.36 | $0.00 | $0.00 | $36.72 | $0.00 |
| 2026 | 16673 | HD2 - HOSP DIST #2 | $16.46 | $16.46 | $0.00 | $0.00 | $32.92 | $0.00 |
| 2026 | 16673 | SD50 - SCHOOL DIST #50 | $559.29 | $559.27 | $0.00 | $0.00 | $1118.56 | $0.00 |
| 2026 | 16673 | FD1 - FIRE DISTRICT #1 | $373.76 | $373.76 | $0.00 | $0.00 | $747.52 | $0.00 |
| 2026 | 16673 | EMS1 - FIRE DIST #1 EMS | $143.71 | $143.70 | $0.00 | $0.00 | $287.41 | $0.00 |
| 2026 | 16673 | JCCD - JC Conservation District | $2.55 | $2.55 | $0.00 | $0.00 | $5.10 | $0.00 |
| 2026 | 16673 | NWA - Noxious Weed Assessment | $2.98 | $2.97 | $0.00 | $0.00 | $5.95 | $0.00 |
| 2026 | 16673 | TOTAL: | $2628.42 | $2628.33 | $0.00 | $0.00 | $5256.75 | $0.00 |
|
| 2026 | 16673 | $2628.42 | $2628.33 | $0.00 | $0.00 | $5256.75 | $0.00 |
Statement Details |
| 2025 | 16727 | STATE - STATE LEVY (SCHOOL) | $670.23 | $670.21 | $0.00 | $0.00 | $1340.44 | $0.00 |
| 2025 | 16727 | COUNTY - COUNTY LEVIES (CE, DD, VET, MH) | $263.56 | $263.55 | $0.00 | $0.00 | $527.11 | $0.00 |
| 2025 | 16727 | CONSERVE - CONSERVATION FUTURES | $7.91 | $7.90 | $0.00 | $0.00 | $15.81 | $0.00 |
| 2025 | 16727 | CITYPT - CITY OF PT | $380.09 | $380.07 | $0.00 | $0.00 | $760.16 | $0.00 |
| 2025 | 16727 | PORTPT - PORT DISTRICT | $107.56 | $107.54 | $0.00 | $0.00 | $215.10 | $0.00 |
| 2025 | 16727 | PUD1 - PUD #1 | $17.25 | $17.24 | $0.00 | $0.00 | $34.49 | $0.00 |
| 2025 | 16727 | HD2 - HOSP DIST #2 | $15.38 | $15.37 | $0.00 | $0.00 | $30.75 | $0.00 |
| 2025 | 16727 | SD50 - SCHOOL DIST #50 | $489.82 | $489.82 | $0.00 | $0.00 | $979.64 | $0.00 |
| 2025 | 16727 | FD1 - FIRE DISTRICT #1 | $347.80 | $347.79 | $0.00 | $0.00 | $695.59 | $0.00 |
| 2025 | 16727 | EMS1 - FIRE DIST #1 EMS | $133.77 | $133.77 | $0.00 | $0.00 | $267.54 | $0.00 |
| 2025 | 16727 | JCCD - JC Conservation District | $2.55 | $2.55 | $0.00 | $0.00 | $5.10 | $0.00 |
| 2025 | 16727 | NWA - Noxious Weed Assessment | $2.15 | $2.15 | $0.00 | $0.00 | $4.30 | $0.00 |
| 2025 | 16727 | TOTAL: | $2438.07 | $2437.96 | $0.00 | $0.00 | $4876.03 | $0.00 |
|
| 2025 | 16727 | $2438.07 | $2437.96 | $0.00 | $0.00 | $4876.03 | $0.00 |
Statement Details |
| 2024 | 16761 | STATE - STATE LEVY (SCHOOL) | $611.59 | $611.59 | $0.00 | $0.00 | $1223.18 | $0.00 |
| 2024 | 16761 | COUNTY - COUNTY LEVIES (CE, DD, VET, MH) | $261.72 | $261.70 | $0.00 | $0.00 | $523.42 | $0.00 |
| 2024 | 16761 | CONSERVE - CONSERVATION FUTURES | $7.85 | $7.85 | $0.00 | $0.00 | $15.70 | $0.00 |
| 2024 | 16761 | CITYPT - CITY OF PT | $373.95 | $373.93 | $0.00 | $0.00 | $747.88 | $0.00 |
| 2024 | 16761 | PORTPT - PORT DISTRICT | $108.10 | $108.09 | $0.00 | $0.00 | $216.19 | $0.00 |
| 2024 | 16761 | PUD1 - PUD #1 | $17.19 | $17.19 | $0.00 | $0.00 | $34.38 | $0.00 |
| 2024 | 16761 | HD2 - HOSP DIST #2 | $15.27 | $15.27 | $0.00 | $0.00 | $30.54 | $0.00 |
| 2024 | 16761 | SD50 - SCHOOL DIST #50 | $494.82 | $494.80 | $0.00 | $0.00 | $989.62 | $0.00 |
| 2024 | 16761 | FD1 - FIRE DISTRICT #1 | $346.04 | $346.04 | $0.00 | $0.00 | $692.08 | $0.00 |
| 2024 | 16761 | EMS1 - FIRE DIST #1 EMS | $132.18 | $132.17 | $0.00 | $0.00 | $264.35 | $0.00 |
| 2024 | 16761 | JCCD - JC Conservation District | $2.55 | $2.55 | $0.00 | $0.00 | $5.10 | $0.00 |
| 2024 | 16761 | NWA - Noxious Weed Assessment | $2.15 | $2.15 | $0.00 | $0.00 | $4.30 | $0.00 |
| 2024 | 16761 | TOTAL: | $2373.41 | $2373.33 | $0.00 | $0.00 | $4746.74 | $0.00 |
|
| 2024 | 16761 | $2373.41 | $2373.33 | $0.00 | $0.00 | $4746.74 | $0.00 |
Statement Details |
| 2023 | 16785 | STATE - STATE LEVY (SCHOOL) | $616.44 | $616.42 | $0.00 | $0.00 | $1232.86 | $0.00 |
| 2023 | 16785 | COUNTY - COUNTY LEVIES (CE, DD, VET, MH) | $269.00 | $268.97 | $0.00 | $0.00 | $537.97 | $0.00 |
| 2023 | 16785 | CONSERVE - CONSERVATION FUTURES | $8.07 | $8.06 | $0.00 | $0.00 | $16.13 | $0.00 |
| 2023 | 16785 | CITYPT - CITY OF PT | $380.19 | $380.16 | $0.00 | $0.00 | $760.35 | $0.00 |
| 2023 | 16785 | PORTPT - PORT DISTRICT | $113.32 | $113.31 | $0.00 | $0.00 | $226.63 | $0.00 |
| 2023 | 16785 | PUD1 - PUD #1 | $17.83 | $17.83 | $0.00 | $0.00 | $35.66 | $0.00 |
| 2023 | 16785 | HD2 - HOSP DIST #2 | $15.70 | $15.69 | $0.00 | $0.00 | $31.39 | $0.00 |
| 2023 | 16785 | SD50 - SCHOOL DIST #50 | $489.16 | $489.14 | $0.00 | $0.00 | $978.30 | $0.00 |
| 2023 | 16785 | FD1 - FIRE DISTRICT #1 | $221.60 | $221.59 | $0.00 | $0.00 | $443.19 | $0.00 |
| 2023 | 16785 | EMS1 - FIRE DIST #1 EMS | $94.26 | $94.26 | $0.00 | $0.00 | $188.52 | $0.00 |
| 2023 | 16785 | JCCD - JC Conservation District | $2.55 | $2.55 | $0.00 | $0.00 | $5.10 | $0.00 |
| 2023 | 16785 | NWA - Noxious Weed Assessment | $2.15 | $2.15 | $0.00 | $0.00 | $4.30 | $0.00 |
| 2023 | 16785 | TOTAL: | $2230.27 | $2230.13 | $0.00 | $0.00 | $4460.40 | $0.00 |
|
| 2023 | 16785 | $2230.27 | $2230.13 | $0.00 | $0.00 | $4460.40 | $0.00 |
Values
| (+) Improvement Homesite Value: | + | $0 | |
| (+) Improvement Non-Homesite Value: | + | $359,130 | |
| (+) Land Homesite Value: | + | $0 | |
| (+) Land Non-Homesite Value: | + | $255,000 | |
| (+) Curr Use (HS): | + | $0 | $0 |
| (+) Curr Use (NHS): | + | $0 | $0 |
| | | -------------------------- | |
| (=) Market Value: | = | $614,130 | |
| (–) Productivity Loss: | – | $0 | |
| | | -------------------------- | |
| (=) Subtotal: | = | $614,130 | |
| (+) Senior Appraised Value: | + | $0 | |
| (+) Non-Senior Appraised Value: | + | $614,130 | |
| | | -------------------------- | |
| (=) Total Appraised Value: | = | $614,130 | |
| (–) Senior Exemption Loss: | – | $0 | |
| (–) Exemption Loss: | – | $0 | |
| | | -------------------------- | |
| (=) Taxable Value: | = | $614,130 | |
Taxing Jurisdiction
| Owner: | JOHN F PIATT & NANCY L NASLUND | | |
| % Ownership: | 100.0000000000% | | |
| Total Value: | $614,130 | | |
| Tax Area: | 0110 - C-50F1E1H2 |
| CE | COUNTY CURRENT EXPENSE | 0.9034619479 | $614,130 | $614,130 | $554.84 | | |
| CNTYDD | DEVELOPMENTAL DISABILITIES | 0.0052121823 | $614,130 | $614,130 | $3.20 | | |
| CNTYVET | VETERANS RELIEF | 0.0052777810 | $614,130 | $614,130 | $3.24 | | |
| MENTAL | MENTAL HEALTH | 0.0052121823 | $614,130 | $614,130 | $3.20 | | |
| PTGEN | CITY OF PT GENERAL | 0.8551967795 | $614,130 | $614,130 | $525.20 | | |
| PTLLL | CITY OF PT - LIBRARY LID LIFT | 0.4010114288 | $614,130 | $614,130 | $246.27 | | |
| PTMVBOND | CITY OF PT MV BOND | 0.0484717981 | $614,130 | $614,130 | $29.77 | | |
| HOSP2CASH | HOSP DIST #2 GENERAL | 0.0536075306 | $614,130 | $614,130 | $32.92 | | |
| SCH50BOND | SCHOOL DIST #50 BOND 2016 | 0.5377451389 | $614,130 | $614,130 | $330.25 | | |
| SCH50CP | SCHOOL DIST #50 CAP PROJ | 0.4573475088 | $614,130 | $614,130 | $280.87 | | |
| SCH50MO | SCHOOL DIST #50 EP & O | 0.8262822886 | $614,130 | $614,130 | $507.44 | | |
| CONSERVE | CONSERVATION FUTURES | 0.0275621078 | $614,130 | $614,130 | $16.93 | | |
| EMS1 | FIRE DIST #1 EMS | 0.4679948282 | $614,130 | $614,130 | $287.41 | | |
| FD1 | FIRE DIST #1 GENERAL | 1.2171942929 | $614,130 | $614,130 | $747.52 | | |
| PORTPT | PORT OF PT GENERAL | 0.1134941229 | $614,130 | $614,130 | $69.70 | | |
| PORTPTIDD | PORT OF PT IDD 2019 | 0.2577346692 | $614,130 | $614,130 | $158.28 | | |
| PUD1 | PUD #1 GENERAL | 0.0597888892 | $614,130 | $614,130 | $36.72 | | |
| STATE | STATE SCHOOL PART 1 | 1.4940692947 | $614,130 | $614,130 | $917.55 | | |
| STATE2 | STATE SCHOOL PART 2 | 0.8050170049 | $614,130 | $614,130 | $494.39 | | |
| | Total Tax Rate: | 8.5416817766 | | | | | |
| | | | | Taxes w/Current Exemptions: | $5,245.70 | | |
| | | | | Taxes w/o Exemptions: | $5,245.70 | | |
Improvement / Building
| Improvement #1: | Residential Bldg | State Code: | 11 | 1484.0 sqft | Value: | $359,130 |
| Bathrooms (#): | 1 (FULL) | Bathrooms (#): | 1 (HALF) | | Bedrooms (#): | 3 | Exterior Wall: | PL/T1 | | Fireplace: | WD ST-AVG | Floor Construction: | FRAME | | Foundation: | CONPR | Heating/Cooling: | ELBB | | Inside Verify: | YES-FIX | Roof Cover: | COMP |
|
| | Type | Description | Class CD | Sub Class CD | Year Built | Area |
| | MA | Main Area | 4 | 1S | 1972 | 1484.0 |
| | PATIO | House Patio | 4 | 1S | 1972 | 664.0 |
| | GATT | House Attached Garage | 4 | 1S | 1972 | 288.0 |
| | SHED | Shed (Table Not Dep) | 4 | 1S | 1972 | 64.0 |
Sketch
Property Image
Land
| 1 | 6210-1175L | | 0.0000 | 0.00 | 0.00 | 0.00 | 1.00 | $65,000 | $0 |
| 2 | 6210-1165L | | 0.0000 | 0.00 | 0.00 | 0.00 | 1.00 | $190,000 | $0 |
Roll Value History
| 2026 | N/A | N/A | N/A | N/A | N/A |
| 2025 | $359,130 | $255,000 | $0 | $614,130 | $614,130 |
| 2024 | $322,726 | $236,250 | $0 | $558,976 | $558,976 |
| 2023 | $308,694 | $220,000 | $0 | $528,694 | $528,694 |
| 2022 | $308,694 | $215,000 | $0 | $523,694 | $523,694 |
Deed and Sales History
| 1 | 06/10/2022 | SWD | Statutory Warranty Deed | MATTHEW J & ANNA P ROMCEVICH | JOHN F PIATT & NANCY L NASLUND | | | $637,000.00 | 139309 | |
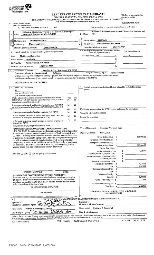
| 2 | 07/07/2020 | SWD | Statutory Warranty Deed | ROBERT H DISHINGTON IRREVOCABLE TRUST | MATTHEW J & ANNA P ROMCEVICH | | | $375,000.00 | 134656 | |
| 3 | 03/08/2019 | QCD | Quit Claim Deed | | | | | | 131952 | |
| 4 | 05/15/2006 | SWD | Statutory Warranty Deed | PARKER, GREG & JEANETTE M | DISHINGTON, ROBERT | | | $265,000.00 | 106698 | 0 |
| 5 | 05/26/2004 | SWD | Statutory Warranty Deed | CANFIELD, RALPH W | PARKER, GREG M & JEANETTE M | 0 | 0 | $125,000.00 | 100359 | 0 |
| 6 | 05/18/2004 | QCD | Quit Claim Deed | CARTMEL, KAREN D | CANFIELD, RALPH W | 0 | 0 | $0.00 | 100252 | 0 |
| 7 | 07/29/2002 | QCD | Quit Claim Deed | RALPH W CANFIELD | RALPH & SHARON CANFIELD | 0 | 0 | $0.00 | 95182 | 0 |
| 8 | 07/29/2002 | QCD | Quit Claim Deed | RALPH & SHARON CANFIELD | RALPH W CANFIELD | 0 | 0 | $0.00 | 95183 | 0 |
| 9 | 07/29/2002 | QCD | Quit Claim Deed | RALPH CANFIELD | KAREN CARTMEL | 0 | 0 | $0.00 | 95184 | 0 |
| 10 | 04/02/2002 | QCD | Quit Claim Deed | CANFIELD, RALPH W/SHARON | CARTMEL, KAREN D | 0 | 0 | $0.00 | 94360 | 0 |
Payout Agreement
| No payout information available.. |