Property
Account |
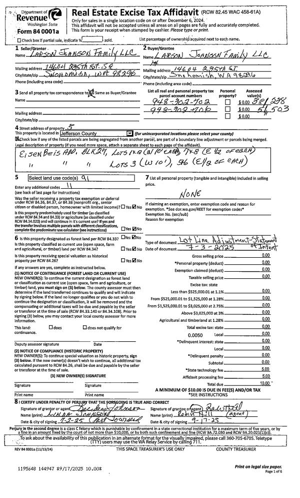
| Property ID: | 27365 | Abbreviated Legal Description: | EISENBEIS ADDITION BLK 27 LOTS 3(W10' LS N5'), 5(E1/2), & 6(E1/2 LS N5') ALL BND TGTH THRU LLA#144947/LUP24-055 |
| Parcel # / Geo ID: | 948302706 | Agent Code: | |
| Type: | Real | | |
| Tax Area: | 0110 - C-50F1E1H2 | Land Use Code | 91 |
| Open Space: | N | DFL | N |
| Historic Property: | N | Remodel Property: | N |
| Multi-Family Redevelopment: | N | | |
| Township: | 30N | Section: | 10 |
| Range: | 1W |
Location |
| Address: | | Mapsco: | 022/026 |
| Neighborhood: | EISENBEIS, OC HASTINGS & SUPP, PINKS LESS VICTORIAN VILLAGE | Map ID: | |
| Neighborhood CD: | 6210 |
Owner |
| Name: | LARSON JOHNSON FAMILY LLC | Owner ID: | 107996 |
| Mailing Address: | 14604 235TH ST SE SNOHOMISH, WA 98296-6841 | % Ownership: | 100.0000000000% |
| | | Exemptions: | |
Pay Tax Due
Select the appropriate checkbox next to the year to be paid. Multiple years may be selected.
*Convenience Fee not included
Taxes and Assessment Details
Property Tax Information as of
03/12/2026
Click on "Statement Details" to expand or collapse a tax statement.
* Please enter a valid date ** Please enter a valid date *
Statement Details |
| 2026 | 16726 | STATE - STATE LEVY (SCHOOL) | $67.60 | $67.58 | $0.00 | $0.00 | $0.00 | $135.18 |
| 2026 | 16726 | COUNTY - COUNTY LEVIES (CE, DD, VET, MH) | $27.04 | $27.01 | $0.00 | $0.00 | $0.00 | $54.05 |
| 2026 | 16726 | CONSERVE - CONSERVATION FUTURES | $0.81 | $0.81 | $0.00 | $0.00 | $0.00 | $1.62 |
| 2026 | 16726 | CITYPT - CITY OF PT | $38.37 | $38.35 | $0.00 | $0.00 | $0.00 | $76.72 |
| 2026 | 16726 | PORTPT - PORT DISTRICT | $10.92 | $10.90 | $0.00 | $0.00 | $0.00 | $21.82 |
| 2026 | 16726 | PUD1 - PUD #1 | $1.76 | $1.76 | $0.00 | $0.00 | $0.00 | $3.52 |
| 2026 | 16726 | HD2 - HOSP DIST #2 | $1.58 | $1.57 | $0.00 | $0.00 | $0.00 | $3.15 |
| 2026 | 16726 | SD50 - SCHOOL DIST #50 | $53.56 | $53.54 | $0.00 | $0.00 | $0.00 | $107.10 |
| 2026 | 16726 | FD1 - FIRE DISTRICT #1 | $35.79 | $35.78 | $0.00 | $0.00 | $0.00 | $71.57 |
| 2026 | 16726 | EMS1 - FIRE DIST #1 EMS | $13.76 | $13.76 | $0.00 | $0.00 | $0.00 | $27.52 |
| 2026 | 16726 | JCCD - JC Conservation District | $2.53 | $2.53 | $0.00 | $0.00 | $0.00 | $5.06 |
| 2026 | 16726 | NWA - Noxious Weed Assessment | $2.98 | $2.97 | $0.00 | $0.00 | $0.00 | $5.95 |
| 2026 | 16726 | WAT - Clean Water District | $13.00 | $13.00 | $0.00 | $0.00 | $0.00 | $26.00 |
| 2026 | 16726 | TOTAL: | $269.70 | $269.56 | $0.00 | $0.00 | $0.00 | $539.26 |
|
| 2026 | 16726 | $269.70 | $269.56 | $0.00 | $0.00 | $0.00 | $539.26 |
Statement Details |
| 2025 | 16780 | STATE - STATE LEVY (SCHOOL) | $61.76 | $61.75 | $0.00 | $0.00 | $123.51 | $0.00 |
| 2025 | 16780 | COUNTY - COUNTY LEVIES (CE, DD, VET, MH) | $24.29 | $24.27 | $0.00 | $0.00 | $48.56 | $0.00 |
| 2025 | 16780 | CONSERVE - CONSERVATION FUTURES | $0.73 | $0.73 | $0.00 | $0.00 | $1.46 | $0.00 |
| 2025 | 16780 | CITYPT - CITY OF PT | $35.03 | $35.01 | $0.00 | $0.00 | $70.04 | $0.00 |
| 2025 | 16780 | PORTPT - PORT DISTRICT | $9.91 | $9.91 | $0.00 | $0.00 | $19.82 | $0.00 |
| 2025 | 16780 | PUD1 - PUD #1 | $1.59 | $1.59 | $0.00 | $0.00 | $3.18 | $0.00 |
| 2025 | 16780 | HD2 - HOSP DIST #2 | $1.42 | $1.41 | $0.00 | $0.00 | $2.83 | $0.00 |
| 2025 | 16780 | SD50 - SCHOOL DIST #50 | $45.14 | $45.13 | $0.00 | $0.00 | $90.27 | $0.00 |
| 2025 | 16780 | FD1 - FIRE DISTRICT #1 | $32.05 | $32.04 | $0.00 | $0.00 | $64.09 | $0.00 |
| 2025 | 16780 | EMS1 - FIRE DIST #1 EMS | $12.33 | $12.32 | $0.00 | $0.00 | $24.65 | $0.00 |
| 2025 | 16780 | JCCD - JC Conservation District | $2.53 | $2.53 | $0.00 | $0.00 | $5.06 | $0.00 |
| 2025 | 16780 | NWA - Noxious Weed Assessment | $2.15 | $2.15 | $0.00 | $0.00 | $4.30 | $0.00 |
| 2025 | 16780 | WAT - Clean Water District | $13.00 | $13.00 | $0.00 | $0.00 | $26.00 | $0.00 |
| 2025 | 16780 | TOTAL: | $241.93 | $241.84 | $0.00 | $0.00 | $483.77 | $0.00 |
|
| 2025 | 16780 | $241.93 | $241.84 | $0.00 | $0.00 | $483.77 | $0.00 |
Statement Details |
| 2024 | 16814 | STATE - STATE LEVY (SCHOOL) | $56.74 | $56.74 | $0.00 | $0.00 | $113.48 | $0.00 |
| 2024 | 16814 | COUNTY - COUNTY LEVIES (CE, DD, VET, MH) | $24.29 | $24.26 | $0.00 | $0.00 | $48.55 | $0.00 |
| 2024 | 16814 | CONSERVE - CONSERVATION FUTURES | $0.73 | $0.73 | $0.00 | $0.00 | $1.46 | $0.00 |
| 2024 | 16814 | CITYPT - CITY OF PT | $34.69 | $34.69 | $0.00 | $0.00 | $69.38 | $0.00 |
| 2024 | 16814 | PORTPT - PORT DISTRICT | $10.03 | $10.03 | $0.00 | $0.00 | $20.06 | $0.00 |
| 2024 | 16814 | PUD1 - PUD #1 | $1.60 | $1.59 | $0.00 | $0.00 | $3.19 | $0.00 |
| 2024 | 16814 | HD2 - HOSP DIST #2 | $1.42 | $1.41 | $0.00 | $0.00 | $2.83 | $0.00 |
| 2024 | 16814 | SD50 - SCHOOL DIST #50 | $45.92 | $45.89 | $0.00 | $0.00 | $91.81 | $0.00 |
| 2024 | 16814 | FD1 - FIRE DISTRICT #1 | $32.11 | $32.10 | $0.00 | $0.00 | $64.21 | $0.00 |
| 2024 | 16814 | EMS1 - FIRE DIST #1 EMS | $12.27 | $12.26 | $0.00 | $0.00 | $24.53 | $0.00 |
| 2024 | 16814 | JCCD - JC Conservation District | $2.53 | $2.53 | $0.00 | $0.00 | $5.06 | $0.00 |
| 2024 | 16814 | NWA - Noxious Weed Assessment | $2.15 | $2.15 | $0.00 | $0.00 | $4.30 | $0.00 |
| 2024 | 16814 | WAT - Clean Water District | $12.50 | $12.50 | $0.00 | $0.00 | $25.00 | $0.00 |
| 2024 | 16814 | TOTAL: | $236.98 | $236.88 | $0.00 | $0.00 | $473.86 | $0.00 |
|
| 2024 | 16814 | $236.98 | $236.88 | $0.00 | $0.00 | $473.86 | $0.00 |
Statement Details |
| 2023 | 16838 | STATE - STATE LEVY (SCHOOL) | $51.33 | $51.31 | $0.00 | $0.00 | $102.64 | $0.00 |
| 2023 | 16838 | COUNTY - COUNTY LEVIES (CE, DD, VET, MH) | $22.40 | $22.38 | $0.00 | $0.00 | $44.78 | $0.00 |
| 2023 | 16838 | CONSERVE - CONSERVATION FUTURES | $0.67 | $0.67 | $0.00 | $0.00 | $1.34 | $0.00 |
| 2023 | 16838 | CITYPT - CITY OF PT | $31.66 | $31.65 | $0.00 | $0.00 | $63.31 | $0.00 |
| 2023 | 16838 | PORTPT - PORT DISTRICT | $9.44 | $9.43 | $0.00 | $0.00 | $18.87 | $0.00 |
| 2023 | 16838 | PUD1 - PUD #1 | $1.49 | $1.48 | $0.00 | $0.00 | $2.97 | $0.00 |
| 2023 | 16838 | HD2 - HOSP DIST #2 | $1.31 | $1.30 | $0.00 | $0.00 | $2.61 | $0.00 |
| 2023 | 16838 | SD50 - SCHOOL DIST #50 | $40.73 | $40.72 | $0.00 | $0.00 | $81.45 | $0.00 |
| 2023 | 16838 | FD1 - FIRE DISTRICT #1 | $18.45 | $18.45 | $0.00 | $0.00 | $36.90 | $0.00 |
| 2023 | 16838 | EMS1 - FIRE DIST #1 EMS | $7.85 | $7.85 | $0.00 | $0.00 | $15.70 | $0.00 |
| 2023 | 16838 | JCCD - JC Conservation District | $2.53 | $2.53 | $0.00 | $0.00 | $5.06 | $0.00 |
| 2023 | 16838 | NWA - Noxious Weed Assessment | $2.15 | $2.15 | $0.00 | $0.00 | $4.30 | $0.00 |
| 2023 | 16838 | WAT - Clean Water District | $12.00 | $12.00 | $0.00 | $0.00 | $24.00 | $0.00 |
| 2023 | 16838 | TOTAL: | $202.01 | $201.92 | $0.00 | $0.00 | $403.93 | $0.00 |
|
| 2023 | 16838 | $202.01 | $201.92 | $0.00 | $0.00 | $403.93 | $0.00 |
Values
| (+) Improvement Homesite Value: | + | $0 | |
| (+) Improvement Non-Homesite Value: | + | $0 | |
| (+) Land Homesite Value: | + | $0 | |
| (+) Land Non-Homesite Value: | + | $58,800 | |
| (+) Curr Use (HS): | + | $0 | $0 |
| (+) Curr Use (NHS): | + | $0 | $0 |
| | | -------------------------- | |
| (=) Market Value: | = | $58,800 | |
| (–) Productivity Loss: | – | $0 | |
| | | -------------------------- | |
| (=) Subtotal: | = | $58,800 | |
| (+) Senior Appraised Value: | + | $0 | |
| (+) Non-Senior Appraised Value: | + | $58,800 | |
| | | -------------------------- | |
| (=) Total Appraised Value: | = | $58,800 | |
| (–) Senior Exemption Loss: | – | $0 | |
| (–) Exemption Loss: | – | $0 | |
| | | -------------------------- | |
| (=) Taxable Value: | = | $58,800 | |
Taxing Jurisdiction
| Owner: | LARSON JOHNSON FAMILY LLC | | |
| % Ownership: | 100.0000000000% | | |
| Total Value: | $58,800 | | |
| Tax Area: | 0110 - C-50F1E1H2 |
| CE | COUNTY CURRENT EXPENSE | 0.9034619479 | $58,800 | $58,800 | $53.12 | | |
| CNTYDD | DEVELOPMENTAL DISABILITIES | 0.0052121823 | $58,800 | $58,800 | $0.31 | | |
| CNTYVET | VETERANS RELIEF | 0.0052777810 | $58,800 | $58,800 | $0.31 | | |
| MENTAL | MENTAL HEALTH | 0.0052121823 | $58,800 | $58,800 | $0.31 | | |
| PTGEN | CITY OF PT GENERAL | 0.8551967795 | $58,800 | $58,800 | $50.29 | | |
| PTLLL | CITY OF PT - LIBRARY LID LIFT | 0.4010114288 | $58,800 | $58,800 | $23.58 | | |
| PTMVBOND | CITY OF PT MV BOND | 0.0484717981 | $58,800 | $58,800 | $2.85 | | |
| HOSP2CASH | HOSP DIST #2 GENERAL | 0.0536075306 | $58,800 | $58,800 | $3.15 | | |
| SCH50BOND | SCHOOL DIST #50 BOND 2016 | 0.5377451389 | $58,800 | $58,800 | $31.62 | | |
| SCH50CP | SCHOOL DIST #50 CAP PROJ | 0.4573475088 | $58,800 | $58,800 | $26.89 | | |
| SCH50MO | SCHOOL DIST #50 EP & O | 0.8262822886 | $58,800 | $58,800 | $48.59 | | |
| CONSERVE | CONSERVATION FUTURES | 0.0275621078 | $58,800 | $58,800 | $1.62 | | |
| EMS1 | FIRE DIST #1 EMS | 0.4679948282 | $58,800 | $58,800 | $27.52 | | |
| FD1 | FIRE DIST #1 GENERAL | 1.2171942929 | $58,800 | $58,800 | $71.57 | | |
| PORTPT | PORT OF PT GENERAL | 0.1134941229 | $58,800 | $58,800 | $6.67 | | |
| PORTPTIDD | PORT OF PT IDD 2019 | 0.2577346692 | $58,800 | $58,800 | $15.15 | | |
| PUD1 | PUD #1 GENERAL | 0.0597888892 | $58,800 | $58,800 | $3.52 | | |
| STATE | STATE SCHOOL PART 1 | 1.4940692947 | $58,800 | $58,800 | $87.85 | | |
| STATE2 | STATE SCHOOL PART 2 | 0.8050170049 | $58,800 | $58,800 | $47.34 | | |
| | Total Tax Rate: | 8.5416817766 | | | | | |
| | | | | Taxes w/Current Exemptions: | $502.26 | | |
| | | | | Taxes w/o Exemptions: | $502.26 | | |
Improvement / Building
Sketch
| No sketches available for this property. |
Property Image
Land
| 1 | 6210-1185L | | 0.0000 | 0.00 | 0.00 | 0.00 | 1.00 | $58,800 | $0 |
Roll Value History
| 2026 | N/A | N/A | N/A | N/A | N/A |
| 2025 | $0 | $58,800 | $0 | $58,800 | $58,800 |
| 2024 | $0 | $51,503 | $0 | $51,503 | $51,503 |
| 2023 | $0 | $49,050 | $0 | $49,050 | $49,050 |
| 2022 | $0 | $43,600 | $0 | $43,600 | $43,600 |
Deed and Sales History
| 1 | 07/03/2025 | BLA | Boundary Line Adjustment | LARSON JOHNSON FAMILY LLC | LARSON JOHNSON FAMILY LLC | | | | 144947 | |
| 2 | 10/31/2022 | BSD | Bargain and Sale Deed | LINDA M JOHNSON | LARSON JOHNSON FAMILY LLC | | | | 140191 | |
| 3 | 06/23/1996 | MISC | MISC | LINDA LARSON | LINDA M JOHNSON | | | | 0 | |
Payout Agreement
| No payout information available.. |