Property
Account |
| Property ID: | 27375 | Abbreviated Legal Description: | EISENBEIS ADDITION BLK 28 LOTS 29 TO 32 |
| Parcel # / Geo ID: | 948302811 | Agent Code: | |
| Type: | Real | | |
| Tax Area: | 0110 - C-50F1E1H2 | Land Use Code | 11 |
| Open Space: | N | DFL | N |
| Historic Property: | N | Remodel Property: | N |
| Multi-Family Redevelopment: | N | | |
| Township: | 30N | Section: | 10 |
| Range: | 1W |
Location |
| Address: | 1730 HILL ST PORT TOWNSEND, WA 98368 | Mapsco: | 022/044 |
| Neighborhood: | EISENBEIS - LANDES/19TH/LAGOON AREA NON-COM | Map ID: | |
| Neighborhood CD: | 6215 |
Owner |
| Name: | LETICIA AGUILA | Owner ID: | 111552 |
| Mailing Address: | DEVIN GONZALEZ LORI CAMERON 1730 HILL ST PORT TOWNSEND, WA 98368-6029 | % Ownership: | 100.0000000000% |
| | | Exemptions: | |
Pay Tax Due
There is currently No Amount Due on this property.
Taxes and Assessment Details
Property Tax Information as of
03/11/2026
Click on "Statement Details" to expand or collapse a tax statement.
* Please enter a valid date ** Please enter a valid date *
Statement Details |
| | TOTAL: | $0.00 | $0.00 | $0.00 | $0.00 | $0.00 | $0.00 |
|
| | $0.00 | $0.00 | $0.00 | $0.00 | $0.00 | $0.00 |
Values
| (+) Improvement Homesite Value: | + | $0 | |
| (+) Improvement Non-Homesite Value: | + | $472,398 | |
| (+) Land Homesite Value: | + | $0 | |
| (+) Land Non-Homesite Value: | + | $232,000 | |
| (+) Curr Use (HS): | + | $0 | $0 |
| (+) Curr Use (NHS): | + | $0 | $0 |
| | | -------------------------- | |
| (=) Market Value: | = | $704,398 | |
| (–) Productivity Loss: | – | $0 | |
| | | -------------------------- | |
| (=) Subtotal: | = | $704,398 | |
| (+) Senior Appraised Value: | + | $0 | |
| (+) Non-Senior Appraised Value: | + | $704,398 | |
| | | -------------------------- | |
| (=) Total Appraised Value: | = | $704,398 | |
| (–) Senior Exemption Loss: | – | $0 | |
| (–) Exemption Loss: | – | $0 | |
| | | -------------------------- | |
| (=) Taxable Value: | = | $704,398 | |
Taxing Jurisdiction
| Owner: | LETICIA AGUILA | | |
| % Ownership: | 100.0000000000% | | |
| Total Value: | $704,398 | | |
| Tax Area: | 0110 - C-50F1E1H2 |
| CE | COUNTY CURRENT EXPENSE | 0.9034619479 | $704,398 | $704,398 | $636.40 | | |
| CNTYDD | DEVELOPMENTAL DISABILITIES | 0.0052121823 | $704,398 | $704,398 | $3.67 | | |
| CNTYVET | VETERANS RELIEF | 0.0052777810 | $704,398 | $704,398 | $3.72 | | |
| MENTAL | MENTAL HEALTH | 0.0052121823 | $704,398 | $704,398 | $3.67 | | |
| PTGEN | CITY OF PT GENERAL | 0.8551967795 | $704,398 | $704,398 | $602.40 | | |
| PTLLL | CITY OF PT - LIBRARY LID LIFT | 0.4010114288 | $704,398 | $704,398 | $282.47 | | |
| PTMVBOND | CITY OF PT MV BOND | 0.0484717981 | $704,398 | $704,398 | $34.14 | | |
| HOSP2CASH | HOSP DIST #2 GENERAL | 0.0536075306 | $704,398 | $704,398 | $37.76 | | |
| SCH50BOND | SCHOOL DIST #50 BOND 2016 | 0.5377451389 | $704,398 | $704,398 | $378.79 | | |
| SCH50CP | SCHOOL DIST #50 CAP PROJ | 0.4573475088 | $704,398 | $704,398 | $322.15 | | |
| SCH50MO | SCHOOL DIST #50 EP & O | 0.8262822886 | $704,398 | $704,398 | $582.03 | | |
| CONSERVE | CONSERVATION FUTURES | 0.0275621078 | $704,398 | $704,398 | $19.41 | | |
| EMS1 | FIRE DIST #1 EMS | 0.4679948282 | $704,398 | $704,398 | $329.65 | | |
| FD1 | FIRE DIST #1 GENERAL | 1.2171942929 | $704,398 | $704,398 | $857.39 | | |
| PORTPT | PORT OF PT GENERAL | 0.1134941229 | $704,398 | $704,398 | $79.95 | | |
| PORTPTIDD | PORT OF PT IDD 2019 | 0.2577346692 | $704,398 | $704,398 | $181.55 | | |
| PUD1 | PUD #1 GENERAL | 0.0597888892 | $704,398 | $704,398 | $42.12 | | |
| STATE | STATE SCHOOL PART 1 | 1.4940692947 | $704,398 | $704,398 | $1,052.42 | | |
| STATE2 | STATE SCHOOL PART 2 | 0.8050170049 | $704,398 | $704,398 | $567.05 | | |
| | Total Tax Rate: | 8.5416817766 | | | | | |
| | | | | Taxes w/Current Exemptions: | $6,016.74 | | |
| | | | | Taxes w/o Exemptions: | $6,016.74 | | |
Improvement / Building
| Improvement #1: | Residential Bldg | State Code: | 11 | 2100.0 sqft | Value: | $472,398 |
| Bathrooms (#): | 1 (FULL) | Bathrooms (#): | 1 (HALF) | | Bedrooms (#): | 4 | Exterior Wall: | SI/ST | | Fireplace: | SIN 1-AVG | Floor Construction: | FRAME | | Foundation: | CONPR | Heating/Cooling: | HTWTR | | Roof Cover: | BLTUP |   |   |
|
| | Type | Description | Class CD | Sub Class CD | Year Built | Area |
| | MA | Main Area | 4- | HSPL | 1942 | 2100.0 |
| | PATIO | House Patio | 3 | HSPL | 1942 | 880.0 |
| | HDECK | House Deck | 3 | HSPL | 1942 | 810.0 |
| | BSMTF | House basement finished | 3 | HSPL | 1942 | 1000.0 |
| | GBSMT | Basement Garage | 3 | HSPL | 1942 | 1000.0 |
Sketch
Property Image
Land
| 1 | 6215-1185L | Standard 3000SF Lot (No View) | 0.0000 | 0.00 | 0.00 | 0.00 | 3.00 | $117,000 | $0 |
| 2 | 6215-1175L | Standard 3000SF Lot (Fair) | 0.0000 | 0.00 | 0.00 | 0.00 | 1.00 | $115,000 | $0 |
Roll Value History
| 2026 | N/A | N/A | N/A | N/A | N/A |
| 2025 | $472,398 | $232,000 | $0 | $704,398 | $704,398 |
| 2024 | $530,474 | $252,000 | $0 | $782,474 | $782,474 |
| 2023 | $507,410 | $235,000 | $0 | $742,410 | $742,410 |
| 2022 | $507,410 | $215,000 | $0 | $722,410 | $722,410 |
Deed and Sales History
| 1 | 09/24/2024 | SWD | Statutory Warranty Deed | CYNTHIA A KUNO & MARY JO TORGESON | LETICIA AGUILA | | | $705,000.00 | 143315 | |
| 2 | 03/12/2019 | SWD | Statutory Warranty Deed | WILLIAM & CLAIRE GRINDALL | CYNTHIA A KUNO & MARY JO TORGESON | | | $520,000.00 | 131986 | |
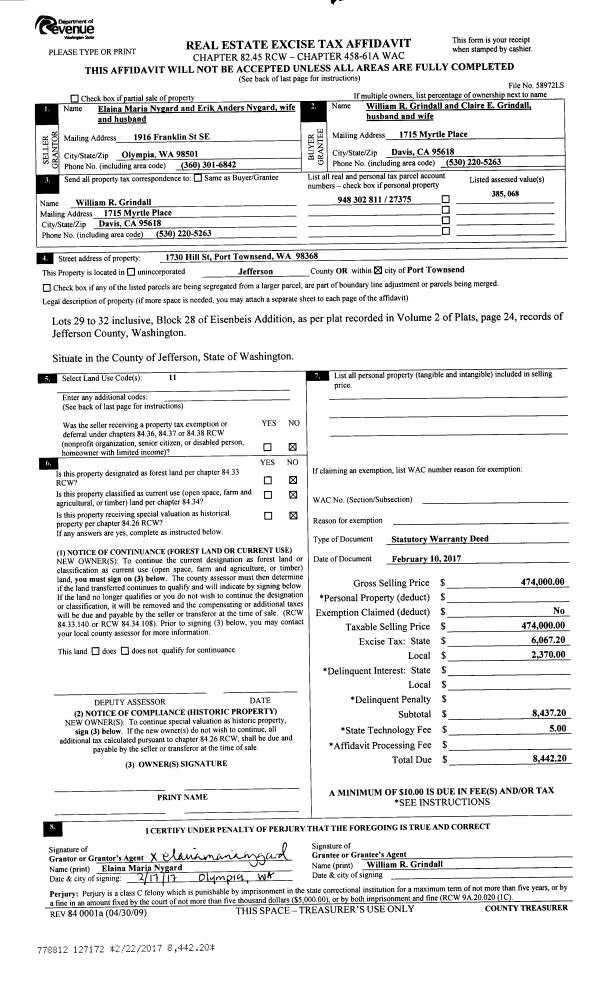
| 3 | 02/10/2017 | SWD | Statutory Warranty Deed | ELAINA M NYGARD | WILLIAM & CLAIRE GRINDALL | | | $474,000.00 | 127172 | |
| 4 | 05/24/2005 | SWD | Statutory Warranty Deed | HIGDON, NANCY | NYGARD, ELAINA/ERIK | | | $440,000.00 | 103720 | 0 |
| 5 | 06/24/2004 | SWD | Statutory Warranty Deed | CRABTREE, JULIE A/JERRY L | HIGDON, NANCY | 0 | 0 | $385,000.00 | 100726 | 0 |
| 6 | 01/08/1992 | SWD | Statutory Warranty Deed | WARD, LEONARD E/SHEILA M | CRABTREE, JULIE ANN/JERRY L | 0 | 0 | $122,500.00 | 67541 | 0 |
Payout Agreement
| No payout information available.. |