Property
Account |
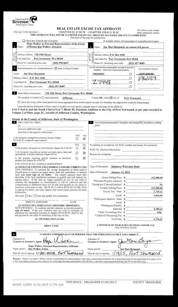
| Property ID: | 27448 | Abbreviated Legal Description: | EISENBEIS ADDITION BLK 45 LOTS 5 & 6(ALL), 7(S4') SUBJ TO EASE |
| Parcel # / Geo ID: | 948304503 | Agent Code: | |
| Type: | Real | | |
| Tax Area: | 0110 - C-50F1E1H2 | Land Use Code | 11 |
| Open Space: | N | DFL | N |
| Historic Property: | N | Remodel Property: | N |
| Multi-Family Redevelopment: | N | | |
| Township: | 30N | Section: | 10 |
| Range: | 1W |
Location |
| Address: | 730 19TH ST PORT TOWNSEND, WA 98368 | Mapsco: | 024/041 |
| Neighborhood: | EISENBEIS, OC HASTINGS & SUPP, PINKS LESS VICTORIAN VILLAGE | Map ID: | |
| Neighborhood CD: | 6210 |
Owner |
| Name: | JAN MARI BENJAMIN | Owner ID: | 93063 |
| Mailing Address: | 730 19TH ST PORT TOWNSEND, WA 98368 | % Ownership: | 100.0000000000% |
| | | Exemptions: | |
Pay Tax Due
Select the appropriate checkbox next to the year to be paid. Multiple years may be selected.
*Convenience Fee not included
Taxes and Assessment Details
Property Tax Information as of
03/11/2026
Click on "Statement Details" to expand or collapse a tax statement.
* Please enter a valid date ** Please enter a valid date *
Statement Details |
| 2026 | 16806 | STATE - STATE LEVY (SCHOOL) | $529.72 | $529.70 | $0.00 | $0.00 | $529.72 | $529.70 |
| 2026 | 16806 | COUNTY - COUNTY LEVIES (CE, DD, VET, MH) | $211.78 | $211.77 | $0.00 | $0.00 | $211.78 | $211.77 |
| 2026 | 16806 | CONSERVE - CONSERVATION FUTURES | $6.35 | $6.35 | $0.00 | $0.00 | $6.35 | $6.35 |
| 2026 | 16806 | CITYPT - CITY OF PT | $300.61 | $300.60 | $0.00 | $0.00 | $300.61 | $300.60 |
| 2026 | 16806 | PORTPT - PORT DISTRICT | $85.53 | $85.53 | $0.00 | $0.00 | $85.53 | $85.53 |
| 2026 | 16806 | PUD1 - PUD #1 | $13.78 | $13.77 | $0.00 | $0.00 | $13.78 | $13.77 |
| 2026 | 16806 | HD2 - HOSP DIST #2 | $12.35 | $12.35 | $0.00 | $0.00 | $12.35 | $12.35 |
| 2026 | 16806 | SD50 - SCHOOL DIST #50 | $419.66 | $419.63 | $0.00 | $0.00 | $419.66 | $419.63 |
| 2026 | 16806 | FD1 - FIRE DISTRICT #1 | $280.45 | $280.44 | $0.00 | $0.00 | $280.45 | $280.44 |
| 2026 | 16806 | EMS1 - FIRE DIST #1 EMS | $107.83 | $107.82 | $0.00 | $0.00 | $107.83 | $107.82 |
| 2026 | 16806 | JCCD - JC Conservation District | $2.55 | $2.55 | $0.00 | $0.00 | $2.55 | $2.55 |
| 2026 | 16806 | NWA - Noxious Weed Assessment | $2.98 | $2.97 | $0.00 | $0.00 | $2.98 | $2.97 |
| 2026 | 16806 | TOTAL: | $1973.59 | $1973.48 | $0.00 | $0.00 | $1973.59 | $1973.48 |
|
| 2026 | 16806 | $1973.59 | $1973.48 | $0.00 | $0.00 | $1973.59 | $1973.48 |
Statement Details |
| 2025 | 16861 | STATE - STATE LEVY (SCHOOL) | $499.98 | $499.96 | $0.00 | $0.00 | $999.94 | $0.00 |
| 2025 | 16861 | COUNTY - COUNTY LEVIES (CE, DD, VET, MH) | $196.61 | $196.60 | $0.00 | $0.00 | $393.21 | $0.00 |
| 2025 | 16861 | CONSERVE - CONSERVATION FUTURES | $5.90 | $5.89 | $0.00 | $0.00 | $11.79 | $0.00 |
| 2025 | 16861 | CITYPT - CITY OF PT | $283.54 | $283.52 | $0.00 | $0.00 | $567.06 | $0.00 |
| 2025 | 16861 | PORTPT - PORT DISTRICT | $80.23 | $80.22 | $0.00 | $0.00 | $160.45 | $0.00 |
| 2025 | 16861 | PUD1 - PUD #1 | $12.87 | $12.86 | $0.00 | $0.00 | $25.73 | $0.00 |
| 2025 | 16861 | HD2 - HOSP DIST #2 | $11.47 | $11.47 | $0.00 | $0.00 | $22.94 | $0.00 |
| 2025 | 16861 | SD50 - SCHOOL DIST #50 | $365.40 | $365.38 | $0.00 | $0.00 | $730.78 | $0.00 |
| 2025 | 16861 | FD1 - FIRE DISTRICT #1 | $259.45 | $259.45 | $0.00 | $0.00 | $518.90 | $0.00 |
| 2025 | 16861 | EMS1 - FIRE DIST #1 EMS | $99.79 | $99.79 | $0.00 | $0.00 | $199.58 | $0.00 |
| 2025 | 16861 | TOTAL: | $1815.24 | $1815.14 | $0.00 | $0.00 | $3630.38 | $0.00 |
|
| 2025 | 16861 | $1815.24 | $1815.14 | $0.00 | $0.00 | $3630.38 | $0.00 |
Statement Details |
| 2024 | 16895 | STATE - STATE LEVY (SCHOOL) | $296.00 | $296.00 | $0.00 | $0.00 | $592.00 | $0.00 |
| 2024 | 16895 | COUNTY - COUNTY LEVIES (CE, DD, VET, MH) | $194.62 | $194.60 | $0.00 | $0.00 | $389.22 | $0.00 |
| 2024 | 16895 | CONSERVE - CONSERVATION FUTURES | $5.84 | $5.83 | $0.00 | $0.00 | $11.67 | $0.00 |
| 2024 | 16895 | CITYPT - CITY OF PT | $267.40 | $267.39 | $0.00 | $0.00 | $534.79 | $0.00 |
| 2024 | 16895 | PORTPT - PORT DISTRICT | $80.38 | $80.38 | $0.00 | $0.00 | $160.76 | $0.00 |
| 2024 | 16895 | PUD1 - PUD #1 | $12.78 | $12.78 | $0.00 | $0.00 | $25.56 | $0.00 |
| 2024 | 16895 | HD2 - HOSP DIST #2 | $11.36 | $11.35 | $0.00 | $0.00 | $22.71 | $0.00 |
| 2024 | 16895 | SD50 - SCHOOL DIST #50 | $0.00 | $0.00 | $0.00 | $0.00 | $0.00 | $0.00 |
| 2024 | 16895 | FD1 - FIRE DISTRICT #1 | $257.32 | $257.31 | $0.00 | $0.00 | $514.63 | $0.00 |
| 2024 | 16895 | EMS1 - FIRE DIST #1 EMS | $98.29 | $98.28 | $0.00 | $0.00 | $196.57 | $0.00 |
| 2024 | 16895 | JCCD - JC Conservation District | $2.55 | $2.55 | $0.00 | $0.00 | $5.10 | $0.00 |
| 2024 | 16895 | NWA - Noxious Weed Assessment | $2.15 | $2.15 | $0.00 | $0.00 | $4.30 | $0.00 |
| 2024 | 16895 | TOTAL: | $1228.69 | $1228.62 | $0.00 | $0.00 | $2457.31 | $0.00 |
|
| 2024 | 16895 | $1228.69 | $1228.62 | $0.00 | $0.00 | $2457.31 | $0.00 |
Statement Details |
| 2023 | 16919 | STATE - STATE LEVY (SCHOOL) | $439.22 | $439.21 | $0.00 | $0.00 | $878.43 | $0.00 |
| 2023 | 16919 | COUNTY - COUNTY LEVIES (CE, DD, VET, MH) | $191.66 | $191.66 | $0.00 | $0.00 | $383.32 | $0.00 |
| 2023 | 16919 | CONSERVE - CONSERVATION FUTURES | $5.75 | $5.74 | $0.00 | $0.00 | $11.49 | $0.00 |
| 2023 | 16919 | CITYPT - CITY OF PT | $270.88 | $270.87 | $0.00 | $0.00 | $541.75 | $0.00 |
| 2023 | 16919 | PORTPT - PORT DISTRICT | $80.74 | $80.73 | $0.00 | $0.00 | $161.47 | $0.00 |
| 2023 | 16919 | PUD1 - PUD #1 | $12.71 | $12.70 | $0.00 | $0.00 | $25.41 | $0.00 |
| 2023 | 16919 | HD2 - HOSP DIST #2 | $11.18 | $11.18 | $0.00 | $0.00 | $22.36 | $0.00 |
| 2023 | 16919 | SD50 - SCHOOL DIST #50 | $348.53 | $348.51 | $0.00 | $0.00 | $697.04 | $0.00 |
| 2023 | 16919 | FD1 - FIRE DISTRICT #1 | $157.89 | $157.89 | $0.00 | $0.00 | $315.78 | $0.00 |
| 2023 | 16919 | EMS1 - FIRE DIST #1 EMS | $67.17 | $67.16 | $0.00 | $0.00 | $134.33 | $0.00 |
| 2023 | 16919 | JCCD - JC Conservation District | $2.55 | $2.55 | $0.00 | $0.00 | $5.10 | $0.00 |
| 2023 | 16919 | NWA - Noxious Weed Assessment | $2.15 | $2.15 | $0.00 | $0.00 | $4.30 | $0.00 |
| 2023 | 16919 | TOTAL: | $1590.43 | $1590.35 | $0.00 | $0.00 | $3180.78 | $0.00 |
|
| 2023 | 16919 | $1590.43 | $1590.35 | $0.00 | $0.00 | $3180.78 | $0.00 |
Values
| (+) Improvement Homesite Value: | + | $268,052 | |
| (+) Improvement Non-Homesite Value: | + | $0 | |
| (+) Land Homesite Value: | + | $192,750 | |
| (+) Land Non-Homesite Value: | + | $0 | |
| (+) Curr Use (HS): | + | $0 | $0 |
| (+) Curr Use (NHS): | + | $0 | $0 |
| | | -------------------------- | |
| (=) Market Value: | = | $460,802 | |
| (–) Productivity Loss: | – | $0 | |
| | | -------------------------- | |
| (=) Subtotal: | = | $460,802 | |
| (+) Senior Appraised Value: | + | $0 | |
| (+) Non-Senior Appraised Value: | + | $460,802 | |
| | | -------------------------- | |
| (=) Total Appraised Value: | = | $460,802 | |
| (–) Senior Exemption Loss: | – | $0 | |
| (–) Exemption Loss: | – | $0 | |
| | | -------------------------- | |
| (=) Taxable Value: | = | $460,802 | |
Taxing Jurisdiction
| Owner: | JAN MARI BENJAMIN | | |
| % Ownership: | 100.0000000000% | | |
| Total Value: | $460,802 | | |
| Tax Area: | 0110 - C-50F1E1H2 |
| CE | COUNTY CURRENT EXPENSE | 0.9034619479 | $460,802 | $460,802 | $416.32 | | |
| CNTYDD | DEVELOPMENTAL DISABILITIES | 0.0052121823 | $460,802 | $460,802 | $2.40 | | |
| CNTYVET | VETERANS RELIEF | 0.0052777810 | $460,802 | $460,802 | $2.43 | | |
| MENTAL | MENTAL HEALTH | 0.0052121823 | $460,802 | $460,802 | $2.40 | | |
| PTGEN | CITY OF PT GENERAL | 0.8551967795 | $460,802 | $460,802 | $394.08 | | |
| PTLLL | CITY OF PT - LIBRARY LID LIFT | 0.4010114288 | $460,802 | $460,802 | $184.79 | | |
| PTMVBOND | CITY OF PT MV BOND | 0.0484717981 | $460,802 | $460,802 | $22.34 | | |
| HOSP2CASH | HOSP DIST #2 GENERAL | 0.0536075306 | $460,802 | $460,802 | $24.70 | | |
| SCH50BOND | SCHOOL DIST #50 BOND 2016 | 0.5377451389 | $460,802 | $460,802 | $247.79 | | |
| SCH50CP | SCHOOL DIST #50 CAP PROJ | 0.4573475088 | $460,802 | $460,802 | $210.75 | | |
| SCH50MO | SCHOOL DIST #50 EP & O | 0.8262822886 | $460,802 | $460,802 | $380.75 | | |
| CONSERVE | CONSERVATION FUTURES | 0.0275621078 | $460,802 | $460,802 | $12.70 | | |
| EMS1 | FIRE DIST #1 EMS | 0.4679948282 | $460,802 | $460,802 | $215.65 | | |
| FD1 | FIRE DIST #1 GENERAL | 1.2171942929 | $460,802 | $460,802 | $560.89 | | |
| PORTPT | PORT OF PT GENERAL | 0.1134941229 | $460,802 | $460,802 | $52.30 | | |
| PORTPTIDD | PORT OF PT IDD 2019 | 0.2577346692 | $460,802 | $460,802 | $118.76 | | |
| PUD1 | PUD #1 GENERAL | 0.0597888892 | $460,802 | $460,802 | $27.55 | | |
| STATE | STATE SCHOOL PART 1 | 1.4940692947 | $460,802 | $460,802 | $688.47 | | |
| STATE2 | STATE SCHOOL PART 2 | 0.8050170049 | $460,802 | $460,802 | $370.95 | | |
| | Total Tax Rate: | 8.5416817766 | | | | | |
| | | | | Taxes w/Current Exemptions: | $3,936.02 | | |
| | | | | Taxes w/o Exemptions: | $3,936.02 | | |
Improvement / Building
| Improvement #1: | Residential Bldg | State Code: | 11 | 1532.0 sqft | Value: | $268,052 |
| Bathrooms (#): | 1 (FULL) | Bathrooms (#): | 1 (HALF) | | Bedrooms (#): | 4 | Exterior Wall: | SI/ST | | Fireplace: | SIN 1-AVG | Floor Construction: | FRAME | | Foundation: | CONPR | Heating/Cooling: | ELBB | | Inside Verify: | YES-FIX | Roof Cover: | COMP |
|
| | Type | Description | Class CD | Sub Class CD | Year Built | Area |
| | MA | Main Area | 3+ | 1S | 1972 | 1532.0 |
| | PATIO | House Patio | 3 | 1S | 1972 | 672.0 |
| | GDET | Detached Garage | 3 | 1S | 1972 | 384.0 |
Sketch
Property Image
Land
| 1 | 6210-1185L | | 0.0000 | 0.00 | 0.00 | 0.00 | 1.00 | $140,250 | $0 |
| 2 | 6210-1185L | | 0.0000 | 0.00 | 0.00 | 0.00 | 1.00 | $52,500 | $0 |
Roll Value History
| 2026 | N/A | N/A | N/A | N/A | N/A |
| 2025 | $268,052 | $192,750 | $0 | $460,802 | $460,802 |
| 2024 | $243,734 | $173,250 | $0 | $416,984 | $416,984 |
| 2023 | $233,137 | $160,000 | $0 | $393,137 | $393,137 |
| 2022 | $233,137 | $140,000 | $0 | $373,137 | $373,137 |
Deed and Sales History
| 1 | 01/12/2015 | SWD | Statutory Warranty Deed | BONNIE R WALKER | JAN MARI BENJAMIN | | | $212,900.00 | 122580 | |
| 2 | 02/17/1999 | QCD | Quit Claim Deed | RHODEN, ALICE/EST | WALKER, BONNIE RAE | 0 | 0 | $0.00 | 86668 | 0 |
| 3 | 01/14/1998 | QCD | Quit Claim Deed | RHODEN, ALICE | WALKER, BONNIE RAY | 0 | 0 | $0.00 | 83727 | 0 |
Payout Agreement
| No payout information available.. |