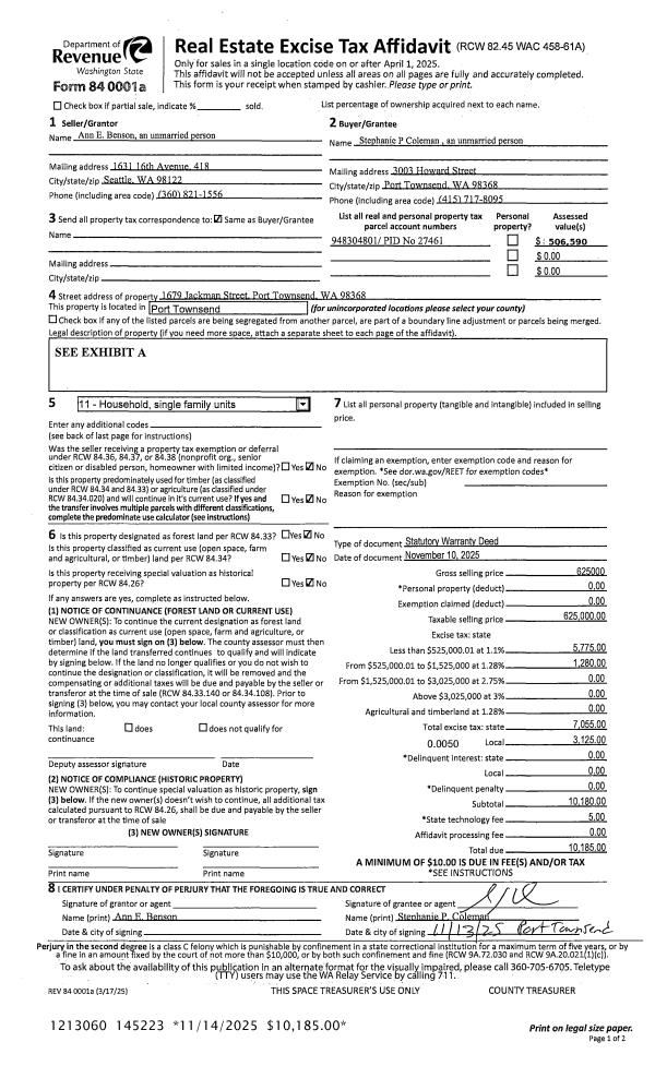
Property
Account |
| Property ID: | 27461 | Abbreviated Legal Description: | EISENBEIS ADDITION BLK 48 LOT 1 |
| Parcel # / Geo ID: | 948304801 | Agent Code: | |
| Type: | Real | | |
| Tax Area: | 0110 - C-50F1E1H2 | Land Use Code | 11 |
| Open Space: | N | DFL | N |
| Historic Property: | N | Remodel Property: | N |
| Multi-Family Redevelopment: | N | | |
| Township: | 30N | Section: | 10 |
| Range: | 1W |
Location |
| Address: | 1679 JACKMAN ST PORT TOWNSEND, WA 98368 | Mapsco: | 025/007 |
| Neighborhood: | EISENBEIS, OC HASTINGS & SUPP, PINKS LESS VICTORIAN VILLAGE | Map ID: | |
| Neighborhood CD: | 6210 |
Owner |
| Name: | STEPHANIE P COLEMAN | Owner ID: | 106472 |
| Mailing Address: | 3003 HOWARD ST PORT TOWNSEND, WA 98368-6817 | % Ownership: | 100.0000000000% |
| | | Exemptions: | |
Pay Tax Due
There is currently No Amount Due on this property.
Taxes and Assessment Details
Property Tax Information as of
03/12/2026
Click on "Statement Details" to expand or collapse a tax statement.
* Please enter a valid date ** Please enter a valid date *
Statement Details |
| | TOTAL: | $0.00 | $0.00 | $0.00 | $0.00 | $0.00 | $0.00 |
|
| | $0.00 | $0.00 | $0.00 | $0.00 | $0.00 | $0.00 |
Values
| (+) Improvement Homesite Value: | + | $0 | |
| (+) Improvement Non-Homesite Value: | + | $391,386 | |
| (+) Land Homesite Value: | + | $0 | |
| (+) Land Non-Homesite Value: | + | $135,000 | |
| (+) Curr Use (HS): | + | $0 | $0 |
| (+) Curr Use (NHS): | + | $0 | $0 |
| | | -------------------------- | |
| (=) Market Value: | = | $526,386 | |
| (–) Productivity Loss: | – | $0 | |
| | | -------------------------- | |
| (=) Subtotal: | = | $526,386 | |
| (+) Senior Appraised Value: | + | $0 | |
| (+) Non-Senior Appraised Value: | + | $526,386 | |
| | | -------------------------- | |
| (=) Total Appraised Value: | = | $526,386 | |
| (–) Senior Exemption Loss: | – | $0 | |
| (–) Exemption Loss: | – | $0 | |
| | | -------------------------- | |
| (=) Taxable Value: | = | $526,386 | |
Taxing Jurisdiction
| Owner: | STEPHANIE P COLEMAN | | |
| % Ownership: | 100.0000000000% | | |
| Total Value: | $526,386 | | |
| Tax Area: | 0110 - C-50F1E1H2 |
| CE | COUNTY CURRENT EXPENSE | 0.9034619479 | $526,386 | $526,386 | $475.57 | | |
| CNTYDD | DEVELOPMENTAL DISABILITIES | 0.0052121823 | $526,386 | $526,386 | $2.74 | | |
| CNTYVET | VETERANS RELIEF | 0.0052777810 | $526,386 | $526,386 | $2.78 | | |
| MENTAL | MENTAL HEALTH | 0.0052121823 | $526,386 | $526,386 | $2.74 | | |
| PTGEN | CITY OF PT GENERAL | 0.8551967795 | $526,386 | $526,386 | $450.16 | | |
| PTLLL | CITY OF PT - LIBRARY LID LIFT | 0.4010114288 | $526,386 | $526,386 | $211.09 | | |
| PTMVBOND | CITY OF PT MV BOND | 0.0484717981 | $526,386 | $526,386 | $25.51 | | |
| HOSP2CASH | HOSP DIST #2 GENERAL | 0.0536075306 | $526,386 | $526,386 | $28.22 | | |
| SCH50BOND | SCHOOL DIST #50 BOND 2016 | 0.5377451389 | $526,386 | $526,386 | $283.06 | | |
| SCH50CP | SCHOOL DIST #50 CAP PROJ | 0.4573475088 | $526,386 | $526,386 | $240.74 | | |
| SCH50MO | SCHOOL DIST #50 EP & O | 0.8262822886 | $526,386 | $526,386 | $434.94 | | |
| CONSERVE | CONSERVATION FUTURES | 0.0275621078 | $526,386 | $526,386 | $14.51 | | |
| EMS1 | FIRE DIST #1 EMS | 0.4679948282 | $526,386 | $526,386 | $246.35 | | |
| FD1 | FIRE DIST #1 GENERAL | 1.2171942929 | $526,386 | $526,386 | $640.71 | | |
| PORTPT | PORT OF PT GENERAL | 0.1134941229 | $526,386 | $526,386 | $59.74 | | |
| PORTPTIDD | PORT OF PT IDD 2019 | 0.2577346692 | $526,386 | $526,386 | $135.67 | | |
| PUD1 | PUD #1 GENERAL | 0.0597888892 | $526,386 | $526,386 | $31.47 | | |
| STATE | STATE SCHOOL PART 1 | 1.4940692947 | $526,386 | $526,386 | $786.46 | | |
| STATE2 | STATE SCHOOL PART 2 | 0.8050170049 | $526,386 | $526,386 | $423.75 | | |
| | Total Tax Rate: | 8.5416817766 | | | | | |
| | | | | Taxes w/Current Exemptions: | $4,496.21 | | |
| | | | | Taxes w/o Exemptions: | $4,496.21 | | |
Improvement / Building
| Improvement #1: | Residential Bldg | State Code: | 11 | 1210.0 sqft | Value: | $391,386 |
| Bathrooms (#): | 2 (FULL) | Bedrooms (#): | 2 | | Exterior Wall: | SI/ST | Floor Construction: | FRAME | | Foundation: | CONPR | Heating/Cooling: | HPUMP | | Roof Cover: | COMP |   |   |
|
| | Type | Description | Class CD | Sub Class CD | Year Built | Area |
| | MA | Main Area | 5+ | 15SF | 2003 | 748.0 |
| | MA2 | Second Floor Main Area | 5+ | 15SF | 2003 | 462.0 |
| | HWPOR | House Wood Porch | 5 | 15SF | 2003 | 95.0 |
| | HDECK | House Deck | 5 | 15SF | 2003 | 120.0 |
| | SHED | Shed (Table Not Dep) | 4 | 15SF | 2003 | 60.0 |
Sketch
Property Image
Land
| 1 | 6210-1185L | Standard Lot (No View) | 0.0000 | 0.00 | 0.00 | 0.00 | 1.00 | $135,000 | $0 |
Roll Value History
| 2026 | N/A | N/A | N/A | N/A | N/A |
| 2025 | $391,386 | $135,000 | $0 | $526,386 | $526,386 |
| 2024 | $380,590 | $126,000 | $0 | $506,590 | $506,590 |
| 2023 | $364,043 | $115,000 | $0 | $479,043 | $479,043 |
| 2022 | $364,043 | $100,000 | $0 | $464,043 | $464,043 |
Deed and Sales History
| 1 | 11/10/2025 | SWD | Statutory Warranty Deed | ANN E BENSON | STEPHANIE P COLEMAN | | | $625,000.00 | 145223 | |
| 2 | 02/21/2013 | SWD | Statutory Warranty Deed | JUDE ROSENBERG | ANN E BENSON | | | $239,000.00 | 118835 | |
| 3 | 06/26/2005 | SWD | Statutory Warranty Deed | NOBLE, DAVID S | ROSENBERG, JUDE | 0 | 0 | $270,000.00 | 104357 | 0 |
| 4 | 05/10/2004 | SWD | Statutory Warranty Deed | CLASSICS LLC | NOBLE, DAVID S | 0 | 0 | $235,000.00 | 100227 | 0 |
| 5 | 04/16/2003 | QCD | Quit Claim Deed | HARRISON, R & C/KIME, R & | CLASSICS LLC | 0 | 0 | $0.00 | 97108 | 0 |
| 6 | 09/20/2002 | SWD | Statutory Warranty Deed | STANLEY GODDARD | ROBERT & CONSTANCE HARRISON ET | 0 | 0 | $70,500.00 | 95586 | 0 |
| 7 | 04/03/1996 | QCD | Quit Claim Deed | GODDARD, NELDA | GODDARD, STANLEY | 0 | 0 | $0.00 | 79553 | 0 |
Payout Agreement
| No payout information available.. |