Property
Account |
| Property ID: | 27489 | Abbreviated Legal Description: | EISENBEIS ADDITION BLK 51 LOT 29(N1/2), 30 TO 32, W/EASE V521/P762 |
| Parcel # / Geo ID: | 948305106 | Agent Code: | |
| Type: | Real | | |
| Tax Area: | 0110 - C-50F1E1H2 | Land Use Code | 11 |
| Open Space: | N | DFL | N |
| Historic Property: | N | Remodel Property: | N |
| Multi-Family Redevelopment: | N | | |
| Township: | 30N | Section: | 10 |
| Range: | 1W |
Location |
| Address: | 1184 HOLCOMB ST PORT TOWNSEND, WA 98368 | Mapsco: | 025/051 |
| Neighborhood: | EISENBEIS - LANDES/19TH/LAGOON AREA NON-COM | Map ID: | |
| Neighborhood CD: | 6215 |
Owner |
| Name: | PATRICIA A HEIMER | Owner ID: | 110856 |
| Mailing Address: | 1184 HOLCOMB ST PORT TOWNSEND, WA 98368-2980 | % Ownership: | 100.0000000000% |
| | | Exemptions: | |
Pay Tax Due
Select the appropriate checkbox next to the year to be paid. Multiple years may be selected.
*Convenience Fee not included
Taxes and Assessment Details
Property Tax Information as of
03/10/2026
Click on "Statement Details" to expand or collapse a tax statement.
* Please enter a valid date ** Please enter a valid date *
Statement Details |
| 2026 | 16847 | STATE - STATE LEVY (SCHOOL) | $1025.50 | $1025.49 | $0.00 | $0.00 | $0.00 | $2050.99 |
| 2026 | 16847 | COUNTY - COUNTY LEVIES (CE, DD, VET, MH) | $410.01 | $409.97 | $0.00 | $0.00 | $0.00 | $819.98 |
| 2026 | 16847 | CONSERVE - CONSERVATION FUTURES | $12.30 | $12.29 | $0.00 | $0.00 | $0.00 | $24.59 |
| 2026 | 16847 | CITYPT - CITY OF PT | $581.95 | $581.94 | $0.00 | $0.00 | $0.00 | $1163.89 |
| 2026 | 16847 | PORTPT - PORT DISTRICT | $165.59 | $165.58 | $0.00 | $0.00 | $0.00 | $331.17 |
| 2026 | 16847 | PUD1 - PUD #1 | $26.67 | $26.67 | $0.00 | $0.00 | $0.00 | $53.34 |
| 2026 | 16847 | HD2 - HOSP DIST #2 | $23.91 | $23.91 | $0.00 | $0.00 | $0.00 | $47.82 |
| 2026 | 16847 | SD50 - SCHOOL DIST #50 | $812.42 | $812.42 | $0.00 | $0.00 | $0.00 | $1624.84 |
| 2026 | 16847 | FD1 - FIRE DISTRICT #1 | $542.93 | $542.92 | $0.00 | $0.00 | $0.00 | $1085.85 |
| 2026 | 16847 | EMS1 - FIRE DIST #1 EMS | $208.75 | $208.74 | $0.00 | $0.00 | $0.00 | $417.49 |
| 2026 | 16847 | JCCD - JC Conservation District | $2.55 | $2.55 | $0.00 | $0.00 | $0.00 | $5.10 |
| 2026 | 16847 | NWA - Noxious Weed Assessment | $2.98 | $2.97 | $0.00 | $0.00 | $0.00 | $5.95 |
| 2026 | 16847 | TOTAL: | $3815.56 | $3815.45 | $0.00 | $0.00 | $0.00 | $7631.01 |
|
| 2026 | 16847 | $3815.56 | $3815.45 | $0.00 | $0.00 | $0.00 | $7631.01 |
Statement Details |
| 2025 | 16902 | STATE - STATE LEVY (SCHOOL) | $1051.53 | $1051.52 | $0.00 | $0.00 | $2103.05 | $0.00 |
| 2025 | 16902 | COUNTY - COUNTY LEVIES (CE, DD, VET, MH) | $413.51 | $413.51 | $0.00 | $0.00 | $827.02 | $0.00 |
| 2025 | 16902 | CONSERVE - CONSERVATION FUTURES | $12.40 | $12.40 | $0.00 | $0.00 | $24.80 | $0.00 |
| 2025 | 16902 | CITYPT - CITY OF PT | $596.33 | $596.32 | $0.00 | $0.00 | $1192.65 | $0.00 |
| 2025 | 16902 | PORTPT - PORT DISTRICT | $168.74 | $168.73 | $0.00 | $0.00 | $337.47 | $0.00 |
| 2025 | 16902 | PUD1 - PUD #1 | $27.06 | $27.05 | $0.00 | $0.00 | $54.11 | $0.00 |
| 2025 | 16902 | HD2 - HOSP DIST #2 | $24.13 | $24.12 | $0.00 | $0.00 | $48.25 | $0.00 |
| 2025 | 16902 | SD50 - SCHOOL DIST #50 | $768.50 | $768.48 | $0.00 | $0.00 | $1536.98 | $0.00 |
| 2025 | 16902 | FD1 - FIRE DISTRICT #1 | $545.67 | $545.66 | $0.00 | $0.00 | $1091.33 | $0.00 |
| 2025 | 16902 | EMS1 - FIRE DIST #1 EMS | $209.88 | $209.88 | $0.00 | $0.00 | $419.76 | $0.00 |
| 2025 | 16902 | JCCD - JC Conservation District | $2.55 | $2.55 | $0.00 | $0.00 | $5.10 | $0.00 |
| 2025 | 16902 | NWA - Noxious Weed Assessment | $2.15 | $2.15 | $0.00 | $0.00 | $4.30 | $0.00 |
| 2025 | 16902 | TOTAL: | $3822.45 | $3822.37 | $0.00 | $0.00 | $7644.82 | $0.00 |
|
| 2025 | 16902 | $3822.45 | $3822.37 | $0.00 | $0.00 | $7644.82 | $0.00 |
Statement Details |
| 2024 | 16936 | STATE - STATE LEVY (SCHOOL) | $963.47 | $963.46 | $0.00 | $0.00 | $1926.93 | $0.00 |
| 2024 | 16936 | COUNTY - COUNTY LEVIES (CE, DD, VET, MH) | $412.29 | $412.27 | $0.00 | $0.00 | $824.56 | $0.00 |
| 2024 | 16936 | CONSERVE - CONSERVATION FUTURES | $12.37 | $12.36 | $0.00 | $0.00 | $24.73 | $0.00 |
| 2024 | 16936 | CITYPT - CITY OF PT | $589.08 | $589.08 | $0.00 | $0.00 | $1178.16 | $0.00 |
| 2024 | 16936 | PORTPT - PORT DISTRICT | $170.29 | $170.28 | $0.00 | $0.00 | $340.57 | $0.00 |
| 2024 | 16936 | PUD1 - PUD #1 | $27.08 | $27.08 | $0.00 | $0.00 | $54.16 | $0.00 |
| 2024 | 16936 | HD2 - HOSP DIST #2 | $24.06 | $24.05 | $0.00 | $0.00 | $48.11 | $0.00 |
| 2024 | 16936 | SD50 - SCHOOL DIST #50 | $779.50 | $779.48 | $0.00 | $0.00 | $1558.98 | $0.00 |
| 2024 | 16936 | FD1 - FIRE DISTRICT #1 | $545.13 | $545.12 | $0.00 | $0.00 | $1090.25 | $0.00 |
| 2024 | 16936 | EMS1 - FIRE DIST #1 EMS | $208.22 | $208.22 | $0.00 | $0.00 | $416.44 | $0.00 |
| 2024 | 16936 | JCCD - JC Conservation District | $2.55 | $2.55 | $0.00 | $0.00 | $5.10 | $0.00 |
| 2024 | 16936 | NWA - Noxious Weed Assessment | $2.15 | $2.15 | $0.00 | $0.00 | $4.30 | $0.00 |
| 2024 | 16936 | TOTAL: | $3736.19 | $3736.10 | $0.00 | $0.00 | $7472.29 | $0.00 |
|
| 2024 | 16936 | $3736.19 | $3736.10 | $0.00 | $0.00 | $7472.29 | $0.00 |
Statement Details |
| 2023 | 16960 | STATE - STATE LEVY (SCHOOL) | $968.00 | $967.99 | $0.00 | $0.00 | $1935.99 | $0.00 |
| 2023 | 16960 | COUNTY - COUNTY LEVIES (CE, DD, VET, MH) | $422.41 | $422.41 | $0.00 | $0.00 | $844.82 | $0.00 |
| 2023 | 16960 | CONSERVE - CONSERVATION FUTURES | $12.67 | $12.66 | $0.00 | $0.00 | $25.33 | $0.00 |
| 2023 | 16960 | CITYPT - CITY OF PT | $597.01 | $596.98 | $0.00 | $0.00 | $1193.99 | $0.00 |
| 2023 | 16960 | PORTPT - PORT DISTRICT | $177.95 | $177.93 | $0.00 | $0.00 | $355.88 | $0.00 |
| 2023 | 16960 | PUD1 - PUD #1 | $28.00 | $28.00 | $0.00 | $0.00 | $56.00 | $0.00 |
| 2023 | 16960 | HD2 - HOSP DIST #2 | $24.65 | $24.65 | $0.00 | $0.00 | $49.30 | $0.00 |
| 2023 | 16960 | SD50 - SCHOOL DIST #50 | $768.13 | $768.12 | $0.00 | $0.00 | $1536.25 | $0.00 |
| 2023 | 16960 | FD1 - FIRE DISTRICT #1 | $347.98 | $347.97 | $0.00 | $0.00 | $695.95 | $0.00 |
| 2023 | 16960 | EMS1 - FIRE DIST #1 EMS | $148.03 | $148.02 | $0.00 | $0.00 | $296.05 | $0.00 |
| 2023 | 16960 | JCCD - JC Conservation District | $2.55 | $2.55 | $0.00 | $0.00 | $5.10 | $0.00 |
| 2023 | 16960 | NWA - Noxious Weed Assessment | $2.15 | $2.15 | $0.00 | $0.00 | $4.30 | $0.00 |
| 2023 | 16960 | TOTAL: | $3499.53 | $3499.43 | $0.00 | $0.00 | $6998.96 | $0.00 |
|
| 2023 | 16960 | $3499.53 | $3499.43 | $0.00 | $0.00 | $6998.96 | $0.00 |
Values
| (+) Improvement Homesite Value: | + | $0 | |
| (+) Improvement Non-Homesite Value: | + | $642,090 | |
| (+) Land Homesite Value: | + | $0 | |
| (+) Land Non-Homesite Value: | + | $250,000 | |
| (+) Curr Use (HS): | + | $0 | $0 |
| (+) Curr Use (NHS): | + | $0 | $0 |
| | | -------------------------- | |
| (=) Market Value: | = | $892,090 | |
| (–) Productivity Loss: | – | $0 | |
| | | -------------------------- | |
| (=) Subtotal: | = | $892,090 | |
| (+) Senior Appraised Value: | + | $0 | |
| (+) Non-Senior Appraised Value: | + | $892,090 | |
| | | -------------------------- | |
| (=) Total Appraised Value: | = | $892,090 | |
| (–) Senior Exemption Loss: | – | $0 | |
| (–) Exemption Loss: | – | $0 | |
| | | -------------------------- | |
| (=) Taxable Value: | = | $892,090 | |
Taxing Jurisdiction
| Owner: | PATRICIA A HEIMER | | |
| % Ownership: | 100.0000000000% | | |
| Total Value: | $892,090 | | |
| Tax Area: | 0110 - C-50F1E1H2 |
| CE | COUNTY CURRENT EXPENSE | 0.9034619479 | $892,090 | $892,090 | $805.97 | | |
| CNTYDD | DEVELOPMENTAL DISABILITIES | 0.0052121823 | $892,090 | $892,090 | $4.65 | | |
| CNTYVET | VETERANS RELIEF | 0.0052777810 | $892,090 | $892,090 | $4.71 | | |
| MENTAL | MENTAL HEALTH | 0.0052121823 | $892,090 | $892,090 | $4.65 | | |
| PTGEN | CITY OF PT GENERAL | 0.8551967795 | $892,090 | $892,090 | $762.91 | | |
| PTLLL | CITY OF PT - LIBRARY LID LIFT | 0.4010114288 | $892,090 | $892,090 | $357.74 | | |
| PTMVBOND | CITY OF PT MV BOND | 0.0484717981 | $892,090 | $892,090 | $43.24 | | |
| HOSP2CASH | HOSP DIST #2 GENERAL | 0.0536075306 | $892,090 | $892,090 | $47.82 | | |
| SCH50BOND | SCHOOL DIST #50 BOND 2016 | 0.5377451389 | $892,090 | $892,090 | $479.72 | | |
| SCH50CP | SCHOOL DIST #50 CAP PROJ | 0.4573475088 | $892,090 | $892,090 | $408.00 | | |
| SCH50MO | SCHOOL DIST #50 EP & O | 0.8262822886 | $892,090 | $892,090 | $737.12 | | |
| CONSERVE | CONSERVATION FUTURES | 0.0275621078 | $892,090 | $892,090 | $24.59 | | |
| EMS1 | FIRE DIST #1 EMS | 0.4679948282 | $892,090 | $892,090 | $417.49 | | |
| FD1 | FIRE DIST #1 GENERAL | 1.2171942929 | $892,090 | $892,090 | $1,085.85 | | |
| PORTPT | PORT OF PT GENERAL | 0.1134941229 | $892,090 | $892,090 | $101.25 | | |
| PORTPTIDD | PORT OF PT IDD 2019 | 0.2577346692 | $892,090 | $892,090 | $229.92 | | |
| PUD1 | PUD #1 GENERAL | 0.0597888892 | $892,090 | $892,090 | $53.34 | | |
| STATE | STATE SCHOOL PART 1 | 1.4940692947 | $892,090 | $892,090 | $1,332.84 | | |
| STATE2 | STATE SCHOOL PART 2 | 0.8050170049 | $892,090 | $892,090 | $718.15 | | |
| | Total Tax Rate: | 8.5416817766 | | | | | |
| | | | | Taxes w/Current Exemptions: | $7,619.96 | | |
| | | | | Taxes w/o Exemptions: | $7,619.96 | | |
Improvement / Building
| Improvement #1: | Residential Bldg | State Code: | 11 | 1838.0 sqft | Value: | $642,090 |
| Bathrooms (#): | 2 (FULL) | Bathrooms (#): | 1 (HALF) | | Bedrooms (#): | 3 | Exterior Wall: | SI/ST | | Fireplace: | SIN 1-AVG | Floor Construction: | FRAME | | Foundation: | CONPR | Heating/Cooling: | HPUMP | | Inside Verify: | YES-FIX | Roof Cover: | TILE |
|
| | Type | Description | Class CD | Sub Class CD | Year Built | Area |
| | MA | Main Area | 4+ | 1S | 1995 | 1838.0 |
| | PATIO | House Patio | 4 | 1S | 1995 | 408.0 |
| | HDECK | House Deck | 4 | 1S | 1995 | 308.0 |
| | GATT | House Attached Garage | 4 | 1S | 1995 | 484.0 |
| | BSMTF | House basement finished | 4 | 1S | 1995 | 1390.0 |
Sketch
Property Image
Land
| 1 | 6215-1165L | | 0.0000 | 0.00 | 0.00 | 0.00 | 1.00 | $130,000 | $0 |
| 2 | 6215-1165L | | 0.0000 | 0.00 | 0.00 | 0.00 | 1.00 | $120,000 | $0 |
Roll Value History
| 2026 | N/A | N/A | N/A | N/A | N/A |
| 2025 | $642,090 | $250,000 | $0 | $892,090 | $892,090 |
| 2024 | $637,593 | $239,400 | $0 | $876,993 | $876,993 |
| 2023 | $609,872 | $223,000 | $0 | $832,872 | $832,872 |
| 2022 | $609,872 | $212,500 | $0 | $822,372 | $822,372 |
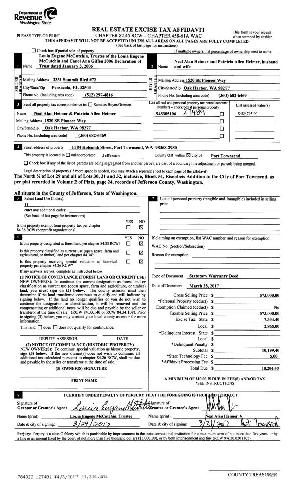
Deed and Sales History
| 1 | 06/14/2020 | DTH CERT | Death Certificate | NEAL A HEIMER | | | | | 0 | 666014 |
| 2 | 03/28/2017 | SWD | Statutory Warranty Deed | LOUIA E MC CUTCHIN TSTE | NEAL A & PATRICIA A HEIMER | | | $573,000.00 | 127401 | |
| 3 | 08/28/2007 | QCD | Quit Claim Deed | MC CUTCHIN, LOUIA EUGENE, | MC CUTCHIN, LOUIA EUGENE, GIFF | 0 | 0 | $0.00 | 110038 | 0 |
| 4 | 04/24/2007 | SWD | Statutory Warranty Deed | IRVIN, VANNIE TRUSTEE | MCCUTCHIN, LOUIA/GIFFEN, CAROL | | | $595,000.00 | 109154 | 0 |
| 5 | 09/09/1999 | QCD | Quit Claim Deed | IRVIN, JAMES E/VANNIE L | IRVIN, JAMES E & VANNIE L/TRST | 0 | 0 | $0.00 | 87850 | 0 |
| 6 | 04/04/1994 | SWD | Statutory Warranty Deed | KASTLE, BARBARA M | IRVIN, JAMES E/VANNIE L | 0 | 0 | $67,000.00 | 73805 | 0 |
Payout Agreement
| No payout information available.. |