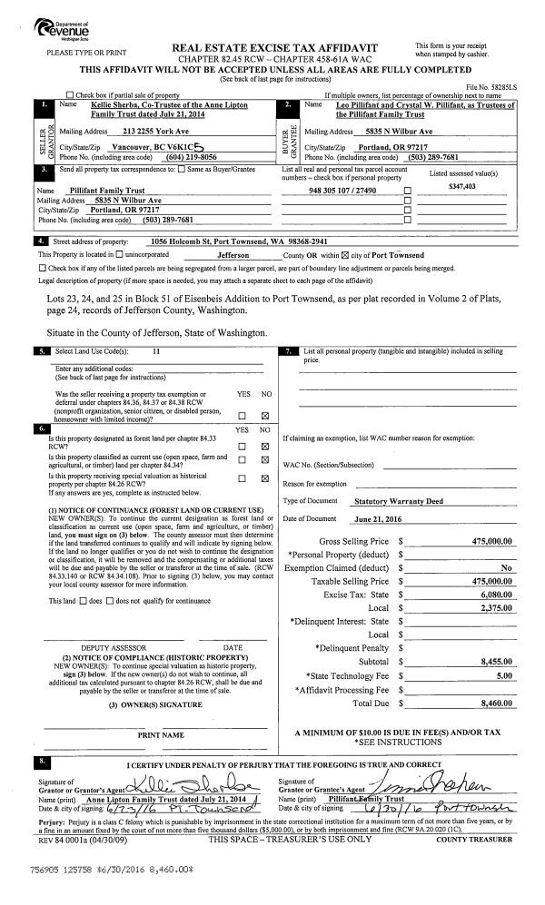
Property
Account |
| Property ID: | 27490 | Abbreviated Legal Description: | EISENBEIS ADDITION BLK 51 LOTS 23 TO 25 |
| Parcel # / Geo ID: | 948305107 | Agent Code: | |
| Type: | Real | | |
| Tax Area: | 0110 - C-50F1E1H2 | Land Use Code | 11 |
| Open Space: | N | DFL | N |
| Historic Property: | N | Remodel Property: | N |
| Multi-Family Redevelopment: | N | | |
| Township: | 30N | Section: | 10 |
| Range: | 1W |
Location |
| Address: | 1056 HOLCOMB ST PORT TOWNSEND, WA 98368 | Mapsco: | 025/047 |
| Neighborhood: | EISENBEIS - LANDES/19TH/LAGOON AREA NON-COM | Map ID: | |
| Neighborhood CD: | 6215 |
Owner |
| Name: | PILLIFANT FAMILY TRUST | Owner ID: | 95694 |
| Mailing Address: | LEO PILLIFANT TRUSTEE CRYSTAL PILLIFANT 1056 HOLCOMB PORT TOWNSEND, WA 98368 | % Ownership: | 100.0000000000% |
| | | Exemptions: | |
Pay Tax Due
Select the appropriate checkbox next to the year to be paid. Multiple years may be selected.
*Convenience Fee not included
Taxes and Assessment Details
Property Tax Information as of
03/10/2026
Click on "Statement Details" to expand or collapse a tax statement.
* Please enter a valid date ** Please enter a valid date *
Statement Details |
| 2026 | 16848 | STATE - STATE LEVY (SCHOOL) | $871.29 | $871.27 | $0.00 | $0.00 | $0.00 | $1742.56 |
| 2026 | 16848 | COUNTY - COUNTY LEVIES (CE, DD, VET, MH) | $348.34 | $348.32 | $0.00 | $0.00 | $0.00 | $696.66 |
| 2026 | 16848 | CONSERVE - CONSERVATION FUTURES | $10.45 | $10.44 | $0.00 | $0.00 | $0.00 | $20.89 |
| 2026 | 16848 | CITYPT - CITY OF PT | $494.43 | $494.43 | $0.00 | $0.00 | $0.00 | $988.86 |
| 2026 | 16848 | PORTPT - PORT DISTRICT | $140.69 | $140.68 | $0.00 | $0.00 | $0.00 | $281.37 |
| 2026 | 16848 | PUD1 - PUD #1 | $22.66 | $22.66 | $0.00 | $0.00 | $0.00 | $45.32 |
| 2026 | 16848 | HD2 - HOSP DIST #2 | $20.32 | $20.31 | $0.00 | $0.00 | $0.00 | $40.63 |
| 2026 | 16848 | SD50 - SCHOOL DIST #50 | $690.25 | $690.24 | $0.00 | $0.00 | $0.00 | $1380.49 |
| 2026 | 16848 | FD1 - FIRE DISTRICT #1 | $461.28 | $461.27 | $0.00 | $0.00 | $0.00 | $922.55 |
| 2026 | 16848 | EMS1 - FIRE DIST #1 EMS | $177.36 | $177.35 | $0.00 | $0.00 | $0.00 | $354.71 |
| 2026 | 16848 | JCCD - JC Conservation District | $2.55 | $2.55 | $0.00 | $0.00 | $0.00 | $5.10 |
| 2026 | 16848 | NWA - Noxious Weed Assessment | $2.98 | $2.97 | $0.00 | $0.00 | $0.00 | $5.95 |
| 2026 | 16848 | TOTAL: | $3242.60 | $3242.49 | $0.00 | $0.00 | $0.00 | $6485.09 |
|
| 2026 | 16848 | $3242.60 | $3242.49 | $0.00 | $0.00 | $0.00 | $6485.09 |
Statement Details |
| 2025 | 16903 | STATE - STATE LEVY (SCHOOL) | $879.43 | $879.43 | $0.00 | $0.00 | $1758.86 | $0.00 |
| 2025 | 16903 | COUNTY - COUNTY LEVIES (CE, DD, VET, MH) | $345.84 | $345.81 | $0.00 | $0.00 | $691.65 | $0.00 |
| 2025 | 16903 | CONSERVE - CONSERVATION FUTURES | $10.37 | $10.37 | $0.00 | $0.00 | $20.74 | $0.00 |
| 2025 | 16903 | CITYPT - CITY OF PT | $498.74 | $498.71 | $0.00 | $0.00 | $997.45 | $0.00 |
| 2025 | 16903 | PORTPT - PORT DISTRICT | $141.12 | $141.11 | $0.00 | $0.00 | $282.23 | $0.00 |
| 2025 | 16903 | PUD1 - PUD #1 | $22.63 | $22.63 | $0.00 | $0.00 | $45.26 | $0.00 |
| 2025 | 16903 | HD2 - HOSP DIST #2 | $20.18 | $20.17 | $0.00 | $0.00 | $40.35 | $0.00 |
| 2025 | 16903 | SD50 - SCHOOL DIST #50 | $642.73 | $642.71 | $0.00 | $0.00 | $1285.44 | $0.00 |
| 2025 | 16903 | FD1 - FIRE DISTRICT #1 | $456.36 | $456.36 | $0.00 | $0.00 | $912.72 | $0.00 |
| 2025 | 16903 | EMS1 - FIRE DIST #1 EMS | $175.53 | $175.53 | $0.00 | $0.00 | $351.06 | $0.00 |
| 2025 | 16903 | JCCD - JC Conservation District | $2.55 | $2.55 | $0.00 | $0.00 | $5.10 | $0.00 |
| 2025 | 16903 | NWA - Noxious Weed Assessment | $2.15 | $2.15 | $0.00 | $0.00 | $4.30 | $0.00 |
| 2025 | 16903 | TOTAL: | $3197.63 | $3197.53 | $0.00 | $0.00 | $6395.16 | $0.00 |
|
| 2025 | 16903 | $3197.63 | $3197.53 | $0.00 | $0.00 | $6395.16 | $0.00 |
Statement Details |
| 2024 | 16937 | STATE - STATE LEVY (SCHOOL) | $804.74 | $804.73 | $0.00 | $0.00 | $1609.47 | $0.00 |
| 2024 | 16937 | COUNTY - COUNTY LEVIES (CE, DD, VET, MH) | $344.37 | $344.34 | $0.00 | $0.00 | $688.71 | $0.00 |
| 2024 | 16937 | CONSERVE - CONSERVATION FUTURES | $10.33 | $10.32 | $0.00 | $0.00 | $20.65 | $0.00 |
| 2024 | 16937 | CITYPT - CITY OF PT | $492.04 | $492.03 | $0.00 | $0.00 | $984.07 | $0.00 |
| 2024 | 16937 | PORTPT - PORT DISTRICT | $142.24 | $142.23 | $0.00 | $0.00 | $284.47 | $0.00 |
| 2024 | 16937 | PUD1 - PUD #1 | $22.62 | $22.62 | $0.00 | $0.00 | $45.24 | $0.00 |
| 2024 | 16937 | HD2 - HOSP DIST #2 | $20.09 | $20.09 | $0.00 | $0.00 | $40.18 | $0.00 |
| 2024 | 16937 | SD50 - SCHOOL DIST #50 | $651.08 | $651.06 | $0.00 | $0.00 | $1302.14 | $0.00 |
| 2024 | 16937 | FD1 - FIRE DISTRICT #1 | $455.32 | $455.32 | $0.00 | $0.00 | $910.64 | $0.00 |
| 2024 | 16937 | EMS1 - FIRE DIST #1 EMS | $173.92 | $173.91 | $0.00 | $0.00 | $347.83 | $0.00 |
| 2024 | 16937 | JCCD - JC Conservation District | $2.55 | $2.55 | $0.00 | $0.00 | $5.10 | $0.00 |
| 2024 | 16937 | NWA - Noxious Weed Assessment | $2.15 | $2.15 | $0.00 | $0.00 | $4.30 | $0.00 |
| 2024 | 16937 | TOTAL: | $3121.45 | $3121.35 | $0.00 | $0.00 | $6242.80 | $0.00 |
|
| 2024 | 16937 | $3121.45 | $3121.35 | $0.00 | $0.00 | $6242.80 | $0.00 |
Statement Details |
| 2023 | 16961 | STATE - STATE LEVY (SCHOOL) | $807.07 | $807.07 | $0.00 | $0.00 | $1614.14 | $0.00 |
| 2023 | 16961 | COUNTY - COUNTY LEVIES (CE, DD, VET, MH) | $352.19 | $352.18 | $0.00 | $0.00 | $704.37 | $0.00 |
| 2023 | 16961 | CONSERVE - CONSERVATION FUTURES | $10.56 | $10.56 | $0.00 | $0.00 | $21.12 | $0.00 |
| 2023 | 16961 | CITYPT - CITY OF PT | $497.76 | $497.74 | $0.00 | $0.00 | $995.50 | $0.00 |
| 2023 | 16961 | PORTPT - PORT DISTRICT | $148.37 | $148.35 | $0.00 | $0.00 | $296.72 | $0.00 |
| 2023 | 16961 | PUD1 - PUD #1 | $23.35 | $23.34 | $0.00 | $0.00 | $46.69 | $0.00 |
| 2023 | 16961 | HD2 - HOSP DIST #2 | $20.55 | $20.55 | $0.00 | $0.00 | $41.10 | $0.00 |
| 2023 | 16961 | SD50 - SCHOOL DIST #50 | $640.43 | $640.43 | $0.00 | $0.00 | $1280.86 | $0.00 |
| 2023 | 16961 | FD1 - FIRE DISTRICT #1 | $290.13 | $290.13 | $0.00 | $0.00 | $580.26 | $0.00 |
| 2023 | 16961 | EMS1 - FIRE DIST #1 EMS | $123.42 | $123.41 | $0.00 | $0.00 | $246.83 | $0.00 |
| 2023 | 16961 | JCCD - JC Conservation District | $2.55 | $2.55 | $0.00 | $0.00 | $5.10 | $0.00 |
| 2023 | 16961 | NWA - Noxious Weed Assessment | $2.15 | $2.15 | $0.00 | $0.00 | $4.30 | $0.00 |
| 2023 | 16961 | TOTAL: | $2918.53 | $2918.46 | $0.00 | $0.00 | $5836.99 | $0.00 |
|
| 2023 | 16961 | $2918.53 | $2918.46 | $0.00 | $0.00 | $5836.99 | $0.00 |
Values
| (+) Improvement Homesite Value: | + | $0 | |
| (+) Improvement Non-Homesite Value: | + | $527,934 | |
| (+) Land Homesite Value: | + | $0 | |
| (+) Land Non-Homesite Value: | + | $230,000 | |
| (+) Curr Use (HS): | + | $0 | $0 |
| (+) Curr Use (NHS): | + | $0 | $0 |
| | | -------------------------- | |
| (=) Market Value: | = | $757,934 | |
| (–) Productivity Loss: | – | $0 | |
| | | -------------------------- | |
| (=) Subtotal: | = | $757,934 | |
| (+) Senior Appraised Value: | + | $0 | |
| (+) Non-Senior Appraised Value: | + | $757,934 | |
| | | -------------------------- | |
| (=) Total Appraised Value: | = | $757,934 | |
| (–) Senior Exemption Loss: | – | $0 | |
| (–) Exemption Loss: | – | $0 | |
| | | -------------------------- | |
| (=) Taxable Value: | = | $757,934 | |
Taxing Jurisdiction
| Owner: | PILLIFANT FAMILY TRUST | | |
| % Ownership: | 100.0000000000% | | |
| Total Value: | $757,934 | | |
| Tax Area: | 0110 - C-50F1E1H2 |
| CE | COUNTY CURRENT EXPENSE | 0.9034619479 | $757,934 | $757,934 | $684.76 | | |
| CNTYDD | DEVELOPMENTAL DISABILITIES | 0.0052121823 | $757,934 | $757,934 | $3.95 | | |
| CNTYVET | VETERANS RELIEF | 0.0052777810 | $757,934 | $757,934 | $4.00 | | |
| MENTAL | MENTAL HEALTH | 0.0052121823 | $757,934 | $757,934 | $3.95 | | |
| PTGEN | CITY OF PT GENERAL | 0.8551967795 | $757,934 | $757,934 | $648.18 | | |
| PTLLL | CITY OF PT - LIBRARY LID LIFT | 0.4010114288 | $757,934 | $757,934 | $303.94 | | |
| PTMVBOND | CITY OF PT MV BOND | 0.0484717981 | $757,934 | $757,934 | $36.74 | | |
| HOSP2CASH | HOSP DIST #2 GENERAL | 0.0536075306 | $757,934 | $757,934 | $40.63 | | |
| SCH50BOND | SCHOOL DIST #50 BOND 2016 | 0.5377451389 | $757,934 | $757,934 | $407.58 | | |
| SCH50CP | SCHOOL DIST #50 CAP PROJ | 0.4573475088 | $757,934 | $757,934 | $346.64 | | |
| SCH50MO | SCHOOL DIST #50 EP & O | 0.8262822886 | $757,934 | $757,934 | $626.27 | | |
| CONSERVE | CONSERVATION FUTURES | 0.0275621078 | $757,934 | $757,934 | $20.89 | | |
| EMS1 | FIRE DIST #1 EMS | 0.4679948282 | $757,934 | $757,934 | $354.71 | | |
| FD1 | FIRE DIST #1 GENERAL | 1.2171942929 | $757,934 | $757,934 | $922.55 | | |
| PORTPT | PORT OF PT GENERAL | 0.1134941229 | $757,934 | $757,934 | $86.02 | | |
| PORTPTIDD | PORT OF PT IDD 2019 | 0.2577346692 | $757,934 | $757,934 | $195.35 | | |
| PUD1 | PUD #1 GENERAL | 0.0597888892 | $757,934 | $757,934 | $45.32 | | |
| STATE | STATE SCHOOL PART 1 | 1.4940692947 | $757,934 | $757,934 | $1,132.41 | | |
| STATE2 | STATE SCHOOL PART 2 | 0.8050170049 | $757,934 | $757,934 | $610.15 | | |
| | Total Tax Rate: | 8.5416817766 | | | | | |
| | | | | Taxes w/Current Exemptions: | $6,474.04 | | |
| | | | | Taxes w/o Exemptions: | $6,474.04 | | |
Improvement / Building
| Improvement #1: | Residential Bldg | State Code: | 11 | 1824.0 sqft | Value: | $527,934 |
| Bathrooms (#): | 2 (FULL) | Bathrooms (#): | 1 (HALF) | | Bedrooms (#): | 2 | Exterior Wall: | SI/ST | | Fireplace: | SIN 1-AVG | Floor Construction: | FRAME | | Foundation: | CONPR | Heating/Cooling: | HPUMP | | Inside Verify: | YES-FIX | Roof Cover: | COMP |
|
| | Type | Description | Class CD | Sub Class CD | Year Built | Area |
| | MA | Main Area | 4 | 1S | 1992 | 1824.0 |
| | PATIO | House Patio | 4 | 1S | 1992 | 136.0 |
| | HDECK | House Deck | 4 | 1S | 1992 | 485.5 |
| | GATT | House Attached Garage | 3 | 1S | 1992 | 550.0 |
| | BSMTF | House basement finished | 4 | 1S | 1992 | 831.5 |
| | BSMTU | House basement unfinished | 4 | 1S | 1992 | 343.5 |
Sketch
Property Image
Land
| 1 | 6215-1165L | | 0.0000 | 0.00 | 0.00 | 0.00 | 1.00 | $130,000 | $0 |
| 2 | 6215-1165L | | 0.0000 | 0.00 | 0.00 | 0.00 | 2.00 | $100,000 | $0 |
Roll Value History
| 2026 | N/A | N/A | N/A | N/A | N/A |
| 2025 | $527,934 | $230,000 | $0 | $757,934 | $757,934 |
| 2024 | $512,961 | $220,500 | $0 | $733,461 | $733,461 |
| 2023 | $490,658 | $205,000 | $0 | $695,658 | $695,658 |
| 2022 | $490,658 | $195,000 | $0 | $685,658 | $685,658 |
Deed and Sales History
| 1 | 06/21/2016 | SWD | Statutory Warranty Deed | ANNE LIPTON FAMILY TRUST | PILLIFANT FAMILY TRUST | | | $475,000.00 | 125758 | |
| 2 | 07/21/2014 | QCD | Quit Claim Deed | ANNE LIPTON | ANNE LIPTON FAMILY TRUST | | | | 121579 | |
Payout Agreement
| No payout information available.. |