Property
Account |
| Property ID: | 27491 | Abbreviated Legal Description: | EISENBEIS ADDITION BLK 51 LOTS 17 TO 19 CERT/LOTS OF REC #513471 |
| Parcel # / Geo ID: | 948305117 | Agent Code: | |
| Type: | Real | | |
| Tax Area: | 0110 - C-50F1E1H2 | Land Use Code | 11 |
| Open Space: | N | DFL | N |
| Historic Property: | N | Remodel Property: | N |
| Multi-Family Redevelopment: | N | | |
| Township: | 30N | Section: | 10 |
| Range: | 1W |
Location |
| Address: | 1012 HOLCOMB ST 1006 PORT TOWNSEND, WA 98368 | Mapsco: | 025/043 |
| Neighborhood: | EISENBEIS - LANDES/19TH/LAGOON AREA NON-COM | Map ID: | |
| Neighborhood CD: | 6215 |
Owner |
| Name: | MICHELE ZABRANSKY | Owner ID: | 105355 |
| Mailing Address: | SHARON SOFIE 1006 HOLCOMB ST PORT TOWNSEND, WA 98368-2941 | % Ownership: | 100.0000000000% |
| | | Exemptions: | |
Pay Tax Due
Select the appropriate checkbox next to the year to be paid. Multiple years may be selected.
*Convenience Fee not included
Taxes and Assessment Details
Property Tax Information as of
03/11/2026
Click on "Statement Details" to expand or collapse a tax statement.
* Please enter a valid date ** Please enter a valid date *
Statement Details |
| 2026 | 16849 | STATE - STATE LEVY (SCHOOL) | $1033.05 | $1033.05 | $0.00 | $0.00 | $0.00 | $2066.10 |
| 2026 | 16849 | COUNTY - COUNTY LEVIES (CE, DD, VET, MH) | $413.01 | $413.00 | $0.00 | $0.00 | $0.00 | $826.01 |
| 2026 | 16849 | CONSERVE - CONSERVATION FUTURES | $12.39 | $12.38 | $0.00 | $0.00 | $0.00 | $24.77 |
| 2026 | 16849 | CITYPT - CITY OF PT | $586.24 | $586.22 | $0.00 | $0.00 | $0.00 | $1172.46 |
| 2026 | 16849 | PORTPT - PORT DISTRICT | $166.81 | $166.80 | $0.00 | $0.00 | $0.00 | $333.61 |
| 2026 | 16849 | PUD1 - PUD #1 | $26.87 | $26.86 | $0.00 | $0.00 | $0.00 | $53.73 |
| 2026 | 16849 | HD2 - HOSP DIST #2 | $24.09 | $24.08 | $0.00 | $0.00 | $0.00 | $48.17 |
| 2026 | 16849 | SD50 - SCHOOL DIST #50 | $818.41 | $818.39 | $0.00 | $0.00 | $0.00 | $1636.80 |
| 2026 | 16849 | FD1 - FIRE DISTRICT #1 | $546.93 | $546.92 | $0.00 | $0.00 | $0.00 | $1093.85 |
| 2026 | 16849 | EMS1 - FIRE DIST #1 EMS | $210.29 | $210.28 | $0.00 | $0.00 | $0.00 | $420.57 |
| 2026 | 16849 | JCCD - JC Conservation District | $2.55 | $2.55 | $0.00 | $0.00 | $0.00 | $5.10 |
| 2026 | 16849 | NWA - Noxious Weed Assessment | $2.98 | $2.97 | $0.00 | $0.00 | $0.00 | $5.95 |
| 2026 | 16849 | TOTAL: | $3843.62 | $3843.50 | $0.00 | $0.00 | $0.00 | $7687.12 |
|
| 2026 | 16849 | $3843.62 | $3843.50 | $0.00 | $0.00 | $0.00 | $7687.12 |
Statement Details |
| 2025 | 16904 | STATE - STATE LEVY (SCHOOL) | $1031.81 | $1031.79 | $0.00 | $0.00 | $2063.60 | $0.00 |
| 2025 | 16904 | COUNTY - COUNTY LEVIES (CE, DD, VET, MH) | $405.76 | $405.73 | $0.00 | $0.00 | $811.49 | $0.00 |
| 2025 | 16904 | CONSERVE - CONSERVATION FUTURES | $12.17 | $12.16 | $0.00 | $0.00 | $24.33 | $0.00 |
| 2025 | 16904 | CITYPT - CITY OF PT | $585.14 | $585.13 | $0.00 | $0.00 | $1170.27 | $0.00 |
| 2025 | 16904 | PORTPT - PORT DISTRICT | $165.57 | $165.57 | $0.00 | $0.00 | $331.14 | $0.00 |
| 2025 | 16904 | PUD1 - PUD #1 | $26.55 | $26.55 | $0.00 | $0.00 | $53.10 | $0.00 |
| 2025 | 16904 | HD2 - HOSP DIST #2 | $23.67 | $23.67 | $0.00 | $0.00 | $47.34 | $0.00 |
| 2025 | 16904 | SD50 - SCHOOL DIST #50 | $754.08 | $754.06 | $0.00 | $0.00 | $1508.14 | $0.00 |
| 2025 | 16904 | FD1 - FIRE DISTRICT #1 | $535.43 | $535.43 | $0.00 | $0.00 | $1070.86 | $0.00 |
| 2025 | 16904 | EMS1 - FIRE DIST #1 EMS | $205.94 | $205.94 | $0.00 | $0.00 | $411.88 | $0.00 |
| 2025 | 16904 | JCCD - JC Conservation District | $2.55 | $2.55 | $0.00 | $0.00 | $5.10 | $0.00 |
| 2025 | 16904 | NWA - Noxious Weed Assessment | $2.15 | $2.15 | $0.00 | $0.00 | $4.30 | $0.00 |
| 2025 | 16904 | TOTAL: | $3750.82 | $3750.73 | $0.00 | $0.00 | $7501.55 | $0.00 |
|
| 2025 | 16904 | $3750.82 | $3750.73 | $0.00 | $0.00 | $7501.55 | $0.00 |
Statement Details |
| 2024 | 16938 | STATE - STATE LEVY (SCHOOL) | $945.20 | $945.19 | $0.00 | $0.00 | $1890.39 | $0.00 |
| 2024 | 16938 | COUNTY - COUNTY LEVIES (CE, DD, VET, MH) | $404.47 | $404.45 | $0.00 | $0.00 | $808.92 | $0.00 |
| 2024 | 16938 | CONSERVE - CONSERVATION FUTURES | $12.13 | $12.13 | $0.00 | $0.00 | $24.26 | $0.00 |
| 2024 | 16938 | CITYPT - CITY OF PT | $577.92 | $577.91 | $0.00 | $0.00 | $1155.83 | $0.00 |
| 2024 | 16938 | PORTPT - PORT DISTRICT | $167.06 | $167.06 | $0.00 | $0.00 | $334.12 | $0.00 |
| 2024 | 16938 | PUD1 - PUD #1 | $26.57 | $26.56 | $0.00 | $0.00 | $53.13 | $0.00 |
| 2024 | 16938 | HD2 - HOSP DIST #2 | $23.60 | $23.60 | $0.00 | $0.00 | $47.20 | $0.00 |
| 2024 | 16938 | SD50 - SCHOOL DIST #50 | $764.72 | $764.70 | $0.00 | $0.00 | $1529.42 | $0.00 |
| 2024 | 16938 | FD1 - FIRE DISTRICT #1 | $534.79 | $534.79 | $0.00 | $0.00 | $1069.58 | $0.00 |
| 2024 | 16938 | EMS1 - FIRE DIST #1 EMS | $204.27 | $204.27 | $0.00 | $0.00 | $408.54 | $0.00 |
| 2024 | 16938 | JCCD - JC Conservation District | $2.55 | $2.55 | $0.00 | $0.00 | $5.10 | $0.00 |
| 2024 | 16938 | NWA - Noxious Weed Assessment | $2.15 | $2.15 | $0.00 | $0.00 | $4.30 | $0.00 |
| 2024 | 16938 | TOTAL: | $3665.43 | $3665.36 | $0.00 | $0.00 | $7330.79 | $0.00 |
|
| 2024 | 16938 | $3665.43 | $3665.36 | $0.00 | $0.00 | $7330.79 | $0.00 |
Statement Details |
| 2023 | 16962 | STATE - STATE LEVY (SCHOOL) | $967.66 | $967.65 | $0.00 | $0.00 | $1935.31 | $0.00 |
| 2023 | 16962 | COUNTY - COUNTY LEVIES (CE, DD, VET, MH) | $422.26 | $422.23 | $0.00 | $0.00 | $844.49 | $0.00 |
| 2023 | 16962 | CONSERVE - CONSERVATION FUTURES | $12.66 | $12.66 | $0.00 | $0.00 | $25.32 | $0.00 |
| 2023 | 16962 | CITYPT - CITY OF PT | $596.79 | $596.78 | $0.00 | $0.00 | $1193.57 | $0.00 |
| 2023 | 16962 | PORTPT - PORT DISTRICT | $177.88 | $177.88 | $0.00 | $0.00 | $355.76 | $0.00 |
| 2023 | 16962 | PUD1 - PUD #1 | $27.99 | $27.99 | $0.00 | $0.00 | $55.98 | $0.00 |
| 2023 | 16962 | HD2 - HOSP DIST #2 | $24.65 | $24.63 | $0.00 | $0.00 | $49.28 | $0.00 |
| 2023 | 16962 | SD50 - SCHOOL DIST #50 | $767.86 | $767.84 | $0.00 | $0.00 | $1535.70 | $0.00 |
| 2023 | 16962 | FD1 - FIRE DISTRICT #1 | $347.86 | $347.85 | $0.00 | $0.00 | $695.71 | $0.00 |
| 2023 | 16962 | EMS1 - FIRE DIST #1 EMS | $147.97 | $147.97 | $0.00 | $0.00 | $295.94 | $0.00 |
| 2023 | 16962 | JCCD - JC Conservation District | $2.55 | $2.55 | $0.00 | $0.00 | $5.10 | $0.00 |
| 2023 | 16962 | NWA - Noxious Weed Assessment | $2.15 | $2.15 | $0.00 | $0.00 | $4.30 | $0.00 |
| 2023 | 16962 | TOTAL: | $3498.28 | $3498.18 | $0.00 | $0.00 | $6996.46 | $0.00 |
|
| 2023 | 16962 | $3498.28 | $3498.18 | $0.00 | $0.00 | $6996.46 | $0.00 |
Values
| (+) Improvement Homesite Value: | + | $0 | |
| (+) Improvement Non-Homesite Value: | + | $648,661 | |
| (+) Land Homesite Value: | + | $0 | |
| (+) Land Non-Homesite Value: | + | $250,000 | |
| (+) Curr Use (HS): | + | $0 | $0 |
| (+) Curr Use (NHS): | + | $0 | $0 |
| | | -------------------------- | |
| (=) Market Value: | = | $898,661 | |
| (–) Productivity Loss: | – | $0 | |
| | | -------------------------- | |
| (=) Subtotal: | = | $898,661 | |
| (+) Senior Appraised Value: | + | $0 | |
| (+) Non-Senior Appraised Value: | + | $898,661 | |
| | | -------------------------- | |
| (=) Total Appraised Value: | = | $898,661 | |
| (–) Senior Exemption Loss: | – | $0 | |
| (–) Exemption Loss: | – | $0 | |
| | | -------------------------- | |
| (=) Taxable Value: | = | $898,661 | |
Taxing Jurisdiction
| Owner: | MICHELE ZABRANSKY | | |
| % Ownership: | 100.0000000000% | | |
| Total Value: | $898,661 | | |
| Tax Area: | 0110 - C-50F1E1H2 |
| CE | COUNTY CURRENT EXPENSE | 0.9034619479 | $898,661 | $898,661 | $811.91 | | |
| CNTYDD | DEVELOPMENTAL DISABILITIES | 0.0052121823 | $898,661 | $898,661 | $4.68 | | |
| CNTYVET | VETERANS RELIEF | 0.0052777810 | $898,661 | $898,661 | $4.74 | | |
| MENTAL | MENTAL HEALTH | 0.0052121823 | $898,661 | $898,661 | $4.68 | | |
| PTGEN | CITY OF PT GENERAL | 0.8551967795 | $898,661 | $898,661 | $768.53 | | |
| PTLLL | CITY OF PT - LIBRARY LID LIFT | 0.4010114288 | $898,661 | $898,661 | $360.37 | | |
| PTMVBOND | CITY OF PT MV BOND | 0.0484717981 | $898,661 | $898,661 | $43.56 | | |
| HOSP2CASH | HOSP DIST #2 GENERAL | 0.0536075306 | $898,661 | $898,661 | $48.17 | | |
| SCH50BOND | SCHOOL DIST #50 BOND 2016 | 0.5377451389 | $898,661 | $898,661 | $483.25 | | |
| SCH50CP | SCHOOL DIST #50 CAP PROJ | 0.4573475088 | $898,661 | $898,661 | $411.00 | | |
| SCH50MO | SCHOOL DIST #50 EP & O | 0.8262822886 | $898,661 | $898,661 | $742.55 | | |
| CONSERVE | CONSERVATION FUTURES | 0.0275621078 | $898,661 | $898,661 | $24.77 | | |
| EMS1 | FIRE DIST #1 EMS | 0.4679948282 | $898,661 | $898,661 | $420.57 | | |
| FD1 | FIRE DIST #1 GENERAL | 1.2171942929 | $898,661 | $898,661 | $1,093.85 | | |
| PORTPT | PORT OF PT GENERAL | 0.1134941229 | $898,661 | $898,661 | $101.99 | | |
| PORTPTIDD | PORT OF PT IDD 2019 | 0.2577346692 | $898,661 | $898,661 | $231.62 | | |
| PUD1 | PUD #1 GENERAL | 0.0597888892 | $898,661 | $898,661 | $53.73 | | |
| STATE | STATE SCHOOL PART 1 | 1.4940692947 | $898,661 | $898,661 | $1,342.66 | | |
| STATE2 | STATE SCHOOL PART 2 | 0.8050170049 | $898,661 | $898,661 | $723.44 | | |
| | Total Tax Rate: | 8.5416817766 | | | | | |
| | | | | Taxes w/Current Exemptions: | $7,676.07 | | |
| | | | | Taxes w/o Exemptions: | $7,676.07 | | |
Improvement / Building
| Improvement #1: | Residential Bldg | State Code: | 11 | 1878.8 sqft | Value: | $648,661 |
| Bathrooms (#): | 3 (FULL) | Bathrooms (#): | 1 (HALF) | | Bedrooms (#): | 4 | Exterior Wall: | SI/ST | | Fireplace: | PROPS-GOOD | Floor Construction: | FRAME | | Foundation: | CONPR | Heating/Cooling: | HTWTR | | Inside Verify: | NO | Roof Cover: | COMP |
|
| | Type | Description | Class CD | Sub Class CD | Year Built | Area |
| | MA | Main Area | 5- | 15SF | 2008 | 886.8 |
| | MA2 | Second Floor Main Area | 5- | 15SF | 2008 | 992.0 |
| | BSMTF | House basement finished | 4 | 15SF | 2008 | 992.0 |
| | GATT | House Attached Garage | 4 | 15SF | 2008 | 644.0 |
| | HCPOR | House Concrete Porch | 4 | 15SF | 2008 | 52.5 |
| | HWPOR | House Wood Porch | 4 | 15SF | 2008 | 32.0 |
| | PATIO | House Patio | 4 | 15SF | 2008 | 288.0 |
| | HBAL | House Balcony | 4 | 15SF | 2008 | 105.0 |
| | HDECK | House Deck | 4 | 15SF | 2008 | 655.0 |
Sketch
Property Image
Land
| 1 | 6215-1155L | | 0.0000 | 0.00 | 0.00 | 0.00 | 1.00 | $150,000 | $0 |
| 2 | 6215-1165L | | 0.0000 | 0.00 | 0.00 | 0.00 | 2.00 | $100,000 | $0 |
Roll Value History
| 2026 | N/A | N/A | N/A | N/A | N/A |
| 2025 | $648,661 | $250,000 | $0 | $898,661 | $898,661 |
| 2024 | $608,539 | $252,000 | $0 | $860,539 | $860,539 |
| 2023 | $582,080 | $235,000 | $0 | $817,080 | $817,080 |
| 2022 | $582,080 | $240,000 | $0 | $822,080 | $822,080 |
Deed and Sales History
| 1 | 07/28/2021 | QCD | Quit Claim Deed | LLOYD HUBBARD | MICHELE ZABRANSKY | | | | 137380 | |
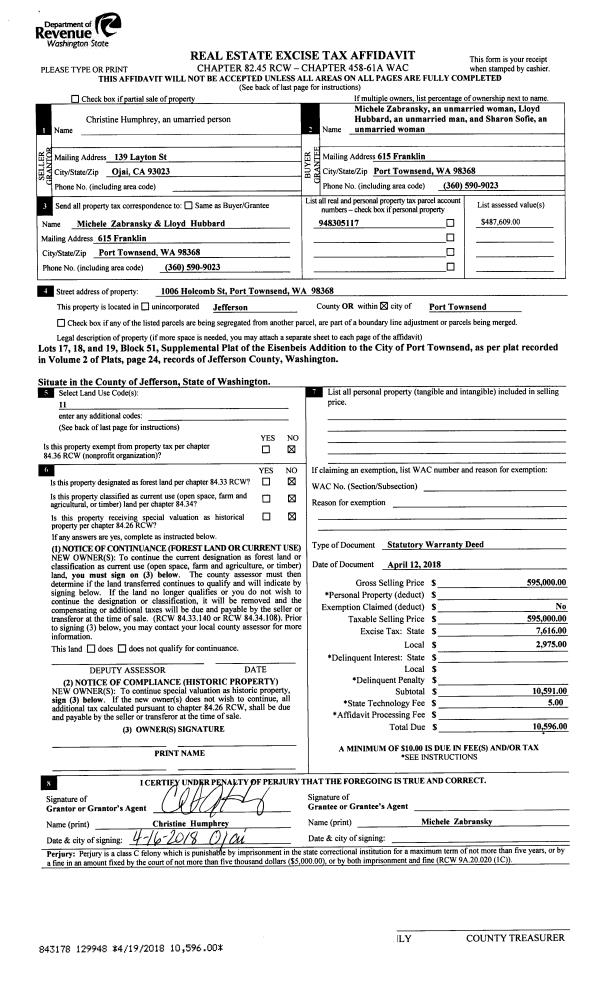
| 2 | 04/12/2018 | SWD | Statutory Warranty Deed | CHRISTINE A HUMPHREY | MICHELE ZABRANSKY | | | $595,000.00 | 129948 | |
| 3 | 08/18/2006 | SWD | Statutory Warranty Deed | PETERS, BOB & NORMA | HUMPHREY, CHRISTINE | 0 | 0 | $210,000.00 | 107479 | 0 |
|   | |
Payout Agreement
| No payout information available.. |