Property
Account |
| Property ID: | 27496 | Abbreviated Legal Description: | EISENBEIS ADDITION BLK 53 LOTS 1,2 & 3(LS S50.54' OF EA)BND BY LLA#138057 |
| Parcel # / Geo ID: | 948305301 | Agent Code: | |
| Type: | Real | | |
| Tax Area: | 0110 - C-50F1E1H2 | Land Use Code | 91 |
| Open Space: | N | DFL | N |
| Historic Property: | N | Remodel Property: | N |
| Multi-Family Redevelopment: | N | | |
| Township: | 30N | Section: | 10 |
| Range: | 1W |
Location |
| Address: | 1181 HOLCOMB ST PORT TOWNSEND, WA 98368 | Mapsco: | 025/057 |
| Neighborhood: | EISENBEIS, OC HASTINGS & SUPP, PINKS LESS VICTORIAN VILLAGE | Map ID: | |
| Neighborhood CD: | 6210 |
Owner |
| Name: | MICHAEL T PATERSON | Owner ID: | 106019 |
| Mailing Address: | 1125 19TH ST PORT TOWNSEND, WA 98368-7606 | % Ownership: | 100.0000000000% |
| | | Exemptions: | |
Pay Tax Due
Select the appropriate checkbox next to the year to be paid. Multiple years may be selected.
*Convenience Fee not included
Taxes and Assessment Details
Property Tax Information as of
03/10/2026
Click on "Statement Details" to expand or collapse a tax statement.
* Please enter a valid date ** Please enter a valid date *
Statement Details |
| 2026 | 16854 | STATE - STATE LEVY (SCHOOL) | $120.71 | $120.70 | $0.00 | $0.00 | $120.71 | $120.70 |
| 2026 | 16854 | COUNTY - COUNTY LEVIES (CE, DD, VET, MH) | $48.27 | $48.24 | $0.00 | $0.00 | $48.27 | $48.24 |
| 2026 | 16854 | CONSERVE - CONSERVATION FUTURES | $1.45 | $1.44 | $0.00 | $0.00 | $1.45 | $1.44 |
| 2026 | 16854 | CITYPT - CITY OF PT | $68.51 | $68.49 | $0.00 | $0.00 | $68.51 | $68.49 |
| 2026 | 16854 | PORTPT - PORT DISTRICT | $19.49 | $19.49 | $0.00 | $0.00 | $19.49 | $19.49 |
| 2026 | 16854 | PUD1 - PUD #1 | $3.14 | $3.14 | $0.00 | $0.00 | $3.14 | $3.14 |
| 2026 | 16854 | HD2 - HOSP DIST #2 | $2.82 | $2.81 | $0.00 | $0.00 | $2.82 | $2.81 |
| 2026 | 16854 | SD50 - SCHOOL DIST #50 | $95.62 | $95.62 | $0.00 | $0.00 | $95.62 | $95.62 |
| 2026 | 16854 | FD1 - FIRE DISTRICT #1 | $63.91 | $63.90 | $0.00 | $0.00 | $63.91 | $63.90 |
| 2026 | 16854 | EMS1 - FIRE DIST #1 EMS | $24.57 | $24.57 | $0.00 | $0.00 | $24.57 | $24.57 |
| 2026 | 16854 | JCCD - JC Conservation District | $2.53 | $2.53 | $0.00 | $0.00 | $2.53 | $2.53 |
| 2026 | 16854 | NWA - Noxious Weed Assessment | $2.98 | $2.97 | $0.00 | $0.00 | $2.98 | $2.97 |
| 2026 | 16854 | WAT - Clean Water District | $13.00 | $13.00 | $0.00 | $0.00 | $13.00 | $13.00 |
| 2026 | 16854 | TOTAL: | $467.00 | $466.90 | $0.00 | $0.00 | $467.00 | $466.90 |
|
| 2026 | 16854 | $467.00 | $466.90 | $0.00 | $0.00 | $467.00 | $466.90 |
Statement Details |
| 2025 | 16909 | STATE - STATE LEVY (SCHOOL) | $113.31 | $113.30 | $0.00 | $0.00 | $226.61 | $0.00 |
| 2025 | 16909 | COUNTY - COUNTY LEVIES (CE, DD, VET, MH) | $44.56 | $44.55 | $0.00 | $0.00 | $89.11 | $0.00 |
| 2025 | 16909 | CONSERVE - CONSERVATION FUTURES | $1.34 | $1.33 | $0.00 | $0.00 | $2.67 | $0.00 |
| 2025 | 16909 | CITYPT - CITY OF PT | $64.26 | $64.25 | $0.00 | $0.00 | $128.51 | $0.00 |
| 2025 | 16909 | PORTPT - PORT DISTRICT | $18.18 | $18.18 | $0.00 | $0.00 | $36.36 | $0.00 |
| 2025 | 16909 | PUD1 - PUD #1 | $2.92 | $2.91 | $0.00 | $0.00 | $5.83 | $0.00 |
| 2025 | 16909 | HD2 - HOSP DIST #2 | $2.60 | $2.60 | $0.00 | $0.00 | $5.20 | $0.00 |
| 2025 | 16909 | SD50 - SCHOOL DIST #50 | $82.81 | $82.81 | $0.00 | $0.00 | $165.62 | $0.00 |
| 2025 | 16909 | FD1 - FIRE DISTRICT #1 | $58.80 | $58.80 | $0.00 | $0.00 | $117.60 | $0.00 |
| 2025 | 16909 | EMS1 - FIRE DIST #1 EMS | $22.62 | $22.61 | $0.00 | $0.00 | $45.23 | $0.00 |
| 2025 | 16909 | JCCD - JC Conservation District | $2.53 | $2.53 | $0.00 | $0.00 | $5.06 | $0.00 |
| 2025 | 16909 | NWA - Noxious Weed Assessment | $2.15 | $2.15 | $0.00 | $0.00 | $4.30 | $0.00 |
| 2025 | 16909 | WAT - Clean Water District | $13.00 | $13.00 | $0.00 | $0.00 | $26.00 | $0.00 |
| 2025 | 16909 | TOTAL: | $429.08 | $429.02 | $0.00 | $0.00 | $858.10 | $0.00 |
|
| 2025 | 16909 | $429.08 | $429.02 | $0.00 | $0.00 | $858.10 | $0.00 |
Statement Details |
| 2024 | 16943 | STATE - STATE LEVY (SCHOOL) | $104.11 | $104.11 | $0.00 | $0.00 | $208.22 | $0.00 |
| 2024 | 16943 | COUNTY - COUNTY LEVIES (CE, DD, VET, MH) | $44.56 | $44.54 | $0.00 | $0.00 | $89.10 | $0.00 |
| 2024 | 16943 | CONSERVE - CONSERVATION FUTURES | $1.34 | $1.33 | $0.00 | $0.00 | $2.67 | $0.00 |
| 2024 | 16943 | CITYPT - CITY OF PT | $63.66 | $63.65 | $0.00 | $0.00 | $127.31 | $0.00 |
| 2024 | 16943 | PORTPT - PORT DISTRICT | $18.40 | $18.40 | $0.00 | $0.00 | $36.80 | $0.00 |
| 2024 | 16943 | PUD1 - PUD #1 | $2.93 | $2.92 | $0.00 | $0.00 | $5.85 | $0.00 |
| 2024 | 16943 | HD2 - HOSP DIST #2 | $2.60 | $2.60 | $0.00 | $0.00 | $5.20 | $0.00 |
| 2024 | 16943 | SD50 - SCHOOL DIST #50 | $84.24 | $84.23 | $0.00 | $0.00 | $168.47 | $0.00 |
| 2024 | 16943 | FD1 - FIRE DISTRICT #1 | $58.91 | $58.90 | $0.00 | $0.00 | $117.81 | $0.00 |
| 2024 | 16943 | EMS1 - FIRE DIST #1 EMS | $22.50 | $22.50 | $0.00 | $0.00 | $45.00 | $0.00 |
| 2024 | 16943 | JCCD - JC Conservation District | $2.53 | $2.53 | $0.00 | $0.00 | $5.06 | $0.00 |
| 2024 | 16943 | NWA - Noxious Weed Assessment | $2.15 | $2.15 | $0.00 | $0.00 | $4.30 | $0.00 |
| 2024 | 16943 | WAT - Clean Water District | $12.50 | $12.50 | $0.00 | $0.00 | $25.00 | $0.00 |
| 2024 | 16943 | TOTAL: | $420.43 | $420.36 | $0.00 | $0.00 | $840.79 | $0.00 |
|
| 2024 | 16943 | $420.43 | $420.36 | $0.00 | $0.00 | $840.79 | $0.00 |
Statement Details |
| 2023 | 16967 | STATE - STATE LEVY (SCHOOL) | $94.17 | $94.16 | $0.00 | $0.00 | $188.33 | $0.00 |
| 2023 | 16967 | COUNTY - COUNTY LEVIES (CE, DD, VET, MH) | $41.11 | $41.08 | $0.00 | $0.00 | $82.19 | $0.00 |
| 2023 | 16967 | CONSERVE - CONSERVATION FUTURES | $1.23 | $1.23 | $0.00 | $0.00 | $2.46 | $0.00 |
| 2023 | 16967 | CITYPT - CITY OF PT | $58.08 | $58.07 | $0.00 | $0.00 | $116.15 | $0.00 |
| 2023 | 16967 | PORTPT - PORT DISTRICT | $17.32 | $17.30 | $0.00 | $0.00 | $34.62 | $0.00 |
| 2023 | 16967 | PUD1 - PUD #1 | $2.73 | $2.72 | $0.00 | $0.00 | $5.45 | $0.00 |
| 2023 | 16967 | HD2 - HOSP DIST #2 | $2.40 | $2.39 | $0.00 | $0.00 | $4.79 | $0.00 |
| 2023 | 16967 | SD50 - SCHOOL DIST #50 | $74.72 | $74.72 | $0.00 | $0.00 | $149.44 | $0.00 |
| 2023 | 16967 | FD1 - FIRE DISTRICT #1 | $33.85 | $33.85 | $0.00 | $0.00 | $67.70 | $0.00 |
| 2023 | 16967 | EMS1 - FIRE DIST #1 EMS | $14.40 | $14.40 | $0.00 | $0.00 | $28.80 | $0.00 |
| 2023 | 16967 | JCCD - JC Conservation District | $2.53 | $2.53 | $0.00 | $0.00 | $5.06 | $0.00 |
| 2023 | 16967 | NWA - Noxious Weed Assessment | $2.15 | $2.15 | $0.00 | $0.00 | $4.30 | $0.00 |
| 2023 | 16967 | WAT - Clean Water District | $12.00 | $12.00 | $0.00 | $0.00 | $24.00 | $0.00 |
| 2023 | 16967 | TOTAL: | $356.69 | $356.60 | $0.00 | $0.00 | $713.29 | $0.00 |
|
| 2023 | 16967 | $356.69 | $356.60 | $0.00 | $0.00 | $713.29 | $0.00 |
Values
| (+) Improvement Homesite Value: | + | $0 | |
| (+) Improvement Non-Homesite Value: | + | $0 | |
| (+) Land Homesite Value: | + | $0 | |
| (+) Land Non-Homesite Value: | + | $105,000 | |
| (+) Curr Use (HS): | + | $0 | $0 |
| (+) Curr Use (NHS): | + | $0 | $0 |
| | | -------------------------- | |
| (=) Market Value: | = | $105,000 | |
| (–) Productivity Loss: | – | $0 | |
| | | -------------------------- | |
| (=) Subtotal: | = | $105,000 | |
| (+) Senior Appraised Value: | + | $0 | |
| (+) Non-Senior Appraised Value: | + | $105,000 | |
| | | -------------------------- | |
| (=) Total Appraised Value: | = | $105,000 | |
| (–) Senior Exemption Loss: | – | $0 | |
| (–) Exemption Loss: | – | $0 | |
| | | -------------------------- | |
| (=) Taxable Value: | = | $105,000 | |
Taxing Jurisdiction
| Owner: | MICHAEL T PATERSON | | |
| % Ownership: | 100.0000000000% | | |
| Total Value: | $105,000 | | |
| Tax Area: | 0110 - C-50F1E1H2 |
| CE | COUNTY CURRENT EXPENSE | 0.9034619479 | $105,000 | $105,000 | $94.86 | | |
| CNTYDD | DEVELOPMENTAL DISABILITIES | 0.0052121823 | $105,000 | $105,000 | $0.55 | | |
| CNTYVET | VETERANS RELIEF | 0.0052777810 | $105,000 | $105,000 | $0.55 | | |
| MENTAL | MENTAL HEALTH | 0.0052121823 | $105,000 | $105,000 | $0.55 | | |
| PTGEN | CITY OF PT GENERAL | 0.8551967795 | $105,000 | $105,000 | $89.80 | | |
| PTLLL | CITY OF PT - LIBRARY LID LIFT | 0.4010114288 | $105,000 | $105,000 | $42.11 | | |
| PTMVBOND | CITY OF PT MV BOND | 0.0484717981 | $105,000 | $105,000 | $5.09 | | |
| HOSP2CASH | HOSP DIST #2 GENERAL | 0.0536075306 | $105,000 | $105,000 | $5.63 | | |
| SCH50BOND | SCHOOL DIST #50 BOND 2016 | 0.5377451389 | $105,000 | $105,000 | $56.46 | | |
| SCH50CP | SCHOOL DIST #50 CAP PROJ | 0.4573475088 | $105,000 | $105,000 | $48.02 | | |
| SCH50MO | SCHOOL DIST #50 EP & O | 0.8262822886 | $105,000 | $105,000 | $86.76 | | |
| CONSERVE | CONSERVATION FUTURES | 0.0275621078 | $105,000 | $105,000 | $2.89 | | |
| EMS1 | FIRE DIST #1 EMS | 0.4679948282 | $105,000 | $105,000 | $49.14 | | |
| FD1 | FIRE DIST #1 GENERAL | 1.2171942929 | $105,000 | $105,000 | $127.81 | | |
| PORTPT | PORT OF PT GENERAL | 0.1134941229 | $105,000 | $105,000 | $11.92 | | |
| PORTPTIDD | PORT OF PT IDD 2019 | 0.2577346692 | $105,000 | $105,000 | $27.06 | | |
| PUD1 | PUD #1 GENERAL | 0.0597888892 | $105,000 | $105,000 | $6.28 | | |
| STATE | STATE SCHOOL PART 1 | 1.4940692947 | $105,000 | $105,000 | $156.88 | | |
| STATE2 | STATE SCHOOL PART 2 | 0.8050170049 | $105,000 | $105,000 | $84.53 | | |
| | Total Tax Rate: | 8.5416817766 | | | | | |
| | | | | Taxes w/Current Exemptions: | $896.89 | | |
| | | | | Taxes w/o Exemptions: | $896.89 | | |
Improvement / Building
Sketch
| No sketches available for this property. |
Property Image
Land
| 1 | 6210-1185L | | 0.0000 | 0.00 | 0.00 | 0.00 | 1.00 | $105,000 | $0 |
Roll Value History
| 2026 | N/A | N/A | N/A | N/A | N/A |
| 2025 | $0 | $105,000 | $0 | $105,000 | $105,000 |
| 2024 | $0 | $94,500 | $0 | $94,500 | $94,500 |
| 2023 | $0 | $90,000 | $0 | $90,000 | $90,000 |
| 2022 | $0 | $80,000 | $0 | $80,000 | $80,000 |
Deed and Sales History
| 1 | 11/16/2021 | BLA | Boundary Line Adjustment | | MICHAEL T PATERSON | | | | 138057 | |
| 2 | 11/23/2021 | QCD | Quit Claim Deed | MICHAEL & TRACY PATERSON | MICHAEL T PATERSON | | | | 138098 | |
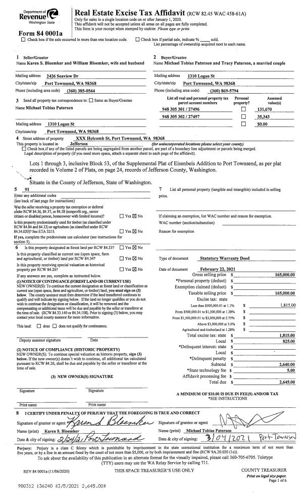
| 3 | 02/22/2021 | SWD | Statutory Warranty Deed | WILLIAM & KAREN BLOEMKER | MICHAEL & TRACY PATERSON | | | $165,000.00 | 136240 | |
|   | |
| 4 | 04/28/2003 | SWD | Statutory Warranty Deed | HASTINGS ESTATE COMPANY | BLOEMKER, KAREN S/WILLIAM | 0 | 0 | $85,000.00 | 97188 | 0 |
|   | |
Payout Agreement
| No payout information available.. |