Property
Account |
| Property ID: | 275481 | Abbreviated Legal Description: | NOMURA SHORT PLAT LOT 3 SUBJ/EASE |
| Parcel # / Geo ID: | 001102003 | Agent Code: | |
| Type: | Real | | |
| Tax Area: | 0110 - C-50F1E1H2 | Land Use Code | 11 |
| Open Space: | N | DFL | N |
| Historic Property: | N | Remodel Property: | N |
| Multi-Family Redevelopment: | N | | |
| Township: | 30N | Section: | 10 |
| Range: | 1W |
Location |
| Address: | 1360 19TH ST Port Townsend, WA 98368 | Mapsco: | 163/032 |
| Neighborhood: | EISENBEIS, OC HASTINGS & SUPP, PINKS LESS VICTORIAN VILLAGE | Map ID: | |
| Neighborhood CD: | 6210 |
Owner |
| Name: | CRISTINA DOMINGUEZ | Owner ID: | 107227 |
| Mailing Address: | 1360 19TH ST PORT TOWNSEND, WA 98368-7609 | % Ownership: | 100.0000000000% |
| | | Exemptions: | |
Pay Tax Due
Select the appropriate checkbox next to the year to be paid. Multiple years may be selected.
*Convenience Fee not included
Taxes and Assessment Details
Property Tax Information as of
03/12/2026
Click on "Statement Details" to expand or collapse a tax statement.
* Please enter a valid date ** Please enter a valid date *
Statement Details |
| 2026 | 33303 | STATE - STATE LEVY (SCHOOL) | $393.03 | $393.02 | $0.00 | $0.00 | $0.00 | $786.05 |
| 2026 | 33303 | COUNTY - COUNTY LEVIES (CE, DD, VET, MH) | $157.13 | $157.12 | $0.00 | $0.00 | $0.00 | $314.25 |
| 2026 | 33303 | CONSERVE - CONSERVATION FUTURES | $4.71 | $4.71 | $0.00 | $0.00 | $0.00 | $9.42 |
| 2026 | 33303 | CITYPT - CITY OF PT | $223.04 | $223.02 | $0.00 | $0.00 | $0.00 | $446.06 |
| 2026 | 33303 | PORTPT - PORT DISTRICT | $63.46 | $63.46 | $0.00 | $0.00 | $0.00 | $126.92 |
| 2026 | 33303 | PUD1 - PUD #1 | $10.22 | $10.22 | $0.00 | $0.00 | $0.00 | $20.44 |
| 2026 | 33303 | HD2 - HOSP DIST #2 | $9.17 | $9.16 | $0.00 | $0.00 | $0.00 | $18.33 |
| 2026 | 33303 | SD50 - SCHOOL DIST #50 | $311.37 | $311.35 | $0.00 | $0.00 | $0.00 | $622.72 |
| 2026 | 33303 | FD1 - FIRE DISTRICT #1 | $208.08 | $208.08 | $0.00 | $0.00 | $0.00 | $416.16 |
| 2026 | 33303 | EMS1 - FIRE DIST #1 EMS | $80.01 | $80.00 | $0.00 | $0.00 | $0.00 | $160.01 |
| 2026 | 33303 | JCCD - JC Conservation District | $2.55 | $2.55 | $0.00 | $0.00 | $0.00 | $5.10 |
| 2026 | 33303 | NWA - Noxious Weed Assessment | $2.98 | $2.97 | $0.00 | $0.00 | $0.00 | $5.95 |
| 2026 | 33303 | TOTAL: | $1465.75 | $1465.66 | $0.00 | $0.00 | $0.00 | $2931.41 |
|
| 2026 | 33303 | $1465.75 | $1465.66 | $0.00 | $0.00 | $0.00 | $2931.41 |
Statement Details |
| 2025 | 33380 | STATE - STATE LEVY (SCHOOL) | $390.56 | $390.56 | $0.00 | $0.00 | $781.12 | $0.00 |
| 2025 | 33380 | COUNTY - COUNTY LEVIES (CE, DD, VET, MH) | $153.59 | $153.58 | $0.00 | $0.00 | $307.17 | $0.00 |
| 2025 | 33380 | CONSERVE - CONSERVATION FUTURES | $4.61 | $4.60 | $0.00 | $0.00 | $9.21 | $0.00 |
| 2025 | 33380 | CITYPT - CITY OF PT | $221.49 | $221.48 | $0.00 | $0.00 | $442.97 | $0.00 |
| 2025 | 33380 | PORTPT - PORT DISTRICT | $62.68 | $62.66 | $0.00 | $0.00 | $125.34 | $0.00 |
| 2025 | 33380 | PUD1 - PUD #1 | $10.05 | $10.05 | $0.00 | $0.00 | $20.10 | $0.00 |
| 2025 | 33380 | HD2 - HOSP DIST #2 | $8.96 | $8.96 | $0.00 | $0.00 | $17.92 | $0.00 |
| 2025 | 33380 | SD50 - SCHOOL DIST #50 | $285.44 | $285.43 | $0.00 | $0.00 | $570.87 | $0.00 |
| 2025 | 33380 | FD1 - FIRE DISTRICT #1 | $202.67 | $202.67 | $0.00 | $0.00 | $405.34 | $0.00 |
| 2025 | 33380 | EMS1 - FIRE DIST #1 EMS | $77.96 | $77.95 | $0.00 | $0.00 | $155.91 | $0.00 |
| 2025 | 33380 | JCCD - JC Conservation District | $2.55 | $2.55 | $0.00 | $0.00 | $5.10 | $0.00 |
| 2025 | 33380 | NWA - Noxious Weed Assessment | $2.15 | $2.15 | $0.00 | $0.00 | $4.30 | $0.00 |
| 2025 | 33380 | TOTAL: | $1422.71 | $1422.64 | $0.00 | $0.00 | $2845.35 | $0.00 |
|
| 2025 | 33380 | $1422.71 | $1422.64 | $0.00 | $0.00 | $2845.35 | $0.00 |
Statement Details |
| 2024 | 33444 | STATE - STATE LEVY (SCHOOL) | $354.00 | $353.99 | $0.00 | $0.00 | $707.99 | $0.00 |
| 2024 | 33444 | COUNTY - COUNTY LEVIES (CE, DD, VET, MH) | $151.49 | $151.46 | $0.00 | $0.00 | $302.95 | $0.00 |
| 2024 | 33444 | CONSERVE - CONSERVATION FUTURES | $4.54 | $4.54 | $0.00 | $0.00 | $9.08 | $0.00 |
| 2024 | 33444 | CITYPT - CITY OF PT | $216.45 | $216.43 | $0.00 | $0.00 | $432.88 | $0.00 |
| 2024 | 33444 | PORTPT - PORT DISTRICT | $62.57 | $62.56 | $0.00 | $0.00 | $125.13 | $0.00 |
| 2024 | 33444 | PUD1 - PUD #1 | $9.95 | $9.95 | $0.00 | $0.00 | $19.90 | $0.00 |
| 2024 | 33444 | HD2 - HOSP DIST #2 | $8.84 | $8.84 | $0.00 | $0.00 | $17.68 | $0.00 |
| 2024 | 33444 | SD50 - SCHOOL DIST #50 | $286.40 | $286.39 | $0.00 | $0.00 | $572.79 | $0.00 |
| 2024 | 33444 | FD1 - FIRE DISTRICT #1 | $200.29 | $200.28 | $0.00 | $0.00 | $400.57 | $0.00 |
| 2024 | 33444 | EMS1 - FIRE DIST #1 EMS | $76.50 | $76.50 | $0.00 | $0.00 | $153.00 | $0.00 |
| 2024 | 33444 | JCCD - JC Conservation District | $2.55 | $2.55 | $0.00 | $0.00 | $5.10 | $0.00 |
| 2024 | 33444 | NWA - Noxious Weed Assessment | $2.15 | $2.15 | $0.00 | $0.00 | $4.30 | $0.00 |
| 2024 | 33444 | TOTAL: | $1375.73 | $1375.64 | $0.00 | $0.00 | $2751.37 | $0.00 |
|
| 2024 | 33444 | $1375.73 | $1375.64 | $0.00 | $0.00 | $2751.37 | $0.00 |
Statement Details |
| 2023 | 33488 | STATE - STATE LEVY (SCHOOL) | $341.37 | $341.36 | $0.00 | $0.00 | $682.73 | $0.00 |
| 2023 | 33488 | COUNTY - COUNTY LEVIES (CE, DD, VET, MH) | $148.98 | $148.94 | $0.00 | $0.00 | $297.92 | $0.00 |
| 2023 | 33488 | CONSERVE - CONSERVATION FUTURES | $4.47 | $4.46 | $0.00 | $0.00 | $8.93 | $0.00 |
| 2023 | 33488 | CITYPT - CITY OF PT | $210.54 | $210.53 | $0.00 | $0.00 | $421.07 | $0.00 |
| 2023 | 33488 | PORTPT - PORT DISTRICT | $62.76 | $62.74 | $0.00 | $0.00 | $125.50 | $0.00 |
| 2023 | 33488 | PUD1 - PUD #1 | $9.88 | $9.87 | $0.00 | $0.00 | $19.75 | $0.00 |
| 2023 | 33488 | HD2 - HOSP DIST #2 | $8.70 | $8.68 | $0.00 | $0.00 | $17.38 | $0.00 |
| 2023 | 33488 | SD50 - SCHOOL DIST #50 | $270.89 | $270.87 | $0.00 | $0.00 | $541.76 | $0.00 |
| 2023 | 33488 | FD1 - FIRE DISTRICT #1 | $122.72 | $122.71 | $0.00 | $0.00 | $245.43 | $0.00 |
| 2023 | 33488 | EMS1 - FIRE DIST #1 EMS | $52.20 | $52.20 | $0.00 | $0.00 | $104.40 | $0.00 |
| 2023 | 33488 | JCCD - JC Conservation District | $2.55 | $2.55 | $0.00 | $0.00 | $5.10 | $0.00 |
| 2023 | 33488 | NWA - Noxious Weed Assessment | $2.15 | $2.15 | $0.00 | $0.00 | $4.30 | $0.00 |
| 2023 | 33488 | TOTAL: | $1237.21 | $1237.06 | $0.00 | $0.00 | $2474.27 | $0.00 |
|
| 2023 | 33488 | $1237.21 | $1237.06 | $0.00 | $0.00 | $2474.27 | $0.00 |
Values
| (+) Improvement Homesite Value: | + | $0 | |
| (+) Improvement Non-Homesite Value: | + | $196,397 | |
| (+) Land Homesite Value: | + | $0 | |
| (+) Land Non-Homesite Value: | + | $145,500 | |
| (+) Curr Use (HS): | + | $0 | $0 |
| (+) Curr Use (NHS): | + | $0 | $0 |
| | | -------------------------- | |
| (=) Market Value: | = | $341,897 | |
| (–) Productivity Loss: | – | $0 | |
| | | -------------------------- | |
| (=) Subtotal: | = | $341,897 | |
| (+) Senior Appraised Value: | + | $0 | |
| (+) Non-Senior Appraised Value: | + | $341,897 | |
| | | -------------------------- | |
| (=) Total Appraised Value: | = | $341,897 | |
| (–) Senior Exemption Loss: | – | $0 | |
| (–) Exemption Loss: | – | $0 | |
| | | -------------------------- | |
| (=) Taxable Value: | = | $341,897 | |
Taxing Jurisdiction
| Owner: | CRISTINA DOMINGUEZ | | |
| % Ownership: | 100.0000000000% | | |
| Total Value: | $341,897 | | |
| Tax Area: | 0110 - C-50F1E1H2 |
| CE | COUNTY CURRENT EXPENSE | 0.9034619479 | $341,897 | $341,897 | $308.89 | | |
| CNTYDD | DEVELOPMENTAL DISABILITIES | 0.0052121823 | $341,897 | $341,897 | $1.78 | | |
| CNTYVET | VETERANS RELIEF | 0.0052777810 | $341,897 | $341,897 | $1.80 | | |
| MENTAL | MENTAL HEALTH | 0.0052121823 | $341,897 | $341,897 | $1.78 | | |
| PTGEN | CITY OF PT GENERAL | 0.8551967795 | $341,897 | $341,897 | $292.39 | | |
| PTLLL | CITY OF PT - LIBRARY LID LIFT | 0.4010114288 | $341,897 | $341,897 | $137.10 | | |
| PTMVBOND | CITY OF PT MV BOND | 0.0484717981 | $341,897 | $341,897 | $16.57 | | |
| HOSP2CASH | HOSP DIST #2 GENERAL | 0.0536075306 | $341,897 | $341,897 | $18.33 | | |
| SCH50BOND | SCHOOL DIST #50 BOND 2016 | 0.5377451389 | $341,897 | $341,897 | $183.85 | | |
| SCH50CP | SCHOOL DIST #50 CAP PROJ | 0.4573475088 | $341,897 | $341,897 | $156.37 | | |
| SCH50MO | SCHOOL DIST #50 EP & O | 0.8262822886 | $341,897 | $341,897 | $282.50 | | |
| CONSERVE | CONSERVATION FUTURES | 0.0275621078 | $341,897 | $341,897 | $9.42 | | |
| EMS1 | FIRE DIST #1 EMS | 0.4679948282 | $341,897 | $341,897 | $160.01 | | |
| FD1 | FIRE DIST #1 GENERAL | 1.2171942929 | $341,897 | $341,897 | $416.16 | | |
| PORTPT | PORT OF PT GENERAL | 0.1134941229 | $341,897 | $341,897 | $38.80 | | |
| PORTPTIDD | PORT OF PT IDD 2019 | 0.2577346692 | $341,897 | $341,897 | $88.12 | | |
| PUD1 | PUD #1 GENERAL | 0.0597888892 | $341,897 | $341,897 | $20.44 | | |
| STATE | STATE SCHOOL PART 1 | 1.4940692947 | $341,897 | $341,897 | $510.82 | | |
| STATE2 | STATE SCHOOL PART 2 | 0.8050170049 | $341,897 | $341,897 | $275.23 | | |
| | Total Tax Rate: | 8.5416817766 | | | | | |
| | | | | Taxes w/Current Exemptions: | $2,920.36 | | |
| | | | | Taxes w/o Exemptions: | $2,920.36 | | |
Improvement / Building
| Improvement #1: | Residential Bldg | State Code: | 11 | 958.2 sqft | Value: | $196,397 |
| Bathrooms (#): | 1 (FULL) | Bedrooms (#): | 2 | | Exterior Wall: | SI/ST | Floor Construction: | CONCR | | Foundation: | CONPR | Heating/Cooling: | HPUMP | | Roof Cover: | COMP |   |   |
|
| | Type | Description | Class CD | Sub Class CD | Year Built | Area |
| | MA | Main Area | 3 | 1S | 2022 | 958.2 |
| | HCPOR | House Concrete Porch | 3 | 1S | 2022 | 108.0 |
Sketch
Property Image
Land
| 1 | 6210-1185L | | 0.0000 | 0.00 | 0.00 | 0.00 | 1.00 | $145,500 | $0 |
Roll Value History
| 2026 | N/A | N/A | N/A | N/A | N/A |
| 2025 | $196,397 | $145,500 | $0 | $341,897 | $341,897 |
| 2024 | $190,282 | $135,450 | $0 | $325,732 | $325,732 |
| 2023 | $182,009 | $124,000 | $0 | $306,009 | $306,009 |
| 2022 | $182,009 | $108,000 | $0 | $290,009 | $290,009 |
Deed and Sales History
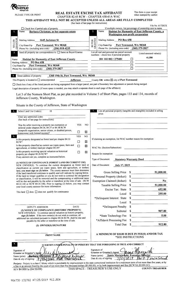
| 1 | 06/27/2022 | SWD | Statutory Warranty Deed | HABITAT FOR HUMANITY OF EAST | CRISTINA DOMINGUEZ | | | $336,500.00 | 139381 | |
| 2 | 07/17/2019 | SWD | Statutory Warranty Deed | BARBARA CHRISMAN | HABITAT FOR HUMANITY OF EAST | | | $51,000.00 | 132782 | |
| 3 | 11/05/2018 | SWD | Statutory Warranty Deed | MICHAEL C & JENNIFER SAIA | BARBARA CHRISMAN | | | $50,000.00 | 131417 | |
| 4 | 01/11/2013 | SWD | Statutory Warranty Deed | | MICHAEL C & JENNIFER SAIA | | | | 118672 | |
| 5 | 01/31/2012 | SWD | Statutory Warranty Deed | KAWORU C NOMURA | | | | | 0 | |
Payout Agreement
| No payout information available.. |