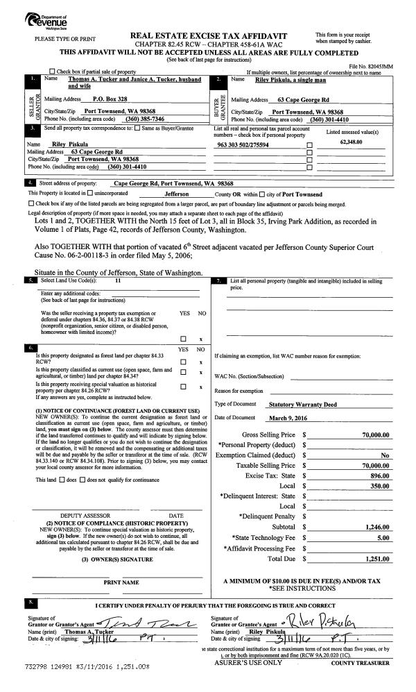
| 1 | 03/09/2016 | SWD | Statutory Warranty Deed | THOMAS TUCKER | RILEY PISKULA | | | $70,000.00 | 124981 | |
| 2 | 09/16/2010 | WD | Warranty Deed | FEDERAL HOME LOAN MTG COR | TUCKER, THOMAS A/JANICE A | 0 | 0 | $120,100.00 | 114907 | 0 |
|   | |
| 3 | 02/23/2010 | WD | Warranty Deed | NORTHWEST TRUSTEE SERVICE | FEDERAL HOME LOAN MORTGAGE COR | 0 | 0 | $0.00 | 114077 | 0 |
| 4 | 05/17/2001 | SWD | Statutory Warranty Deed | PALMIERI, S JHON/JOSEPHIN | JEFFERSON COUNTY | 0 | 0 | $0.00 | 92199 | 0 |
| 5 | 04/10/2000 | SWD | Statutory Warranty Deed | AVERY, JASON/SARAH | PALMIERI, S JHON/JOSEPHINE | 0 | 0 | $105,000.00 | 89378 | 0 |
|   | |
| 6 | 08/04/1993 | SWD | Statutory Warranty Deed | GLASSMAN,N,TSENG,KW/CY,LI | ALL PHASES NORTHWEST, INC | 0 | 0 | $0.00 | 71925 | 0 |
| 7 | 06/24/1993 | SWD | Statutory Warranty Deed | GLASSMAN/TSENG ET AL | AVERY, JASON/SARAH | 0 | 0 | $15,000.00 | 71535 | 0 |
|   | |