Property
Account |
| Property ID: | 275671 | Abbreviated Legal Description: | BIRKENFELD COMMUNITY LOT 5 SUBJ/EASE |
| Parcel # / Geo ID: | 936200005 | Agent Code: | |
| Type: | Real | | |
| Tax Area: | 0110 - C-50F1E1H2 | Land Use Code | 11 |
| Open Space: | N | DFL | N |
| Historic Property: | N | Remodel Property: | N |
| Multi-Family Redevelopment: | N | | |
| Township: | 30N | Section: | 10 |
| Range: | 1W |
Location |
| Address: | 1016 NORA PORTER LP PORT TOWNSEND, WA 98368 | Mapsco: | 004/001D |
| Neighborhood: | EISENBEIS, OC HASTINGS & SUPP, PINKS LESS VICTORIAN VILLAGE | Map ID: | |
| Neighborhood CD: | 6210 |
Owner |
| Name: | JONATHAN W STAFFORD | Owner ID: | 99263 |
| Mailing Address: | 1016 NORA PORTER LOOP PORT TOWNSEND, WA 98368-0039 | % Ownership: | 100.0000000000% |
| | | Exemptions: | |
Pay Tax Due
Select the appropriate checkbox next to the year to be paid. Multiple years may be selected.
*Convenience Fee not included
Taxes and Assessment Details
Property Tax Information as of
01/31/2026
Click on "Statement Details" to expand or collapse a tax statement.
* Please enter a valid date ** Please enter a valid date *
Statement Details |
| 2026 | 33403 | STATE - STATE LEVY (SCHOOL) | $487.53 | $487.51 | $0.00 | $0.00 | $0.00 | $975.04 |
| 2026 | 33403 | COUNTY - COUNTY LEVIES (CE, DD, VET, MH) | $194.92 | $194.90 | $0.00 | $0.00 | $0.00 | $389.82 |
| 2026 | 33403 | CONSERVE - CONSERVATION FUTURES | $5.85 | $5.84 | $0.00 | $0.00 | $0.00 | $11.69 |
| 2026 | 33403 | CITYPT - CITY OF PT | $276.67 | $276.65 | $0.00 | $0.00 | $0.00 | $553.32 |
| 2026 | 33403 | PORTPT - PORT DISTRICT | $78.72 | $78.71 | $0.00 | $0.00 | $0.00 | $157.43 |
| 2026 | 33403 | PUD1 - PUD #1 | $12.68 | $12.68 | $0.00 | $0.00 | $0.00 | $25.36 |
| 2026 | 33403 | HD2 - HOSP DIST #2 | $11.37 | $11.36 | $0.00 | $0.00 | $0.00 | $22.73 |
| 2026 | 33403 | SD50 - SCHOOL DIST #50 | $386.22 | $386.22 | $0.00 | $0.00 | $0.00 | $772.44 |
| 2026 | 33403 | FD1 - FIRE DISTRICT #1 | $258.11 | $258.10 | $0.00 | $0.00 | $0.00 | $516.21 |
| 2026 | 33403 | EMS1 - FIRE DIST #1 EMS | $99.24 | $99.24 | $0.00 | $0.00 | $0.00 | $198.48 |
| 2026 | 33403 | JCCD - JC Conservation District | $2.55 | $2.55 | $0.00 | $0.00 | $0.00 | $5.10 |
| 2026 | 33403 | NWA - Noxious Weed Assessment | $2.98 | $2.97 | $0.00 | $0.00 | $0.00 | $5.95 |
| 2026 | 33403 | TOTAL: | $1816.84 | $1816.73 | $0.00 | $0.00 | $0.00 | $3633.57 |
|
| 2026 | 33403 | $1816.84 | $1816.73 | $0.00 | $0.00 | $0.00 | $3633.57 |
Statement Details |
| 2025 | 33484 | STATE - STATE LEVY (SCHOOL) | $492.51 | $492.50 | $0.00 | $0.00 | $985.01 | $0.00 |
| 2025 | 33484 | COUNTY - COUNTY LEVIES (CE, DD, VET, MH) | $193.69 | $193.66 | $0.00 | $0.00 | $387.35 | $0.00 |
| 2025 | 33484 | CONSERVE - CONSERVATION FUTURES | $5.81 | $5.81 | $0.00 | $0.00 | $11.62 | $0.00 |
| 2025 | 33484 | CITYPT - CITY OF PT | $279.31 | $279.29 | $0.00 | $0.00 | $558.60 | $0.00 |
| 2025 | 33484 | PORTPT - PORT DISTRICT | $79.04 | $79.02 | $0.00 | $0.00 | $158.06 | $0.00 |
| 2025 | 33484 | PUD1 - PUD #1 | $12.68 | $12.67 | $0.00 | $0.00 | $25.35 | $0.00 |
| 2025 | 33484 | HD2 - HOSP DIST #2 | $11.30 | $11.30 | $0.00 | $0.00 | $22.60 | $0.00 |
| 2025 | 33484 | SD50 - SCHOOL DIST #50 | $359.94 | $359.93 | $0.00 | $0.00 | $719.87 | $0.00 |
| 2025 | 33484 | FD1 - FIRE DISTRICT #1 | $255.58 | $255.57 | $0.00 | $0.00 | $511.15 | $0.00 |
| 2025 | 33484 | EMS1 - FIRE DIST #1 EMS | $98.30 | $98.30 | $0.00 | $0.00 | $196.60 | $0.00 |
| 2025 | 33484 | JCCD - JC Conservation District | $2.55 | $2.55 | $0.00 | $0.00 | $5.10 | $0.00 |
| 2025 | 33484 | NWA - Noxious Weed Assessment | $2.15 | $2.15 | $0.00 | $0.00 | $4.30 | $0.00 |
| 2025 | 33484 | TOTAL: | $1792.86 | $1792.75 | $0.00 | $0.00 | $3585.61 | $0.00 |
|
| 2025 | 33484 | $1792.86 | $1792.75 | $0.00 | $0.00 | $3585.61 | $0.00 |
Statement Details |
| 2024 | 33549 | STATE - STATE LEVY (SCHOOL) | $448.12 | $448.11 | $0.00 | $0.00 | $896.23 | $0.00 |
| 2024 | 33549 | COUNTY - COUNTY LEVIES (CE, DD, VET, MH) | $191.77 | $191.74 | $0.00 | $0.00 | $383.51 | $0.00 |
| 2024 | 33549 | CONSERVE - CONSERVATION FUTURES | $5.75 | $5.75 | $0.00 | $0.00 | $11.50 | $0.00 |
| 2024 | 33549 | CITYPT - CITY OF PT | $273.99 | $273.98 | $0.00 | $0.00 | $547.97 | $0.00 |
| 2024 | 33549 | PORTPT - PORT DISTRICT | $79.21 | $79.19 | $0.00 | $0.00 | $158.40 | $0.00 |
| 2024 | 33549 | PUD1 - PUD #1 | $12.60 | $12.59 | $0.00 | $0.00 | $25.19 | $0.00 |
| 2024 | 33549 | HD2 - HOSP DIST #2 | $11.19 | $11.19 | $0.00 | $0.00 | $22.38 | $0.00 |
| 2024 | 33549 | SD50 - SCHOOL DIST #50 | $362.55 | $362.55 | $0.00 | $0.00 | $725.10 | $0.00 |
| 2024 | 33549 | FD1 - FIRE DISTRICT #1 | $253.55 | $253.54 | $0.00 | $0.00 | $507.09 | $0.00 |
| 2024 | 33549 | EMS1 - FIRE DIST #1 EMS | $96.85 | $96.84 | $0.00 | $0.00 | $193.69 | $0.00 |
| 2024 | 33549 | JCCD - JC Conservation District | $2.55 | $2.55 | $0.00 | $0.00 | $5.10 | $0.00 |
| 2024 | 33549 | NWA - Noxious Weed Assessment | $2.15 | $2.15 | $0.00 | $0.00 | $4.30 | $0.00 |
| 2024 | 33549 | TOTAL: | $1740.28 | $1740.18 | $0.00 | $0.00 | $3480.46 | $0.00 |
|
| 2024 | 33549 | $1740.28 | $1740.18 | $0.00 | $0.00 | $3480.46 | $0.00 |
Statement Details |
| 2023 | 33598 | STATE - STATE LEVY (SCHOOL) | $438.32 | $438.31 | $0.00 | $0.00 | $876.63 | $0.00 |
| 2023 | 33598 | COUNTY - COUNTY LEVIES (CE, DD, VET, MH) | $191.28 | $191.25 | $0.00 | $0.00 | $382.53 | $0.00 |
| 2023 | 33598 | CONSERVE - CONSERVATION FUTURES | $5.74 | $5.73 | $0.00 | $0.00 | $11.47 | $0.00 |
| 2023 | 33598 | CITYPT - CITY OF PT | $270.33 | $270.32 | $0.00 | $0.00 | $540.65 | $0.00 |
| 2023 | 33598 | PORTPT - PORT DISTRICT | $80.58 | $80.56 | $0.00 | $0.00 | $161.14 | $0.00 |
| 2023 | 33598 | PUD1 - PUD #1 | $12.68 | $12.68 | $0.00 | $0.00 | $25.36 | $0.00 |
| 2023 | 33598 | HD2 - HOSP DIST #2 | $11.16 | $11.16 | $0.00 | $0.00 | $22.32 | $0.00 |
| 2023 | 33598 | SD50 - SCHOOL DIST #50 | $347.81 | $347.81 | $0.00 | $0.00 | $695.62 | $0.00 |
| 2023 | 33598 | FD1 - FIRE DISTRICT #1 | $157.57 | $157.56 | $0.00 | $0.00 | $315.13 | $0.00 |
| 2023 | 33598 | EMS1 - FIRE DIST #1 EMS | $67.03 | $67.02 | $0.00 | $0.00 | $134.05 | $0.00 |
| 2023 | 33598 | JCCD - JC Conservation District | $2.55 | $2.55 | $0.00 | $0.00 | $5.10 | $0.00 |
| 2023 | 33598 | NWA - Noxious Weed Assessment | $2.15 | $2.15 | $0.00 | $0.00 | $4.30 | $0.00 |
| 2023 | 33598 | TOTAL: | $1587.20 | $1587.10 | $0.00 | $0.00 | $3174.30 | $0.00 |
|
| 2023 | 33598 | $1587.20 | $1587.10 | $0.00 | $0.00 | $3174.30 | $0.00 |
Values
| (+) Improvement Homesite Value: | + | $0 | |
| (+) Improvement Non-Homesite Value: | + | $289,097 | |
| (+) Land Homesite Value: | + | $0 | |
| (+) Land Non-Homesite Value: | + | $135,000 | |
| (+) Curr Use (HS): | + | $0 | $0 |
| (+) Curr Use (NHS): | + | $0 | $0 |
| | | -------------------------- | |
| (=) Market Value: | = | $424,097 | |
| (–) Productivity Loss: | – | $0 | |
| | | -------------------------- | |
| (=) Subtotal: | = | $424,097 | |
| (+) Senior Appraised Value: | + | $0 | |
| (+) Non-Senior Appraised Value: | + | $424,097 | |
| | | -------------------------- | |
| (=) Total Appraised Value: | = | $424,097 | |
| (–) Senior Exemption Loss: | – | $0 | |
| (–) Exemption Loss: | – | $0 | |
| | | -------------------------- | |
| (=) Taxable Value: | = | $424,097 | |
Taxing Jurisdiction
| Owner: | JONATHAN W STAFFORD | | |
| % Ownership: | 100.0000000000% | | |
| Total Value: | N/A | | |
| Tax Area: | 0110 - C-50F1E1H2 |
| CE | COUNTY CURRENT EXPENSE | N/A | N/A | N/A | N/A | | |
| CNTYDD | DEVELOPMENTAL DISABILITIES | N/A | N/A | N/A | N/A | | |
| CNTYVET | VETERANS RELIEF | N/A | N/A | N/A | N/A | | |
| MENTAL | MENTAL HEALTH | N/A | N/A | N/A | N/A | | |
| PTGEN | CITY OF PT GENERAL | N/A | N/A | N/A | N/A | | |
| PTLLL | CITY OF PT - LIBRARY LID LIFT | N/A | N/A | N/A | N/A | | |
| PTMVBOND | CITY OF PT MV BOND | N/A | N/A | N/A | N/A | | |
| HOSP2CASH | HOSP DIST #2 GENERAL | N/A | N/A | N/A | N/A | | |
| SCH50BOND | SCHOOL DIST #50 BOND 2016 | N/A | N/A | N/A | N/A | | |
| SCH50CP | SCHOOL DIST #50 CAP PROJ | N/A | N/A | N/A | N/A | | |
| SCH50MO | SCHOOL DIST #50 EP & O | N/A | N/A | N/A | N/A | | |
| CONSERVE | CONSERVATION FUTURES | N/A | N/A | N/A | N/A | | |
| EMS1 | FIRE DIST #1 EMS | N/A | N/A | N/A | N/A | | |
| FD1 | FIRE DIST #1 GENERAL | N/A | N/A | N/A | N/A | | |
| PORTPT | PORT OF PT GENERAL | N/A | N/A | N/A | N/A | | |
| PORTPTIDD | PORT OF PT IDD 2019 | N/A | N/A | N/A | N/A | | |
| PUD1 | PUD #1 GENERAL | N/A | N/A | N/A | N/A | | |
| STATE | STATE SCHOOL PART 1 | N/A | N/A | N/A | N/A | | |
| STATE2 | STATE SCHOOL PART 2 | N/A | N/A | N/A | N/A | | |
| | Total Tax Rate: | N/A | | | | | |
| | | | | Taxes w/Current Exemptions: | N/A | | |
| | | | | Taxes w/o Exemptions: | N/A | | |
Improvement / Building
| Improvement #1: | Residential Bldg | State Code: | 11 | 1120.0 sqft | Value: | $289,097 |
| Bathrooms (#): | 1 (FULL) | Bedrooms (#): | 3 | | Exterior Wall: | SI/ST | Foundation: | CONPR | | Heating/Cooling: | HPUMP | Roof Cover: | COMP |
|
| | Type | Description | Class CD | Sub Class CD | Year Built | Area |
| | MA | Main Area | 4 | 1S | 2018 | 1120.0 |
| | HCPOR | House Concrete Porch | 4 | 1S | 2018 | 144.0 |
| | SHED | Shed (Table Not Dep) | 4 | 1S | 2018 | 32.0 |
Sketch
Property Image
Land
| 1 | 6210-1185L | | 0.0000 | 0.00 | 0.00 | 0.00 | 1.00 | $135,000 | $0 |
Roll Value History
| 2026 | N/A | N/A | N/A | N/A | N/A |
| 2025 | $289,097 | $135,000 | $0 | $424,097 | $424,097 |
| 2024 | $284,757 | $126,000 | $0 | $410,757 | $410,757 |
| 2023 | $272,377 | $115,000 | $0 | $387,377 | $387,377 |
| 2022 | $272,376 | $100,000 | $0 | $372,376 | $372,376 |
Deed and Sales History
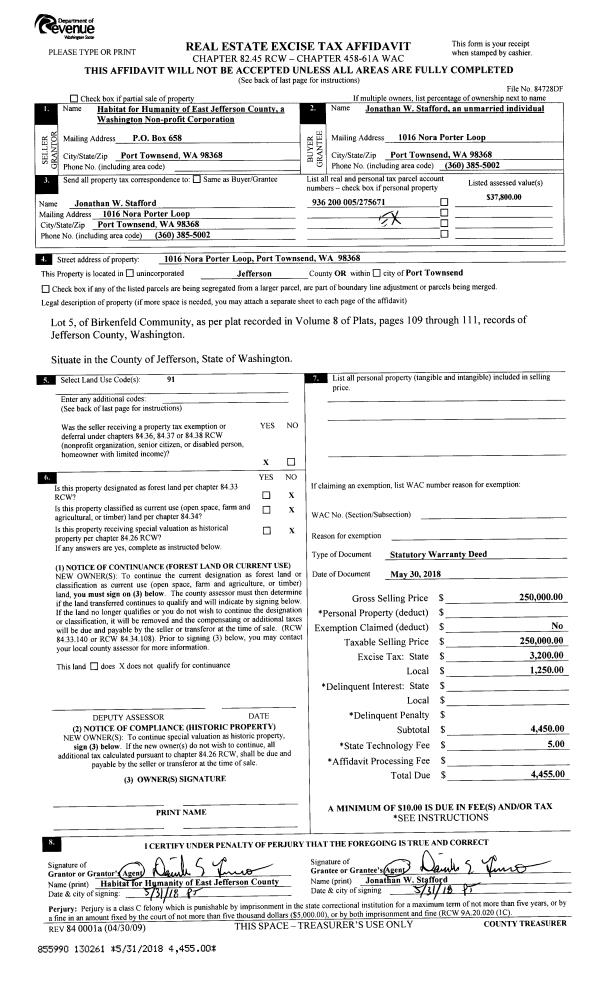
| 1 | 05/30/2018 | SWD | Statutory Warranty Deed | HABITAT FOR HUMANITY OF EAST | JONATHAN W STAFFORD | | | $250,000.00 | 130261 | |
| 2 | 06/27/2007 | SWD | Statutory Warranty Deed | ZAMPERIN, ANGELO/WALTRAUD | HABITAT FOR HUMANITY/EAST J C | | | $300,000.00 | 109521 | 0 |
|   | |
Payout Agreement
| No payout information available.. |