Property
Account |
| Property ID: | 275673 | Abbreviated Legal Description: | BIRKENFELD COMMUNITY LOT 7 SUBJ/EASE |
| Parcel # / Geo ID: | 936200007 | Agent Code: | |
| Type: | Real | | |
| Tax Area: | 0110 - C-50F1E1H2 | Land Use Code | 11 |
| Open Space: | N | DFL | N |
| Historic Property: | N | Remodel Property: | N |
| Multi-Family Redevelopment: | N | | |
| Township: | 30N | Section: | 10 |
| Range: | 1W |
Location |
| Address: | 1026 NORA PORTER LP PORT TOWNSEND, WA 98368 | Mapsco: | 004/001F |
| Neighborhood: | EISENBEIS, OC HASTINGS & SUPP, PINKS LESS VICTORIAN VILLAGE | Map ID: | |
| Neighborhood CD: | 6210 |
Owner |
| Name: | JAIKOB & EMILY MARTIN | Owner ID: | 96080 |
| Mailing Address: | 1026 NORA PORTER LOOP PORT TOWNSEND, WA 98368-0039 | % Ownership: | 100.0000000000% |
| | | Exemptions: | |
Pay Tax Due
Select the appropriate checkbox next to the year to be paid. Multiple years may be selected.
*Convenience Fee not included
Taxes and Assessment Details
Property Tax Information as of
01/31/2026
Click on "Statement Details" to expand or collapse a tax statement.
* Please enter a valid date ** Please enter a valid date *
Statement Details |
| 2026 | 33405 | STATE - STATE LEVY (SCHOOL) | $485.16 | $485.15 | $0.00 | $0.00 | $0.00 | $970.31 |
| 2026 | 33405 | COUNTY - COUNTY LEVIES (CE, DD, VET, MH) | $193.97 | $193.96 | $0.00 | $0.00 | $0.00 | $387.93 |
| 2026 | 33405 | CONSERVE - CONSERVATION FUTURES | $5.82 | $5.81 | $0.00 | $0.00 | $0.00 | $11.63 |
| 2026 | 33405 | CITYPT - CITY OF PT | $275.32 | $275.31 | $0.00 | $0.00 | $0.00 | $550.63 |
| 2026 | 33405 | PORTPT - PORT DISTRICT | $78.34 | $78.34 | $0.00 | $0.00 | $0.00 | $156.68 |
| 2026 | 33405 | PUD1 - PUD #1 | $12.62 | $12.61 | $0.00 | $0.00 | $0.00 | $25.23 |
| 2026 | 33405 | HD2 - HOSP DIST #2 | $11.31 | $11.31 | $0.00 | $0.00 | $0.00 | $22.62 |
| 2026 | 33405 | SD50 - SCHOOL DIST #50 | $384.36 | $384.34 | $0.00 | $0.00 | $0.00 | $768.70 |
| 2026 | 33405 | FD1 - FIRE DISTRICT #1 | $256.86 | $256.85 | $0.00 | $0.00 | $0.00 | $513.71 |
| 2026 | 33405 | EMS1 - FIRE DIST #1 EMS | $98.76 | $98.75 | $0.00 | $0.00 | $0.00 | $197.51 |
| 2026 | 33405 | JCCD - JC Conservation District | $2.55 | $2.55 | $0.00 | $0.00 | $0.00 | $5.10 |
| 2026 | 33405 | NWA - Noxious Weed Assessment | $2.98 | $2.97 | $0.00 | $0.00 | $0.00 | $5.95 |
| 2026 | 33405 | TOTAL: | $1808.05 | $1807.95 | $0.00 | $0.00 | $0.00 | $3616.00 |
|
| 2026 | 33405 | $1808.05 | $1807.95 | $0.00 | $0.00 | $0.00 | $3616.00 |
Statement Details |
| 2025 | 33486 | STATE - STATE LEVY (SCHOOL) | $490.50 | $490.48 | $0.00 | $0.00 | $980.98 | $0.00 |
| 2025 | 33486 | COUNTY - COUNTY LEVIES (CE, DD, VET, MH) | $192.89 | $192.87 | $0.00 | $0.00 | $385.76 | $0.00 |
| 2025 | 33486 | CONSERVE - CONSERVATION FUTURES | $5.79 | $5.78 | $0.00 | $0.00 | $11.57 | $0.00 |
| 2025 | 33486 | CITYPT - CITY OF PT | $278.17 | $278.15 | $0.00 | $0.00 | $556.32 | $0.00 |
| 2025 | 33486 | PORTPT - PORT DISTRICT | $78.71 | $78.70 | $0.00 | $0.00 | $157.41 | $0.00 |
| 2025 | 33486 | PUD1 - PUD #1 | $12.62 | $12.62 | $0.00 | $0.00 | $25.24 | $0.00 |
| 2025 | 33486 | HD2 - HOSP DIST #2 | $11.26 | $11.25 | $0.00 | $0.00 | $22.51 | $0.00 |
| 2025 | 33486 | SD50 - SCHOOL DIST #50 | $358.47 | $358.47 | $0.00 | $0.00 | $716.94 | $0.00 |
| 2025 | 33486 | FD1 - FIRE DISTRICT #1 | $254.53 | $254.53 | $0.00 | $0.00 | $509.06 | $0.00 |
| 2025 | 33486 | EMS1 - FIRE DIST #1 EMS | $97.90 | $97.90 | $0.00 | $0.00 | $195.80 | $0.00 |
| 2025 | 33486 | JCCD - JC Conservation District | $2.55 | $2.55 | $0.00 | $0.00 | $5.10 | $0.00 |
| 2025 | 33486 | NWA - Noxious Weed Assessment | $2.15 | $2.15 | $0.00 | $0.00 | $4.30 | $0.00 |
| 2025 | 33486 | TOTAL: | $1785.54 | $1785.45 | $0.00 | $0.00 | $3570.99 | $0.00 |
|
| 2025 | 33486 | $1785.54 | $1785.45 | $0.00 | $0.00 | $3570.99 | $0.00 |
Statement Details |
| 2024 | 33551 | STATE - STATE LEVY (SCHOOL) | $446.27 | $446.26 | $0.00 | $0.00 | $892.53 | $0.00 |
| 2024 | 33551 | COUNTY - COUNTY LEVIES (CE, DD, VET, MH) | $190.96 | $190.96 | $0.00 | $0.00 | $381.92 | $0.00 |
| 2024 | 33551 | CONSERVE - CONSERVATION FUTURES | $5.73 | $5.72 | $0.00 | $0.00 | $11.45 | $0.00 |
| 2024 | 33551 | CITYPT - CITY OF PT | $272.86 | $272.85 | $0.00 | $0.00 | $545.71 | $0.00 |
| 2024 | 33551 | PORTPT - PORT DISTRICT | $78.88 | $78.87 | $0.00 | $0.00 | $157.75 | $0.00 |
| 2024 | 33551 | PUD1 - PUD #1 | $12.55 | $12.54 | $0.00 | $0.00 | $25.09 | $0.00 |
| 2024 | 33551 | HD2 - HOSP DIST #2 | $11.14 | $11.14 | $0.00 | $0.00 | $22.28 | $0.00 |
| 2024 | 33551 | SD50 - SCHOOL DIST #50 | $361.05 | $361.05 | $0.00 | $0.00 | $722.10 | $0.00 |
| 2024 | 33551 | FD1 - FIRE DISTRICT #1 | $252.50 | $252.49 | $0.00 | $0.00 | $504.99 | $0.00 |
| 2024 | 33551 | EMS1 - FIRE DIST #1 EMS | $96.45 | $96.44 | $0.00 | $0.00 | $192.89 | $0.00 |
| 2024 | 33551 | JCCD - JC Conservation District | $2.55 | $2.55 | $0.00 | $0.00 | $5.10 | $0.00 |
| 2024 | 33551 | NWA - Noxious Weed Assessment | $2.15 | $2.15 | $0.00 | $0.00 | $4.30 | $0.00 |
| 2024 | 33551 | TOTAL: | $1733.09 | $1733.02 | $0.00 | $0.00 | $3466.11 | $0.00 |
|
| 2024 | 33551 | $1733.09 | $1733.02 | $0.00 | $0.00 | $3466.11 | $0.00 |
Statement Details |
| 2023 | 33600 | STATE - STATE LEVY (SCHOOL) | $436.43 | $436.43 | $0.00 | $0.00 | $872.86 | $0.00 |
| 2023 | 33600 | COUNTY - COUNTY LEVIES (CE, DD, VET, MH) | $190.45 | $190.43 | $0.00 | $0.00 | $380.88 | $0.00 |
| 2023 | 33600 | CONSERVE - CONSERVATION FUTURES | $5.71 | $5.71 | $0.00 | $0.00 | $11.42 | $0.00 |
| 2023 | 33600 | CITYPT - CITY OF PT | $269.17 | $269.15 | $0.00 | $0.00 | $538.32 | $0.00 |
| 2023 | 33600 | PORTPT - PORT DISTRICT | $80.23 | $80.22 | $0.00 | $0.00 | $160.45 | $0.00 |
| 2023 | 33600 | PUD1 - PUD #1 | $12.63 | $12.62 | $0.00 | $0.00 | $25.25 | $0.00 |
| 2023 | 33600 | HD2 - HOSP DIST #2 | $11.11 | $11.11 | $0.00 | $0.00 | $22.22 | $0.00 |
| 2023 | 33600 | SD50 - SCHOOL DIST #50 | $346.33 | $346.30 | $0.00 | $0.00 | $692.63 | $0.00 |
| 2023 | 33600 | FD1 - FIRE DISTRICT #1 | $156.89 | $156.89 | $0.00 | $0.00 | $313.78 | $0.00 |
| 2023 | 33600 | EMS1 - FIRE DIST #1 EMS | $66.74 | $66.73 | $0.00 | $0.00 | $133.47 | $0.00 |
| 2023 | 33600 | JCCD - JC Conservation District | $2.55 | $2.55 | $0.00 | $0.00 | $5.10 | $0.00 |
| 2023 | 33600 | NWA - Noxious Weed Assessment | $2.15 | $2.15 | $0.00 | $0.00 | $4.30 | $0.00 |
| 2023 | 33600 | TOTAL: | $1580.39 | $1580.29 | $0.00 | $0.00 | $3160.68 | $0.00 |
|
| 2023 | 33600 | $1580.39 | $1580.29 | $0.00 | $0.00 | $3160.68 | $0.00 |
Values
| (+) Improvement Homesite Value: | + | $0 | |
| (+) Improvement Non-Homesite Value: | + | $287,043 | |
| (+) Land Homesite Value: | + | $0 | |
| (+) Land Non-Homesite Value: | + | $135,000 | |
| (+) Curr Use (HS): | + | $0 | $0 |
| (+) Curr Use (NHS): | + | $0 | $0 |
| | | -------------------------- | |
| (=) Market Value: | = | $422,043 | |
| (–) Productivity Loss: | – | $0 | |
| | | -------------------------- | |
| (=) Subtotal: | = | $422,043 | |
| (+) Senior Appraised Value: | + | $0 | |
| (+) Non-Senior Appraised Value: | + | $422,043 | |
| | | -------------------------- | |
| (=) Total Appraised Value: | = | $422,043 | |
| (–) Senior Exemption Loss: | – | $0 | |
| (–) Exemption Loss: | – | $0 | |
| | | -------------------------- | |
| (=) Taxable Value: | = | $422,043 | |
Taxing Jurisdiction
| Owner: | JAIKOB & EMILY MARTIN | | |
| % Ownership: | 100.0000000000% | | |
| Total Value: | N/A | | |
| Tax Area: | 0110 - C-50F1E1H2 |
| CE | COUNTY CURRENT EXPENSE | N/A | N/A | N/A | N/A | | |
| CNTYDD | DEVELOPMENTAL DISABILITIES | N/A | N/A | N/A | N/A | | |
| CNTYVET | VETERANS RELIEF | N/A | N/A | N/A | N/A | | |
| MENTAL | MENTAL HEALTH | N/A | N/A | N/A | N/A | | |
| PTGEN | CITY OF PT GENERAL | N/A | N/A | N/A | N/A | | |
| PTLLL | CITY OF PT - LIBRARY LID LIFT | N/A | N/A | N/A | N/A | | |
| PTMVBOND | CITY OF PT MV BOND | N/A | N/A | N/A | N/A | | |
| HOSP2CASH | HOSP DIST #2 GENERAL | N/A | N/A | N/A | N/A | | |
| SCH50BOND | SCHOOL DIST #50 BOND 2016 | N/A | N/A | N/A | N/A | | |
| SCH50CP | SCHOOL DIST #50 CAP PROJ | N/A | N/A | N/A | N/A | | |
| SCH50MO | SCHOOL DIST #50 EP & O | N/A | N/A | N/A | N/A | | |
| CONSERVE | CONSERVATION FUTURES | N/A | N/A | N/A | N/A | | |
| EMS1 | FIRE DIST #1 EMS | N/A | N/A | N/A | N/A | | |
| FD1 | FIRE DIST #1 GENERAL | N/A | N/A | N/A | N/A | | |
| PORTPT | PORT OF PT GENERAL | N/A | N/A | N/A | N/A | | |
| PORTPTIDD | PORT OF PT IDD 2019 | N/A | N/A | N/A | N/A | | |
| PUD1 | PUD #1 GENERAL | N/A | N/A | N/A | N/A | | |
| STATE | STATE SCHOOL PART 1 | N/A | N/A | N/A | N/A | | |
| STATE2 | STATE SCHOOL PART 2 | N/A | N/A | N/A | N/A | | |
| | Total Tax Rate: | N/A | | | | | |
| | | | | Taxes w/Current Exemptions: | N/A | | |
| | | | | Taxes w/o Exemptions: | N/A | | |
Improvement / Building
| Improvement #1: | Residential Bldg | State Code: | 11 | 1120.0 sqft | Value: | $287,043 |
| Bathrooms (#): | 1 (FULL) | Bathrooms (#): | 1 (HALF) | | Bedrooms (#): | 3 | Exterior Wall: | SI/ST | | Foundation: | CONPR | Heating/Cooling: | HPUMP | | Roof Cover: | COMP |   |   |
|
| | Type | Description | Class CD | Sub Class CD | Year Built | Area |
| | MA | Main Area | 4 | 1S | 2016 | 1120.0 |
| | HCPOR | House Concrete Porch | 4 | 1S | 2016 | 102.0 |
| | SHED | Shed (Table Not Dep) | 4 | 1S | 2016 | 32.0 |
Sketch
Property Image
Land
| 1 | 6210-1185L | | 0.0000 | 0.00 | 0.00 | 0.00 | 1.00 | $135,000 | $0 |
Roll Value History
| 2026 | N/A | N/A | N/A | N/A | N/A |
| 2025 | $287,043 | $135,000 | $0 | $422,043 | $422,043 |
| 2024 | $283,081 | $126,000 | $0 | $409,081 | $409,081 |
| 2023 | $270,773 | $115,000 | $0 | $385,773 | $385,773 |
| 2022 | $270,773 | $100,000 | $0 | $370,773 | $370,773 |
Deed and Sales History
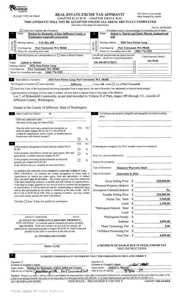
| 1 | 09/08/2016 | SWD | Statutory Warranty Deed | HABITAT FOR HUMANITY OF EAST | JAIKOB & EMILY MARTIN | | | $230,000.00 | 126216 | |
| 2 | 06/27/2007 | SWD | Statutory Warranty Deed | ZAMPERIN, ANGELO/WALTRAUD | HABITAT FOR HUMANITY/EAST J C | | | $300,000.00 | 109521 | 0 |
|   | |
Payout Agreement
| No payout information available.. |