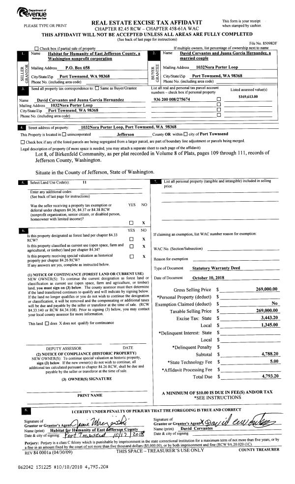
| 1 | 10/10/2018 | SWD | Statutory Warranty Deed | HABITAT FOR HUMANITY OF EAST | DAVID CERVANTES & JUANA HERNANDEZ | | | $269,000.00 | 131225 | |
| 2 | 07/02/2018 | DILF | Deed in Lieu of Foreclosure | THORN A ZILAR SORENSEN | HABITAT FOR HUMANITY OF EAST | | | $169,613.00 | 130637 | |
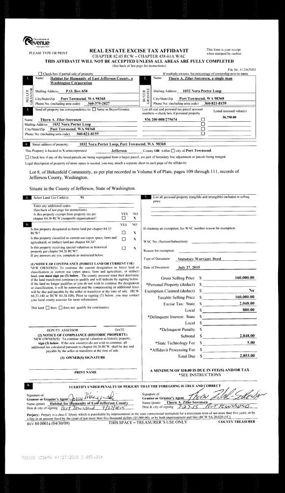
| 3 | 07/27/2015 | SWD | Statutory Warranty Deed | HABITAT FOR HUMANITY OF EAST | THORN A ZILAR SORENSEN | | | $160,000.00 | 123650 | |
| 4 | 06/27/2007 | SWD | Statutory Warranty Deed | ZAMPERIN, ANGELO/WALTRAUD | HABITAT FOR HUMANITY/EAST J C | | | $300,000.00 | 109521 | 0 |
|   | |