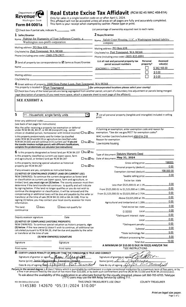
| 1 | 05/31/2024 | LEASE | Lease or Assignment of Lease | SALISH COAST HOUSING, LLC | SYMANTHA I HOREJSI | | 666125 | | 0 | LND LEASE |
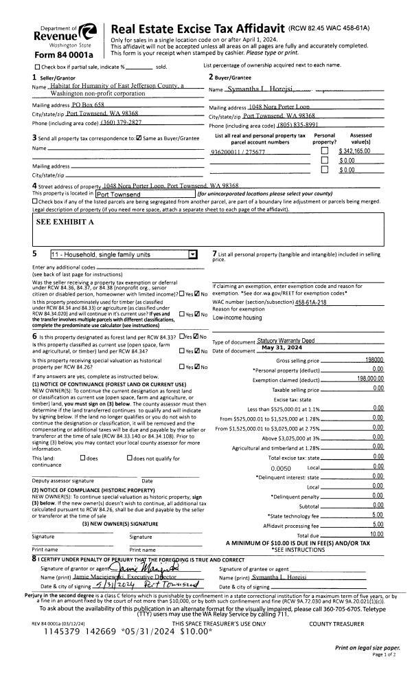
| 2 | 05/31/2024 | SWD | Statutory Warranty Deed | HABITAT FOR HUMANITY OF EAST | SYMANTHA I HOREJSI | | | $198,000.00 | 142669 | IMPS ONLY |
| 3 | 11/02/2023 | SWD | Statutory Warranty Deed | MICHELE BARTL | HABITAT FOR HUMANITY OF EAST | | | | 141846 | |
| 4 | 10/10/2018 | SWD | Statutory Warranty Deed | HABITAT FOR HUMANITY OF EAST | MICHELE BARTL | | | $290,000.00 | 131224 | |
| 5 | 06/27/2007 | SWD | Statutory Warranty Deed | ZAMPERIN, ANGELO/WALTRAUD | HABITAT FOR HUMANITY/EAST J C | | | $300,000.00 | 109521 | 0 |
|   | |