Property
Account |
| Property ID: | 27574 | Abbreviated Legal Description: | EISENBEIS ADDITION BLK 76 LOT 8 |
| Parcel # / Geo ID: | 948307605 | Agent Code: | |
| Type: | Real | | |
| Tax Area: | 0110 - C-50F1E1H2 | Land Use Code | 11 |
| Open Space: | N | DFL | N |
| Historic Property: | N | Remodel Property: | N |
| Multi-Family Redevelopment: | N | | |
| Township: | 30N | Section: | 10 |
| Range: | 1W |
Location |
| Address: | 1024 10TH ST PORT TOWNSEND, WA 98368 | Mapsco: | 027/021 |
| Neighborhood: | EISENBEIS, OC HASTINGS & SUPP, PINKS LESS VICTORIAN VILLAGE | Map ID: | |
| Neighborhood CD: | 6210 |
Owner |
| Name: | UPTOWN PT LLC | Owner ID: | 99659 |
| Mailing Address: | 6827 55TH AVE NE SEATTLE, WA 98115 | % Ownership: | 100.0000000000% |
| | | Exemptions: | |
Pay Tax Due
There is currently No Amount Due on this property.
Taxes and Assessment Details
Property Tax Information as of
03/12/2026
Click on "Statement Details" to expand or collapse a tax statement.
* Please enter a valid date ** Please enter a valid date *
Statement Details |
| 2026 | 16930 | STATE - STATE LEVY (SCHOOL) | $667.86 | $667.84 | $0.00 | $0.00 | $1335.70 | $0.00 |
| 2026 | 16930 | COUNTY - COUNTY LEVIES (CE, DD, VET, MH) | $267.02 | $266.99 | $0.00 | $0.00 | $534.01 | $0.00 |
| 2026 | 16930 | CONSERVE - CONSERVATION FUTURES | $8.01 | $8.00 | $0.00 | $0.00 | $16.01 | $0.00 |
| 2026 | 16930 | CITYPT - CITY OF PT | $378.99 | $378.98 | $0.00 | $0.00 | $757.97 | $0.00 |
| 2026 | 16930 | PORTPT - PORT DISTRICT | $107.84 | $107.84 | $0.00 | $0.00 | $215.68 | $0.00 |
| 2026 | 16930 | PUD1 - PUD #1 | $17.37 | $17.37 | $0.00 | $0.00 | $34.74 | $0.00 |
| 2026 | 16930 | HD2 - HOSP DIST #2 | $15.57 | $15.57 | $0.00 | $0.00 | $31.14 | $0.00 |
| 2026 | 16930 | SD50 - SCHOOL DIST #50 | $529.08 | $529.07 | $0.00 | $0.00 | $1058.15 | $0.00 |
| 2026 | 16930 | FD1 - FIRE DISTRICT #1 | $353.58 | $353.57 | $0.00 | $0.00 | $707.15 | $0.00 |
| 2026 | 16930 | EMS1 - FIRE DIST #1 EMS | $135.95 | $135.94 | $0.00 | $0.00 | $271.89 | $0.00 |
| 2026 | 16930 | JCCD - JC Conservation District | $2.55 | $2.55 | $0.00 | $0.00 | $5.10 | $0.00 |
| 2026 | 16930 | NWA - Noxious Weed Assessment | $2.98 | $2.97 | $0.00 | $0.00 | $5.95 | $0.00 |
| 2026 | 16930 | TOTAL: | $2486.80 | $2486.69 | $0.00 | $0.00 | $4973.49 | $0.00 |
|
| 2026 | 16930 | $2486.80 | $2486.69 | $0.00 | $0.00 | $4973.49 | $0.00 |
Statement Details |
| 2025 | 16985 | STATE - STATE LEVY (SCHOOL) | $686.96 | $686.95 | $0.00 | $0.00 | $1373.91 | $0.00 |
| 2025 | 16985 | COUNTY - COUNTY LEVIES (CE, DD, VET, MH) | $270.15 | $270.14 | $0.00 | $0.00 | $540.29 | $0.00 |
| 2025 | 16985 | CONSERVE - CONSERVATION FUTURES | $8.10 | $8.10 | $0.00 | $0.00 | $16.20 | $0.00 |
| 2025 | 16985 | CITYPT - CITY OF PT | $389.58 | $389.56 | $0.00 | $0.00 | $779.14 | $0.00 |
| 2025 | 16985 | PORTPT - PORT DISTRICT | $110.24 | $110.22 | $0.00 | $0.00 | $220.46 | $0.00 |
| 2025 | 16985 | PUD1 - PUD #1 | $17.68 | $17.67 | $0.00 | $0.00 | $35.35 | $0.00 |
| 2025 | 16985 | HD2 - HOSP DIST #2 | $15.76 | $15.76 | $0.00 | $0.00 | $31.52 | $0.00 |
| 2025 | 16985 | SD50 - SCHOOL DIST #50 | $502.07 | $502.04 | $0.00 | $0.00 | $1004.11 | $0.00 |
| 2025 | 16985 | FD1 - FIRE DISTRICT #1 | $356.48 | $356.48 | $0.00 | $0.00 | $712.96 | $0.00 |
| 2025 | 16985 | EMS1 - FIRE DIST #1 EMS | $137.11 | $137.11 | $0.00 | $0.00 | $274.22 | $0.00 |
| 2025 | 16985 | JCCD - JC Conservation District | $2.55 | $2.55 | $0.00 | $0.00 | $5.10 | $0.00 |
| 2025 | 16985 | NWA - Noxious Weed Assessment | $2.15 | $2.15 | $0.00 | $0.00 | $4.30 | $0.00 |
| 2025 | 16985 | TOTAL: | $2498.83 | $2498.73 | $0.00 | $0.00 | $4997.56 | $0.00 |
|
| 2025 | 16985 | $2498.83 | $2498.73 | $0.00 | $0.00 | $4997.56 | $0.00 |
Statement Details |
| 2024 | 17019 | STATE - STATE LEVY (SCHOOL) | $627.17 | $627.16 | $0.00 | $0.00 | $1254.33 | $0.00 |
| 2024 | 17019 | COUNTY - COUNTY LEVIES (CE, DD, VET, MH) | $268.39 | $268.35 | $0.00 | $0.00 | $536.74 | $0.00 |
| 2024 | 17019 | CONSERVE - CONSERVATION FUTURES | $8.05 | $8.04 | $0.00 | $0.00 | $16.09 | $0.00 |
| 2024 | 17019 | CITYPT - CITY OF PT | $383.46 | $383.46 | $0.00 | $0.00 | $766.92 | $0.00 |
| 2024 | 17019 | PORTPT - PORT DISTRICT | $110.85 | $110.84 | $0.00 | $0.00 | $221.69 | $0.00 |
| 2024 | 17019 | PUD1 - PUD #1 | $17.63 | $17.63 | $0.00 | $0.00 | $35.26 | $0.00 |
| 2024 | 17019 | HD2 - HOSP DIST #2 | $15.66 | $15.66 | $0.00 | $0.00 | $31.32 | $0.00 |
| 2024 | 17019 | SD50 - SCHOOL DIST #50 | $507.41 | $507.40 | $0.00 | $0.00 | $1014.81 | $0.00 |
| 2024 | 17019 | FD1 - FIRE DISTRICT #1 | $354.85 | $354.85 | $0.00 | $0.00 | $709.70 | $0.00 |
| 2024 | 17019 | EMS1 - FIRE DIST #1 EMS | $135.54 | $135.54 | $0.00 | $0.00 | $271.08 | $0.00 |
| 2024 | 17019 | JCCD - JC Conservation District | $2.55 | $2.55 | $0.00 | $0.00 | $5.10 | $0.00 |
| 2024 | 17019 | NWA - Noxious Weed Assessment | $2.15 | $2.15 | $0.00 | $0.00 | $4.30 | $0.00 |
| 2024 | 17019 | TOTAL: | $2433.71 | $2433.63 | $0.00 | $0.00 | $4867.34 | $0.00 |
|
| 2024 | 17019 | $2433.71 | $2433.63 | $0.00 | $0.00 | $4867.34 | $0.00 |
Statement Details |
| 2023 | 17043 | STATE - STATE LEVY (SCHOOL) | $632.28 | $632.26 | $0.00 | $0.00 | $1264.54 | $0.00 |
| 2023 | 17043 | COUNTY - COUNTY LEVIES (CE, DD, VET, MH) | $275.92 | $275.88 | $0.00 | $0.00 | $551.80 | $0.00 |
| 2023 | 17043 | CONSERVE - CONSERVATION FUTURES | $8.28 | $8.27 | $0.00 | $0.00 | $16.55 | $0.00 |
| 2023 | 17043 | CITYPT - CITY OF PT | $389.95 | $389.94 | $0.00 | $0.00 | $779.89 | $0.00 |
| 2023 | 17043 | PORTPT - PORT DISTRICT | $116.23 | $116.22 | $0.00 | $0.00 | $232.45 | $0.00 |
| 2023 | 17043 | PUD1 - PUD #1 | $18.29 | $18.29 | $0.00 | $0.00 | $36.58 | $0.00 |
| 2023 | 17043 | HD2 - HOSP DIST #2 | $16.11 | $16.09 | $0.00 | $0.00 | $32.20 | $0.00 |
| 2023 | 17043 | SD50 - SCHOOL DIST #50 | $501.73 | $501.71 | $0.00 | $0.00 | $1003.44 | $0.00 |
| 2023 | 17043 | FD1 - FIRE DISTRICT #1 | $227.29 | $227.29 | $0.00 | $0.00 | $454.58 | $0.00 |
| 2023 | 17043 | EMS1 - FIRE DIST #1 EMS | $96.69 | $96.68 | $0.00 | $0.00 | $193.37 | $0.00 |
| 2023 | 17043 | JCCD - JC Conservation District | $2.55 | $2.55 | $0.00 | $0.00 | $5.10 | $0.00 |
| 2023 | 17043 | NWA - Noxious Weed Assessment | $2.15 | $2.15 | $0.00 | $0.00 | $4.30 | $0.00 |
| 2023 | 17043 | TOTAL: | $2287.47 | $2287.33 | $0.00 | $0.00 | $4574.80 | $0.00 |
|
| 2023 | 17043 | $2287.47 | $2287.33 | $0.00 | $0.00 | $4574.80 | $0.00 |
Values
| (+) Improvement Homesite Value: | + | $0 | |
| (+) Improvement Non-Homesite Value: | + | $382,968 | |
| (+) Land Homesite Value: | + | $0 | |
| (+) Land Non-Homesite Value: | + | $198,000 | |
| (+) Curr Use (HS): | + | $0 | $0 |
| (+) Curr Use (NHS): | + | $0 | $0 |
| | | -------------------------- | |
| (=) Market Value: | = | $580,968 | |
| (–) Productivity Loss: | – | $0 | |
| | | -------------------------- | |
| (=) Subtotal: | = | $580,968 | |
| (+) Senior Appraised Value: | + | $0 | |
| (+) Non-Senior Appraised Value: | + | $580,968 | |
| | | -------------------------- | |
| (=) Total Appraised Value: | = | $580,968 | |
| (–) Senior Exemption Loss: | – | $0 | |
| (–) Exemption Loss: | – | $0 | |
| | | -------------------------- | |
| (=) Taxable Value: | = | $580,968 | |
Taxing Jurisdiction
| Owner: | UPTOWN PT LLC | | |
| % Ownership: | 100.0000000000% | | |
| Total Value: | $580,968 | | |
| Tax Area: | 0110 - C-50F1E1H2 |
| CE | COUNTY CURRENT EXPENSE | 0.9034619479 | $580,968 | $580,968 | $524.88 | | |
| CNTYDD | DEVELOPMENTAL DISABILITIES | 0.0052121823 | $580,968 | $580,968 | $3.03 | | |
| CNTYVET | VETERANS RELIEF | 0.0052777810 | $580,968 | $580,968 | $3.07 | | |
| MENTAL | MENTAL HEALTH | 0.0052121823 | $580,968 | $580,968 | $3.03 | | |
| PTGEN | CITY OF PT GENERAL | 0.8551967795 | $580,968 | $580,968 | $496.84 | | |
| PTLLL | CITY OF PT - LIBRARY LID LIFT | 0.4010114288 | $580,968 | $580,968 | $232.97 | | |
| PTMVBOND | CITY OF PT MV BOND | 0.0484717981 | $580,968 | $580,968 | $28.16 | | |
| HOSP2CASH | HOSP DIST #2 GENERAL | 0.0536075306 | $580,968 | $580,968 | $31.14 | | |
| SCH50BOND | SCHOOL DIST #50 BOND 2016 | 0.5377451389 | $580,968 | $580,968 | $312.41 | | |
| SCH50CP | SCHOOL DIST #50 CAP PROJ | 0.4573475088 | $580,968 | $580,968 | $265.70 | | |
| SCH50MO | SCHOOL DIST #50 EP & O | 0.8262822886 | $580,968 | $580,968 | $480.04 | | |
| CONSERVE | CONSERVATION FUTURES | 0.0275621078 | $580,968 | $580,968 | $16.01 | | |
| EMS1 | FIRE DIST #1 EMS | 0.4679948282 | $580,968 | $580,968 | $271.89 | | |
| FD1 | FIRE DIST #1 GENERAL | 1.2171942929 | $580,968 | $580,968 | $707.15 | | |
| PORTPT | PORT OF PT GENERAL | 0.1134941229 | $580,968 | $580,968 | $65.94 | | |
| PORTPTIDD | PORT OF PT IDD 2019 | 0.2577346692 | $580,968 | $580,968 | $149.74 | | |
| PUD1 | PUD #1 GENERAL | 0.0597888892 | $580,968 | $580,968 | $34.74 | | |
| STATE | STATE SCHOOL PART 1 | 1.4940692947 | $580,968 | $580,968 | $868.01 | | |
| STATE2 | STATE SCHOOL PART 2 | 0.8050170049 | $580,968 | $580,968 | $467.69 | | |
| | Total Tax Rate: | 8.5416817766 | | | | | |
| | | | | Taxes w/Current Exemptions: | $4,962.44 | | |
| | | | | Taxes w/o Exemptions: | $4,962.44 | | |
Improvement / Building
| Improvement #1: | Residential Bldg | State Code: | 11 | 1224.0 sqft | Value: | $382,968 |
| Bathrooms (#): | 2 (FULL) | Bedrooms (#): | 2 | | Exterior Wall: | PL/T1 | Fireplace: | SIN 2-AVG | | Floor Construction: | FRAME | Foundation: | CONPR | | Heating/Cooling: | ELBB | Inside Verify: | YES-FIX | | Roof Cover: | COMP |   |   |
|
| | Type | Description | Class CD | Sub Class CD | Year Built | Area |
| | MA | Main Area | 5+ | 15SF | 1974 | 816.0 |
| | MA2 | Second Floor Main Area | 5+ | 15SF | 1974 | 408.0 |
| | GATT | House Attached Garage | 5 | 15SF | 1974 | 260.0 |
| | PATIO | House Patio | 5 | 15SF | 1974 | 609.0 |
Sketch
Property Image
Land
| 1 | 6210-1165L | | 0.0000 | 0.00 | 0.00 | 0.00 | 1.00 | $198,000 | $0 |
Roll Value History
| 2026 | N/A | N/A | N/A | N/A | N/A |
| 2025 | $382,968 | $198,000 | $0 | $580,968 | $580,968 |
| 2024 | $362,934 | $210,000 | $0 | $572,934 | $572,934 |
| 2023 | $347,155 | $195,000 | $0 | $542,155 | $542,155 |
| 2022 | $347,155 | $190,000 | $0 | $537,155 | $537,155 |
Deed and Sales History
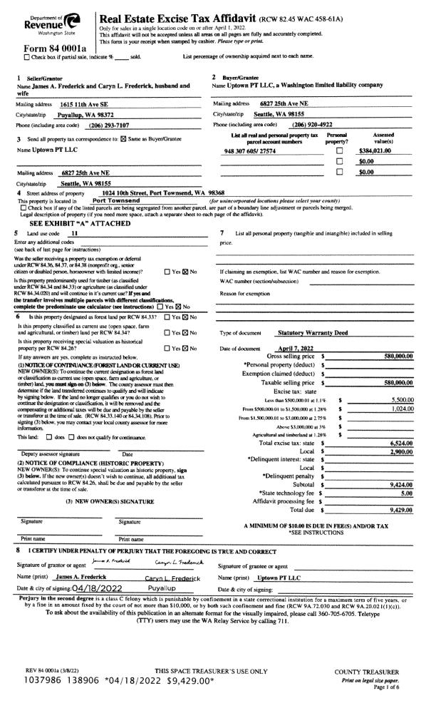
| 1 | 04/07/2022 | SWD | Statutory Warranty Deed | JAMES A & CARYN L FREDERICK | UPTOWN PT LLC | | | $580,000.00 | 138906 | |
| 2 | 03/06/2018 | SWD | Statutory Warranty Deed | TEYA K WALKKER MAXWELL | JAMES A & CARYN L FREDERICK | | | $335,000.00 | 129718 | |
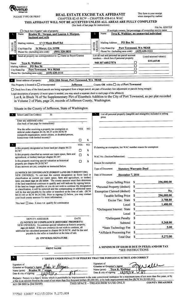
| 3 | 10/07/2016 | SWD | Statutory Warranty Deed | BRADEN W & LAUREN J MORGAN | TEYA K WALKKER MAXWELL | | | $296,000.00 | 126807 | |
| 4 | 08/20/2015 | SWD | Statutory Warranty Deed | LIDA K SANDQUIST | BRADEN W & LAUREN J MORGAN | | | $185,000.00 | 123875 | |
Payout Agreement
| No payout information available.. |