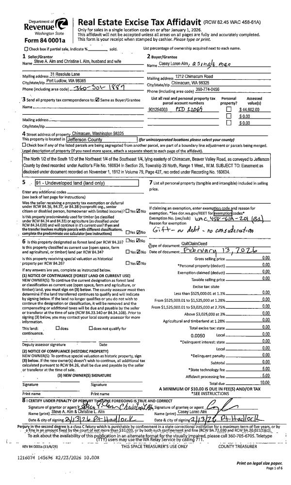
Property
Account |
| Property ID: | 275913 | Abbreviated Legal Description: | PARCHER SHORT PLAT LOT A |
| Parcel # / Geo ID: | 001104032 | Agent Code: | |
| Type: | Real | | |
| Tax Area: | 0110 - C-50F1E1H2 | Land Use Code | 11 |
| Open Space: | N | DFL | N |
| Historic Property: | N | Remodel Property: | N |
| Multi-Family Redevelopment: | N | | |
| Township: | 30N | Section: | 10 |
| Range: | 1W |
Location |
| Address: | 652 MCPHERSON PORT TOWNSEND, WA 98368 | Mapsco: | 164/020 |
| Neighborhood: | EISENBEIS, OC HASTINGS & SUPP, PINKS LESS VICTORIAN VILLAGE | Map ID: | |
| Neighborhood CD: | 6210 |
Owner |
| Name: | HAILEY A WILLMANN | Owner ID: | 113936 |
| Mailing Address: | 652 MCPHERSON ST PORT TOWNSEND, WA 98368-2226 | % Ownership: | 100.0000000000% |
| | | Exemptions: | |
Pay Tax Due
Select the appropriate checkbox next to the year to be paid. Multiple years may be selected.
*Convenience Fee not included
Taxes and Assessment Details
Property Tax Information as of
03/11/2026
Click on "Statement Details" to expand or collapse a tax statement.
* Please enter a valid date ** Please enter a valid date *
Statement Details |
| 2026 | 33589 | STATE - STATE LEVY (SCHOOL) | $511.61 | $511.59 | $0.00 | $0.00 | $0.00 | $1023.20 |
| 2026 | 33589 | COUNTY - COUNTY LEVIES (CE, DD, VET, MH) | $204.54 | $204.53 | $0.00 | $0.00 | $0.00 | $409.07 |
| 2026 | 33589 | CONSERVE - CONSERVATION FUTURES | $6.14 | $6.13 | $0.00 | $0.00 | $0.00 | $12.27 |
| 2026 | 33589 | CITYPT - CITY OF PT | $290.33 | $290.31 | $0.00 | $0.00 | $0.00 | $580.64 |
| 2026 | 33589 | PORTPT - PORT DISTRICT | $82.61 | $82.60 | $0.00 | $0.00 | $0.00 | $165.21 |
| 2026 | 33589 | PUD1 - PUD #1 | $13.31 | $13.30 | $0.00 | $0.00 | $0.00 | $26.61 |
| 2026 | 33589 | HD2 - HOSP DIST #2 | $11.93 | $11.93 | $0.00 | $0.00 | $0.00 | $23.86 |
| 2026 | 33589 | SD50 - SCHOOL DIST #50 | $405.30 | $405.30 | $0.00 | $0.00 | $0.00 | $810.60 |
| 2026 | 33589 | FD1 - FIRE DISTRICT #1 | $270.86 | $270.85 | $0.00 | $0.00 | $0.00 | $541.71 |
| 2026 | 33589 | EMS1 - FIRE DIST #1 EMS | $104.14 | $104.14 | $0.00 | $0.00 | $0.00 | $208.28 |
| 2026 | 33589 | JCCD - JC Conservation District | $2.55 | $2.55 | $0.00 | $0.00 | $0.00 | $5.10 |
| 2026 | 33589 | NWA - Noxious Weed Assessment | $2.98 | $2.97 | $0.00 | $0.00 | $0.00 | $5.95 |
| 2026 | 33589 | TOTAL: | $1906.30 | $1906.20 | $0.00 | $0.00 | $0.00 | $3812.50 |
|
| 2026 | 33589 | $1906.30 | $1906.20 | $0.00 | $0.00 | $0.00 | $3812.50 |
Statement Details |
| 2025 | 33671 | STATE - STATE LEVY (SCHOOL) | $509.17 | $509.16 | $0.00 | $0.00 | $1018.33 | $0.00 |
| 2025 | 33671 | COUNTY - COUNTY LEVIES (CE, DD, VET, MH) | $200.25 | $200.21 | $0.00 | $0.00 | $400.46 | $0.00 |
| 2025 | 33671 | CONSERVE - CONSERVATION FUTURES | $6.01 | $6.00 | $0.00 | $0.00 | $12.01 | $0.00 |
| 2025 | 33671 | CITYPT - CITY OF PT | $288.76 | $288.75 | $0.00 | $0.00 | $577.51 | $0.00 |
| 2025 | 33671 | PORTPT - PORT DISTRICT | $81.71 | $81.70 | $0.00 | $0.00 | $163.41 | $0.00 |
| 2025 | 33671 | PUD1 - PUD #1 | $13.10 | $13.10 | $0.00 | $0.00 | $26.20 | $0.00 |
| 2025 | 33671 | HD2 - HOSP DIST #2 | $11.68 | $11.68 | $0.00 | $0.00 | $23.36 | $0.00 |
| 2025 | 33671 | SD50 - SCHOOL DIST #50 | $372.13 | $372.11 | $0.00 | $0.00 | $744.24 | $0.00 |
| 2025 | 33671 | FD1 - FIRE DISTRICT #1 | $264.22 | $264.22 | $0.00 | $0.00 | $528.44 | $0.00 |
| 2025 | 33671 | EMS1 - FIRE DIST #1 EMS | $101.63 | $101.62 | $0.00 | $0.00 | $203.25 | $0.00 |
| 2025 | 33671 | JCCD - JC Conservation District | $2.55 | $2.55 | $0.00 | $0.00 | $5.10 | $0.00 |
| 2025 | 33671 | NWA - Noxious Weed Assessment | $2.15 | $2.15 | $0.00 | $0.00 | $4.30 | $0.00 |
| 2025 | 33671 | TOTAL: | $1853.36 | $1853.25 | $0.00 | $0.00 | $3706.61 | $0.00 |
|
| 2025 | 33671 | $1853.36 | $1853.25 | $0.00 | $0.00 | $3706.61 | $0.00 |
Statement Details |
| 2024 | 33738 | STATE - STATE LEVY (SCHOOL) | $463.50 | $463.49 | $0.00 | $0.00 | $926.99 | $0.00 |
| 2024 | 33738 | COUNTY - COUNTY LEVIES (CE, DD, VET, MH) | $198.34 | $198.33 | $0.00 | $0.00 | $396.67 | $0.00 |
| 2024 | 33738 | CONSERVE - CONSERVATION FUTURES | $5.95 | $5.94 | $0.00 | $0.00 | $11.89 | $0.00 |
| 2024 | 33738 | CITYPT - CITY OF PT | $283.40 | $283.38 | $0.00 | $0.00 | $566.78 | $0.00 |
| 2024 | 33738 | PORTPT - PORT DISTRICT | $81.92 | $81.92 | $0.00 | $0.00 | $163.84 | $0.00 |
| 2024 | 33738 | PUD1 - PUD #1 | $13.03 | $13.02 | $0.00 | $0.00 | $26.05 | $0.00 |
| 2024 | 33738 | HD2 - HOSP DIST #2 | $11.57 | $11.57 | $0.00 | $0.00 | $23.14 | $0.00 |
| 2024 | 33738 | SD50 - SCHOOL DIST #50 | $375.01 | $374.98 | $0.00 | $0.00 | $749.99 | $0.00 |
| 2024 | 33738 | FD1 - FIRE DISTRICT #1 | $262.25 | $262.24 | $0.00 | $0.00 | $524.49 | $0.00 |
| 2024 | 33738 | EMS1 - FIRE DIST #1 EMS | $100.17 | $100.17 | $0.00 | $0.00 | $200.34 | $0.00 |
| 2024 | 33738 | JCCD - JC Conservation District | $2.55 | $2.55 | $0.00 | $0.00 | $5.10 | $0.00 |
| 2024 | 33738 | NWA - Noxious Weed Assessment | $2.15 | $2.15 | $0.00 | $0.00 | $4.30 | $0.00 |
| 2024 | 33738 | TOTAL: | $1799.84 | $1799.74 | $0.00 | $0.00 | $3599.58 | $0.00 |
|
| 2024 | 33738 | $1799.84 | $1799.74 | $0.00 | $0.00 | $3599.58 | $0.00 |
Statement Details |
| 2023 | 33787 | STATE - STATE LEVY (SCHOOL) | $453.97 | $453.96 | $0.00 | $0.00 | $907.93 | $0.00 |
| 2023 | 33787 | COUNTY - COUNTY LEVIES (CE, DD, VET, MH) | $198.11 | $198.09 | $0.00 | $0.00 | $396.20 | $0.00 |
| 2023 | 33787 | CONSERVE - CONSERVATION FUTURES | $5.94 | $5.94 | $0.00 | $0.00 | $11.88 | $0.00 |
| 2023 | 33787 | CITYPT - CITY OF PT | $279.99 | $279.97 | $0.00 | $0.00 | $559.96 | $0.00 |
| 2023 | 33787 | PORTPT - PORT DISTRICT | $83.45 | $83.45 | $0.00 | $0.00 | $166.90 | $0.00 |
| 2023 | 33787 | PUD1 - PUD #1 | $13.13 | $13.13 | $0.00 | $0.00 | $26.26 | $0.00 |
| 2023 | 33787 | HD2 - HOSP DIST #2 | $11.57 | $11.55 | $0.00 | $0.00 | $23.12 | $0.00 |
| 2023 | 33787 | SD50 - SCHOOL DIST #50 | $360.24 | $360.22 | $0.00 | $0.00 | $720.46 | $0.00 |
| 2023 | 33787 | FD1 - FIRE DISTRICT #1 | $163.20 | $163.19 | $0.00 | $0.00 | $326.39 | $0.00 |
| 2023 | 33787 | EMS1 - FIRE DIST #1 EMS | $69.42 | $69.42 | $0.00 | $0.00 | $138.84 | $0.00 |
| 2023 | 33787 | JCCD - JC Conservation District | $2.55 | $2.55 | $0.00 | $0.00 | $5.10 | $0.00 |
| 2023 | 33787 | NWA - Noxious Weed Assessment | $2.15 | $2.15 | $0.00 | $0.00 | $4.30 | $0.00 |
| 2023 | 33787 | TOTAL: | $1643.72 | $1643.62 | $0.00 | $0.00 | $3287.34 | $0.00 |
|
| 2023 | 33787 | $1643.72 | $1643.62 | $0.00 | $0.00 | $3287.34 | $0.00 |
Values
| (+) Improvement Homesite Value: | + | $0 | |
| (+) Improvement Non-Homesite Value: | + | $310,049 | |
| (+) Land Homesite Value: | + | $0 | |
| (+) Land Non-Homesite Value: | + | $135,000 | |
| (+) Curr Use (HS): | + | $0 | $0 |
| (+) Curr Use (NHS): | + | $0 | $0 |
| | | -------------------------- | |
| (=) Market Value: | = | $445,049 | |
| (–) Productivity Loss: | – | $0 | |
| | | -------------------------- | |
| (=) Subtotal: | = | $445,049 | |
| (+) Senior Appraised Value: | + | $0 | |
| (+) Non-Senior Appraised Value: | + | $445,049 | |
| | | -------------------------- | |
| (=) Total Appraised Value: | = | $445,049 | |
| (–) Senior Exemption Loss: | – | $0 | |
| (–) Exemption Loss: | – | $0 | |
| | | -------------------------- | |
| (=) Taxable Value: | = | $445,049 | |
Taxing Jurisdiction
| Owner: | HAILEY A WILLMANN | | |
| % Ownership: | 100.0000000000% | | |
| Total Value: | N/A | | |
| Tax Area: | 0110 - C-50F1E1H2 |
| CE | COUNTY CURRENT EXPENSE | N/A | N/A | N/A | N/A | | |
| CNTYDD | DEVELOPMENTAL DISABILITIES | N/A | N/A | N/A | N/A | | |
| CNTYVET | VETERANS RELIEF | N/A | N/A | N/A | N/A | | |
| MENTAL | MENTAL HEALTH | N/A | N/A | N/A | N/A | | |
| PTGEN | CITY OF PT GENERAL | N/A | N/A | N/A | N/A | | |
| PTLLL | CITY OF PT - LIBRARY LID LIFT | N/A | N/A | N/A | N/A | | |
| PTMVBOND | CITY OF PT MV BOND | N/A | N/A | N/A | N/A | | |
| HOSP2CASH | HOSP DIST #2 GENERAL | N/A | N/A | N/A | N/A | | |
| SCH50BOND | SCHOOL DIST #50 BOND 2016 | N/A | N/A | N/A | N/A | | |
| SCH50CP | SCHOOL DIST #50 CAP PROJ | N/A | N/A | N/A | N/A | | |
| SCH50MO | SCHOOL DIST #50 EP & O | N/A | N/A | N/A | N/A | | |
| CONSERVE | CONSERVATION FUTURES | N/A | N/A | N/A | N/A | | |
| EMS1 | FIRE DIST #1 EMS | N/A | N/A | N/A | N/A | | |
| FD1 | FIRE DIST #1 GENERAL | N/A | N/A | N/A | N/A | | |
| PORTPT | PORT OF PT GENERAL | N/A | N/A | N/A | N/A | | |
| PORTPTIDD | PORT OF PT IDD 2019 | N/A | N/A | N/A | N/A | | |
| PUD1 | PUD #1 GENERAL | N/A | N/A | N/A | N/A | | |
| STATE | STATE SCHOOL PART 1 | N/A | N/A | N/A | N/A | | |
| STATE2 | STATE SCHOOL PART 2 | N/A | N/A | N/A | N/A | | |
| | Total Tax Rate: | N/A | | | | | |
| | | | | Taxes w/Current Exemptions: | N/A | | |
| | | | | Taxes w/o Exemptions: | N/A | | |
Improvement / Building
| Improvement #1: | Residential Bldg | State Code: | 11 | 1148.0 sqft | Value: | $310,049 |
| Bathrooms (#): | 2 (FULL) | Bedrooms (#): | 2 | | Exterior Wall: | SI/ST | Foundation: | CONPR | | Heating/Cooling: | HPUMP | Roof Cover: | COMP |
|
| | Type | Description | Class CD | Sub Class CD | Year Built | Area |
| | MA | Main Area | 4 | 1S | 2015 | 1148.0 |
| | GATT | House Attached Garage | 4 | 1S | 2015 | 240.0 |
| | HDECK | House Deck | 4 | 1S | 2015 | 120.0 |
| | HWPOR | House Wood Porch | 4 | 1S | 2015 | 124.0 |
Sketch
Property Image
Land
| 1 | 6210-1185L | | 0.0000 | 0.00 | 0.00 | 0.00 | 1.00 | $135,000 | $0 |
Roll Value History
| 2026 | N/A | N/A | N/A | N/A | N/A |
| 2025 | $310,049 | $135,000 | $0 | $445,049 | $445,049 |
| 2024 | $298,657 | $126,000 | $0 | $424,657 | $424,657 |
| 2023 | $285,672 | $115,000 | $0 | $400,672 | $400,672 |
| 2022 | $285,672 | $100,000 | $0 | $385,672 | $385,672 |
Deed and Sales History
| 1 | 01/13/2026 | SWD | Statutory Warranty Deed | ADELINA GRAZIOSI | HAILEY A WILLMANN | | | $472,250.00 | 145512 | |
| 2 | 11/24/2015 | SWD | Statutory Warranty Deed | THOMAS C PARCHER | ADELINA GRAZIOSI | | | $225,000.00 | 124536 | |
| 3 | 11/24/2015 | SWD | Statutory Warranty Deed | | | | | | 124537 | |
| 4 | 05/19/2009 | SWD | Statutory Warranty Deed | HARPER, RICHARD ET AL | PARCHER, TOM/KELLI | | | $160,000.00 | 112944 | 0 |
|   | |
| 5 | 01/20/2004 | QCD | Quit Claim Deed | HARPER, CHESTER/TRUST | HARPER, RICHARD/TRUSTEE | 0 | 0 | $0.00 | 99499 | 0 |
| 6 | 01/20/2004 | QCD | Quit Claim Deed | HARPER, CHESTER REVOCABLE | BRINER, MARIE LOUISE REVOCABLE | 0 | 0 | $0.00 | 100514 | 0 |
| 7 | 01/18/2000 | SWD | Statutory Warranty Deed | HARPER, CHESTER Z | HARPER, CHESTER Z/TRUST | 0 | 0 | $0.00 | 88811 | 0 |
| 8 | 02/17/1998 | QCD | Quit Claim Deed | HARPER, CHESTER | HARPER, CHESTER | 0 | 0 | $0.00 | 83827 | 0 |
| 9 | 12/16/1997 | WD | Warranty Deed | BRINER, MARIE LOUISE/EST | BRINER, MARIE LOUISE/TRUST | 0 | 0 | $0.00 | 83530 | 0 |
| 10 | 12/16/1997 | WD | Warranty Deed | BRINER, MARIE LOUISE/EST | BRINER, MARIE LOUISE/TRUST | 0 | 0 | $0.00 | 83656 | 0 |
Payout Agreement
| No payout information available.. |